LOOSDRECHT
Nootweg 10 - 1231 CT
Nederland

 profile image

 
€879.000 k.k.
Woonoppervlakte
171m2
Perceeloppervlakte
334m2
Slaapkamers
4

Omschrijving

Royale helft van dubbele villa op een riant perceel van ca. 334 m² met prachtig aangelegde tuin met diverse terrassen, oprit (afsluitbaar middels poort) voor parkeren meerdere auto's en een vrijstaande garage met carport.

De woning is gelegen in het dorpscentrum van Nieuw-Loosdrecht met op loopafstand het levendige winkelcentrum van Loosdrecht, met o.a. een Jumbo, Hema en een Kruidvat.
Loosdrecht kenmerkt zich door vele jachthavens en horecagelegenheden. In de zomer is het hier dan ook optimaal genieten van de diversiteit aan watersportactiviteiten.
Tevens zijn er andere faciliteiten zoals sportvelden/centra en diverse basisscholen in de buurt te vinden.
Voor meer stadse faciliteiten, zoals winkels, (internationale) scholen en een NS station, kunt u terecht in Hilversum dat zich op nog geen 10 autominuten van de woning bevindt. Ook grote steden als Amsterdam en Utrecht zijn binnen 30 minuten aan te rijden.

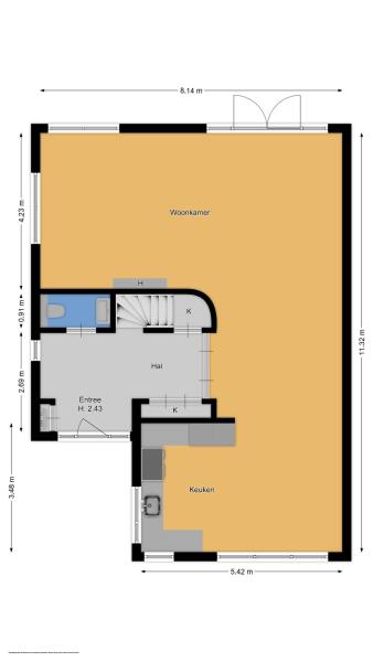
Indeling
Begane grond:
Via de ruime entree/hal betreedt u de woning. Hier vindt u de meterkast, een royale garderobekast en een separaat toilet. Onder de trap naar de eerste verdieping bevindt zich extra kastruimte.

De royale U-vormige woon-/eetkamer biedt aan de voorzijde toegang tot de open keuken welke is uitgerust met diverse inbouwapparatuur zoals 4-pits inductiekookplaat met wokbrander (SMEG), stoomoven, oven, afzuigkap en koel-/vriescombinatie (GAGGENAU). De ruime woonkamer is voorzien van een prachtig visgraat parket en heeft openslaande deuren die leiden naar de achtertuin.

Eerste verdieping: via de overloop heeft u toegang tot drie slaapkamers. Er is tevens een aparte waskamer met aansluitingen voor wasmachine en droger. De masterbedroom beschikt over een en-suite badkamer met een wastafelmeubel, ligbad, douche en een tweede toilet. Tevens bevindt zich op deze verdieping een extra toilet en een tweede badkamer met douche en wastafel.

Tweede verdieping: middels een vaste trapopgang bereikt u de ruime zolderkamer (vierde slaapkamer) met dakraam. Daarnaast is er een separate bergruimte met de CV-ketel.

Tuin: de woning beschikt over een lange, bestrate oprit welke leidt naar de carport en garage, gelegen achter in de tuin. Er is voldoende ruimte om meerdere auto's op eigen terrein te parkeren en tevens afsluitbaar middels elektrische poort. Zowel de voor- als achtertuin zijn onderhoudsvriendelijk aangelegd met bestrating en borders vol beplanting.

Bijzonderheden:
- uitstekend onderhouden helft van dubbele villa;
- op loopafstand van het winkelcentrum van Nieuw-Loosdrecht;
- bouwjaar 1993;
- master bedroom v.v. airco;
- screens aan achterzijde en deels v.v. horren;
- riant perceel van ca. 334 m²;
- tuin gelegen op het zuiden;
- garage met elektrische deur en carport;
- energielabel B geldig t/m 2 oktober 2034;
- oplevering in overleg.

Kenmerken

Alarm system
Air conditioning
Overdracht
Vraagprijs
€ 879.000 k.k.
Status
onder bod
Aanvaarding
in overleg
Bouw
Soort woonhuis
Eengezinswoning
Soort bouw
twee onder een kapwoning
Bouwjaar
1993
Energieklasse
B
Soort dak
zadeldak
Slaapkamers
4
Badkamers
2
Oppervlakten en inhoud
Woonoppervlakte
171 m2
Overige inpandige ruimte
0 m2
Externe bergruimte
21 m2
Inhoud
572 m3
Perceeloppervlakte
334 m2
faciliteiten
Mechanische ventilatie
Alarminstallatie
Tv kabel
Buitenzonwering
Airconditioning
Rookkanaal
Dakraam
Natuurlijke ventilatie
Aan rustige weg
In woonwijk
Baerz & Co Property Brochure

Brochure

Video’s

Plattegronden

Informatie / bezichtigingsaanvraag

 profile image

Een luxe woning kopen in Loosdrecht

Loosdrecht biedt een zeldzaam samenspel van rust aan het water, een hechte gemeenschap en verfijnde voorzieningen. Een ideale plek voor wie internationale connecties zoekt, onopvallende service waardeert en een stijlvol, natuurinspirerend leven nastreeft.