UITHOORN
Adriaan Willaertweg 4 - 1421 KW
Nederland

€1.220.000 k.k.
Woonoppervlakte
231m2
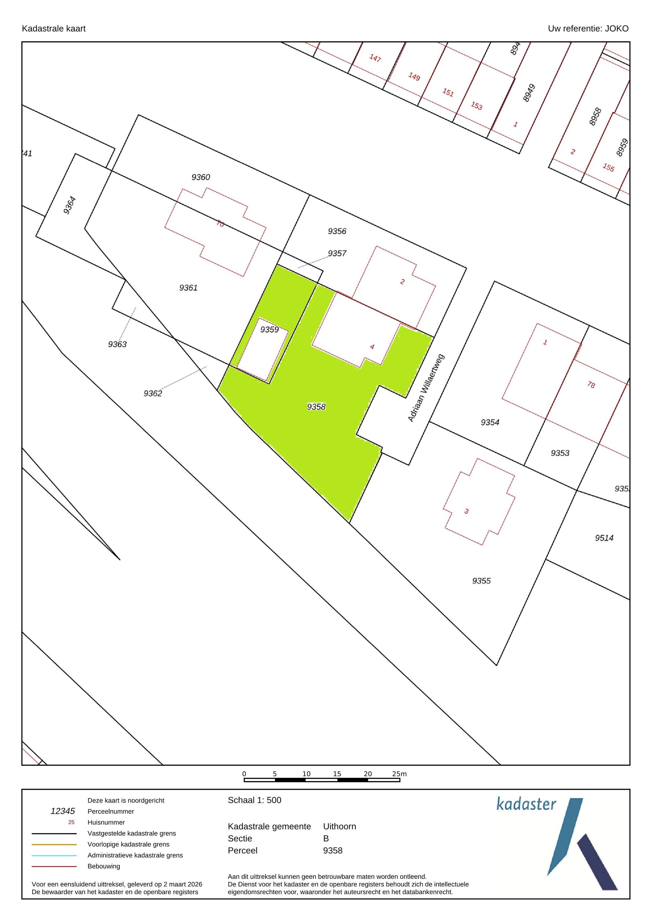
Perceeloppervlakte
746m2
Slaapkamers
4

Omschrijving

Welkom in dit unieke half-vrijstaande herenhuis, gelegen op een royaal perceel van maar liefst 746 m² in de gewilde woonwijk Burgemeester Kootpark. Deze geliefde buurt staat bekend om haar karakteristieke architectuur, groene opzet en centrale ligging – de perfecte combinatie van rust, ruimte en bereikbaarheid. Het is een populaire plek voor jonge gezinnen én iedereen die comfortabel en royaal wil wonen in een veilige, kindvriendelijke omgeving. De woning is omgeven door een fraai aangelegde tuin waar je het hele jaar door kunt genieten van het buitenleven. Met een sfeervol tuinhuis en een royale overkapping creëer je hier moeiteloos een plek om te ontspannen, te borrelen of te dineren met vrienden en familie. Parkeren doe je eenvoudig op eigen terrein voor drie auto's.

De buurt is autoluw, groen en veilig, met volop speelgelegenheden voor kinderen in de nabije omgeving. Scholen voor basis- en voortgezet onderwijs liggen op loopafstand, evenals diverse supermarkten en gezondheidscentrum De Waterlinie. Ook qua bereikbaarheid zit je hier perfect: winkels, openbaar vervoer en uitvalswegen zijn nabij. De gezellige dorpskern met terrassen aan de Amstel ligt binnen handbereik, net als winkelcentra zoals het Zuidelwaardplein en het Amstelplein, eenvoudig per fiets bereikbaar. Met de Amstelveenlijn sta je bovendien in een mum van tijd in Amstelveen of het bruisende centrum van Amsterdam.

Kortom: hier woon je met comfort, ruimte en luxe, op een toplocatie.

De indeling van deze schitterende woning is als volgt:

BEGANE GROND
Via de fraai bestraatte voortuin met pad naar de zijkant van de woning, geflankeerd door statige platanen, bereik je de voordeur. De representatieve, royale hal straalt direct een verzorgde afwerking uit en biedt toegang tot het moderne toilet met fontein, de meterkast en de vaste trap naar de eerste verdieping. Een stijlvolle dichte deur leidt naar de indrukwekkende leefruimte, waar de woonkamer en de open woonkeuken naadloos in elkaar overlopen. De keuken aan de voorzijde is licht en ruim, met grote raampartijen en een hoekraam bij de eethoek voorzien van sfeervolle shutters – een ideale plek om gezellig te dineren. De landelijke keuken beschikt over een centraal kookeiland met inductiekookplaat en praktische lades aan beide zijden, aangevuld met een elegant wijnrek. Het L-vormige werkblad biedt volop ruimte en is uitgerust met luxe inbouwapparatuur, waaronder grillplaat, frituur met afzuigkap en ingebouwde keukenmachine. Aan de raamzijde bevindt zich de spoelzone met dubbele spoelbak, Quooker en vaatwasser. Een royale kastenwand met combimagnetron, extra oven aan de andere zijde van de keuken met daarnaast nog ruimte voor een grote dubbele koel-/vriescombinatie met ijsmachine (ter overname) maakt het geheel compleet. Onder de trap is bovendien een handige kast voor garderobe en extra opslag.

De L-vormige woonkamer met riante zithoek aan de achterzijde biedt prachtig uitzicht over de tuin en een brede schuifpui naar buiten. De royale zithoek en een een sfeervolle leeshoek met houtkachel maken het tot een plek om volledig tot rust te komen. Het grote zijraam biedt zicht op de zijtuin, terwijl shutters, sunscreens en airconditioning zorgen voor comfort in elk seizoen. De hele benedenverdieping is afgewerkt met een warme, luxe houten vloer.

EERSTE VERDIEPING
De ruime hal van de eerste verdieping biedt toegang tot drie grote slaapkamers, de stijlvolle badkamer en de praktische waskamer. De ruime L-vormige slaapkamer aan de voorzijde heeft twee grote ramen en een zijraam met uitzicht op de tuin. De naastgelegen badkamer is uitgerust met een royaal ligbad, moderne douchecabine, verlichte wastafel, toilet en bidet – een ruimte die luxe en functionaliteit perfect combineert.
Aan de achterzijde bevinden zich twee prima slaapkamers met toegang tot een royaal betegeld terras dat zich over de volledige breedte van de woning uitstrekt en een prachtig uitzicht biedt over de achtertuin. Sunscreens en airconditioning in één van de kamers zorgen voor extra comfort. De hal en slaapkamers zijn afgewerkt met stijlvol laminaat, terwijl de badkamer en waskamer volledig zijn betegeld.

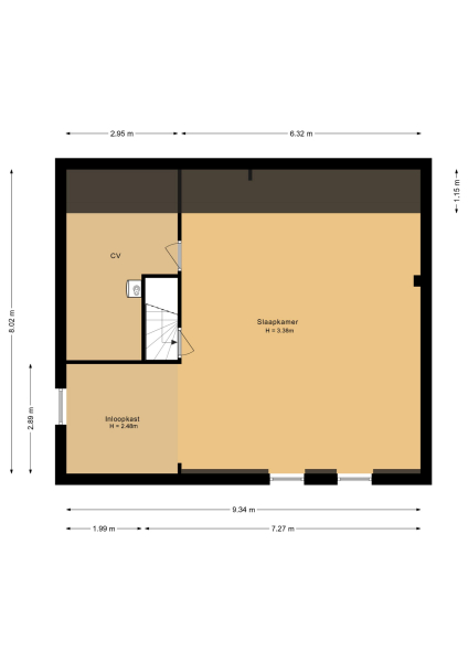
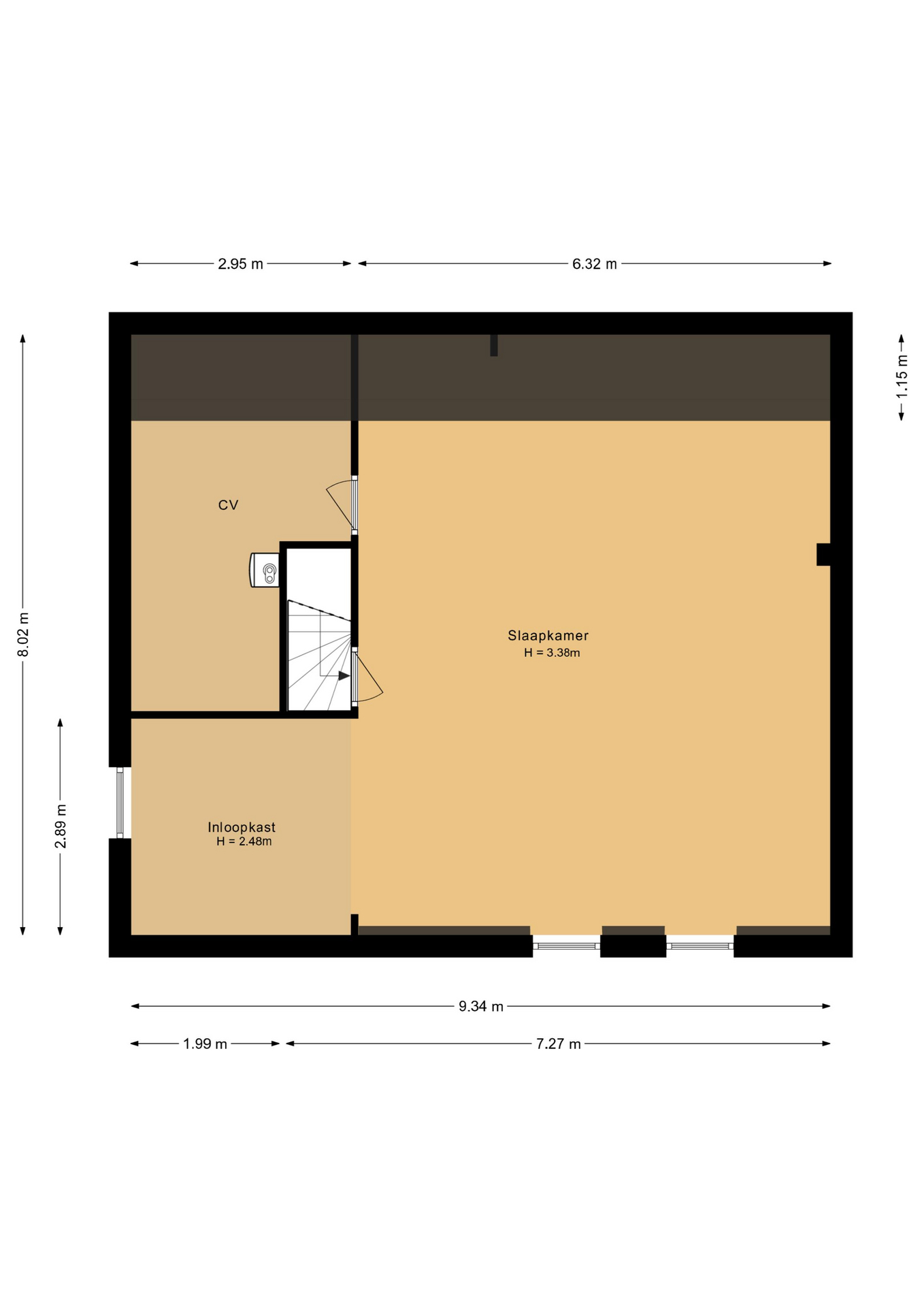
TWEEDE VERDIEPING
Via een open trap kom je op de tweede verdieping, waar de master bedroom een ware blikvanger is. Deze royale kamer biedt volop mogelijkheden voor een luxe en praktische indeling. De kamer beschikt over een open inloopkast met raam en uitzicht over de zijkant van de tuin, én een vaste kastenwand – beide van het Italiaanse merk Poliform – waardoor stijlvol en efficiënt opbergen gegarandeerd is. Twee ramen aan de voorzijde en het zijraam zorgen voor veel natuurlijk licht en zijn voorzien van sunscreens. Laminaat en airconditioning maken het geheel af. Deze royale verdieping biedt vanwege de grootte nog extra mogelijkheden om de indeling te veranderen met bijvoorbeeld twee zolderkamers. Daarnaast is er een ruime berging met CV-opstelling en mechanische ventilatie unit, ideaal voor extra opslag en praktische voorzieningen.

TUIN
De prachtige tuin is een waar buitenparadijs, direct bereikbaar via de schuifpui in de woonkamer en via de zijkant van de woning via een fraai open hekwand. De tuin biedt veel privacy en geniet de gehele dag van zon, ideaal om volop van buiten te genieten. Aan de achterzijde van de woning ligt een ruim terras met een sfeervolle zithoek, compleet met een uitvalscherm over de gehele breedte van de woning, ideaal om van zowel zon als schaduw te genieten. Achterin de tuin staat een charmant tuinhuis met overkapping, perfect voor een eethoek met barbecue. Het tuinhuis is voorzien van een nette houten vloer, elektriciteit en water, waardoor het uitstekend te gebruiken is als werkruimte, hobbyruimte of voor opslag. Aansluitend aan de overkapping bevindt zich een extra terras met zitruimte, beschut door een natuurlijke overkapping van vier prachtige platanen, waardoor een idyllische plek ontstaat om te ontspannen of gasten te ontvangen.
De tuin loopt door in een royale zijtuin, waar achterin een compact tuinhuis staat, ideaal voor gereedschap, fietsen of extra opslag, ook voorzien van elektriciteit. Over de gehele tuin ligt een prachtig gazon, afgewisseld met vaste planten, statige platanen en sfeervolle tuinverlichting. Een speels grindpad verbindt de verschillende terrassen en de ingang vanaf de zijkant van de woning, waar ook een wateraansluiting voor de tuinslang aanwezig is. De voortuin is volledig bestraat en biedt ruimte voor drie auto’s, inclusief een aansluiting voor elektrisch laden, waardoor zowel comfort als functionaliteit perfect samenkomen. Deze tuin combineert elegantie, praktisch gebruik en volop mogelijkheden om te genieten van buitenleven op elk moment van de dag.

OMGEVING
Uithoorn is een moderne en actieve gemeente met circa 29.250 inwoners. Het oudste gedeelte van Uithoorn is direct gelegen aan de rivier de Amstel en de haven biedt plaats aan grote en kleine boten. Winkels, restaurants en scholen zijn voldoende aanwezig.
Bereikbaarheid: gelegen ten zuiden van Amstelveen heeft Uithoorn een uitstekende bereikbaarheid. Uithoorn is gelegen op circa 20 minuten van Amsterdam en 30 minuten van Utrecht.

Interesse in dit huis? Schakel direct uw eigen NVM-aankoopmakelaar in.
Uw NVM-aankoopmakelaar komt op voor uw belang en bespaart u tijd, geld en zorgen.
Adressen van collega NVM-aankoopmakelaars in Utrecht vindt u op Funda.

Kenmerken

Air conditioning
Overdracht
Vraagprijs
€ 1.220.000 k.k.
Status
beschikbaar
Aanvaarding
in overleg
Bouw
Soort woonhuis
Herenhuis
Soort bouw
twee onder een kapwoning
Bouwjaar
2002
Energieklasse
A
Soort dak
mansarde dak
Slaapkamers
4
Badkamers
1
Oppervlakten en inhoud
Woonoppervlakte
231 m2
Overige inpandige ruimte
0 m2
Gebouwgebonden buitenruimte
18 m2
Externe bergruimte
15 m2
Inhoud
763 m3
Perceeloppervlakte
746 m2
faciliteiten
Mechanische ventilatie
Tv kabel
Buitenzonwering
Airconditioning
Rookkanaal
Schuifpui
Glasvezel kabel
Natuurlijke ventilatie
Aan rustige weg
In woonwijk
Beschutte ligging
Baerz & Co Property Brochure

Brochure

Video’s

Plattegronden

Korver makelaars

Stationsweg 12
3641RG Mijdrecht

welkom@korvermakelaars.nl
+31 297 25 04 21

www.korvermakelaars.nl

Informatie / bezichtigingsaanvraag

John Korver profile image
John Korver
Real estate agent

Een luxe woning kopen in Uithoorn

Uithoorn biedt een exclusieve gemeenschap, rustige natuur en deskundig eigendomsadvies. Het aantrekkelijke leefklimaat, investeringsperspectief en discrete internationale allure spreken veeleisende bewoners en investeerders aan.