ROTTERDAM
Berglustlaan 74 - 3054 BK
Nederland

€1.295.000 k.k.
Woonoppervlakte
172m2
Perceeloppervlakte
264m2
Slaapkamers
5

Omschrijving

Wat een plaatje! Een bijzonder karakteristiek herenhuis gelegen aan een van de mooiste lommerrijke lanen van Hillegersberg. Het woonhuis (2-onder-1-kap), gebouwd in 1929, is met veel liefde en aandacht bewoond door de huidige eigenaren, waardoor veel authentieke details behouden zijn gebleven en in uitstekende staat verkeren. De charme die het huis uitstraalt bij binnenkomst is alsof je een warm bad instapt. Wij waren in ieder geval op slag verliefd. Het herenhuis, gelegen op 264m2 eigen grond, excelleert op het gebied van duurzaamheid. Zo heeft de transitie naar gasloos wonen al plaatsgevonden en wordt het huis verwarmd door een geheel elektrische warmtepomp en is er waar mogelijk in begin 2026 HR++ dubbel glas geplaatst.

Overige sterke punten zijn de parkeergelegenheid (met laadpunt) op eigen terrein, een achtertuin met veel privacy, gezellige zitjes en voldoende zonuren. Het souterrain heeft net niet voldoende hoogte om als woonruimte te bestempelen, maar de meeste mensen ervaren deze verdieping wel degelijk als woonruimte. Deze verdieping leent zich uitermate goed als chillruimte voor kinderen, het uitoefenen van hobby’s, thuiswerkplek, logeerkamer, thuisbioscoop, etcetera.

De winkels van de Bergse Dorpsstraat zijn op loopafstand bereikbaar, evenals divers openbaar vervoer, het Schiebroeksepark en Bergse Bos en de recreatiegebieden rondom de Rotte. Speelpark Plaswijckpark, Natuurbad Het Zwarte Plasje, jachthavens, verschillende sportverenigingen zoals tennispark Plaswijck '62, hockeyclub Rotterdam en voetbal- en cricketvereniging VOC zijn binnen handbereik. Voorts zijn vele uitstekende scholen en kinderdagverblijven lopend of binnen enkele fiets- en/of autominuten te bereiken. De uitvalswegen A12, A13, A16 en A20 zijn goed bereikbaar.

Indeling
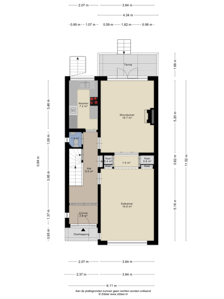
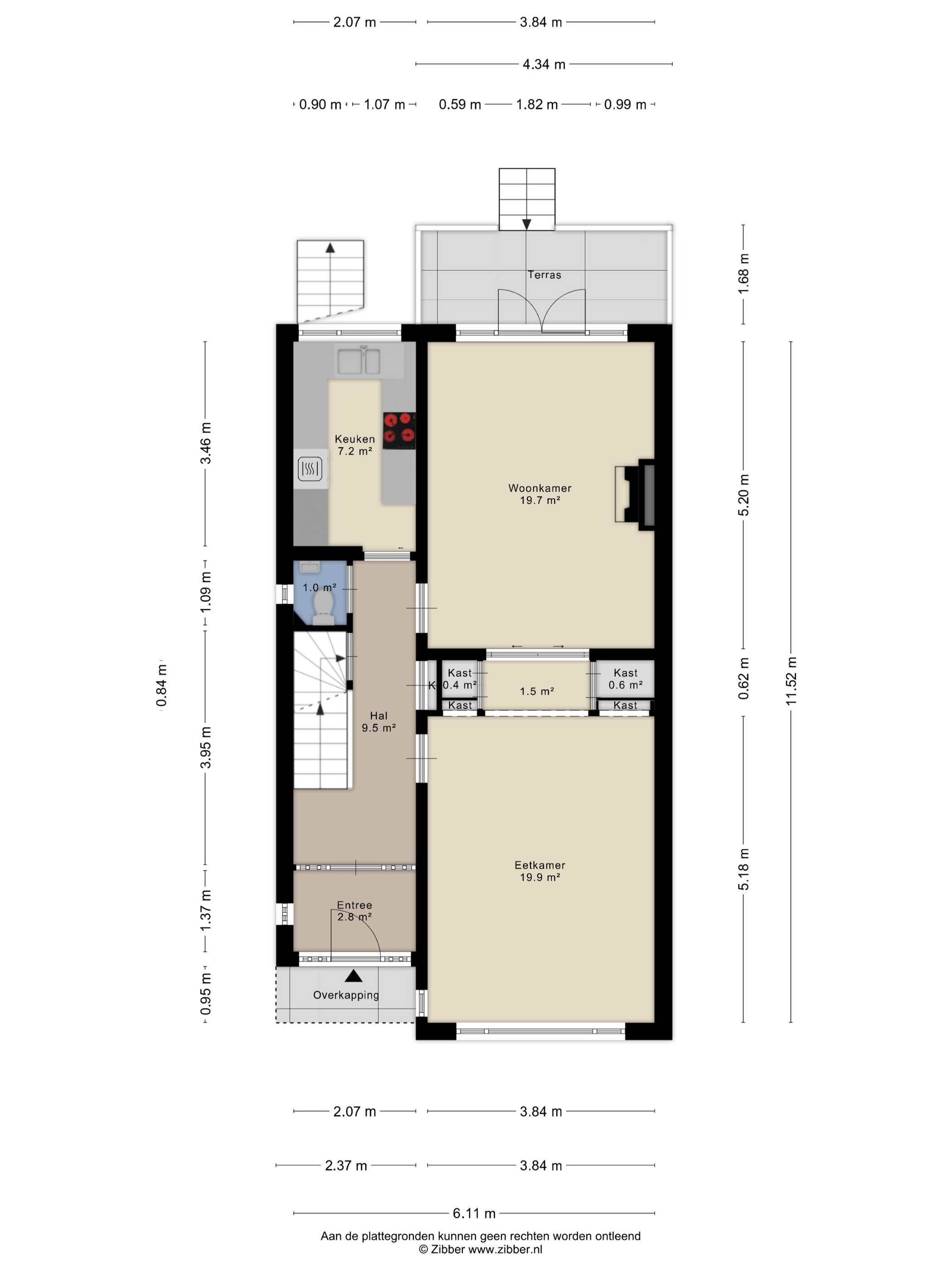
Begane grond:
Entree, vestibule met garderobe, hal met trapopgang en toiletruimte met fonteintje, dichte keuken v.v. U-opstelling en daardoor zeer efficiënt en de beschikking over veel werkblad en kastruimte, woonkamer en suite voorzien van de originele en suite schuifdeuren en vaste kasten, visgraat parketvloer, een romantische schouw van de gashaard (sinds kort niet meer bruikbaar i.v.m. gasloos wonen, maar eventueel is er een houtkachel te realiseren) en openslaande deuren naar de veranda die op haar beurt weer toegang verschaft tot de achtertuin.

Souterrain:
Een geweldige ruimte onder het gehele huis met een hoogte van ca. 190cm in de gang en in de kamers onder de balken ca. 175cm en tussen de balken ca. 198cm, bestaande uit een gang met opstelling wasmachine en droger met eveneens een toegang tot de achtertuin, een provisieruimte (ideaal voor een wijnkelder), 2 ruime kamers cq. hobbyruimtes die multifunctioneel inzetbaar zijn.

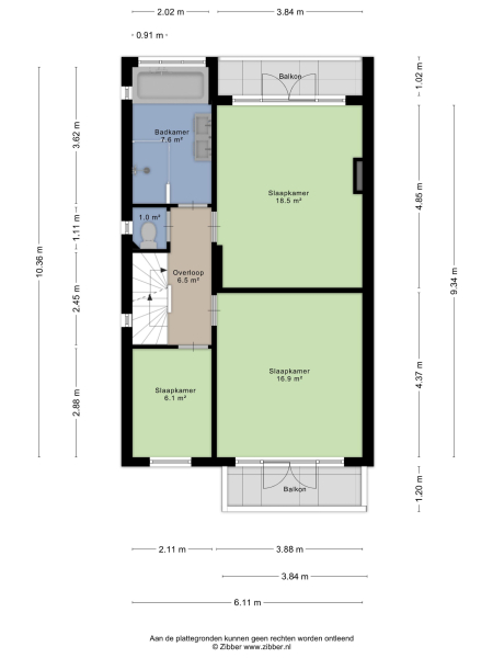
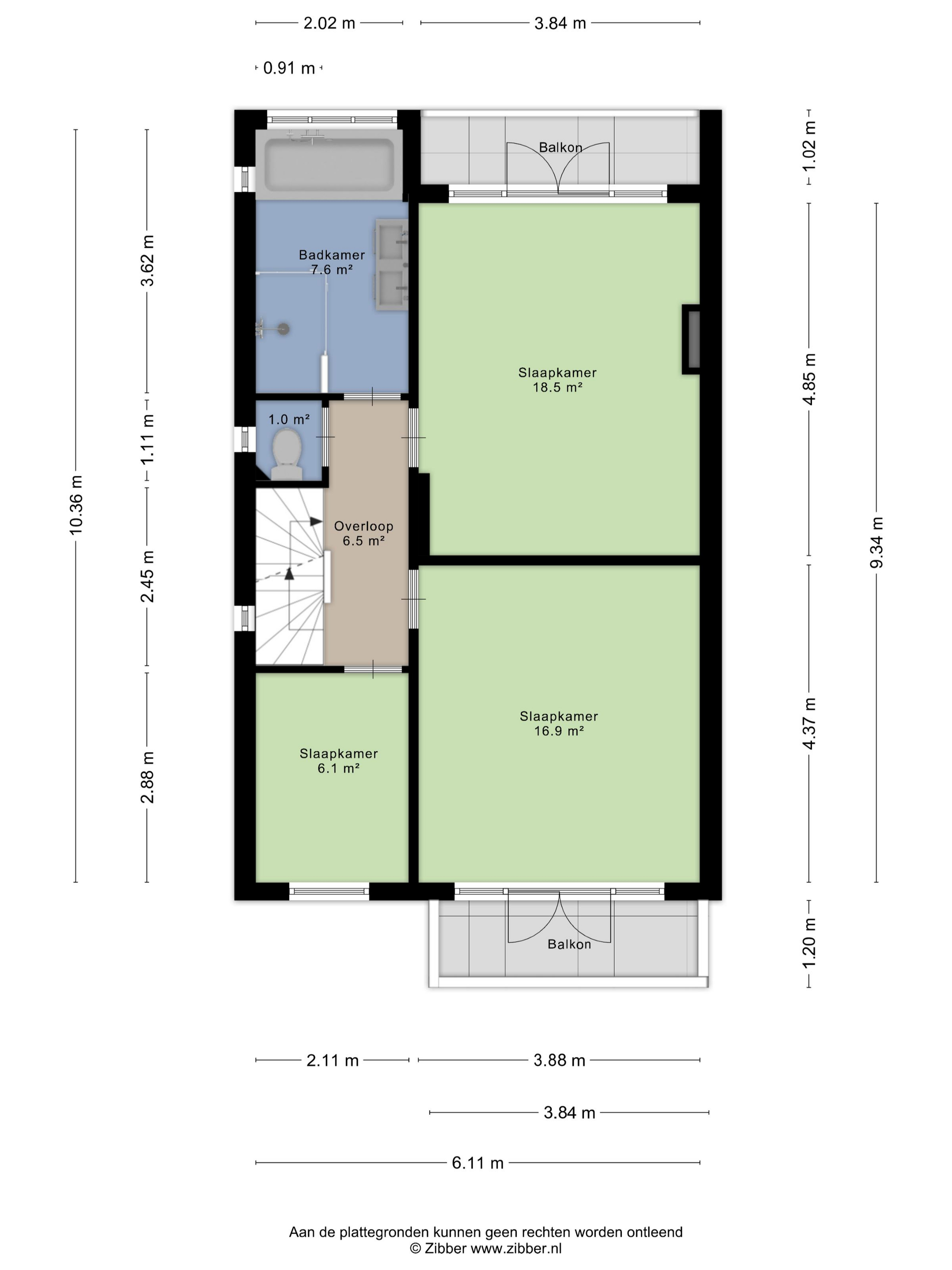
Eerste verdieping:
Overloop met toiletruimte, royale hoofdslaapkamer aan de achterzijde v.v. openslaande deuren naar het balkon, deze kamer heeft een uitstekende mogelijkheid voor het plaatsen van een vaste kastenwand, ruime slaapkamer voorzijde eveneens voorzien van openslaande deuren naar het balkon. Dit balkon biedt prachtige zichtlijnen over de lommerrijke Berglustlaan. Aan de voorzijde bevindt zich nog een kleinere slaapkamer die thans in gebruik is als kledingkamer. aan de achterzijde bevindt zich de badkamer v.v. ligbad, inloopdouche en wastafelmeubel met dubbele wastafel.

Tweede verdieping:
Overloop met veel daglicht, 2 ruime en leuke slaapkamers met dakkapellen en ieder een eigen wastafelmeubel, op de overloop bevindt zich de 2e badkamer cq. doucheruimte, 2 ruime bergruimtes onder de schuine kap.

Zolder:
Middels vaste trap toegankelijk, thans in gebruik als een sportruimte met dakramen die voor veel licht en ventilatie zorgen.

Achtertuin:
Ca. 10meter diep bij 11.3 meter breed, gelegen op het noordoosten. Door de diepte, breedte en de vrije ligging aan de westzijde beidt de achtertuin voldoende zonuren. De achtertuin is voorzien van diverse zitjes en beschikt over veel privacy.

Voortuin/zijtuin:
De voortuin is ca. 475cm diep bij 840cm breed en biedt ruimte voor parkeren (met laadpaal) op eigen terrein, eventueel zelfs met 1 grote en een kleinere auto. De voortuin is gelegen op het zuidwesten en heeft daarmee veel zonuren te bieden. De zijtuin is mooi breed en biedt ruimte voor stalling van fietsen etc. en er bevindt zich een berging.

Bijzonderheden;
- bouwjaar 1929
- gelegen op 264 m² eigen grond
- gebruiksoppervlak wonen ca. 172 m² (conform BBMI / NEN 2580)
- gebruiksoppervlak overig inpandige ruimte ca. 72 m² (conform BBMI / NEN 2580)
- gebruiksoppervlak gebouwgebonden buitenruimte ca. 10 m² (conform BBMI / NEN 2580)
- gebruiksoppervlak externe bergruimte ca. 5 m² (conform BBMI / NEN 2580)
- volledig voorzien van houten kozijnen, grotendeels voorzien van met dubbel glas en de overige ramen zijn v.v. voorzetramen
- verwarming en warm water d.m.v. elektrische warmtepomp uit december 2025
- energielabel C
- buitenzonwering (markiezen) voorgevel
- alarminstallatie aanwezig
- laadpaal voor elektrische auto aanwezig

Oplevering in overleg.

Voor aanvullende informatie over dit woonhuis kunt u de eigen website (adres+huisnummer) van het huis bezoeken.

J.J. van Oosten Makelaardij is de NVM-makelaar van de verkoper. Wij adviseren u uw eigen NVM-makelaar in te schakelen om uw belangen te behartigen bij de aankoop van dit object.

Aan deze aanbiedingstekst kunnen geen rechten worden ontleend. 

De gebruiksoppervlakte van de woning is opgemeten conform de branchebrede meetinstructie (BBMI). De BBMI is gebaseerd op de NEN2580. De BBMI is bedoeld om een meer eenduidige manier van meten toe te passen voor het geven van een indicatie van de gebruiksoppervlakte. De meetinstructie sluit verschillen in meetuitkomsten niet volledig uit, door bijvoorbeeld interpretatieverschillen, afrondingen of beperkingen bij het uitvoeren van de meting.

Kenmerken

Zonnepanelen
Overdracht
Vraagprijs
€ 1.295.000 k.k.
Status
beschikbaar
Aanvaarding
in overleg
Bouw
Soort woonhuis
Herenhuis
Soort bouw
twee onder een kapwoning
Bouwjaar
1929
Energieklasse
C
Soort dak
samengesteld dak
Slaapkamers
5
Badkamers
2
Oppervlakten en inhoud
Woonoppervlakte
172 m2
Overige inpandige ruimte
72 m2
Gebouwgebonden buitenruimte
10 m2
Externe bergruimte
5 m2
Inhoud
864 m3
Perceeloppervlakte
264 m2
faciliteiten
Mechanische ventilatie
Tv kabel
Buitenzonwering
Rookkanaal
Glasvezel kabel
Zonnepanelen
Natuurlijke ventilatie
In woonwijk
Baerz & Co Property Brochure

Brochure

Video’s

Plattegronden

J.J. Van Oosten Makelaardij BV

Straatweg 225
3054 AG Rotterdam

info@vanoostenmakelaardij.nl
+31 10 422 11 00

www.vanoostenmakelaardij.nl

Informatie / bezichtigingsaanvraag

Joris van Oosten profile image
Joris van Oosten
Real estate agent

Een luxe woning kopen in Rotterdam

Rotterdam biedt verfijnd stedelijk wonen voor een internationale doelgroep, met uitzonderlijke mogelijkheden op cultureel, zakelijk en maatschappelijk vlak. Inwoners profiteren van eersteklas service, kenmerkende woningen en een wereldwijd verbonden stedelijk leefklimaat.