OEGSTGEEST
Zandbergenstraat 14 - 2341 GW
Nederland

Michiel de Jong RM profile image
Michiel de Jong RM
NVM Register Makelaar - Partner
€1.585.000 k.k.
Woonoppervlakte
210m2
Perceeloppervlakte
279m2
Slaapkamers
5

Omschrijving

Zeer ruime, karaktervolle en moderne halfvrijstaande villa in hartje ‘Oud’ Oegstgeest

In 2020 verrees op het voormalige terrein van voetbalvereniging ASC, midden in het geliefde Oud Oegstgeest, de kleinschalige nieuwbouwwijk Park Duivenvoorde. Een groene woonomgeving met de uitstraling van de jaren ’30: ruime kavels, fraaie architectuur en veel variatie in stijl, dakvormen en kleurgebruik. Inmiddels is het een van de meest gewilde locaties van Oegstgeest – en precies hier staat deze prachtige halfvrijstaande villa.

Deze villa combineert ruimte, comfort en duurzaamheid met een uitzonderlijke afwerkingskwaliteit. Enkele highlights:
• Duurzaam & energiezuinig: uitstekend geïsoleerd, energielabel A en voorzien van 16 zonnepanelen.
• Praktisch & comfortabel: eigen oprit en ruime garage, mét mogelijkheid tot opladen van een elektrische auto op eigen terrein.
• Hoogwaardige afwerking: eerste bewoning in 2021; de woning voelt nog als nieuw.

Een groot pluspunt: u woont hier in een moderne nieuwbouwwoning, maar toch midden in het charmante oude centrum van Oegstgeest. Op loopafstand vindt u de gezellige winkels van de De Kempenaerstraat, basisschool GDT en diverse horeca. Ook sportaccommodaties, scholen, het Leidse Hout, Leiden Centraal, ziekenhuizen en het centrum van Leiden liggen op korte fietsafstand. Daarnaast bent u snel op de A4/A44, bij de Kagerplassen of op de stranden van Katwijk, Noordwijk en Wassenaar.

Indeling
• Begane grond: entree, ruime hal met modern toilet en garderobekast onder de trap. Aan de voorzijde de lichte en ruime L-vormige woonkamer. Aan de achterzijde de riante woonkeuken met kookeiland en luxe inbouwapparatuur (dubbele oven, wijnklimaatkast, fornuis met Bora-afzuigsysteem, Quooker) met twee keer openslaande deuren naar de tuin.
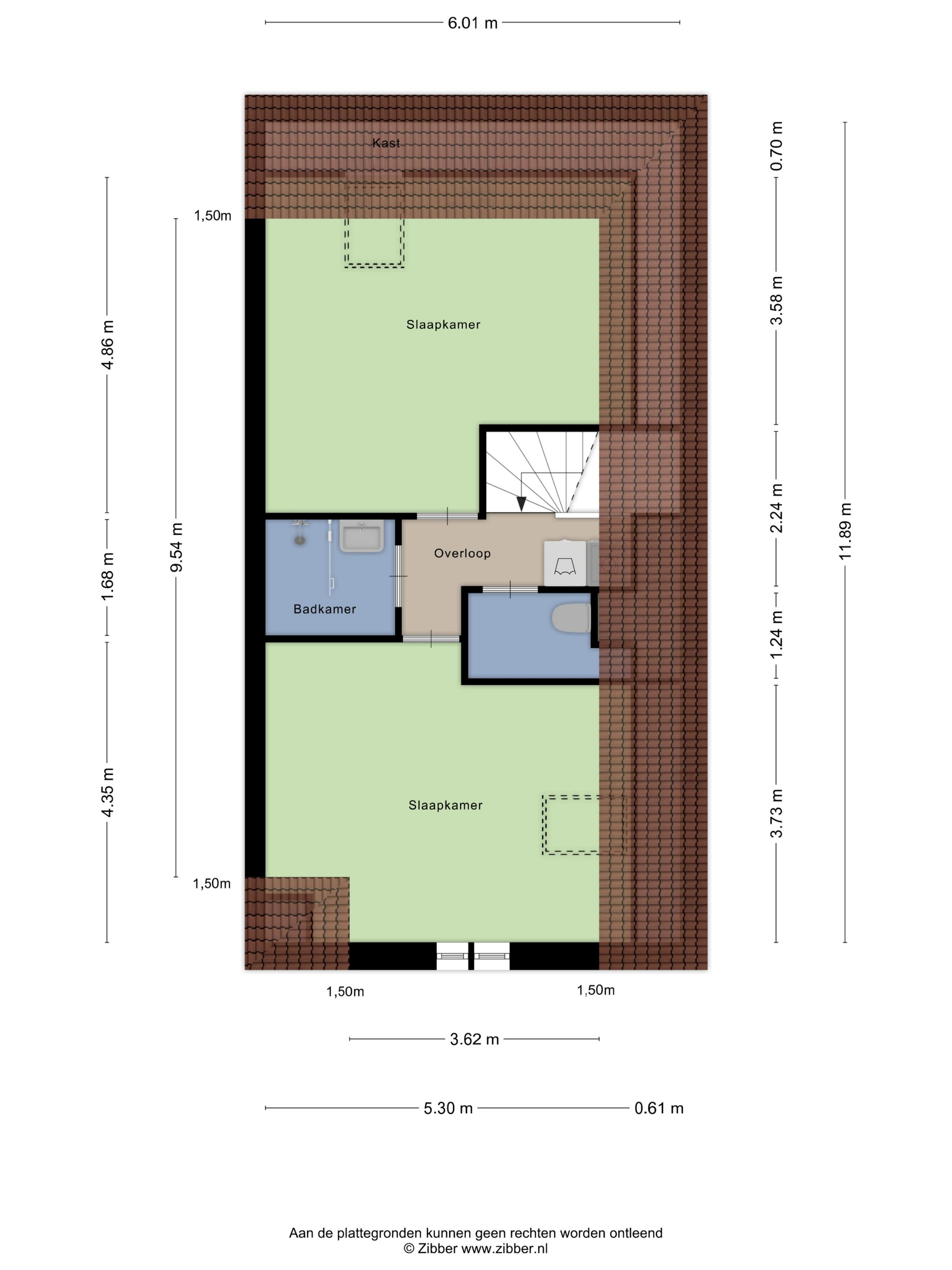
• Eerste verdieping: royale overloop met separaat toilet. Luxe badkamer met inloopdouche, ligbad en dubbele wastafel. Aan de achterzijde de zeer ruime master bedroom met inloopkast. Aan de voorzijde twee ruime slaapkamers.
• Tweede verdieping: overloop met wasruimte, separaat toilet en CV-opstelling. Tweede moderne badkamer met inloopdouche en wastafel. Verder twee bijzonder ruime en sfeervolle slaapkamers.
De zonnige achtertuin beschikt over een gezellig tuinhuis, ideaal voor lange zomeravonden.

Kenmerken

• Woonoppervlakte ca. 210 m²
• Perceelgrootte ca. 279 m²
• Oplevering: januari 2027 (i.v.m. nieuwbouw)

Kortom: een royale, duurzame gezinsvilla op een absolute toplocatie in Oegstgeest – beslist een bezichtiging waard!

Kenmerken

Zonnepanelen
Alarm system
Overdracht
Vraagprijs
€ 1.585.000 k.k.
Status
beschikbaar
Aanvaarding
in overleg
Bouw
Soort woonhuis
Eengezinswoning
Soort bouw
twee onder een kapwoning
Bouwjaar
2020
Energieklasse
A
Soort dak
samengesteld dak
Slaapkamers
5
Badkamers
2
Oppervlakten en inhoud
Woonoppervlakte
210 m2
Overige inpandige ruimte
23 m2
Inhoud
825 m3
Perceeloppervlakte
279 m2
faciliteiten
Mechanische ventilatie
Alarminstallatie
Dakraam
Glasvezel kabel
Zonnepanelen
Aan rustige weg
In woonwijk
Baerz & Co Property Brochure

Brochure

Video’s

Graal Makelaardij

Rapenburg 4
2311 EV Leiden

info@graalmakelaardij.nl
+31 (0)71 51 61 000

www.graalmakelaardij.nl

Informatie / bezichtigingsaanvraag

Michiel de Jong RM profile image
Michiel de Jong RM
NVM Register Makelaar - Partner

Een luxe woning kopen in Oegstgeest

Oegstgeest biedt een verfijnde levensstijl, gekenmerkt door privacy, cultuur en hoogwaardige voorzieningen. De internationale gemeenschap, rijke tradities en luxueus aanbod trekken mensen aan die rust, elegantie en blijvende waarde zoeken nabij Nederlandse stadscentra.