NOOTDORP
Oudeweg 78 - 2631 PB
Nederland

Jan Paul van Daal profile image
Jan Paul van Daal
Real estate agent
€995.000 k.k.
Woonoppervlakte
167m2
Perceeloppervlakte
2610m2
Slaapkamers
6

Omschrijving

Wonen in het groen, leven met ruimte en mogelijkheden.
Wij zoeken een enthousiaste koper die zin en de mogeljkheden heeft om dit project aan te pakken en het weer te herstellen in de originele glorie !

Aan de rustige rand van Nootdorp, direct grenzend aan het natuur en recreatiegebied de Dobbeplas, ligt deze vrijstaande woning op een royaal perceel van 2.610 m² eigen grond. Een unieke plek waar rust, natuur en vrijheid samenkomen.

De woning is zeer gedateerd, maar biedt volop potentie voor wie op zoek is naar ruimte, karakter, maar ook een verbouwings- of renovatie project in een landelijke woonomgeving.

De genoemde vraagprijs is een zogenaamde 'vanaf' - prijs.

Een plek met karakter en historie
Deze charmante woning ademt het buitenleven. Vanuit de tuin kijkt u uit over de Dobbeplas en ziet u de historische korenmolen Windlust in de verte. Een locatie waar het verleden voelbaar is en waar u de ruimte heeft om uw woonwensen te realiseren.

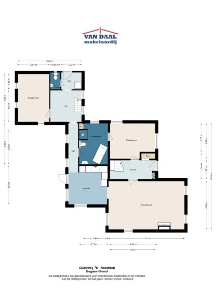
Indeling van de woning

Begane grond
Bij binnenkomst valt direct de huiselijke sfeer op. De woonkamer is sfeervol, licht en ruim, en de keuken biedt uitzicht op de tuin. Verder vindt u op de begane grond twee slaapkamers, een royale badkamer, separaat toilet en een tweede badkamer.

Eerste verdieping
Op de bovenverdieping bevinden zich drie slaapkamers, elk met een eigen uitstraling. Geschikt voor een gezin met kinderen, logés of als hobbyruimte.

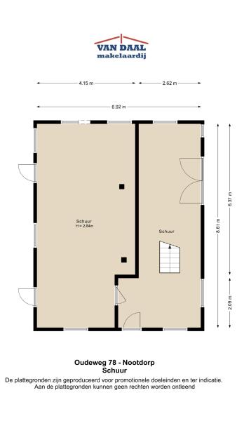
Buitenleven op eigen erf
Wat deze woning extra bijzonder maakt, zijn de bijgebouwen en de mogelijkheden die ze bieden. De ruime schuur is geschikt als werkplaats, opslag of atelier. De stal en dierenweide geven volop ruimte voor het houden van dieren. De grote kavel biedt vrijheid en flexibiliteit: een buitenleven waar velen van dromen.

Wonen én ondernemen
Naast comfortabel wonen biedt deze locatie ook ruimte voor kleinschalige bedrijvigheid. Binnen het gemeentelijk beleid zijn er mogelijkheden om een bed & breakfast te realiseren. Zo combineert u wonen met gastvrijheid en ondernemerschap.

Ligging
De woning ligt aan de rand van Nootdorp, direct aan het natuur en recreatiegebied de Dobbeplas. Binnen enkele minuten bereikt u de A4 en A13 richting Den Haag, Delft, Rotterdam en Zoetermeer. Winkels, scholen en openbaar vervoer liggen in de nabije omgeving. Een unieke combinatie van landelijk wonen en stedelijke bereikbaarheid.

Een kans om uw woonwensen waar te maken
Deze woning biedt niet alleen een fijne leefomgeving, maar ook de mogelijkheid om uw eigen ideeën te realiseren: van een bed & breakfast tot een moestuin, dieren houden of gewoon genieten van rust en ruimte.

Kenmerken
- Woonoppervlakte circa 162 m²;
- Bouwperiode 1906 – 1930;
- Energielabel G;
- Verwarming is hetelucht verwarming met een verouderde, maar goed functionerende ketel.
- Warm water via zonnecollector;
- Oud pand - en materialen clausule van toepassing;
- Gastank met contract aanwezig op het perceel;
- Electrische boiler ten behoeve van warmwater;
- Er is een bouwkundig rapport beschikbaar voor belangstellenden.

Oplevering in overleg

Wilt u deze bijzondere plek zelf ervaren? Neem contact op met de makelaar en plan een bezichtiging. U bent van harte welkom. Schakel uw eigen NVM-aankoopmakelaar in. Zij komen op voor uw belang en bespaart u tijd, geld en zorgen.
Adressen van collega NVM-aankoopmakelaars in Haaglanden vindt u op Funda.

Kenmerken

Overdracht
Vraagprijs
€ 995.000 k.k.
Status
beschikbaar
Aanvaarding
in overleg
Bouw
Soort woonhuis
Landhuis
Soort bouw
vrijstaande woning
Energieklasse
G
Soort dak
zadeldak
Slaapkamers
6
Badkamers
1
Oppervlakten en inhoud
Woonoppervlakte
167 m2
Overige inpandige ruimte
0 m2
Gebouwgebonden buitenruimte
38 m2
Externe bergruimte
682 m2
Inhoud
590 m3
Perceeloppervlakte
2610 m2
faciliteiten
Vrij uitzicht
Open ligging
Landelijk gelegen
Baerz & Co Property Brochure

Brochure

Van Daal Makelaardij

Voldersgracht 33
2611 ED Delft

janpaul@vandaalmakelaardij.nl
+31 (0)15 - 212 73 00

www.vandaalmakelaardij.nl

Informatie / bezichtigingsaanvraag

Jan Paul van Daal profile image
Jan Paul van Daal
Real estate agent

Een luxe woning kopen in Nootdorp

Nootdorp biedt verfijnd wonen, een kosmopolitische gemeenschap en toegang tot hoogwaardige voorzieningen. Het stabiele leefklimaat en de hoogwaardige dienstverlening trekken internationale kopers aan die op zoek zijn naar een elegant en blijvend aantrekkelijk thuis.