LEIDEN
Nieuwe Rijn 17 - 2312 JC
Nederland

Michiel de Jong RM profile image
Michiel de Jong RM
NVM Register Makelaar - Partner
€1.995.000 k.k.
Woonoppervlakte
437m2
Perceeloppervlakte
273m2
Slaapkamers
7

Omschrijving

Wonen aan de voet van de burcht in een historisch pand met royale tuin en zeer veel woonoppervlak.

Langs het water van de Rijn aan de voet van de burchtheuvel ligt dit toonbeeld van de 17e-eeuwse rijkdom. Zoals gebruikelijk in die tijd was het aangezicht van de gevel bescheiden, bijna zelfs ingetogen. Binnen werd dit echter ruimschoots gecompenseerd. De welvaart werd uitbundig getoond: rijk versierde natuurstenen haardpartijen en weelderig stucwerk sieren de begane grond. Hier werden immers de gasten ontvangen en moest men imponeren. Ondanks dat de eeuwen inmiddels voorbij zijn gestreken is veel van de oorspronkelijke rijkdom van dit pand behouden en heeft de huidige eigenaar het geheel gemoderniseerd. Daarbij kenmerken de etages en het achterhuis zich door grote en hoge vertrekken, waar zware eikenhouten balken en een imposante kapconstructies met grote en hoge raampartijen voor licht en uitzicht zorgen.

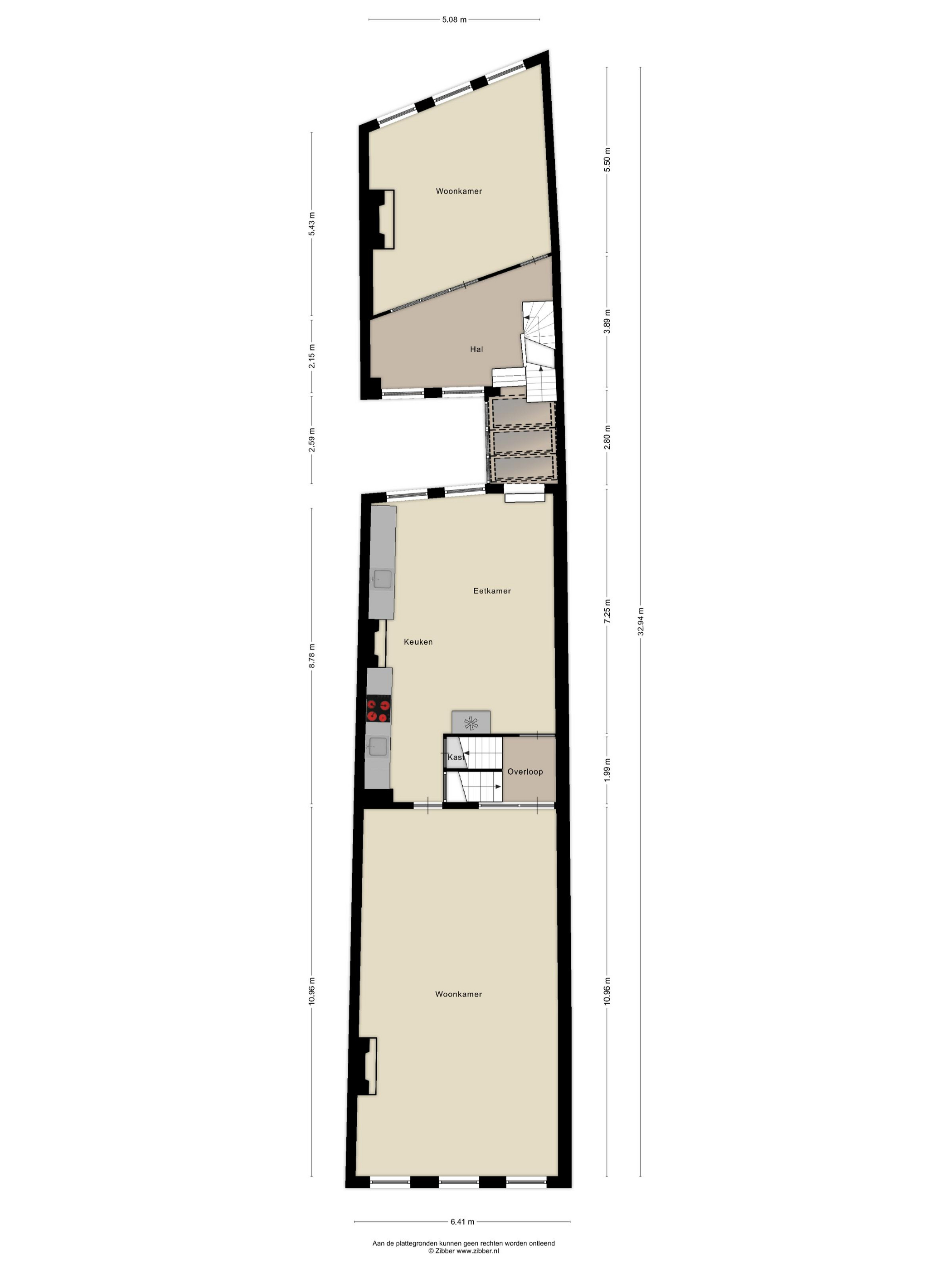
Het voorhuis is het oorspronkelijke hoofdhuis. Op de begane grond is een winkel gevestigd (kan in verhuurde staat worden gekocht) en hier vindt je nu op de 1e etage de woonkamer van maar liefst 70 m² van waar je uitkijkt over de Rijn en het Stadhuisplein. Aan de achterzijde ligt de woonkeuken met ruimte. Veel ruimte. Met 50 m², lange werkbladen en een eettafel met plek voor 12 is dit nu het hart van het huis. Vanuit hier is ook een van de doorgangen naar het achterhuis langs de binnenplaats wat voor veel lichtinval zorgt. Een etage hoger zijn de slaapverdiepingen. Hier is de woning afgepeld tot de structuur met de prachtige houten sporenkap vol in het zicht. Tussen de sporen zijn hoge Velux ramen aangebracht die zorgen voor een fraaie lichtinval op elk moment van de dag. Aan voorzijde vindt je verdeeld over twee verdiepingen drie slaapkamers, een badkamer en vooral veel bergruimte met inbouwkasten en een linnenkamer. Aan achterzijde beslaat de master bedroom met badkamer ensuite de gehele kap met een nok van maar liefst 8 meter hoog.

Het achterhuis is gericht op de tuin en de burchtheuvel. Vanuit de verschillende ruimtes zie je het oude onderkomen van de Burggraaf door mooie hoge raampartijen: een 800 jaar oude oase van groen midden in de binnenstad. Hier heeft de huidige eigenaar op de begane grond een tuinkamer met daarbij een extra keuken. Deze heb je ook wel nodig, want om elke keer het hele pand weer door te moeten voor een hapje of drankje als je in de tuin zit is wel wat veel gevraagd. Het zijn nogal afstanden die je hier kan afleggen. Op de 1e etage bevindt zich nu een tweede woonkamer. met hoge plafonds, een haard en het beste zicht op de Burcht. Het zou ook een heerlijk kantoor of een bibliotheek kunnen zijn. Boven is een apart gastenverblijf met eigen badkamer en wc. Een au pair zou hier ook een heel fijn plekje kunnen hebben.

Stap je de voordeur uit, dan sta je midden in het hart van het middeleeuwse en bruisende centrum van Leiden: terrassen, de markt, voorbijvarende bootjes. musea, restaurants. Werkelijk alles ligt op loopafstand. Scholen, sportclubs en andere activiteiten zijn op korte afstand met de fiets te bereiken, net als Leiden Centraal. Voor de auto krijg je in de binnenstad een vergunning. Je kan hem niet direct voor de deur kwijt, maar in de ochtenden en avonden kan je wel even voorrijden. Parkeren kan prima iets verderop en bezoek kan in één van de parkeergarages in de buurt parkeren.
BIJZONDERHEDEN

- Rijksmonument
- Gelegen in beschermd stadsgezicht
- Ouderdomsclausule van toepassing
- Bestemming: centrum
- Huurcontract winkel t/m 30-11-2027

WINKEL

De begane grond van het voorhuis is verhuurd aan een winkel met huurcontract tot eind 2027 met een jaarlijkse huuropbrengst van circa € 40.000,- incl. btw. Deze winkel wordt voor verkoop afgesplitst van de woning, maar kan tevens worden gekocht. De vraagprijs voor de winkel in verhuurde staat bedraagt € 375.000,- k.k.

Kenmerken

Overdracht
Vraagprijs
€ 1.995.000 k.k.
Status
beschikbaar
Aanvaarding
in overleg
Bouw
Soort woonhuis
Grachtenpand
Soort bouw
tussenwoning
Bouwjaar
1650
Soort dak
zadeldak
Slaapkamers
7
Badkamers
3
Oppervlakten en inhoud
Woonoppervlakte
437 m2
Overige inpandige ruimte
31 m2
Inhoud
1659 m3
Perceeloppervlakte
273 m2
faciliteiten
Mechanische ventilatie
Rookkanaal
Dakraam
Glasvezel kabel
Aan water
In centrum
Vrij uitzicht
Aan vaarwater
Baerz & Co Property Brochure

Brochure

Video’s

Plattegronden

Graal Makelaardij

Rapenburg 4
2311 EV Leiden

info@graalmakelaardij.nl
+31 (0)71 51 61 000

www.graalmakelaardij.nl

Informatie / bezichtigingsaanvraag

Michiel de Jong RM profile image
Michiel de Jong RM
NVM Register Makelaar - Partner

Een luxe woning kopen in Leiden

Leiden biedt uitzonderlijk erfgoed, dynamische cultuur en een gericht dienstverleningsniveau, waardoor het een aantrekkelijke omgeving wordt voor internationale bewoners. Met verfijnde woningen, een vitale academische traditie en discrete luxe biedt deze grachtenstad een geraffineerde levensstijl voor een internationale gemeenschap.