Villa te koop in LANDSMEER

LANDSMEER Kanaaldijk 96 - 1121 NZ Nederland


Niels Eering profile image
Niels Eering
Real Estate Agent
+020 2050208
info@11makelaars.nl

11 Makelaars - Waterland
Nieuwe Gouw 10-12
1121 GX Landsmeer
NETHERLANDS
+31 20 20 50 208
www.11makelaars.nl
info@11makelaars.nl

Woonoppervlakte
208m2
Perceeloppervlakte
725m2
Slaapkamers
3

Omschrijving

Kanaaldijk 96 te Landsmeer

Bel nu voor het opvragen van een brochure of voor het maken van een afspraak van deze schitterende villa met guesthouse en buitenzwembad! Op korte fietsafstand van de Noord-Zuidlijn!

Gelegen tussen de weilanden van het Landsmeerderveld en het Noord-Hollands kanaal ligt dit rijk afgewerkte vrijstaande woonhuis. Het weidse uitzicht over de weilanden verveelt nooit. Hangend aan de rand van je zwembad of met een mooi glas wijn in je hand in de woonkeuken, zijn de mooiste zonsondergangen een deel van je dagelijkse leven. Rust en privacy heb je volop. De handzame kavel EIGEN GROND meet 725 m2, waar de woning perfect op is gesitueerd. Wat naar achter geplaatst, zodat je meerdere auto's op eigen terrein te parkeren. Achter je elektrische hek met poort.
Het guesthouse is een echte bonus. Compact en luxe en direct in/aan de woning. Ook ideaal voor een au pair, inwonend kind of kantoor aan huis. Zelf B&B is hier toegestaan, 365 dagen per jaar.

Indeling:
Ruime entree met vide (en daardoor een hoog plafond) met op maat gemaakte stalen taatsdeuren van brons edelmetaal, die toegang geven tot de living. De living -met fraaie Frans eiken balken- is ronduit licht, mede door de royale raampartijen en grote schuifpuien. Centraal staat de open haard met dubbele glas openingen. Zowel in de living als in de woonkeuken, kan je menig avond warm en sfeervol doorbrengen met een haardvuur. Deze woonkeuken is ronduit blits. Uitgerust met een kookeiland en meubelwand met inbouwapparatuur. Een keuken met veel kastruimte en goede kwaliteit apparaten waaronder Miele inbouwapparatuur, een Quooker en kranen van het merk Hotbath Cobber. Het neerzetten van een grote eettafel voor de hele familie kan in het eetgedeelte aan de achterzijde van de woning, waar je uitkijkt over het zwembad en de weilanden.

De inpandige berging / bijkeuken van circa 14 m², met witgoed aansluitingen.

De gehele begane grond verdieping is voorzien van een gevlinderde gietbeton vloer met vloerverwarming.
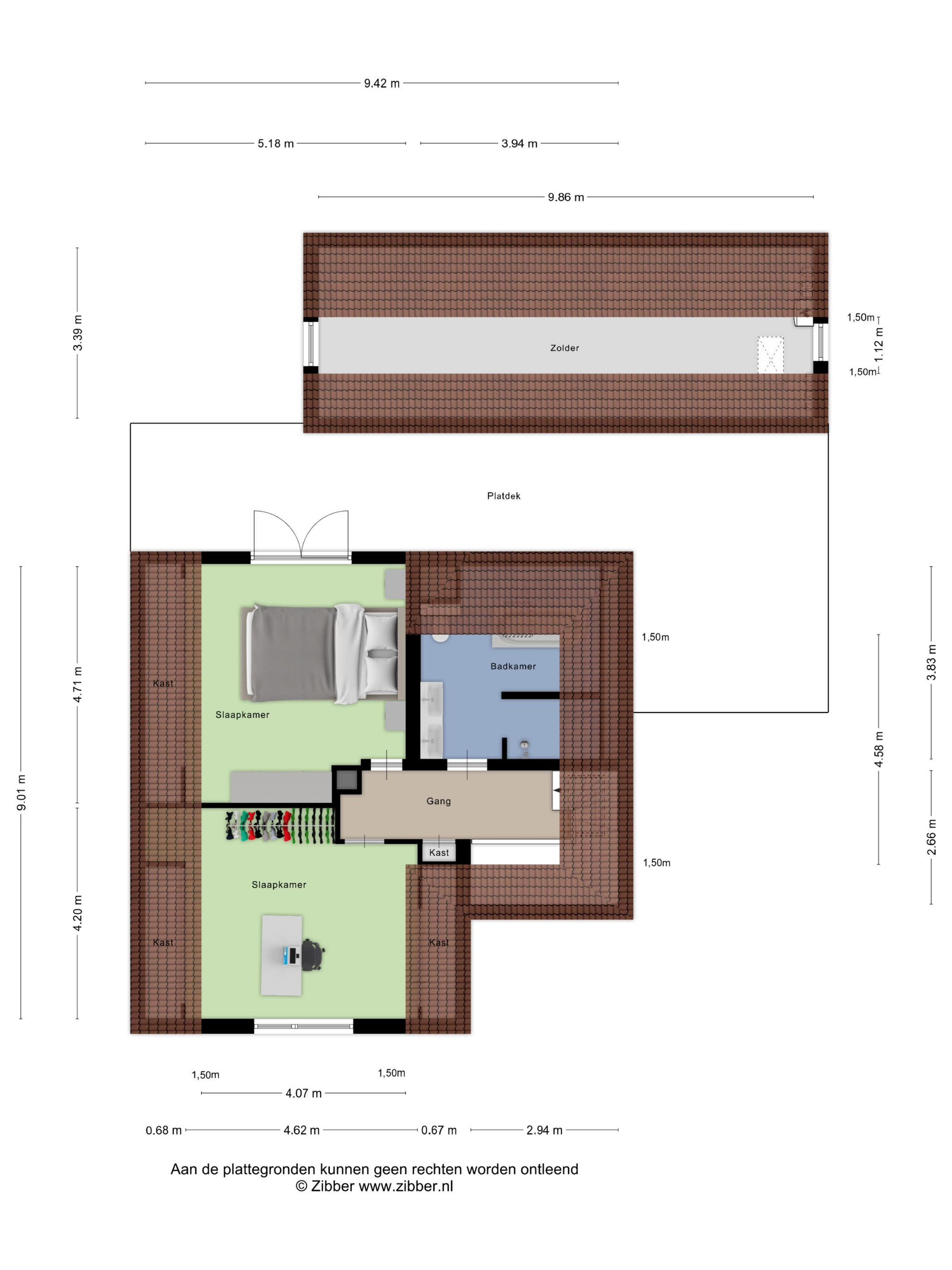
Guesthouse: zowel toegankelijk vanaf de voorzijde, alsook binnendoor. Voorzien van een eigen woonkamer, comfortabele slaapkamer en een prachtige (2e) badkamer.

1e verdieping:
Hier tref je twee goed bemeten slaapkamers en een moderne badkamer. De masterbedroom met airconditioning aan de achterzijde is voorzien van dubbele deuren en heeft (ook hier) een prachtig vrij uitzicht.

De luxe badkamer heeft een vrijstaand bad, een grote inloopdouche, een dubbele wastafel en Hotbath Cobber kranen.

De tuin met het verwarmde zwembad geeft de mogelijkheid om het hele jaar door een verfrissende duik te nemen, ongeacht het weer. Het zwembad is omgeven door een fraai aangelegd terras, ideaal voor loungen, zonnebaden of het ontvangen van familie en vrienden voor een barbecue. Het zwembad en de terrassen liggen rustig achter de woning en geeft veel privacy. Ideaal op de zon!

Noemenswaardig:
- Schitterende villa met guesthouse en zwembad
- 3 slaapkamers / 2 badkamers
- Gunstige ligging, op fietsafstand van de Noord-/Zuidlijn
- Centrum Landsmeer, met veel winkelvoorzieningen nabij
- Weids uitzicht over de weilanden / Landsmeerderveld.
- 725 m2 perceel, EIGEN GROND
- Meerdere auto's parkeren op eigen erf, elektrisch hek
- Guesthouse, ook te gebruiken als generatiewoning, kantoor of B&B
- Ringweg A10 Amsterdam op slechts enkele autominuten afstand
- Goede ligging t.o.v. natuur-/recreatiegebied Het Twiske
- Energielabel A++: 37 (!) Zonnepanelen
- Buitenzwembad met verwarming en verlichting
Kanaaldijk 96, Landsmeer

Call now to request a brochure or schedule a viewing of this stunning villa with a guesthouse and outdoor swimming pool! Located within a short biking distance from the North-South Metro line.

Nestled amidst the meadows of the Landsmeerderveld and the North Holland Canal, this beautifully finished detached home offers unparalleled charm. The sweeping views of the meadows never cease to amaze. Whether relaxing by your poolside or enjoying a fine glass of wine in the open-plan kitchen, breathtaking sunsets become a part of your daily life. Peace and privacy abound here.

The manageable private plot of 725 m² is perfectly utilized. The house is slightly set back, allowing ample space to park multiple cars on your property behind an electric gate with a driveway.

The guesthouse is a true bonus: compact yet luxurious and directly connected to the main house. It’s perfect for an au pair, a live-in child, or a home office. Operating it as a B&B is also allowed, year-round.
Layout

Ground Floor:
A spacious entrance with a mezzanine (creating a high ceiling) and custom-made steel pivot doors in bronze metal that lead to the living room. The living room, featuring beautiful French oak beams, is bright and airy thanks to the large windows and sliding glass doors. At its heart is an open fireplace with double-sided glass, creating a cozy atmosphere in both the living room and the kitchen.

The open-plan kitchen is sleek and modern, equipped with a cooking island and built-in appliances. With ample storage and high-quality appliances, including Miele built-ins, a Quooker tap, and Hotbath Cobber faucets, it’s designed for culinary enthusiasts. The dining area at the rear of the house is ideal for a large family table, offering stunning views of the pool and surrounding meadows.

The indoor storage/laundry room (approximately 14 m²) is equipped with connections for appliances. The entire ground floor features a polished concrete floor with underfloor heating.

Guesthouse: Accessible from both the exterior and interior of the main house, the guesthouse includes its own living room, comfortable bedroom, and a beautiful (second) bathroom.

First Floor:
Here you’ll find two spacious bedrooms and a modern bathroom. The master bedroom, located at the rear, comes with air conditioning, double doors, and a magnificent panoramic view. The luxurious bathroom includes a freestanding bathtub, a large walk-in shower, double sinks, and Hotbath Cobber faucets.

Garden:
The heated swimming pool allows for refreshing swims year-round, regardless of the weather. It is surrounded by a beautifully landscaped terrace, perfect for lounging, sunbathing, or hosting barbecues with family and friends. Located behind the house, the pool area is tranquil and private, perfectly positioned to catch the sun.

Noteworthy Features:

- Stunning villa with guesthouse and pool
- 3 bedrooms / 2 bathrooms
- Convenient location, biking distance from the North-South Metro line
- Close to Landsmeer town center with ample shopping options
- Panoramic views over the meadows and Landsmeerderveld
- 725 m² plot of private land
- Parking for multiple cars on-site, electric gate access
- Versatile guesthouse: ideal for multi-generational living, office, or B&B
- A10 ring road Amsterdam just minutes away by car
- Close to nature/recreation area Het Twiske
- Energy label A++: 37 (!) solar panels
- Heated and illuminated outdoor swimming pool

Kenmerken

Overdracht
Vraagprijs
€ 1.385.011 k.k.
Status
beschikbaar
Aanvaarding
in overleg
Bouw
Soort woonhuis
Villa
Soort bouw
vrijstaande woning
Bouwjaar
1984
Energieklasse
A_PP
Soort dak
samengesteld dak
Slaapkamers
3
Badkamers
2
Oppervlakten en inhoud
Woonoppervlakte
208 m2
Overige inpandige ruimte
11 m2
Gebouwgebonden buitenruimte
3 m2
Externe bergruimte
8 m2
Inhoud
815 m3
Perceeloppervlakte
725 m2
faciliteiten
Mechanische ventilatie
Zwembad
Airconditioning
Rookkanaal
Schuifpui
Zonnepanelen
Aan water
Vrij uitzicht
Open ligging
Aan vaarwater
Landelijk gelegen
Baerz & Co Property Brochure

Brochure

Informatie / bezichtigingsaanvraag

Video's

Foto's

Plattegronden