KATWIJK
Mallebrugge 1 - 2223 BV
Nederland

Frits Wilbrink profile image
Frits Wilbrink
Real estate agent
€1.795.000 k.k.
Woonoppervlakte
275m2
Perceeloppervlakte
710m2
Slaapkamers
6

Omschrijving

Uniek in Katwijk.

Rustig gelegen, duurzame villa aan vaarwater met eigen insteekhaven.
Ontdek deze heerlijk comfortabele villa die in 2017 grondig is verbouwd en waar luxe en comfort samenkomen op een prachtige locatie aan het water. Met een eigen insteekhaven, een royale garage en hoogwaardige afwerking is dit een zonnig familiehuis voor wie ruimte, rust en privacy willen combineren.
• Grote lichte woonkamer
• Royale woonkeuken
• Souterrain/ hobbyruimte
• 6 ruime slaapkamers + 2 badkamers
• Eigen insteekhaven
• Energielabel A+

Bouwjaar 2005/2017, woonoppervlakte 275m2, inhoud 1.082m3, perceel 710m2

We nemen je mee…
Gelegen in een rustige buurt met genoeg parkeerruimte.
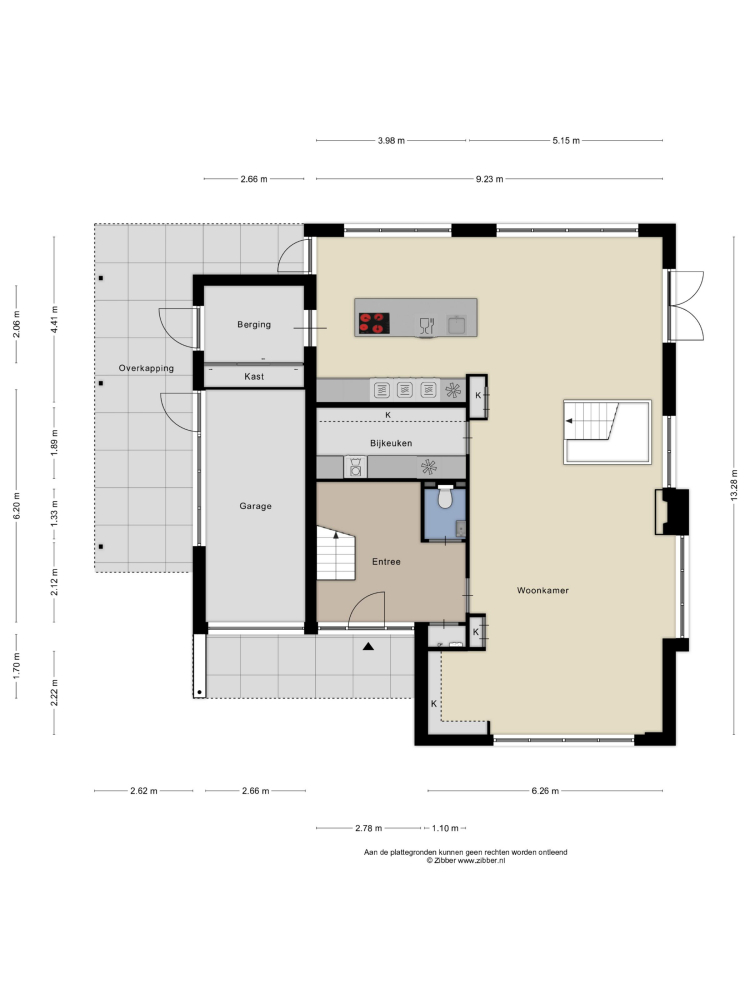
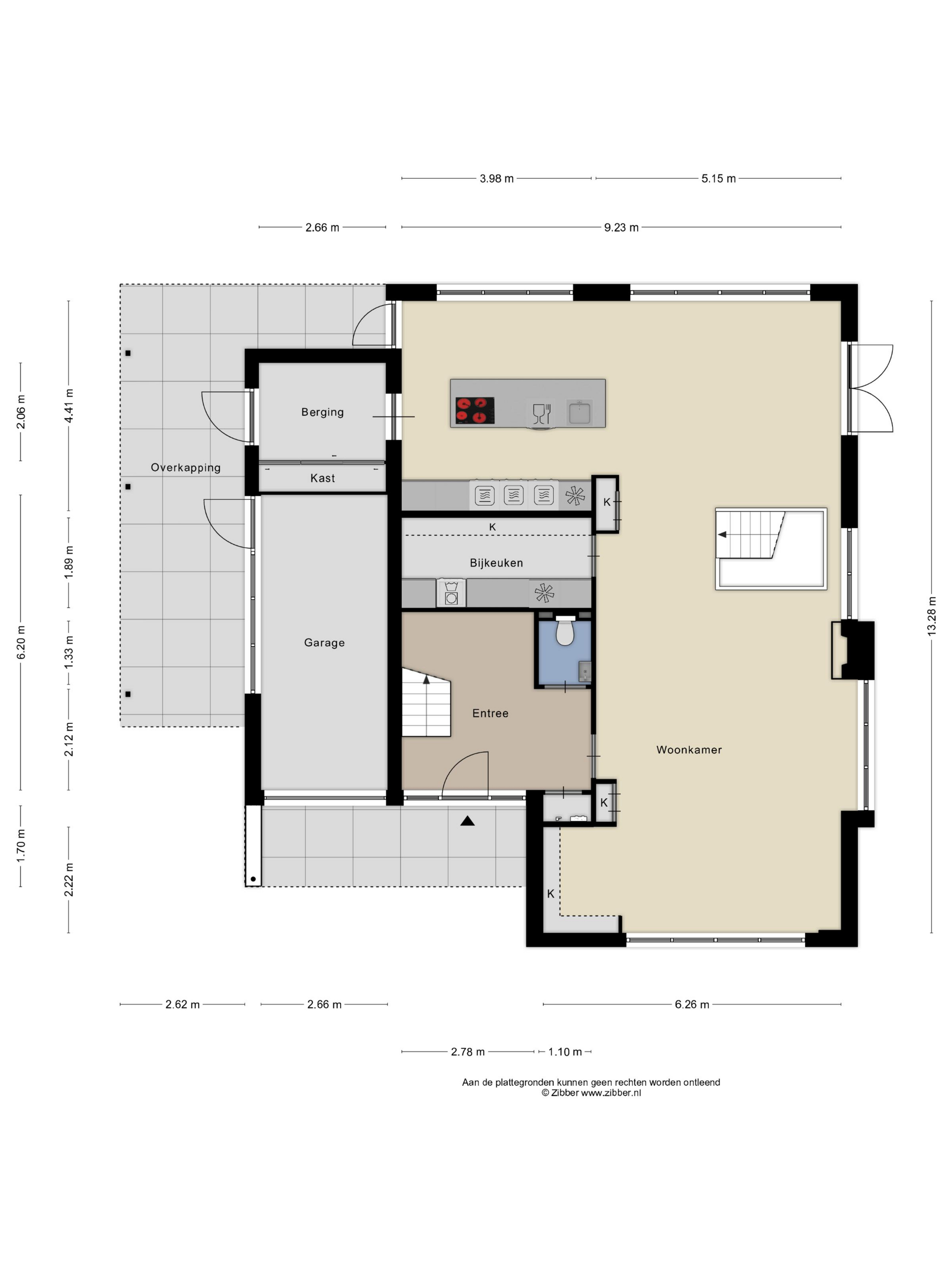
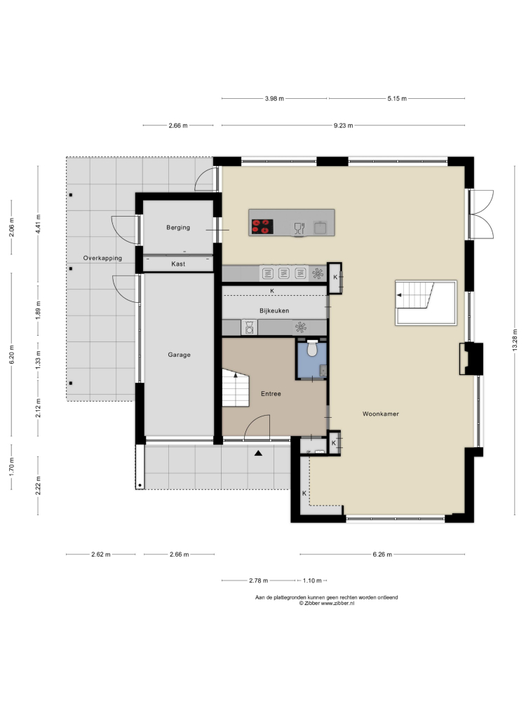
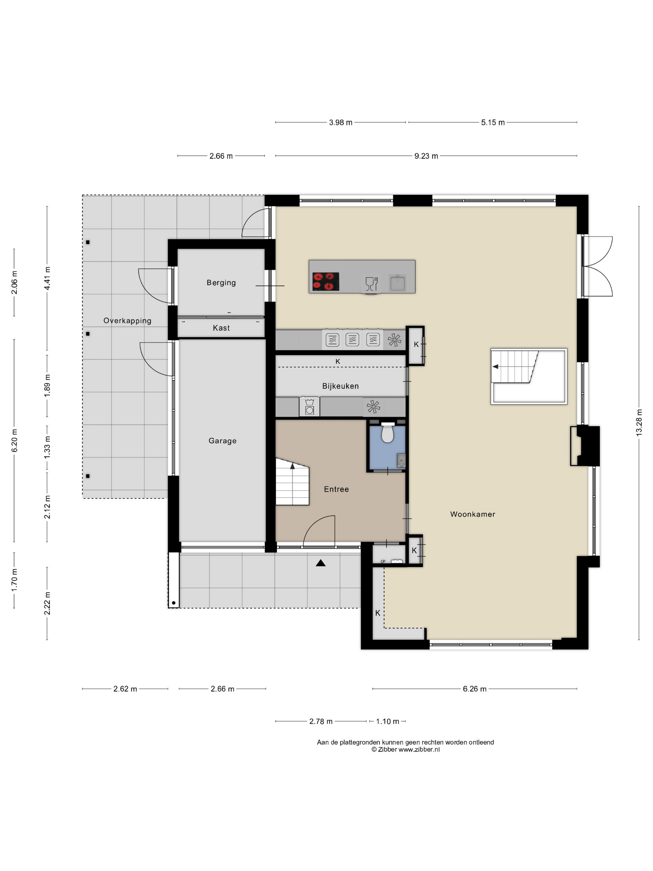
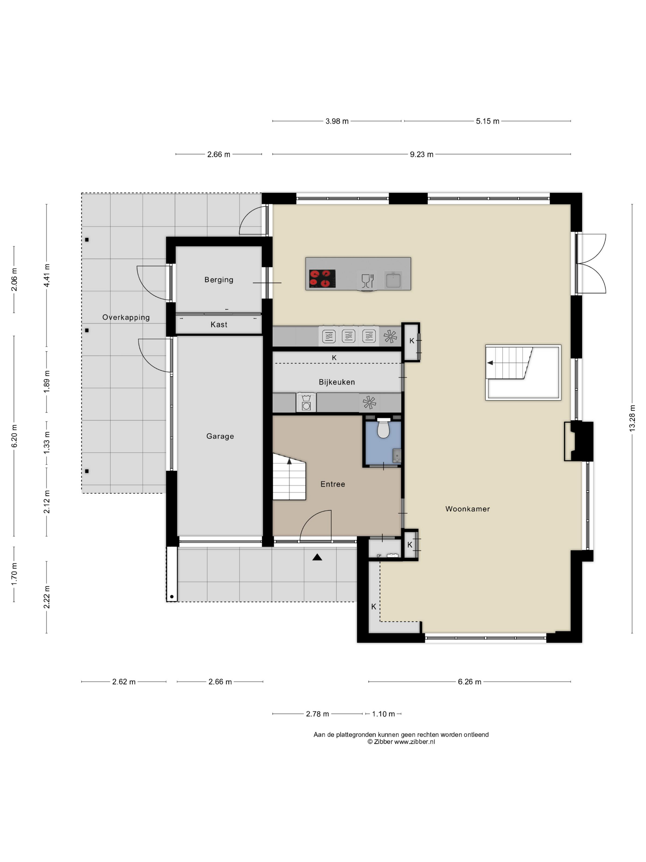
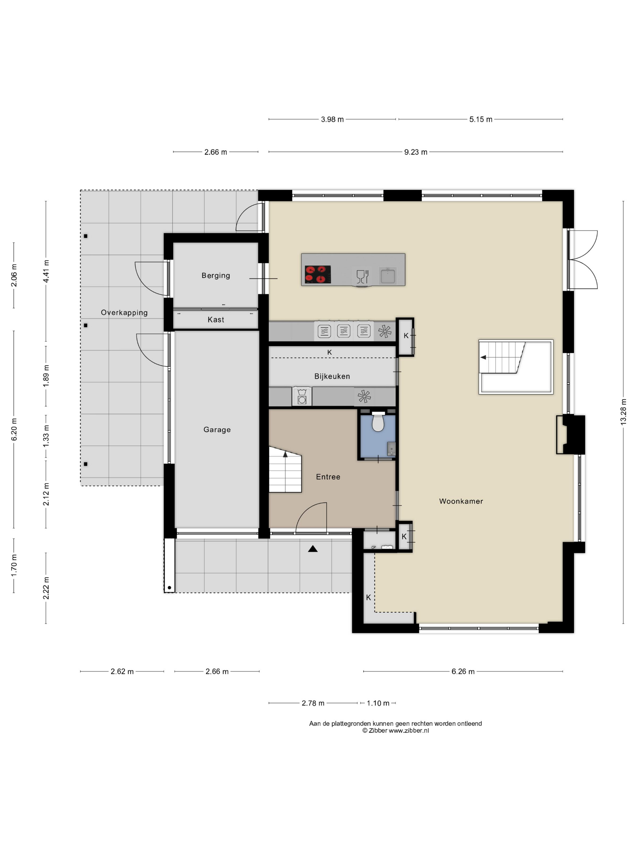
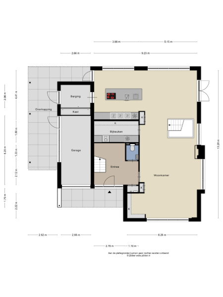
Bij binnenkomst is er een royale lichte entree met fraai trappenhuis en toiletruimte. Via de stalen deur komen we in de royale, zeer lichte woonkamer met werkhoek en openslaande deuren naar de fraaie tuin. Aan de achterzijde van de woning is een grote moderne woonkeuken met kook/spoeleiland en eetbar; genoeg ruimte voor gezellige diners met vrienden en familie. Ook hier zorgen grote ramen voor een overvloed aan licht. Een bijkeuken ontbreekt natuurlijk niet, hier staat ook de wasapparatuur.
De woonkamer heeft een eikenhouten vloer met white wash finish en in de keuken ligt een lichte tegelvloer.
In 2017 is er een souterrain/kelder gerealiseerd waar een multifunctionele ruimte is die vanuit de woonkamer te bereiken is.

Het hele huis, het souterrain/kelder en de garage zijn voorzien van vloerverwarming die ook kan koelen.

Via de fraaie trap gaan we naar de eerste verdieping.

1e verdieping
Vanaf de overloop zijn de 3 slaapkamers bereikbaar. De ouderslaapkamer heeft toegang tot de luxe badkamer en de 2 achterslaapkamers hebben toegang tot het grote balkon met fraai zicht op het water.

2e verdieping
Op de zolderverdieping zijn nog eens 3 slaapkamers en een 2e luxe badkamer.
Alle kamers zijn voorzien van een dakkapel en kastruimte achter de knieschotten. Een dakkapel in het trapgat zorgt voor extra lichtinval op de overloop.

In de nok van de woning is een bergvliering, ideaal om spullen buiten het zicht op te bergen.

Garage
Naast de woning is een carport en een garage waar plaats is voor 1 auto. Achter de garage bevindt zich een berging, die ook vanuit de keuken bereikbaar is.
Aan de voorzijde van de woning is parkeergelegenheid voor meerdere auto’s.

Tuin
De fraai aangelegde tuin heeft diverse terrassen, gras, plantenbakken, bloemborders, hagen en een buitendouche. Het ruime terras aan de woonkamer (Z) is voorzien van een groot zonnedoek. De tuin is omringd door een prachtige groene haag en af te sluiten met een elektrisch bedienbaar sierhek, wat niet allen voor privacy zorgt maar ook voor extra veiligheid.
Vanuit de eigen insteekhaven vaar je met de sloep via het Oegstgeesterkanaal naar de Kagerplassen of de sfeervolle grachten van Leiden.
In de insteekhaven past een sloep van 2.42m x 7.60m. Onder het vlonderterras is een jollensteiger. De maximale doorvaarhoogte in de wijk is ca 1.30m

Ligging
In een ruime sfeervolle woonwijk, rustig gelegen maar met alledaagse woonvoorzieningen binnen handbereik, zoals scholen, winkels en sportclubs maar ook het Katwijkse strand met z’n gezellige boulevard ligt op fietsafstand.
Gelegen nabij de uitvalsweg naar de N206 en op fietsafstand van Leiden Centraal zijn ook steden als Amsterdam/Schiphol, Leiden en Haarlem uitstekend te bereiken.

Duurzaamheid
• Aardwarmtepomp
• Vloerverwarming in de woning, het souterrain en de garage.
• Volledig geïsoleerd
• Energielabel A+

Bijzonderheden
• In 2017 grondig verbouwd en aangebouwd
- aardwarmtepomp
- Vloerverwarming, tevens vloerkoeling
- nieuwe trap
- woonkeuken aangebouwd
- kelder/souterrain gerealiseerd
- insteekhaven gemaakt
• Zeer lichte woning
• Ruime slaapkamers
• Fraai aangelegde tuin met buitendouche
• Openbaar parkeren en op eigen terrein
• Veel privacy
• Nabij voorzieningen en uitvalswegen.

Deze villa biedt alles wat je zoekt: ruimte, comfort en de unieke mogelijkheid om direct vanuit je tuin het water op te gaan. Interesse?

Makelaar Frits Wilbrink leidt je graag rond.
Bel ons kantoor voor een afspraak!

Kenmerken

Alarm system
Air conditioning
Overdracht
Vraagprijs
€ 1.795.000 k.k.
Status
beschikbaar
Aanvaarding
in overleg
Bouw
Soort woonhuis
Villa
Soort bouw
vrijstaande woning
Bouwjaar
2005
Energieklasse
A+
Soort dak
samengesteld dak
Slaapkamers
6
Badkamers
2
Oppervlakten en inhoud
Woonoppervlakte
275 m2
Overige inpandige ruimte
17 m2
Gebouwgebonden buitenruimte
68 m2
Inhoud
1082 m3
Perceeloppervlakte
710 m2
faciliteiten
Mechanische ventilatie
Alarminstallatie
Tv kabel
Airconditioning
Rookkanaal
Dakraam
Glasvezel kabel
Natuurlijke ventilatie
Aan water
Aan rustige weg
In centrum
In woonwijk
Beschutte ligging
Aan vaarwater
Baerz & Co Property Brochure

Brochure

Video’s

Wilbrink & v.d. Vlugt Makelaars

Heereweg 231
2161 BG Lisse

info@wilbrinkvandervlugt.nl
+31 252 41 90 49

www.onsaanbod.nl

Informatie / bezichtigingsaanvraag

Frits Wilbrink profile image
Frits Wilbrink
Real estate agent

Een luxe woning kopen in Katwijk

Katwijk omvat een hechte kustgemeenschap, verfijnde voorzieningen en hoogwaardige vastgoeddiensten. De plaats spreekt mensen aan die privacy en levendige kustlevensstijl waarderen in een internationaal verbonden omgeving.