DELFT
Oude Delft 45 - 2611 BC
Nederland

Jan Paul van Daal profile image
Jan Paul van Daal
Real estate agent
€1.995.000 k.k.
Woonoppervlakte
486m2
Perceeloppervlakte
495m2
Slaapkamers
6

Omschrijving

Een uniek Rijksmonument in het hart van Delft

Aan de statige Oude Delft, één van de mooiste grachten van Nederland, bevindt zich dit indrukwekkende Rijksmonumentale grachtenpand met een rijke historie, schitterende stadstuin en een woonoppervlakte van circa 500 m². Achter de klassieke gevel schuilt een wereld van ruimte, licht en authentieke details.

Het pand is in het afgelopen jaar grondig en stijlvol gerenoveerd. De authentieke elementen zijn in ere hersteld en gecombineerd met hedendaags comfort, waaronder vloerverwarming, een nieuwe technische installatie en drie luxe badkamers. Met maar liefst kamers, meerdere woon-/kantoorruimtes en een royale open woonkeuken is dit huis bijzonder geschikt voor grote gezinnen, dubbele bewoning of een representatieve woon-/werkcombinatie.

De locatie is perfect: midden in het historische centrum, met cafés, restaurants, winkels en cultuur op loopafstand. Het station van Delft ligt op slechts drie minuten lopen en biedt directe verbindingen met Rotterdam, Den Haag en Amsterdam. Ook de A4 en A13 zijn snel bereikbaar.

Van deze woning is een unieke woningwebsite beschikbaar. Download op Funda de brochure voor de link naar deze unieke website, waar je alle gegevens en nog meer informatie van deze woning kunt vinden.

Indeling:

Begane grond
Entree, lange gang en imposante hal met klassieke zwart-wit marmeren vloer en monumentale eiken trap. Aan de voorzijde twee kamers met originele schouwen, ideaal als kantoor of praktijkruimte. Aansluitend een ruime tussenkamer die overgaat in de zonnige, tuingerichte woonkamer met monumentale schouw.
Vanuit de woonkamer is er toegang tot een gang met toilet én een extra ruimte die perfect kan worden ingericht als (eet)keuken. Naast de woning bevindt zich een overdekte poort met bergruimte en toegang tot de beschutte stadstuin; ideaal als fietsenstalling.

Eerste verdieping
Riante overloop met toegang tot de slaapkamers, badkamer en aparte toiletruimte. Aan de achterzijde ligt een grote slaapkamer met directe toegang tot de tweede badkamer.
Op deze woonlaag is er tevens toegang tot het zijbalkon.

Tweede verdieping
Een prachtige verdieping met zicht op de originele kapconstructie. Aan de voorzijde een bijzonder lichte multifunctionele ruimte. Verder een grote bergruimte en toiletruimte. Extra daglicht via de hoog geplaatste nieuwe ramen boven de vide.

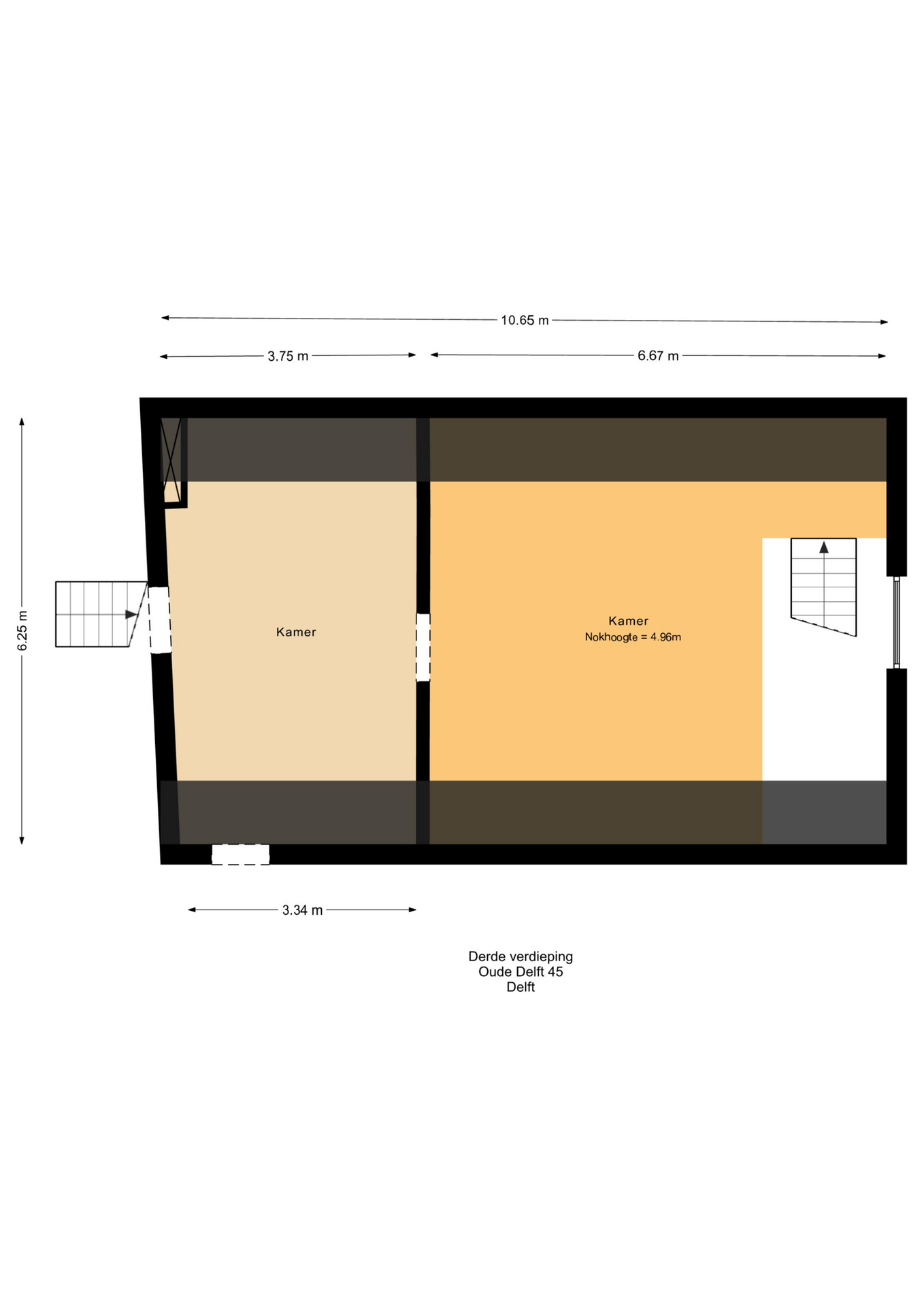
Derde verdieping (kapverdieping)
Overloop, royale open ruimte, grote slaapkamer en toegang middels een kleine traptrede tot de badkamer met inloopdouche en ligbad.

Tuin
De L-vormige stadstuin op het zuidwesten is een oase van rust en privacy. Met een gevelbreed terras, gazon, oude bomen en een berging vormt dit een unieke groene plek midden in de binnenstad.

Bijzonderheden/kenmerken:
- Rijksmonument in uitmuntende staat;
- Nieuwe fraai in visgraat motief gelegde parketvloeren op begane grond en de verdiepingen;
- Gehele kap en achtergevel kapverdieping geisoleerd met IKO PIR isolatie (4cm) platen;
- Remeha Elga Ace hybrid 6kw warmtepomp d.d. 2025;
- Begane grondvloer is geisoleerd EPS-drukplaten (10 cm);
- Energielabel C;
- Uitstekend geschikt voor dubbele bewoning of kantoor/praktijk aan huis;
- Bouwjaar ca. 1650;
- Oud-pandclausule van toepassing;
- Indrukwekkend hoge plafonds en uniek centraal trappenhuis;
- Perceel 495 m² (eigen grond);
- Nieuwe vloerverwarming op begane grond en eerste verdieping;
- Niet zelf bewoond- en oud pand clausule van toepassing;
- Er is geen vragenlijst beschiklbaar.

Oplevering in overleg, per direct mogelijk

Van deze woning is een uitgebreide woningwebsite beschikbaar. De link vindt u in de brochure op Funda.

Kenmerken

Overdracht
Vraagprijs
€ 1.995.000 k.k.
Status
beschikbaar
Aanvaarding
in overleg
Bouw
Soort woonhuis
Grachtenpand
Soort bouw
tussenwoning
Bouwjaar
1650
Energieklasse
C
Soort dak
zadeldak
Slaapkamers
6
Badkamers
4
Oppervlakten en inhoud
Woonoppervlakte
486 m2
Overige inpandige ruimte
2 m2
Gebouwgebonden buitenruimte
31 m2
Inhoud
2111 m3
Perceeloppervlakte
495 m2
faciliteiten
In centrum
Baerz & Co Property Brochure

Brochure

Video’s

Plattegronden

Van Daal Makelaardij

Voldersgracht 33
2611 ED Delft

janpaul@vandaalmakelaardij.nl
+31 (0)15 - 212 73 00

www.vandaalmakelaardij.nl

Informatie / bezichtigingsaanvraag

Jan Paul van Daal profile image
Jan Paul van Daal
Real estate agent

Een luxe woning kopen in Delft

Delft staat bekend om haar artistieke erfenis, verfijnde levensstijl en vooruitstrevend stedelijk karakter. De gemeenschap trekt veeleisende bewoners en investeerders aan, biedt maatwerk wonen, toegang tot topservices en internationale connecties.