BERGSCHENHOEK
Wilhelminastraat 85 - 2661 ET
Nederland

€895.000 k.k.
Woonoppervlakte
143m2
Perceeloppervlakte
N/A
Slaapkamers
3

Omschrijving

Wonen met stijl, sfeer en luxe in een penthouse met panoramisch uitzicht

Stop met zoeken! Dit prachtige penthouse combineert comfort, luxe en een indrukwekkend uitzicht over de skyline van Rotterdam, Delft en richting Den Haag. De woning beschikt over een woonoppervlakte van ca. 143 m², een zonnig dakterras van ca. 112 m², twee inpandige parkeerplaatsen en is gelegen in het hart van Bergschenhoek, met snelle verbindingen naar de A12, A13 en A16.

Bezoek nu snel dit pareltje in het centrum Bergschenhoek!

Indeling
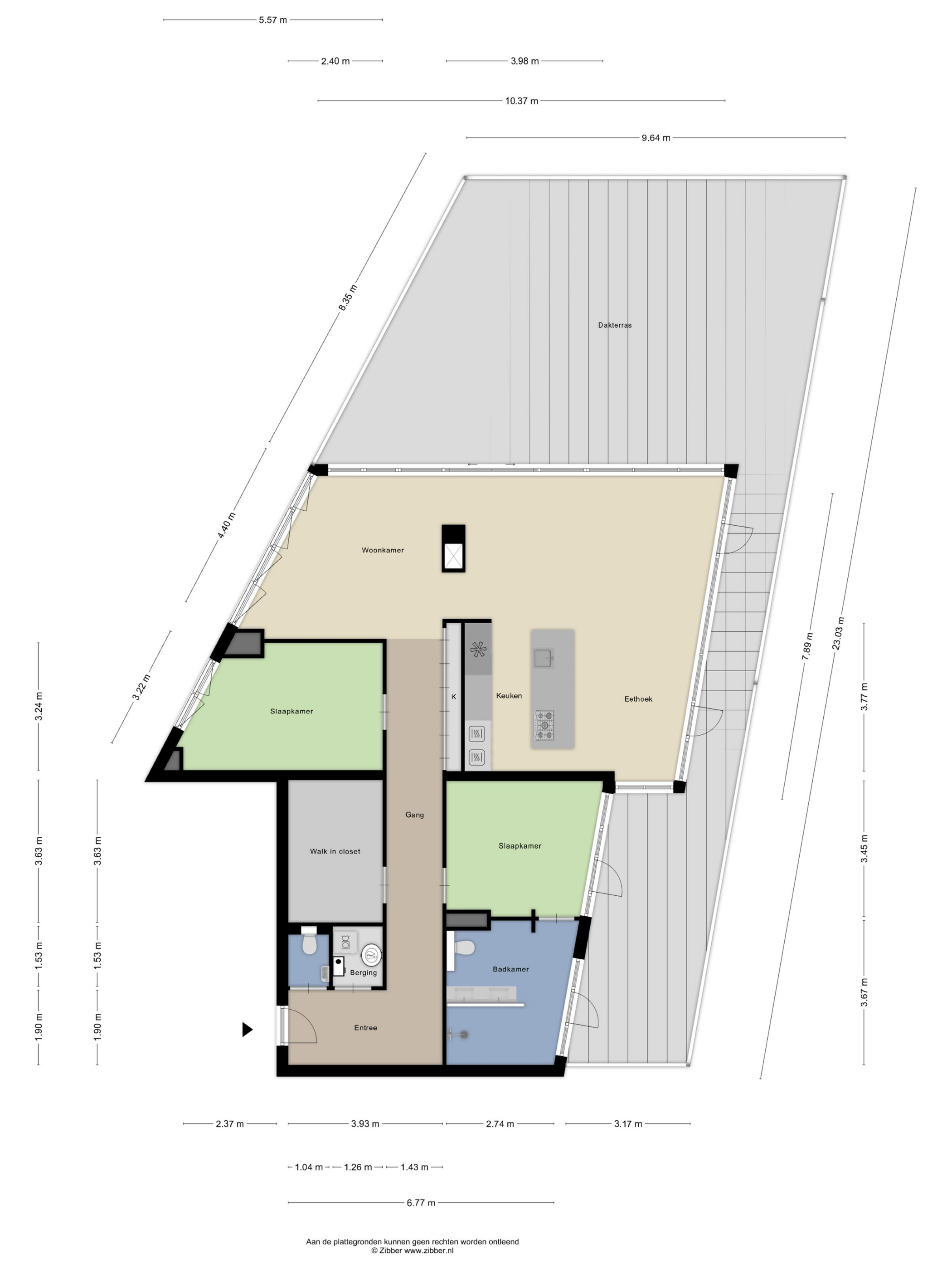
Afgesloten hoofdentree met lift naar de 4e verdieping. Inpandige toegang tot het penthouse, ruime hal met toilet, wasruimte, toegang tot alle vertrekken en een grote inbouwkast.

De gehele verdieping is voorzien van parketlaminaat met vloerverwarming en airconditioning. De royale living is ingedeeld in twee zitgedeeltes en een eetgedeelte, met grote raampartijen die zorgen voor veel licht. Via een schuifpui is het zeer ruime dakterras toegankelijk, gelegen op het zuiden en van dezelfde grootte als de woning zelf.

De moderne open keuken met kookeiland is voorzien van diverse luxe inbouwapparatuur, waaronder een Quooker, gasfornuis, afzuigkap, combimagnetron, hete-luchtoven met stoomfunctie, koel-vriescombinatie en vaatwasser.

Slaapkamer 1 (ca. 3,45 x 3,95 m) met en suite luxe badkamer
Slaapkamer 2 (ca. 3,24 x 5,57 m)
Separate garderobekamer (ca. 3,63 x 2,40 m)

De badkamer is voorzien van een ruime inloopdouche, dubbele wastafel met meubel en een tweede toilet.

Bijzonderheden:
- Bouwjaar 2016, woonoppervlakte ca. 143m2.
- Twee parkeerplaatsen en een separate berging in de onderbouw
- Gelegen op eigen grond en een inhoud van ca. 471 m³.
- Verwarming en warm water door middel van cv-ketel, grote boiler en vloerverwarming.
- Panoramisch uitzicht richting de Rottemeren, Delft, Zoetermeer, Berkel en Rodenrijs en de skyline van Rotterdam
- Elektrische screens bij de raampartijen aan het terras en het plein, per vertrek afzonderlijk te bedienen
- Sfeervolle gashaard
- Bijdrage actieve V.v.E. € 355,28,- per maand voor het appartement en € 73,30 ,- per maand voor de parkeerplaatsen (twee);
- Oplevering in overleg, conform lijst roerende zaken.

Wij nodigen je van harte uit om dit prachtige appartement met eigen ogen te bewonderen.

Alle verstrekte informatie moet beschouwd worden als een uitnodiging tot het doen van een bod of om in onderhandeling te treden. De teksten en impressies zijn bedoeld om een goede indruk te geven van het object. Aan de inhoud ervan is de grootst mogelijke zorg besteed. Desondanks is alle informatie nadrukkelijk onder voorbehoud. Er kunnen geen rechten worden ontleend aan deze woninginformatie.

Koopovereenkomst pas rechtsgeldig na ondertekening:
Een mondelinge overeenstemming tussen de particuliere verkoper en de particuliere koper is niet rechtsgeldig. Met andere woorden: er is geen koop. Er is pas sprake van een rechtsgeldige koop als de particuliere verkoper en de particuliere koper de koopovereenkomst hebben ondertekend. Dit vloeit voort uit artikel 7:2 Burgerlijk Wetboek. Een bevestiging van de mondelinge overeenstemming per e-mail of een toegestuurd concept van de koopovereenkomst wordt overigens niet gezien als een 'ondertekende koopovereenkomst'.

Toelichtingsclausule Meetinstructie:
De woning is conform de Branche brede Meetinstructie (BBMI) opgemeten. De Meetinstructie is bedoeld om een meer eenduidige manier van meten toe te passen voor het geven van een indicatie van de gebruiksoppervlakte. De Meetinstructie sluit verschillen in meetuitkomsten niet volledig uit, door bijvoorbeeld interpretatieverschillen, afrondingen of beperkingen bij het uitvoeren van de meting.

Wij zijn de makelaar van verkoper. Wij adviseren uw eigen makelaar mee te nemen voor uw belangenbehartiging bij de aankoop van uw toekomstige huis!

Kenmerken

Overdracht
Vraagprijs
€ 895.000 k.k.
Status
beschikbaar
Aanvaarding
in overleg
Bouw
Soort woonhuis
Penthouse
Soort bouw
appartement
Bouwjaar
2016
Energieklasse
A
Soort dak
plat dak
Slaapkamers
3
Badkamers
1
Oppervlakten en inhoud
Woonoppervlakte
143 m2
Overige inpandige ruimte
0 m2
Gebouwgebonden buitenruimte
114 m2
Externe bergruimte
16 m2
Inhoud
471 m3
faciliteiten
Mechanische ventilatie
Tv kabel
Buitenzonwering
Lift
Schuifpui
Glasvezel kabel
In woonwijk
Vrij uitzicht
Baerz & Co Property Brochure

Brochure

Video’s

Plattegronden

DB Makelaars

Dorpsstraat 79
2661 CE Bergschenhoek

dominique@dbmakelaars.nl
+31 107850833

www.dbmakelaars.nl

Informatie / bezichtigingsaanvraag

Dominique Blom profile image
Dominique Blom
Register Makelaar Taxateur

Een luxe woning kopen in Bergschenhoek

Bergschenhoek biedt een verfijnde gemeenschap met op maat gemaakte voorzieningen, groene landschappen en internationale oriëntatie – de ideale setting voor wie streeft naar hoogwaardig wonen en blijvende waarde.