BERGSCHENHOEK
Oosteindseweg 21 - 2661 EA
Nederland

€1.350.000 k.k.
Woonoppervlakte
280m2
Perceeloppervlakte
1047m2
Slaapkamers
7

Omschrijving

‘Kop of munt’, een statige jaren ’30 villa met ruimte en karakter!

Op de voorgevel prijkt de naam ‘Kop of munt’ een titel die perfect past bij deze unieke, vrijstaande jaren ’30 villa. Want hier hoef je niet te kiezen: deze woning biedt zowel karakter als modern comfort, zowel rust als centrale ligging. Gelegen op een riant perceel van ruim 1.000 m², met optimale privacy én op loopafstand van het centrum van Bergschenhoek.

Een woning van deze klasse kom je zelden tegen. De combinatie van authentieke details, zoals de prachtige glas-in-loodramen en een hoogwaardig afwerkingsniveau maakt dit tot een bijzonder geheel. Met een woonoppervlakte van circa 280 m², meerdere woonlagen en maar liefst zeven slaapkamers is dit een ideale woning voor wie ruimte en luxe zoekt.

De pluspunten:
+ Gelegen op een perceel van ruim 1.000 m²
+ Circa 280 m² woonoppervlakte
+ Volledig gemoderniseerd met behoud van karakteristieke elementen
+ Authentieke glas-in-loodramen die zorgen voor een unieke sfeer
+ Royale living in het souterrain
+ Parkeergelegenheid voor meerdere auto’s op eigen terrein
+ Voorzien van twee laadpalen
+ Zeer ruime en zonnige tuin met volop privacy
+ Unieke combinatie van rust, ruimte en centrale ligging

Naast de rust en ruimte rondom de woning bevinden alle voorzieningen zich in de directe nabijheid. Denk aan scholen, sportfaciliteiten, openbaar vervoer en recreatie. Bovendien zijn de stadscentra van Rotterdam, Zoetermeer en Den Haag uitstekend bereikbaar.

Indeling

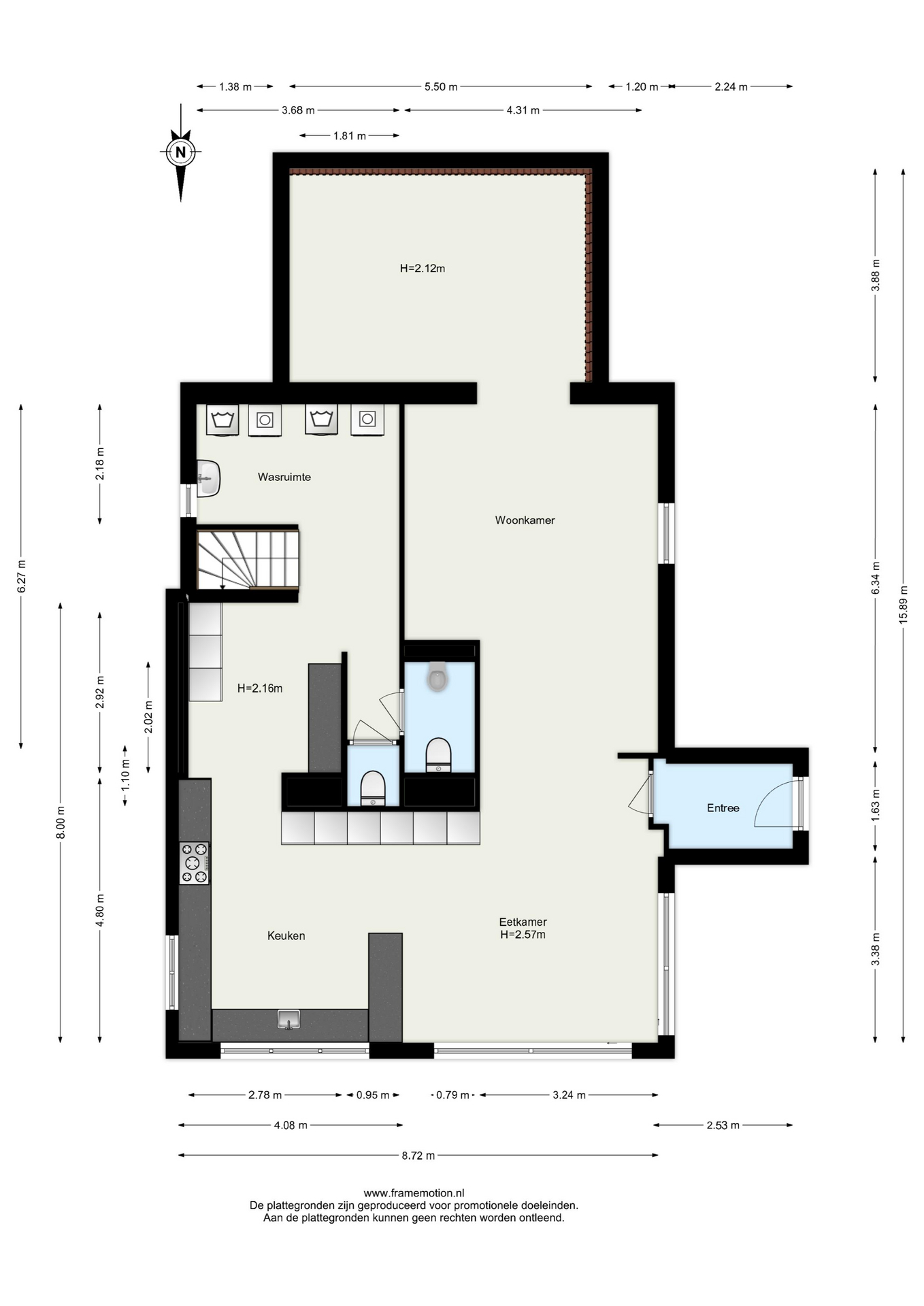
Souterrain:
Via de entree in de zijgevel bereik je het souterrain, waar zich de indrukwekkende living bevindt.

De royale woonkamer aan de voorzijde is ingedeeld in een sfeervolle zit- en eetkamer, met veel lichtinval en een warme uitstraling. Aan de achterzijde bevindt zich de zeer ruime woonkeuken, uitgevoerd met hoogwaardige inbouwapparatuur, waaronder een groot gasfornuis, twee koelkasten, twee vaatwassers, twee combi-ovens, twee stoomovens en een Quooker. Ideaal voor liefhebbers van koken en gastvrijheid.

Via de schuifpui heb je direct toegang tot de tuin.
Aan de voorzijde van het souterrain bevindt zich tevens de wasruimte met dubbele aansluitingen voor wasmachines en drogers. Daarnaast is er een aparte dames en heren toilet met urinoir aanwezig.

Tuin:
De zeer royale tuin biedt een oase van rust en privacy. Dankzij de gunstige ligging is er op elk moment van de dag zon te vinden.
De tuin beschikt over een overkapping met jacuzzi en biedt volop mogelijkheden voor verdere invulling, zoals het realiseren van een zwembad. Daarnaast is de tuin afsluitbaar middels een hekwerk, wat bijdraagt aan het gevoel van veiligheid en privacy.

Begane grond:
Ruime hal met meterkast, toegang tot een separaat toilet, de badkamer en een slaapkamer.
Slaapkamer 1 (voorzijde): een royale kamer met toegang tot het balkon en uitzicht over de tuin

De luxe en moderne badkamer is zeer compleet uitgevoerd met een ligbad, sunshower, dubbele inloopdouche, dubbele wastafel en een verlichte spiegel.

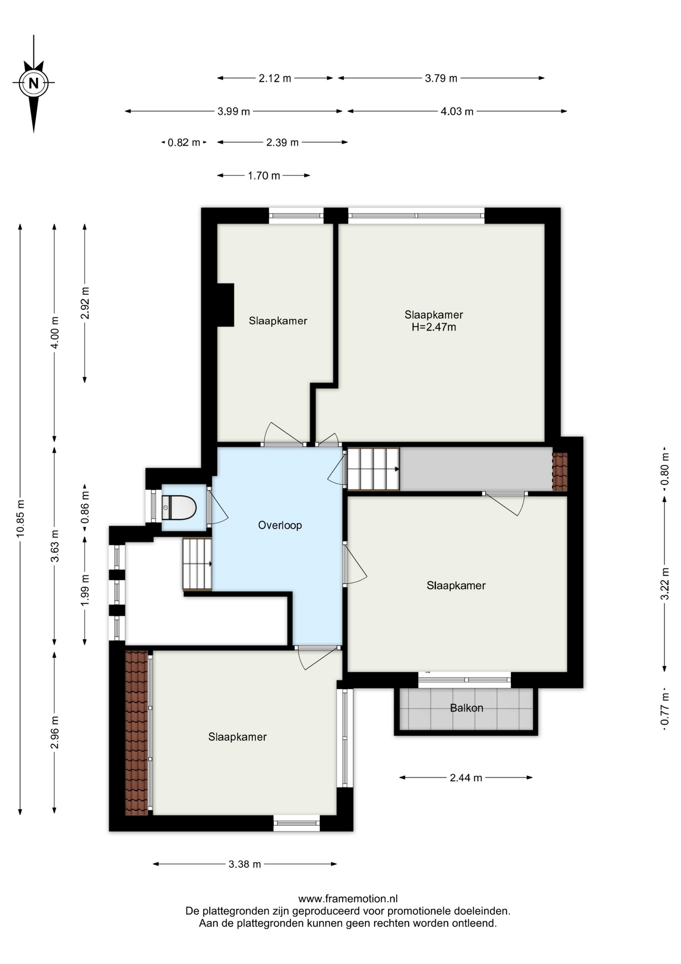
Eerste verdieping:
Overloop met separaat toilet en toegang tot alle vertrekken.
Twee ruime slaapkamers aan de voorzijde, waarvan één met vaste kast
Slaapkamer 4 (achterzijde) met vaste kasten en toegang tot het balkon
Slaapkamer 5 (achterzijde) met rondom raampartijen en veel lichtinval

Tweede verdieping:
Overloop met toegang tot twee slaapkamers.
Slaapkamer 6 (voorzijde) met vaste kasten
Slaapkamer 7 (achterzijde)

Bijzonderheden:
- Oplevering in overleg, conform Lijst van Zaken.

In de koopovereenkomst worden de volgende extra clausules opgenomen:
- Bij deze woning (ouder dan 30 jaar) is de ouderdomsclausule van toepassing.
- Bij deze woning (gebouwd voor 1993) is de asbestclausule van toepassing.

Wij nodigen je van harte uit om deze unieke woning met eigen ogen te bewonderen.

Alle verstrekte informatie moet beschouwd worden als een uitnodiging tot het doen van een bod of om in onderhandeling te treden. De teksten en impressies zijn bedoeld om een goede indruk te geven van het object. Aan de inhoud ervan is de grootst mogelijke zorg besteed. Desondanks is alle informatie nadrukkelijk onder voorbehoud. Er kunnen geen rechten worden ontleend aan deze woninginformatie.

Koopovereenkomst pas rechtsgeldig na ondertekening:
Een mondelinge overeenstemming tussen de particuliere verkoper en de particuliere koper is niet rechtsgeldig. Met andere woorden: er is geen koop. Er is pas sprake van een rechtsgeldige koop als de particuliere verkoper en de particuliere koper de koopovereenkomst hebben ondertekend. Dit vloeit voort uit artikel 7:2 Burgerlijk Wetboek. Een bevestiging van de mondelinge overeenstemming per e-mail of een toegestuurd concept van de koopovereenkomst wordt overigens niet gezien als een 'ondertekende koopovereenkomst'.

Toelichtingsclausule Meetinstructie:
De woning is conform de Branche brede Meetinstructie (BBMI) opgemeten. De Meetinstructie is bedoeld om een meer eenduidige manier van meten toe te passen voor het geven van een indicatie van de gebruiksoppervlakte. De Meetinstructie sluit verschillen in meetuitkomsten niet volledig uit, door bijvoorbeeld interpretatieverschillen, afrondingen of beperkingen bij het uitvoeren van de meting.

Wij zijn de makelaar van verkoper. Wij adviseren je jouw eigen makelaar mee te nemen voor jouw belangenbehartiging bij de aankoop van jouw toekomstige huis!

Kenmerken

Alarm system
Air conditioning
Overdracht
Vraagprijs
€ 1.350.000 k.k.
Status
beschikbaar
Aanvaarding
in overleg
Bouw
Soort woonhuis
Villa
Soort bouw
vrijstaande woning
Bouwjaar
1934
Energieklasse
E
Soort dak
samengesteld dak
Slaapkamers
7
Badkamers
3
Oppervlakten en inhoud
Woonoppervlakte
280 m2
Overige inpandige ruimte
0 m2
Gebouwgebonden buitenruimte
13 m2
Inhoud
960 m3
Perceeloppervlakte
1047 m2
faciliteiten
Mechanische ventilatie
Alarminstallatie
Airconditioning
Schuifpui
Frans balkon
In woonwijk
Vrij uitzicht
Beschutte ligging
Baerz & Co Property Brochure

Brochure

Video’s

Plattegronden

DB Makelaars

Dorpsstraat 79
2661 CE Bergschenhoek

dominique@dbmakelaars.nl
+31 107850833

www.dbmakelaars.nl

Informatie / bezichtigingsaanvraag

Dominique Blom profile image
Dominique Blom
Register Makelaar Taxateur

Een luxe woning kopen in Bergschenhoek

Bergschenhoek biedt een verfijnde gemeenschap met op maat gemaakte voorzieningen, groene landschappen en internationale oriëntatie – de ideale setting voor wie streeft naar hoogwaardig wonen en blijvende waarde.