BERGSCHENHOEK
Dudokplantsoen 12 - 2662 EL
Nederland

€835.000 k.k.
Woonoppervlakte
174m2
Perceeloppervlakte
209m2
Slaapkamers
5

Omschrijving

Ben je op zoek naar een instapklare gezinswoning op een rustige én centrale plek? Dan is deze woning in Parkzoom 4 precies wat je zoekt!

Deze instapklare en tot in de puntjes verzorgde eengezinswoning is gelegen op een fijne, rustige locatie in de geliefde wijk Parkzoom 4, precies op de grens van Bergschenhoek en Berkel en Rodenrijs.

De woning beschikt over een moderne open keuken en badkamer, vijf ruime slaapkamers, een eigen oprit met plaats voor twee auto’s. Vanuit het keukenraam heb je direct zicht op de grote speeltuin voor de deur, ideaal voor gezinnen met jonge kinderen. De straat is verder autovrij, wat bijdraagt aan een veilige en rustige woonomgeving.

In de directe omgeving vind je diverse scholen, kinderdagverblijven, het Annie M.G. Schmidtpark met o.a. zwembad De Windas en Natuurspeelplaats Tuin van Floddertje. Het gezellige centrum van Bergschenhoek én Berkel en Rodenrijs zijn op minder dan 5 min. fietsafstand gelegen en door de gunstige ligging zijn ook de grote steden goed bereikbaar via het openbaar vervoer (bus en RandstadRail) en de uitvalswegen (A12, A13, A16, N209 en N472).

Kortom, een fantastisch huis voor een gezin met jonge kinderen!

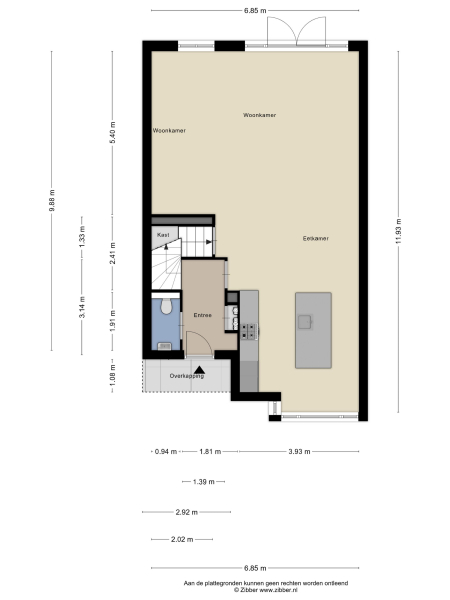
Indeling

Begane grond:
Voortuin met plek om 2 auto's te parkeren.
Entree, hal met toilet, meterkast, trapopgang naar de eerste verdieping en toegang tot de woonkamer.

De royale en lichte woonkamer is gelegen aan de achterzijde en beschikt over openslaande deuren met roedes, waardoor er een sfeervolle doorkijk en directe toegang tot de achtertuin ontstaat. Extra bergruimte is aanwezig in de praktische trapkast.
Aan de voorzijde vind je de luxe open keuken, voorzien van een groot spoeleiland met vijfpits gasfornuis, met dubbele (Boretti) oven, afzuigkap, vaatwasser, apothekerskast, koel-/vriescombinatie en een gezellige koffiebar. De raampartijen zijn uitgerust met screens en horren, ideaal voor zomerse dagen.

De gehele begane grond is voorzien van plavuizen met comfortabele vloerverwarming.

Tuin:
De verzorgde achtertuin, met achterom, is gelegen op het noordoosten.
Achterin de tuin bevindt zich een ruime overkapping met berging, de perfecte plek om tot laat in de avond buiten te zitten, zelfs bij minder mooi weer.

1e verdieping:
Ruime overloop met toegang tot de 3 slaapkamers, de badkamer en de trap naar de 2e verdieping.
Slaapkamer 1 (ouderslaapkamer) ligt aan de voorzijde en beschikt over een Frans balkon en elektrisch rolluik. Ook is er genoeg ruimte voor kastruimte.
Slaapkamer 2 en 3 liggen aan de achterzijde, beide voorzien van elektrisch rolluik en horren.

De moderne badkamer is stijlvol uitgevoerd en voorzien van een royale inloopdouche, dubbele wastafel en tweede toilet.

2e verdieping:
Op deze verdieping bevinden zich nog twee ruime slaapkamers, aan de voor- en achterzijde van de woning.
Daarnaast is er een aparte wasruimte met opstelplaats voor de cv-ketel en aansluitingen voor wasmachine en droger. Achter de knieschotten is extra bergruimte gecreëerd en via een luik met vlizotrap is de vliering bereikbaar voor nog meer opslag.

Bijzonderheden:
+ Bouwjaar 2015
+ Moderne en zeer verzorgde woning.
+ Rustige ligging en kindvriendelijke wijk.
+ Alle faciliteiten zoals winkels, scholen en sportverenigingen zijn in de buurt.
+ Oplevering in overleg, conform Lijst van Zaken.

Wij nodigen je van harte uit om deze ruime en moderne woning met eigen ogen te bewonderen.

Alle verstrekte informatie moet beschouwd worden als een uitnodiging tot het doen van een bod of om in onderhandeling te treden. De teksten en impressies zijn bedoeld om een goede indruk te geven van het object. Aan de inhoud ervan is de grootst mogelijke zorg besteed. Desondanks is alle informatie nadrukkelijk onder voorbehoud. Er kunnen geen rechten worden ontleend aan deze woninginformatie.

Koopovereenkomst pas rechtsgeldig na ondertekening:
Een mondelinge overeenstemming tussen de particuliere verkoper en de particuliere koper is niet rechtsgeldig. Met andere woorden: er is geen koop. Er is pas sprake van een rechtsgeldige koop als de particuliere verkoper en de particuliere koper de koopovereenkomst hebben ondertekend. Dit vloeit voort uit artikel 7:2 Burgerlijk Wetboek. Een bevestiging van de mondelinge overeenstemming per e-mail of een toegestuurd concept van de koopovereenkomst wordt overigens niet gezien als een 'ondertekende koopovereenkomst'.

Toelichtingsclausule Meetinstructie:
De woning is conform de Branchebrede Meetinstructie (BBMI) opgemeten. De Meetinstructie is bedoeld om een meer eenduidige manier van meten toe te passen voor het geven van een indicatie van de gebruiksoppervlakte. De Meetinstructie sluit verschillen in meetuitkomsten niet volledig uit, door bijvoorbeeld interpretatieverschillen, afrondingen of beperkingen bij het uitvoeren van de meting.
Wij zijn de makelaar van verkoper. Wij adviseren je jouw eigen makelaar mee te nemen voor jouw belangenbehartiging bij de aankoop van jouw toekomstige huis!

Kenmerken

Zonnepanelen
Alarm system
Overdracht
Vraagprijs
€ 835.000 k.k.
Status
beschikbaar
Aanvaarding
in overleg
Bouw
Soort woonhuis
Herenhuis
Soort bouw
geschakelde twee onder een kapwoning
Bouwjaar
2015
Energieklasse
A
Soort dak
zadeldak
Slaapkamers
5
Badkamers
1
Oppervlakten en inhoud
Woonoppervlakte
174 m2
Overige inpandige ruimte
2 m2
Gebouwgebonden buitenruimte
5 m2
Externe bergruimte
6 m2
Inhoud
620 m3
Perceeloppervlakte
209 m2
faciliteiten
Mechanische ventilatie
Alarminstallatie
Rolluiken
Frans balkon
Dakraam
Zonnepanelen
In centrum
In woonwijk
Baerz & Co Property Brochure

Brochure

Video’s

Plattegronden

DB Makelaars

Dorpsstraat 79
2661 CE Bergschenhoek

dominique@dbmakelaars.nl
+31 107850833

www.dbmakelaars.nl

Informatie / bezichtigingsaanvraag

Dominique Blom profile image
Dominique Blom
Register Makelaar Taxateur

Een luxe woning kopen in Bergschenhoek

Bergschenhoek biedt een verfijnde gemeenschap met op maat gemaakte voorzieningen, groene landschappen en internationale oriëntatie – de ideale setting voor wie streeft naar hoogwaardig wonen en blijvende waarde.