BERGHEM
Waatselaarstraat 3 - 5351 NP
Nederland

Dirk van Santvoort profile image
Dirk van Santvoort
Dirk van Santvoort
€3.595.000 k.k.
Woonoppervlakte
360m2
Perceeloppervlakte
42865m2
Slaapkamers
3

Omschrijving

Complete hippische accommodatie o.a. uitgerust met een vrijstaand woonhuis, appartement, kantoorgedeelte, een rijhal met binnenpiste en in totaal 31 paardenboxen, een buitenpiste, overdekte stapmolen, longeercirkel, diverse paddocks, weiland, een opslag/veldschuur en een vrijstaande loods.

Dit alles is gelegen op een ruim perceel van ruim 4 hectare en biedt volop mogelijkheden voor de professionele paardenliefhebber!

WOONHUIS
De vrijstaande woning is o.a. ingericht met een sfeervolle woonkamer, leefkeuken, bijkeuken en een kelder op de begane grond. De 1e verdieping telt 3 royale slaapkamers en een ruime badkamer. Op de 2e verdieping is een zolderruimte gesitueerd.
De tuin rondom is fraai aangelegd en uitgerust met gazon, beplanting, bomen en diverse terrassen.

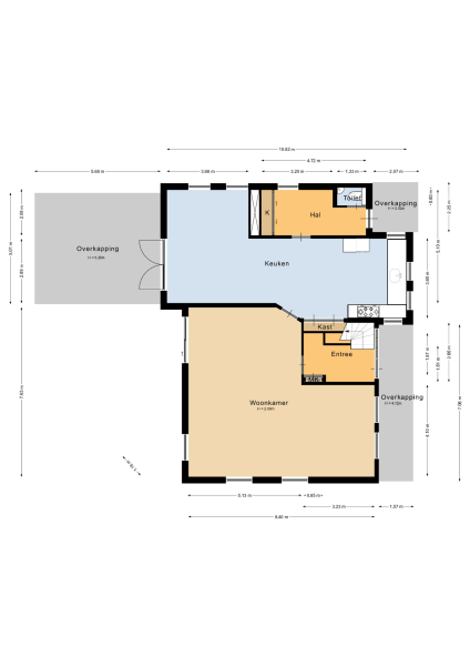
Begane grond:
De hal is voorzien van een PVC-vloer in visgraatmotief, deels metselwerk/ deels stucwerk wanden en een stucwerk plafond.
De hal biedt toegang tot de woonkamer, meterkast en middels een vaste trap is er toegang tot de 1e verdieping. De hal is voorzien van een PVC-vloer in visgraatmotief, deels metselwerk/ deels stucwerk wanden en een stucwerk plafond. De hal biedt toegang tot de woonkamer, meterkast en middels een vaste trap is er toegang tot de 1e verdieping. De royale leefkeuken is eveneens voorzien van dezelfde PVC-vloer in visgraatmotief. De wanden en het plafond zijn voorzien van stucwerk. De keukeninrichting is in een U-opstelling met een bergeiland. De keuken is verder uitgerust met een vaatwasser, combimagnetron, spoelbak, 5-pits gaskookplaat en een koelkast. Vanuit de keuken is er toegang tot de kelder. De kelder is geheel betegeld en uitgerust met een koekoek en een raam. Er zijn vaste schappen en een houten trap aanwezig. Een luik biedt toegang naar de ruimte onder de woning. De praktische bijkeuken is deels betegeld en de vloer is bedekt met een tegelvloer welke is voorzien van vloerverwarming. Praktische schuifkasten zorgen voor opbergruimte. Hier zijn de opstelling voor de CV-combiketel, de unit voor de vloerverwarming en de aansluitingen voor de wasapparatuur gesitueerd. Vanuit de bijkeuken is er toegang tot de toiletruimte en het erf. De toiletruimte is geheel betegeld en verder voorzien van een fonteintje en een zwevend toilet.

1e verdieping:
De royale overloop biedt toegang tot 3 ruime slaapkamers en een badkamer. Slaapkamer I is voorzien van vloerbedekking, spuitwerk wanden en een spuitwerk plafond. Vanuit deze kamer is er middels een vaste trap toegang tot de bergzolder. De ruimte is verder voorzien van een praktische inbouwkast. Slaapkamer II is eveneens afgewerkt met vloerbedekking, spuitwerk wanden en een spuitwerk plafond. Vaste schuifkasten zorgen voor opbergruimte. De ruime badkamer is geheel betegeld en verder uitgerust met een ligbad, inloopdouche, wastafel met meubel en een designradiator. De toiletruimte is geheel betegeld en voorzien van een zwevend toilet. De zeer ruime ouderslaapkamer was voorheen verdeeld in 2 slaapkamers. Dit is relatief eenvoudig weer te realiseren. De kamer is afgewerkt met vloerbedekking, spachtelputz wanden en een spuitwerk plafond. Een praktische vaste kast en schuifkasten zorgen voor opbergruimte. Vele raampartijen zorgen voor veel natuurlijke lichtinval.

Tuin:
De tuin rondom de woning gelegen is fraai aangelegd en goed onderhouden. De tuin is ingericht met borders met vaste beplanting, bomen, gazon en diverse terrassen. Aan de voorzijde is een terras gelegen, aan de achterzijde beschikt het terras over een zeer fraaie en sfeervolle overkapping. Deze overkapping is opgetrokken uit eikenhout en voorzien van een glazen wand. Het dak is bedekt met riet. Het terras geeft een fraai uitzicht op de weilanden. Kortom een heerlijk plekje om te vertoeven! Iets verderop is een volière en nog een overdekt terras gesitueerd. Ook vanuit hier is er een prachtig zicht op de weilanden.

HIPPISCHE ACCOMMODATIE
De hippische accommodatie bestaat o.a. uit een vrijstaande rijhal met een binnenpiste (ca. 20mtr. x 60mtr), een paardenstal met een ontvangstgedeelte en in totaal 31 paardenboxen verdeeld over 2 stalgedeeltes, een kantoorruimte, werkplaats en aangrenzend een appartement.

Het stalgedeelte aan de linkerzijde is uitgerust met 16 paardenboxen. Deze boxen zijn voorzien van deels hardhouten / deels gepoedercoate en deels gegalvaniseerde voorwanden. De tussenwanden zijn van metselwerk en deels bezet. De deuren de voorwanden zijn draaibaar. 2 boxen zijn voorzien van deels kunststof / deels gegalvaniseerde voor- en tussenwanden en schuifdeuren. Er is tevens 1 ponybox aanwezig. Er zijn 2 wasplaatsen en een solarium aanwezig. De wasplaatsen zijn uitgerust met een warm- en koudwatervoorziening. Vanuit het stalgedeelte is er toegang tot een hal waar de 2 zadelkamers gesitueerd zijn. Vanuit deze hal is er eveneens toegang tot de ontvangstruimte en de binnenpiste. De royale ontvangstruimte is afgewerkt met een tegelvloer, deels metselwerk/deels stucwerk wanden en een systeemplafond. Er is een toiletgroep gesitueerd bestaande uit een toiletruimte, invalidetoilet en een portaal met 2 wastafels. Tevens is er een complete keuken aanwezig. De keuken is ingericht met een oven, combimagnetron, vaatwasser, inbouw koffiezetapparaat, een spoelbak en een kookplaat. n de ontvangstruimte is de meterkast aanwezig. Hier is de opstelling voor de CV-combiketel gesitueerd. Ook beschikt de ruimte over een alarminstallatie. Vanuit de ontvangstruimte is er een fraai uitzicht op de binnenpiste. Openslaande deuren bieden toegang tot het erf. De naastgelegen binnenpiste (ca. 20mtr. x 60mtr.) is uitgerust met een eb/vloedbodem en een hardhouten bakrand (Horsmans). Een lichtkoepel in de nok en raampartijen in de kopgevel zorgen voor natuurlijke lichtinval, ook is er ventilatie aanwezig. Verder is de piste uitgerust met een spiegelwand. Een roldeur aan de achtergevel zorgt voor toegang tot het erf. Vanuit de binnenpiste is er toegang tot het stalgedeelte aan de rechterzijde. Dit stalgedeelte beschikt over 13 paardenboxen. Deze boxen (ca 4mtr. x 3mtr.) zijn voorzien van deels gepoedercoate / deels gegalvaniseerde en draaibare deuren. Ook zijn de boxen voorzien van een buitenluik. Tevens is hier een zadelkamer, wasplaats en een solarium aanwezig. Vanuit dit stalgedeelte is er toegang tot een kantine. Deze kantine is afgewerkt met een laminaatvloer en een systeemplafond. De kantine beschikt over een aparte CV-combiketel. Openslaande deuren aan de achtergevel zorgen voor toegang tot het erf.

Kantoorgedeelte:
Aan de voorzijde van het gebouw is een kantoorruimte met berging, werkplaats en multifunctionele ruimte en een appartement gelegen. De kantoorruimte is voorzien van een PVC-vloer, stucwerk wanden en een systeemplafond. Tevens is er airco aanwezig. Grote raampartijen zorgen voor veel natuurlijke lichtinval en praktisch uitzicht op de toegangspoort en parkeerplaats. De berging is uitgerust met de beregeningspomp ten behoeve van de buienpiste, weilanden en de tuin. Ook is hier de omvormer voor de zonnepanelen (81 stuks) gesitueerd. De werkplaats met betonnen vloer is uitgerust met vaste kasten en de aansluitingen voor de wasapparatuur. Een vaste trap biedt toegang tot de zolderruimte. De multifunctionele ruimte, nu in gebruik als fitnessruimte is voorzien van een PVC-vloer, deels metselwerk / deels stucwerk wanden en een systeemplafond. De aansluiting voor de CV-combiketel ten behoeve van de fitnessruimte en het appartement zijn hier gesitueerd. Vanuit deze ruimte is er toegang tot het appartement en een vaste trap biedt toegang tot de zolderruimte.

Appartement:
Het appartement beschikt over een eigen ingang. Het appartement is verder uitgerust met een woonkamer met open keuken, een slaapkamer met inloopkast, bijkeuken badkamer en op de 1e verdieping is nog een slaapkamer gesitueerd. Het appartement beschikt tevens over een eigen stukje tuin. Het appartement is zeer geschikt voor bijvoorbeeld het gebruik als bijvoorbeeld groomverblijf of mantelzorgwoning.

Het erf is verder ingericht met een buitenpiste, overdekte stapmolen, een longeercirkel, diverse paddocks, een opslag/veldschuur, schuur, mestvaalt, weiland en een vrijstaande loods. Er is voldoende parkeergelegenheid aanwezig voor het stallen van o.a. trailers en vrachtwagens. Het erf kan worden afgesloten met een elektrische openslaande poort. De opslag/veldschuur met open front is opgetrokken uit deels metselwerk / deels damwand met houten spanten en een damwand dak.
De overdekte stapmolen (Molenkoning) is geschikt voor 4 paarden en is voorzien van een beklinkerde bodem met zand en een omheining van windbreekgaas. Het dak is bedekt met golfplaten. De vrijstaande schuur is opgetrokken uit metselwerk gevels met stalen spanten en een damwand dak. De schuur is verder uitgerust met een glazen voorwand /windscherm en een betonnen vloer. Er is krachtstroom aanwezig. Deze schuur is ideaal voor de opslag van hooi/stro. De mestvaalt is voorzien van een betonnen vloer en wanden. De paddocks (4 stuks) gelegen bij het weiland zijn met hout omheind.
De weilanden zijn omheind met hout en beschikken over praktische tussenpaden. Ook zijn er wateraansluitingen voor het drinkwater aanwezig. De 2 paddocks iets verderop gelegen zijn voorzien van een zandbodem en een houten omheining.
De longeercirkel is uitgerust met een eb/vloedbodem en een houten omheining. In de berging is een 2e beregeningspomp ten behoeve van deze longeercirkel gesitueerd. De vrijstaande loods is op dit moment in gebruik als opslagruimte, maar is uiteraard ook voor diverse andere doeleinden geschikt. De gevels zijn gepotdekseld en voorzien van isolatie. Het dak is eveneens geisoleerd en voorzien van sandwich panelen. 2 openslaande deuren en een roldeur zorgen voor toegang.
De naastgelegen paddocks (2 stuks) zijn voorzien van een houten omheining. De buitenpiste (ca. 25mtr. x 65mtr.) is voorzien van een zandbodem met sproei installatie. De piste is met een beukenhaag omheind en verder uitgerust met verlichting.

BIJZONDERHEDEN
- Het geheel is aangesloten op gas, water, elektra en riolering.
- Het geheel is voorzien van een alarminstallatie met camerabewaking.
- ca. 10 jaar geleden is de rieten kap van het woonhuis vernieuwd.
- De ontvangstruimte, rijhal en 2e stalgedeelte aan de rechterzijde zijn in ca. 2012 nieuw gebouwd. Het linker stalgedeelte
en de kantoorruimte etc. zijn destijds verbouwd.
- Het dak van het stalgedeelte aan de linkerzijde is vernieuwd.
- Het geheel is aangesloten op gas, water, elektra en riolering.
- Het geheel is voorzien van een alarminstallatie met camerabewaking.
- ca. 10 jaar geleden is de rieten kap van het woonhuis vernieuwd.
- De ontvangstruimte, rijhal en 2e stalgedeelte aan de rechterzijde zijn in ca. 2012 nieuw gebouwd. Het linker stalgedeelte
en de kantoorruimte etc. zijn destijds verbouwd.
- Het dak van het stalgedeelte aan de linkerzijde is vernieuwd.
- Aan de voorzijde is een appartement gesitueerd, welke perfect is als groomverblijf.
- De ontvangstruimte en de kantoorruimte zijn voorzien van kunststof kozijnen. De rijhal is uitgerust met aluminium
kozijnen.
- Op het geheel rust de bestemming “Agrarisch”.
- Het dak van de stal is voorzien van 81 zonnepanelen.
- De geldende milieutoestemming voor het bedrijf betreft de melding in het kader van het Besluit landbouw milieubeheer
d.d. 22-09-2009 (thans: Bal-melding). Conform deze milieutoestemming mogen er op het bedrijf 20 volwassen paarden
en 14 paarden in opfok gehouden worden.

Kenmerken

Zonnepanelen
Alarm system
Air conditioning
Overdracht
Vraagprijs
€ 3.595.000 k.k.
Status
beschikbaar
Aanvaarding
in overleg
Bouw
Soort woonhuis
Villa
Soort bouw
vrijstaande woning
Bouwjaar
1995
Soort dak
schilddak
Slaapkamers
3
Badkamers
1
Oppervlakten en inhoud
Woonoppervlakte
360 m2
Overige inpandige ruimte
9 m2
Externe bergruimte
3293 m2
Inhoud
1440 m3
Perceeloppervlakte
42865 m2
faciliteiten
Alarminstallatie
Airconditioning
Glasvezel kabel
Zonnepanelen
Natuurlijke ventilatie
Aan rustige weg
Vrij uitzicht
Open ligging
Landelijk gelegen
Baerz & Co Property Brochure

Brochure

Video’s

Plattegronden

Van Santvoort Makelaars

Torenallee 65
5617 BB Eindhoven

dirk@vansantvoort.nl
+31 40 269 25 30

www.vansantvoort.nl

Informatie / bezichtigingsaanvraag

Dirk van Santvoort profile image
Dirk van Santvoort
Dirk van Santvoort

Een luxe woning kopen in Berghem

Berghem verwelkomt wie verfijning zoekt: privacy, cultureel erfgoed en ongekende toegang tot natuurrijke voorzieningen. Kopers genieten van exclusief vastgoed, maatwerkadvies en een ingetogen maar levendige levensstijl.