ARNHEM
Utrechtseweg 99 - 6812 AA
Nederland

Roy Boesveld profile image
Roy Boesveld
Makelaar / Taxateur
€1.495.000 k.k.
Woonoppervlakte
196m2
Perceeloppervlakte
N/A
Slaapkamers
3

Omschrijving

DRIE APPARTEMENTEN, EINDELOOS WOONGENOT. NOG 1 APPARTEMENT TE KOOP.

In Schoonheuvel zijn 3 drie luxe appartementen gerealiseerd. Ze zijn allemaal anders qua indeling, oppervlakte, inrichting en uitzicht. Maar tegelijkertijd hebben ze ook veel gemeen. Zo beschikt elk appartement over twee volledig uitgeruste badkamers met topsanitair en een grootse keuken met kookeiland en zeer hoogwaardige apparatuur. Op de vloeren ligt prachtig visgraatmotief eiken parket met vloerverwarming. De wanden zijn afgewerkt en uw hele appartement is voorzien van een state of the art luchtbehandelingssysteem. Overal zijn al wandarmaturen aanwezig, de ramen zijn voorzien van authentieke binnenluiken, er zijn gashaarden en ook de geluidsboxen voor uw Sonos systeem zijn al geïntegreerd in elke ruimte. Echt aan alles is gedacht. Pak uw meubels op, verhuis ze en start met eindeloos genieten van een appartement dat zijn gelijke niet kent.
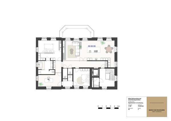
RIJNAPPARTEMENT

In de statige entree staat u even stil bij de imposante eikenhouten trappartij die fraai wordt uitgelicht door de imposante kroonluchters. Of pakt u toch liever de lift waarmee alleen u naar uw appartement op de eerste etage kunt? Eenmaal thuis geniet u van volop licht en ruimte. Door de grote raampartijen op het zuiden ontvouwt zich een geweldig panorama over de Neder-Rijn en het uiterwaardenpark van Meinerswijk. Op zonnige dagen zit u uiteraard op het royale terras met een goed glas gekoelde wijn. Uw appartement is uiteraard voorzien van alle denkbare technologische gemakken. En van twee ruime slaapkamers, twee badkamers en een aparte werkkamer. Hoge plafonds en een hoogwaardige afwerking maken uw Rijnappartement helemaal compleet. Een ideaal thuis voor wie wil genieten van rust, ruimte en luxe, met de Arnhemse binnenstad vlakbij.
ONZICHTBAAR COMFORT

In Villa Schoonheuvel voelt u zich altijd comfortabel. Ongeacht de buitentemperatuur. Elk appartement heeft een eigen klimaatinstallatie die via het touchscreen in de woning en een app geregeld kan worden. In de tuin zijn de luchtbehandelingsunits met warmtepompen uit het zicht geplaatst, in de appartementen is er een aparte technische ruimte met daarin alle techniek. Lekker koel op die warme dagen, behaaglijk warm als de buitentemperatuur daalt. Het systeem is al helemaal ingeregeld en per ruimte te regelen. Maar u ziet of hoort er niets van in uw appartement. Sleuven in het plafond blazen de koelte van de luchtkoeling naar binnen en zorgen voor het aanvoeren van schone lucht en het afvoeren van vuile lucht. De vloerverwarming doet geruisloos zijn werk en dankzij hoogwaardige isolatie in dak, wanden, vloeren en ramen hebben alle appartementen minstens het A+ energielabel.

Kenmerken

Overdracht
Vraagprijs
€ 1.495.000 k.k.
Status
beschikbaar
Aanvaarding
in overleg
Bouw
Soort woonhuis
Penthouse
Soort bouw
appartement
Bouwjaar
2022
Energieklasse
A+
Soort dak
samengesteld dak
Slaapkamers
3
Badkamers
2
Oppervlakten en inhoud
Woonoppervlakte
196 m2
Overige inpandige ruimte
0 m2
Gebouwgebonden buitenruimte
15 m2
Inhoud
750 m3
faciliteiten
In centrum
Vrij uitzicht
Baerz & Co Property Brochure

Brochure

Video’s

Plattegronden

Willemsen Makelaars

Jansplaats 29
6811 GB Arnhem

r.boesveld@willemsen.nl
+31 26 445 27 51

www.willemsen.nl

Informatie / bezichtigingsaanvraag

Roy Boesveld profile image
Roy Boesveld
Makelaar / Taxateur

Een luxe woning kopen in Arnhem

Arnhem combineert stijlvol wonen, beschermd groen en hoogwaardige voorzieningen. De internationale sfeer, levendige gemeenschap en zorgvuldig geselecteerd woningaanbod bieden veeleisende kopers een harmonieuze en waardevolle basis in Nederland.