Tussenverdieping te huur in AMSTERDAM

AMSTERDAM Stadhouderskade 16 A - 1054 ES Nederland


Steijn Schothorst profile image
Steijn Schothorst
Real Estate Agent
+316 53436695
info@heerenmakelaars.nl

Heeren Makelaars
Stadionweg 75
1077 SE Amsterdam
NETHERLANDS
+31 0204702255
www.heerenmakelaars.nl
info@heerenmakelaars.nl

Woonoppervlakte
157m2
Perceeloppervlakte
N/A
Slaapkamers
3

Omschrijving

Stadhouderskade 16A, 1054 ES Amsterdam

Uniek en geheel gerenoveerd appartement (ca. 157 m²) bestaande uit twee verdiepingen, gelegen in het appartementencomplex Byzantium aan het Vondelpark. De woning beschikt over een royale living met open keuken en eetkamer en-suite, drie slaapkamers, twee badkamers en een riant zonneterras (ca. 8 m²) gelegen op het zuid westen. Bovendien beschikt de woning over een energielabel A!

Ligging & Bereikbaarheid

Byzantium is gelegen op een ideale locatie: Aan de ene zijde de bruisende binnenstad en aan de andere zijde de rust van het Vondelpark. Hotel Americain, de Stadsschouwburg, DeLaMar Theater, het Leidseplein met z'n vele internationaal georiënteerde eetgelegenheden, Pathé Bioscopen, Het Rijksmuseum, Stedelijk Museum, het van Gogh Museum en het Concertgebouw, allemaal op loopafstand gelegen. Ook de bekende winkelstraten zoals P.C. Hooftstraat en Van Baerlestraat bevinden zich om de hoek. De woning is uitstekend bereikbaar met zowel de auto als het openbaar vervoer. Rondom het Leidseplein zijn haltes voor tramlijnen 1,2,5,7,11,19 en bij het busstation aan de Marnixstraat ter hoogte van de Elandsgracht vindt u haltes voor diverse buslijnen waaronder de snelbus naar Schiphol. Met de auto bent u binnen 15 minuten bereikt ut diverse uitvalwegen waaronder de ring A10. Parkeren kan in de parkeergarage op de begane grond van het complex of om de hoek in de straat tegen betaling.

Complex Byzantium
De woning is gelegen in het moderne appartementengebouw “Byzantium” op de eerste verdieping van dit complex. Het gebouw is ontworpen door de wereldberoemde architect Rem Koolhaas en heeft een moderne, luxueuze entree van natuursteen. De fraaie hal heeft een lift en een zeer verzorgd trappenhuis. Het complex heeft een goed beveiligingssysteem, waaronder een 24 uurs camerabewaking en een huismeester. Zowel de entree op de begane grond als de parkeergarage zijn bewaakt. Vanuit de parkeergarage heeft u direct toegang tot het trappenhuis en kunt u binnendoor de woning bereiken. Bovendien is de garage voorzien van een fietsenberging en wasstraat. Alsmede heeft de vereniging van eigenaren een gedeelde, fraai aangelegde en gemeubileerde, groene daktuin op de eerste verdieping.

Indeling

Eerste verdieping

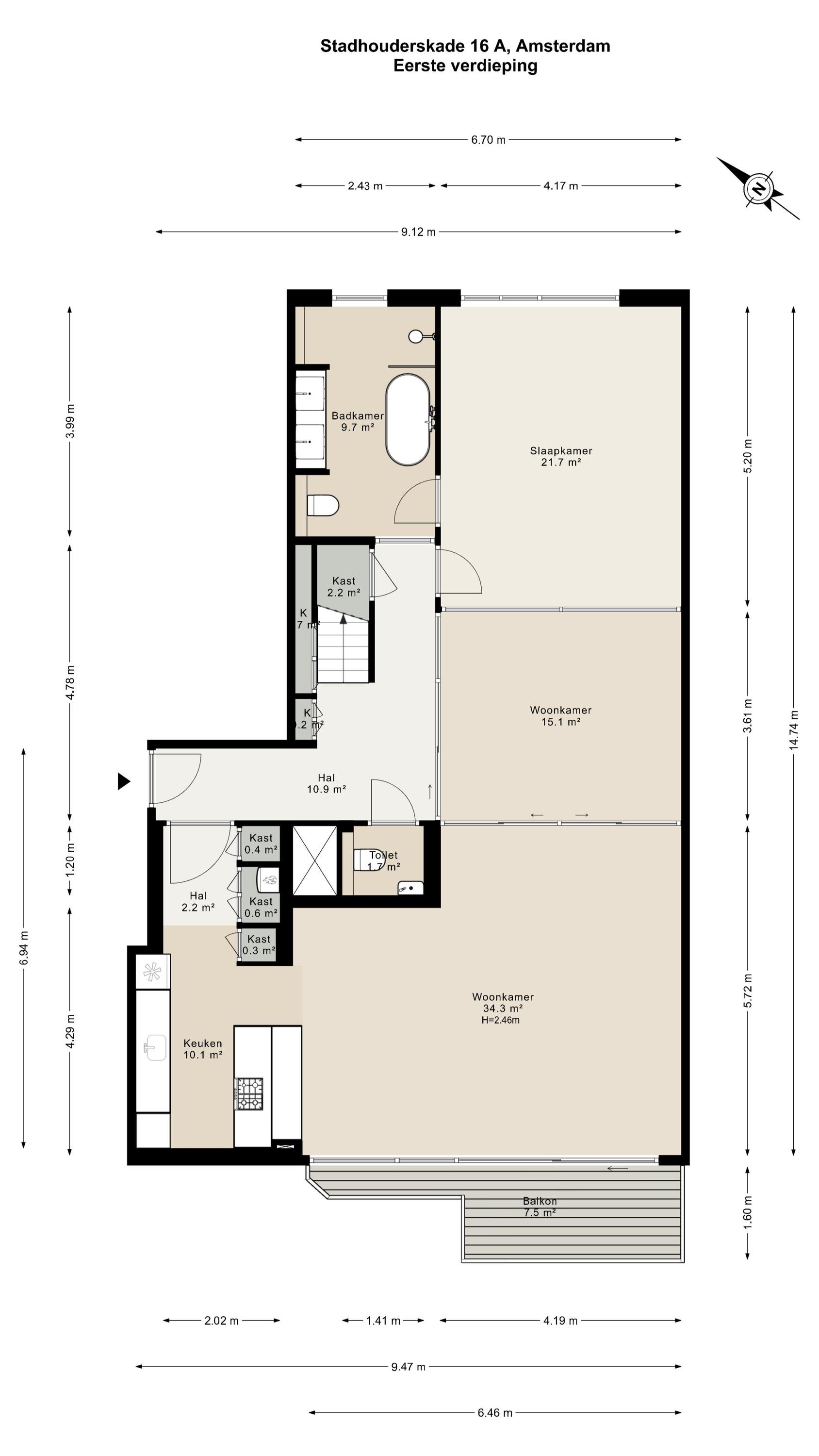
Bij binnenkomst wordt u verwelkomd door een royale entree en aan uw rechterzijde loopt u langs handige inbouwkasten, voorzien van aansluitingen voor wasmachine en droger, direct door naar de open keuken. Deze bestaat uit een statig kookeiland met inductieplaat, een vaatwasser, combi-oven, koel- en vriescombinatie, een klimaatkast en tot slot een Quooker. De ingebouwde verlichting in de keuken geeft de gehele ruimte bijzonder veel sfeer waardoor deze tot één van de vele eyecatchers van dit appartement behoort. Vanuit de open woonkamer heeft u toegang tot het riante zonneterras van ca. 8m², gelegen op het zuid westen. Door de plafond hoge raampartijen en schuifdeuren vangt de woonkamer met eetkamer en-suite enorm veel natuurlijk zonlicht, wat prachtig door de stalen glazen deuren tot aan de slaapkamer aan de achterzijde doorschijnt. Deze master bedroom van bijna 22 m² biedt genoeg ruimte voor een King Size bed en heeft een open uitzicht over het water van de Singelgracht. Bovendien beschikt deze slaapkamer over een moderne badkamer en-suite, die is voorzien van een vrijstaand ligbad, een inloopdouche met geblindeerd glas, een dubbele op maat gemaakte wastafel met meubel en een toilet. Tevens is deze badkamer toegankelijk vanuit de centrale hal, waar zich ook een plafond hoge garderobekast bevindt en waar de trap naar de tweede verdieping te vinden is.

Tweede verdieping

Op de tweede verdieping van dit turn-key appartement heeft u vanuit de brede overloop toegang tot nog twee goed bemeten slaapkamers, beiden voorzien van fijne verlichting en verfijnde raampartijen. De badkamer op deze verdieping is voorzien van een inloopdouche, een dubbele wastafel met meubel en een toilet. Bovendien vindt u nog een handige inbouwkast vanuit de overloop, waar u tevens aansluitingen voor wasmachine en droger vindt.

Tot slot heeft u nog de beschikking over een separate berging van ca. 6 m², gelegen op de eerste verdieping van het gebouw.

Bijzonderheden:

- Appartementsrecht van ca. 157 m² (gemeten conform NEN2580 meetinstructie)
- Gemeubileerd
- Geheel gerenoveerd met hoogwaardige afwerking
- Riant zonneterras (ca. 8 m²) gelegen op het zuid westen
- Onderdeel van complex Byzantium, pal gelegen aan het Vondelpark
- Het complex is zeer goed beveiligd, voorzien van 24-uurs camerabewaking en een conciërge
- Drie goed bemeten slaapkamers
- Twee badkamers
- Geheel voorzien van vloerverwarming
- Energielabel A
- Huurprijs exclusief nutsvoorzieningen
- Oplevering in overleg

Deze informatie is door ons met de nodige zorgvuldigheid samengesteld. Onzerzijds wordt echter geen enkele aansprakelijkheid aanvaard voor enige onvolledigheid, onjuistheid of anderszins, dan wel de gevolgen daarvan. Alle opgegeven maten en oppervlakten zijn indicatief. Koper heeft zijn eigen onderzoeksplicht naar alle zaken die voor hem of haar van belang zijn. Met betrekking tot deze woning is de makelaar adviseur van verkoper. Wij adviseren u een deskundige (NVM-)makelaar in te schakelen die u begeleidt bij het aankoopproces. Indien u specifieke wensen heeft omtrent de woning, adviseren wij u deze tijdig kenbaar te maken aan uw aankopend makelaar en hiernaar zelfstandig onderzoek te (laten) doen. Indien u geen deskundige vertegenwoordiger inschakelt, acht u zich volgens de wet deskundige genoeg om alle zaken die van belang zijn te kunnen overzien. Van toepassing zijn de NVM voorwaarden.

Kenmerken

Overdracht
Huurprijs
€ 7.750 p.m.
Status
beschikbaar
Aanvaarding
in overleg
Bouw
Soort woonhuis
Tussenverdieping
Soort bouw
appartement
Bouwjaar
1991
Energieklasse
A
Soort dak
samengesteld dak
Slaapkamers
3
Badkamers
2
Oppervlakten en inhoud
Woonoppervlakte
157 m2
Overige inpandige ruimte
0 m2
Gebouwgebonden buitenruimte
8 m2
Externe bergruimte
4 m2
Inhoud
485 m3
faciliteiten
Mechanische ventilatie
Buitenzonwering
Lift
Aan park
In centrum
Baerz & Co Property Brochure

Brochure

Informatie / bezichtigingsaanvraag

Video's

Foto's

Plattegronden