AMSTERDAM
Prinsengracht 683 D - 1017 JT
Nederland

Sander Bovenkerk profile image
Sander Bovenkerk
Real estate agent
€1.395.000 k.k.
Woonoppervlakte
131m2
Perceeloppervlakte
N/A
Slaapkamers
1

Omschrijving

Prinsengracht 683 D, 1017 JT Amsterdam
Wonen aan de Prinsengracht, in het hart van de Amsterdamse grachtengordel, met vrij uitzicht op het water én een diepe achtertuin: dat is wonen op een zeldzaam mooie plek.

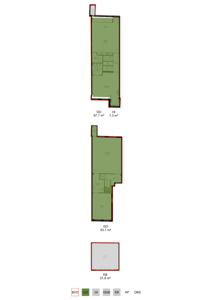
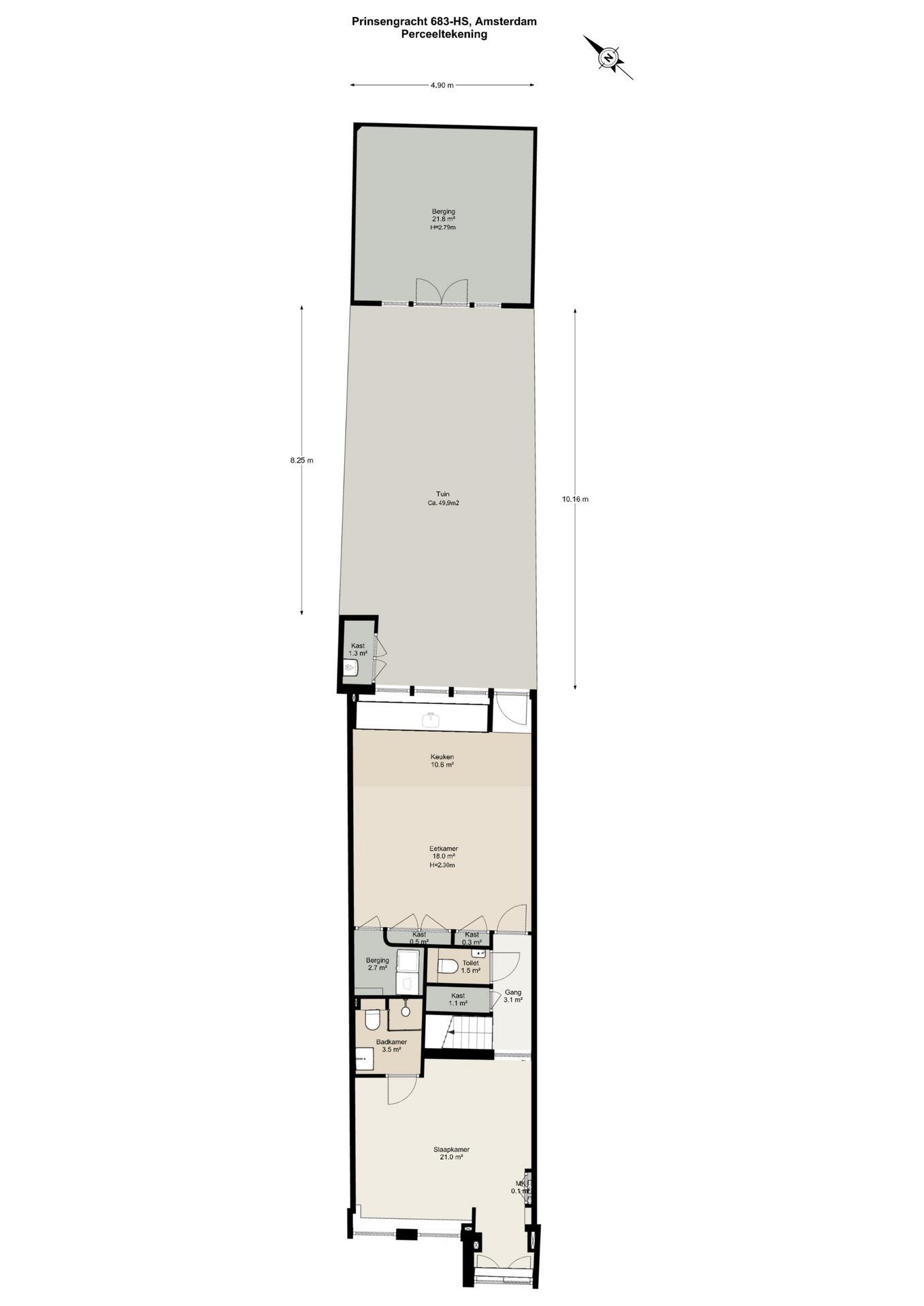
Dit charmante appartement van ca. 130 m² is verdeeld over de bel-etage en het souterrain en combineert karakteristieke details met een praktische indeling. Met onder andere een royale woon-/werkkamer aan de voorzijde, een woonkamer aan de tuinzijde, een ruime slaapkamer en een vrijstaande berging van ca. 22 m² is dit een bijzonder object op eigen grond.

Indeling
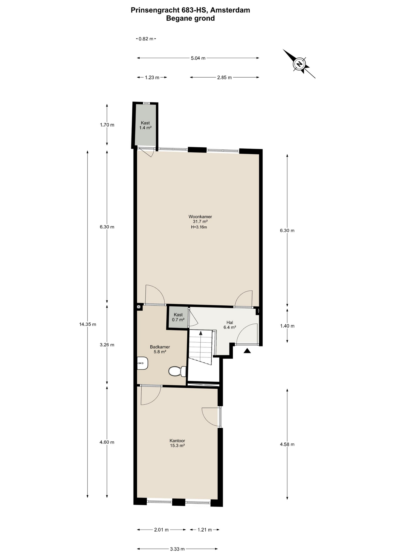
Via de gemeenschappelijke entree aan de Prinsengracht bereikt u aan het einde van de hal de woning op de bel-etage. U komt binnen in een hal met een separate kast, die toegang biedt tot de vertrekken op deze verdieping én de trap naar het souterrain. De bel-etage heeft een warme, karaktervolle uitstraling met veel lichtinval en vrij uitzicht op de gracht.

Aan de voorzijde bevindt zich een ruime kamer, ideaal als werkkamer of aparte eetkamer. Deze kamer beschikt bovendien over een eigen toegangsdeur vanuit de gemeenschappelijke hal. Aan de achterzijde ligt de woonkamer met uitzicht op de binnentuin. Beide kamers zijn voorzien van karakteristieke houten balken en hoge ramen, wat zorgt voor een prettige lichtinval.

De twee vertrekken worden van elkaar gescheiden door een toilet met separaat fonteintje, bereikbaar vanuit beide kamers.

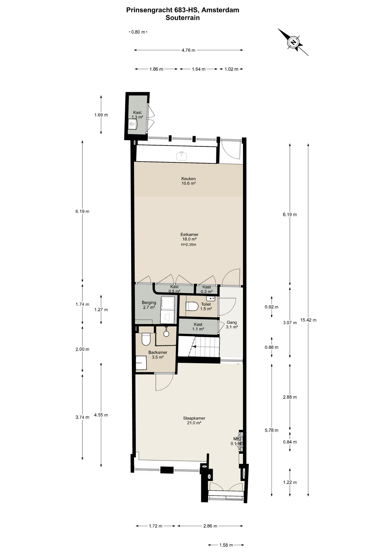
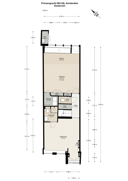
Souterrain
Via de interne trap bereikt u het souterrain, dat ruim en functioneel is ingedeeld. Aan de achterzijde bevindt zich de eetkamer met aangrenzende keuken. De keuken is aan de tuinzijde gesitueerd en biedt directe toegang tot de diepe achtertuin, waardoor binnen en buiten op een prettige manier met elkaar zijn verbonden. De keuken is voorzien van een Quooker, vaatwasser, een los gasfornuis met oven en een koel-vriescombinatie. Daarnaast beschikt de keuken over prachtige ingebouwde houten kasten, ideaal voor extra bergruimte. Vanuit de keuken is er toegang tot een aparte ruimte met opstelplaats voor wasmachine en droger.

Centraal in het souterrain bevinden zich diverse praktische ruimtes, waaronder een separaat toilet, een badkamer met douche, wastafel en toilet, meerdere vaste kasten en een aparte berging. Deze slimme indeling zorgt voor veel opbergruimte en comfort.

Aan de voorzijde van het souterrain ligt de ruime slaapkamer. Deze kamer is rustig gelegen en biedt voldoende ruimte voor een groot bed en een kastenwand. Bovendien heeft u vanuit de slaapkamer directe toegang tot de badkamer.

Tuin en berging
Via het souterrain bereikt u de diepe achtertuin van ca. 50 m²: een zeldzame buitenruimte op deze locatie in de grachtengordel. Achterin de tuin bevindt zich een vrijstaand tuinhuis van ca. 22 m², ideaal voor fietsen, opslag of als hobbyruimte. De ruimte wordt momenteel gebruikt als apart gastenverblijf.

Locatie en bereikbaarheid
De woning is gelegen op een uitzonderlijke locatie aan de Prinsengracht, tussen de Leidsegracht en de Leidsestraat, en op loopafstand van zowel het Koningsplein als het Leidseplein. Deze centrale plek in de Amsterdamse grachtengordel staat bekend om haar charmante straatjes, iconische grachtenpanden en het rijke aanbod aan boetiekwinkels, speciaalzaken, cafés, restaurants en culturele hotspots.

Voor dagelijkse boodschappen zijn er diverse voorzieningen in de nabije omgeving, terwijl u ook binnen enkele minuten de gezellige Negen Straatjes, de Jordaan en het Museumkwartier bereikt. Een ideale combinatie van karakteristiek stadsleven met alles wat Amsterdam te bieden heeft binnen handbereik.

De bereikbaarheid is uitstekend. Tram- en busverbindingen bevinden zich op korte loopafstand en met de fiets bent u binnen enkele minuten bij zowel Station Amsterdam Centraal als Amsterdam Zuid. Ook met de auto is de woning goed bereikbaar via de uitvalswegen naar de Ring A10.

Bijzonderheden
- Appartementsrecht van ca. 130m² (gemeten conform NEN2580 meting);
- Ruime tuin van ca. 50m²;
- Vrijstaande berging van ca. 22m²;
- Er heeft volledig funderingsherstel plaatsgevonden in 2023;
- Vloerverwarming in het souterrain;
- Keuken en badkamer zijn geïnstalleerd in 2023;
- Rijksbeschermd stadsgezicht;
- UNESCO werelderfgoed;
- C.V. installatie uit 2023;
- Gelegen op eigen grond;
- Kleine vereniging van eigenaren;
- VvE bijdrage is € 150.00,- per maand;
- Ouderdoms clausule en niet-zelfbewoningsclausule;
- Oplevering in overleg.

Deze informatie is door ons met de nodige zorgvuldigheid samengesteld. Onzerzijds wordt echter geen enkele aansprakelijkheid aanvaard voor enige onvolledigheid, onjuistheid of anderszins, dan wel de gevolgen daarvan. Alle opgegeven maten en oppervlakten zijn indicatief. Koper heeft zijn eigen onderzoeksplicht naar alle zaken die voor hem of haar van belang zijn. Met betrekking tot deze woning is de makelaar adviseur van verkoper. Wij adviseren u een deskundige (NVM-)makelaar in te schakelen die u begeleidt bij het aankoopproces. Indien u specifieke wensen heeft omtrent de woning, adviseren wij u deze tijdig kenbaar te maken aan uw aankopend makelaar en hiernaar zelfstandig onderzoek te (laten) doen. Indien u geen deskundige vertegenwoordiger in-schakelt, acht u zich volgens de wet deskundige genoeg om alle zaken die van belang zijn te kun-nen overzien. Van toepassing zijn de NVM voorwaarden.

Kenmerken

Overdracht
Vraagprijs
€ 1.395.000 k.k.
Status
beschikbaar
Aanvaarding
in overleg
Bouw
Soort woonhuis
Dubbel benedenhuis
Soort bouw
appartement
Bouwjaar
1715
Soort dak
zadeldak
Slaapkamers
1
Badkamers
2
Oppervlakten en inhoud
Woonoppervlakte
131 m2
Overige inpandige ruimte
1 m2
Externe bergruimte
22 m2
Inhoud
477 m3
faciliteiten
Natuurlijke ventilatie
Aan rustige weg
In centrum
Aan vaarwater
Baerz & Co Property Brochure

Brochure

Video’s

Plattegronden

Heeren Makelaars

Stadionweg 75
1077 SE Amsterdam

info@heerenmakelaars.nl
+31 204702255

www.heerenmakelaars.nl

Informatie / bezichtigingsaanvraag

Sander Bovenkerk profile image
Sander Bovenkerk
Real estate agent

Een luxe woning kopen in Amsterdam

Amsterdam biedt een kosmopolitische levensstijl, gekenmerkt door erfgoed, verbondenheid en discrete luxe. Bewoners profiteren van een sterke internationale gemeenschap, hoogwaardige dienstverlening en een bruisende cultuur. De blijvende aantrekkingskracht van de stad schuilt in de combinatie van geschiedenis, verfijning en een vooruitstrevende geest.