AMSTERDAM
Kijkduinstraat 75 H - 1055 XS
Nederland

€1.050.000 k.k.
Woonoppervlakte
120m2
Perceeloppervlakte
N/A
Slaapkamers
4

Omschrijving

Kijkduinstraat 75 H, 1055 XS Amsterdam

Aan de rustige Kijkduinstraat bevindt zich deze sfeervolle en goed ingedeelde benedenwoning van circa 120 m². De woning combineert ruimte, licht en comfort op een fijne, groene locatie in de stad.

De woning beschikt onder andere over een royale woonkamer, een moderne open keuken met uitbouw, vier goed bemeten slaapkamers waarvan de master bedroom een ensuite walkin closet bevat en een sfeervolle, goed verzorgde achtertuin op het zuidwesten. Daarnaast zijn er zowel aan de voor- als achterzijde balkons aanwezig en biedt de woning volop praktische bergruimte. Een instapklare woning met een ideale balans tussen rustig wonen en stedelijke dynamiek.

Indeling
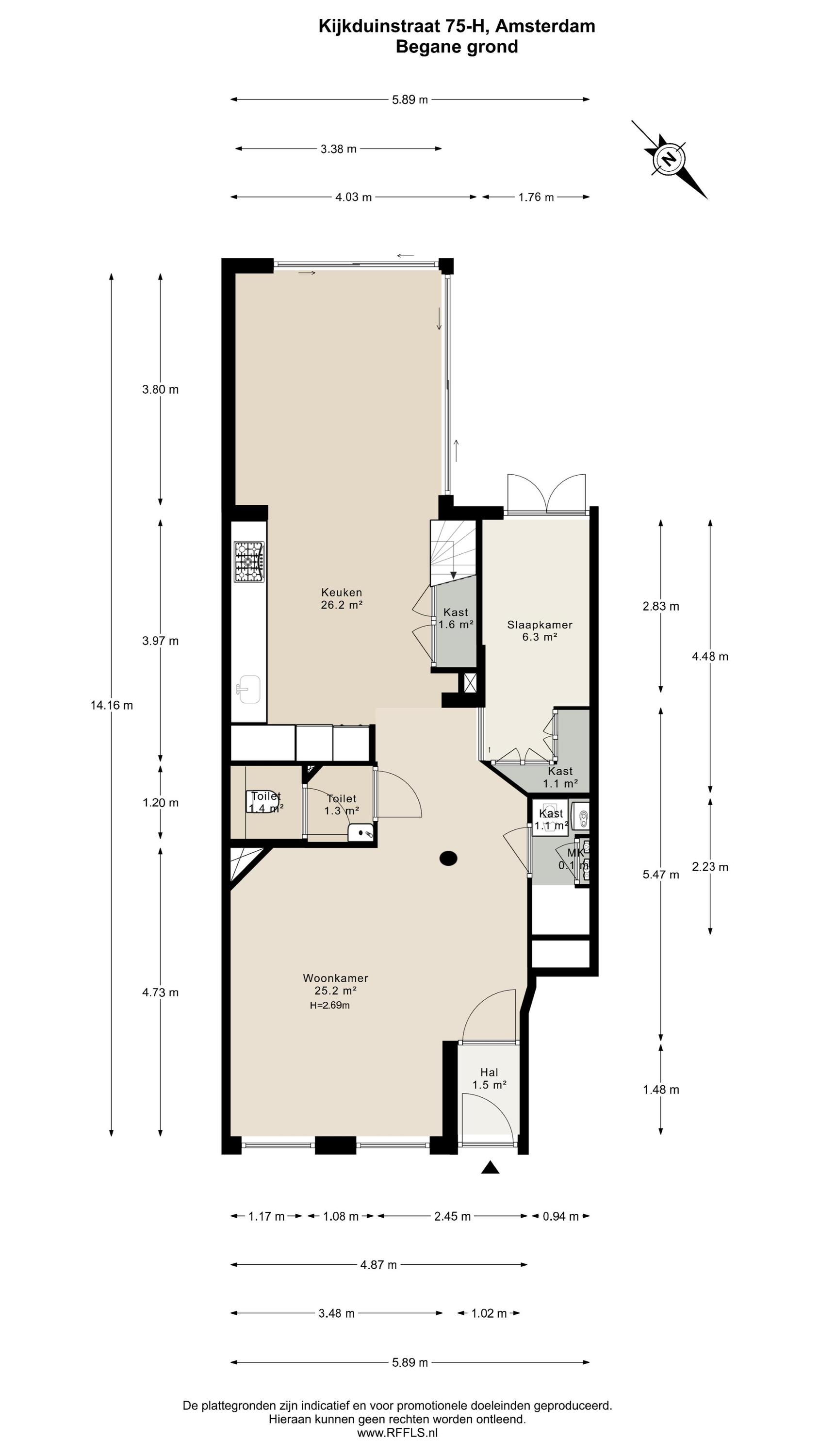
Begane grond
U betreedt de woning via uw eigen voordeur en komt binnen in het tochtportaal, dat toegang biedt tot de lichte woonkamer aan de voorzijde. De woonkamer is ruim opgezet en voorzien van grote raampartijen, waardoor er een prettige hoeveelheid natuurlijk daglicht binnenvalt.

Aan de achterzijde bevindt zich een separate slaap-, werk- of studeerkamer met praktische inbouwkasten en openslaande deuren naar de tuin. Aansluitend treft u de fraaie uitbouw met een royale open keuken, voorzien van diverse inbouwapparatuur, waaronder een elektrische oven, inductiekookplaat met geïntegreerde afzuiging, koel-/vriescombinatie en een Quooker met kokend- en bruiswater.

Dankzij de rondom geplaatste schuifpui is er een naadloze verbinding tussen binnen en buiten en staat de leefruimte in direct contact met de zonnige achtertuin. De tuin is verzorgd aangelegd en beschikt over een praktische schuur voor extra bergruimte.

Te midden van deze woonlaag bevindt zich een separaat toilet. Daarnaast is er een aparte ruimte voor de meterkast en wasmachine aansluiting.

Eerste verdieping
Via de interne trap bereikt u de eerste verdieping. De overloop geeft toegang tot alle vertrekken en kenmerkt zich door een prettige lichtinval, en heeft toegang tot het balkon aan de achterzijde.

Aan de achterzijde van de woning bevinden zich twee goed bemeten slaapkamers, beide voorzien van openslaande deuren naar het balkon. Hierdoor ontstaat een fijne verbinding tussen binnen en buiten en genieten de kamers van veel licht en een groen uitzicht.

Op de overloop bevindt zich de moderne badkamer, uitgevoerd in een rustige en verzorgde stijl en voorzien van een ligbad, inloopdouche, toilet en een fraaie wastafel met meubel.

Aan de voorzijde ligt de royale master bedroom, die dankzij de brede raampartijen een aangename lichtinval heeft. Aangrenzend bevindt zich een ruime walk-in closet, die niet alleen volop kastruimte biedt, maar tevens ruimte heeft voor een werkplek of dressing. Vanuit deze ruimte is eveneens het balkon aan de voorzijde bereikbaar.

Tuin en bergingen
De woning beschikt over een fraai aangelegde en zonnige achtertuin, gelegen op het zuidwesten. Dankzij deze gunstige ligging geniet u hier van veel zonuren in de middag en avond. De tuin is verzorgd aangelegd en biedt meerdere zitmogelijkheden, waardoor er volop ruimte is voor zowel een eettafel als een loungehoek.

Achter in de tuin bevindt zich een praktische vrijstaande schuur. Daarnaast beschikt de woning over een tweede, separate berging op een bovengelegen verdieping in het pand, wat zorgt voor extra opslagruimte en comfort.

Locatie en bereikbaarheid
De woning is gelegen aan de Kijkduinstraat 75 H, in stadsdeel Bos en Lommer, direct achter de Admiraal de Ruijterweg. Deze rustige en groene straat ligt in een levendige buurt die de afgelopen jaren een sterke ontwikkeling heeft doorgemaakt en inmiddels behoort tot een van de meest gewilde delen van de stad.

In de directe omgeving bevindt zich een breed en divers aanbod aan winkels, speciaalzaken en horecagelegenheden. Voor de dagelijkse boodschappen kunt u terecht op de Bos en Lommerweg en het Bos en Lommerplein, waar tevens meerdere dagen per week markt wordt gehouden. Daarnaast zijn er tal van gezellige cafés en restaurants op loopafstand, zoals onder andere Friedhats FUKU Café, Abbey, het hippe No Men's Art Gallery, Bara Pepe en Franse bakker Farine.

Voor ontspanning en recreatie liggen het Erasmuspark en het Westerpark op korte afstand, terwijl ook het Rembrandtpark en het centrum van Amsterdam binnen circa 10 minuten fietsen bereikbaar zijn.

De bereikbaarheid is uitstekend. Station Sloterdijk bevindt zich op korte fietsafstand en biedt snelle verbindingen richting onder andere Schiphol en Amsterdam Centraal. Daarnaast zijn diverse tram- en buslijnen in de directe omgeving aanwezig. Met de auto zijn de Ring A10 en uitvalswegen richting onder andere de A4, A5 en A8 eenvoudig en snel te bereiken.

Bijzonderheden
- Appartementsrecht van ca. 120 m² (gemeten conform NEN2580 meetinstructie);
- Tuin van ca. 44m² op het zuidwesten;
- Vier slaapkamers waarvan de master bedroom een ensuite walkin closet bevat;
- Balkon aan de voor- en achterzijde;
- Keuken uit 2021 met in 2026 vernieuwde inbouwapparatuur;
- Actieve vereniging van eigenaren in professioneel beheer;
- Periodieke bijdrage van € 273.33,- per maand;
- Energielabel D;
- Woning gelegen op grond belast met erfpacht.
- De erfpachtcanon van het huidige tijdvak is afgekocht tot en met 31 december 2050 (AB 1994);
- De aanvraag overstap erfpacht eeuwigdurende erfpacht is gedaan.
- Oplevering in overleg.

Deze informatie is door ons met de nodige zorgvuldigheid samengesteld. Onzerzijds wordt echter geen enkele aansprakelijkheid aanvaard voor enige onvolledigheid, onjuistheid of anderszins, dan wel de gevolgen daarvan. Alle opgegeven maten en oppervlakten zijn indicatief. Koper heeft zijn eigen onderzoeksplicht naar alle zaken die voor hem of haar van belang zijn. Met betrekking tot deze woning is de makelaar adviseur van verkoper. Wij adviseren u een deskundige (NVM-)makelaar in te schakelen die u begeleidt bij het aankoopproces. Indien u specifieke wensen heeft omtrent de woning, adviseren wij u deze tijdig kenbaar te maken aan uw aankopend makelaar en hiernaar zelfstandig onderzoek te (laten) doen. Indien u geen deskundige vertegenwoordiger in-schakelt, acht u zich volgens de wet deskundige genoeg om alle zaken die van belang zijn te kun-nen overzien. Van toepassing zijn de NVM voorwaarden.

Kenmerken

Overdracht
Vraagprijs
€ 1.050.000 k.k.
Status
onder bod
Aanvaarding
in overleg
Bouw
Soort woonhuis
Benedenwoning
Soort bouw
appartement
Bouwjaar
1934
Energieklasse
D
Soort dak
plat dak
Slaapkamers
4
Badkamers
1
Oppervlakten en inhoud
Woonoppervlakte
120 m2
Overige inpandige ruimte
0 m2
Gebouwgebonden buitenruimte
7 m2
Externe bergruimte
11 m2
Inhoud
426 m3
faciliteiten
Mechanische ventilatie
Tv kabel
Aan rustige weg
In woonwijk
Baerz & Co Property Brochure

Brochure

Video’s

Heeren Makelaars

Stadionweg 75
1077 SE Amsterdam

info@heerenmakelaars.nl
+31 204702255

www.heerenmakelaars.nl

Informatie / bezichtigingsaanvraag

Michiel Floberg profile image
Michiel Floberg
Real estate agent

Een luxe woning kopen in Amsterdam

Amsterdam biedt een kosmopolitische levensstijl, gekenmerkt door erfgoed, verbondenheid en discrete luxe. Bewoners profiteren van een sterke internationale gemeenschap, hoogwaardige dienstverlening en een bruisende cultuur. De blijvende aantrekkingskracht van de stad schuilt in de combinatie van geschiedenis, verfijning en een vooruitstrevende geest.