AMSTERDAM
Herman Gorterstraat 24 - 1077 WH
Nederland

Eran Hausel profile image
Eran Hausel
Real estate agent
€10.000.000 k.k.
Woonoppervlakte
397m2
Perceeloppervlakte
618m2
Slaapkamers
6

Omschrijving

Herman Gorterstraat 24, 1077 WH AMSTERDAM

Deze unieke villa gelegen in Amsterdam-Zuid met een woonoppervlak van circa 397 m² is verdeeld over drie volwaardige woonlagen, met daarnaast meerdere buitenruimtes waaronder een aanlegsteiger, tuin, balkon, en een royaal dakterras.

Ligging & Bereikbaarheid
De Herman Gorterstraat ligt in een van de meest prestigieuze delen van Amsterdam-Zuid, in de rustige en groene Apollobuurt. Deze wijk staat bekend om zijn statige architectuur, brede straten en sfeervolle lanen. In de buurt vindt u tal van voorzieningen voor de dagelijkse boodschappen, zoals de Albert Heijn, delicatessenzaken en diverse boetieks in de nabijgelegen Beethovenstraat. Daarnaast zijn er vele leuke restaurants, chique cafés en speciaalzaken die bijdragen aan het levendige karakter van de omgeving. Op korte afstand bevinden zich ook het Museumplein en de stijlvolle P.C. Hooftstraat, waar u kunt genieten van een breed aanbod aan musea, luxe winkels en eetgelegenheden.
Voor ontspanning en recreatie kunt u terecht in het nabijgelegen Beatrixpark of het Vondelpark, beide op korte fietsafstand. De omgeving biedt een perfecte balans tussen rust en stedelijke voorzieningen, met volop groene ruimten om van te genieten. De locatie is zeer gunstig gelegen ten opzichte van diverse uitvalswegen (A10 en A4) en het openbaar vervoer. NS Station Amsterdam Zuid, het WTC, de Zuidas en de luchthaven Schiphol zijn allen snel te bereiken. Parkeren geschiedt middels het vergunningensysteem, maar parkeergelegenheid in de straat is er altijd genoeg. Daarnaast is het mogelijk om twee vergunningen op dit adres aan te vragen zonder wachtlijst.

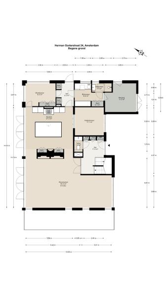
Indeling
Begane grond
Entree; middels de hal met garderobe en separaat toilet bereikt u het leefgedeelte van de woning. Stalen deuren geven toegang tot de royale eet en woonkamer, welke is voorzien van een open haard en openslaande deuren naar zowel de voor- als achtertuin. Grote raampartijen zorgen voor een prettige lichtinval en verbinden de ruimte op natuurlijke wijze met de buitenomgeving. Grenzend aan de woonkamer bevindt zich de ruim opgezette woonkeuken. Deze is uitgerust met een centraal spoeleiland met dubbele spoelbak, dubbele vaatwasser, Quooker en een uitschuifbare pantry. Aan de overzijde bevindt zich het kookgedeelte, voorzien van een vijfpits gasfornuis, een verborgen kruidenkabinet, een royale Amerikaanse koelkast met geïntegreerde water- en ijsdispenser, en veel opbergruimte. Ook zijn er twee ovens en een warmhoudlade van Bosch ingebouwd. De keuken beschikt daarnaast over een eigen gashaard, welke samen met de open haard in de woonkamer is geïntegreerd in één dubbele wand. Openslaande deuren in de keuken bieden toegang tot de achtertuin met aanlegsteiger, geschikt voor het aanmeren van een boot.
Aangrenzend aan de keuken ligt de bijkeuken met extra opslagruimte, welke doorloopt naar een complete badkamer voorzien van een inloopdouche en wastafel. Vanuit deze ruimte heeft u binnendoor toegang tot de ruime garage, geschikt voor fietsen, berging of werkruimte. Aan de achterzijde van de woning bevindt zich een werkkamer met zicht op de tuin. Aan de rechterzijde ligt een multifunctionele kamer, momenteel ingericht als gym, welke afsluitbaar is middels stalen schuifdeuren.

Souterrain
Middels de trap in de hal bereikt u het souterrain. Deze verdieping beschikt over één royale slaapkamer, welke toegang heeft tot een patio middels openslaande deuren. Dankzij de koekoeken is er verrassend veel daglicht aanwezig. Verder vindt u op deze verdieping een badkamer met douche en toilet, een grote hal, een ruime berging en een technische ruimte. Daarnaast is een deel van het souterrain ingericht als thuisbioscoop, afgesloten met glazen deuren die het daglicht buiten houden. Aangrenzend bevindt zich een bar. Ook is er nog een grote open ruimte aanwezig, thans ingericht met een pooltafel, maar vrij in te delen als bijvoorbeeld lounge, werkplek of hobbyruimte.

Eerste verdieping
De trap leidt naar een ruime overloop met toegang tot vier slaapkamers, twee badkamers en een separaat toilet. De master bedroom bevindt zich aan de achterzijde en beschikt over een royale inbouwkast en openslaande deuren naar een balkon. Tevens is er een en suite badkamer voorzien van ligbad, inloopdouche, dubbele wastafel met meubel en een afsluitbaar toilet. Twee andere slaapkamers op deze verdieping hebben elk hun eigen balkon, aan respectievelijk de voor- en achterzijde van de woning. De vierde slaapkamer — momenteel ingericht als logeerkamer — ligt aan de voorzijde en beschikt niet over buitenruimte. De tweede badkamer is centraal gesitueerd en voorzien van een inloopdouche, ligbad en dubbele wastafel met meubel.

Tweede verdieping
De bovenste verdieping is bereikbaar middels een vaste trap en geeft toegang tot een ruim dakterras van circa 105 m². Dit terras biedt een uniek uitzicht van 360 graden over de omgeving. Centraal op het terras bevindt zich een ingebouwde jacuzzi — een heerlijke plek om in alle rust en privacy te ontspannen.

Bijzonderheden
- Gebruiksoppervlakte woning ca. 397 m² (gemeten conform NEN2580 meetinstructie)
- Vijf ruime slaapkamers, inclusief een luxe master suite met en suite badkamer;
- Ruime en zonnige tuin rondom de gehele woning van ca. 441 m², met directe toegang tot een aanlegsteiger;
- Groot dakterras van ca. 105 m² met ingebouwde jacuzzi en 360° uitzicht over Amsterdam-Zuid;
- Souterrain met hoge plafonds, royale bergruimte, thuisbioscoop en bar;
- Energielabel A+
- Erfpacht is eeuwigdurend afgekocht onder de gunstige voorwaarden van AB2016;
- Twee parkeervergunningen mogelijk
- Oplevering in overleg
Deze informatie is door ons met de nodige zorgvuldigheid samengesteld. Onzerzijds wordt echter geen enkele aansprakelijkheid aanvaard voor enige onvolledigheid, onjuistheid of anderszins, dan wel de gevolgen daarvan. Alle opgegeven maten en oppervlakten zijn indicatief. Koper heeft zijn eigen onderzoeksplicht naar alle zaken die voor hem of haar van belang zijn. Met betrekking tot deze woning is de makelaar adviseur van verkoper. Wij adviseren u een deskundige (NVM-)makelaar in te schakelen die u begeleidt bij het aankoopproces. Indien u specifieke wensen heeft omtrent de woning, adviseren wij u deze tijdig kenbaar te maken aan uw aankopend makelaar en hiernaar zelfstandig onderzoek te (laten) doen. Indien u geen deskundige vertegenwoordiger inschakelt, acht u zich volgens de wet deskundige genoeg om alle zaken die van belang zijn te kunnen overzien. Van toepassing zijn de NVM voorwaarden.

Kenmerken

Overdracht
Vraagprijs
€ 10.000.000 k.k.
Status
beschikbaar
Aanvaarding
in overleg
Bouw
Soort woonhuis
Eengezinswoning
Soort bouw
vrijstaande woning
Bouwjaar
2014
Energieklasse
A+
Soort dak
plat dak
Slaapkamers
6
Badkamers
4
Oppervlakten en inhoud
Woonoppervlakte
397 m2
Overige inpandige ruimte
11 m2
Gebouwgebonden buitenruimte
141 m2
Inhoud
1531 m3
Perceeloppervlakte
618 m2
faciliteiten
Rolluiken
Tv kabel
Balansventilatie
Aan water
In centrum
In woonwijk
Vrij uitzicht
Baerz & Co Property Brochure

Brochure

Video’s

Heeren Makelaars

Stadionweg 75
1077 SE Amsterdam

info@heerenmakelaars.nl
+31 204702255

www.heerenmakelaars.nl

Informatie / bezichtigingsaanvraag

Eran Hausel profile image
Eran Hausel
Real estate agent

Een luxe woning kopen in Amsterdam

Amsterdam biedt een kosmopolitische levensstijl, gekenmerkt door erfgoed, verbondenheid en discrete luxe. Bewoners profiteren van een sterke internationale gemeenschap, hoogwaardige dienstverlening en een bruisende cultuur. De blijvende aantrekkingskracht van de stad schuilt in de combinatie van geschiedenis, verfijning en een vooruitstrevende geest.