AMSTERDAM
Da Costastraat 33 3 - 1053 ZA
Nederland

Steijn Schothorst profile image
Steijn Schothorst
Real Estate Agent
€1.395.000 k.k.
Woonoppervlakte
148m2
Perceeloppervlakte
N/A
Slaapkamers
2

Omschrijving

Royaal en karakteristiek appartement (ca. 148 m²) met dakterras, gelegen aan de Da Costastraat! De woning beslaat twee verdiepingen en heeft een opvallend brede voorgevel met maar liefst vier royale raampartijen. Het appartement beschikt over een ruime woonkamer met open keuken, een balkon, twee goed bemeten slaapkamers en twee moderne badkamers. Het royale dakterras met buitenkeuken biedt een prachtig uitzicht over de stad. Dit loft-achtige appartement is afgewerkt met hoogwaardige materialen en oog voor detail, waardoor een comfortabele en stijlvolle woonomgeving is gecreëerd, met de bruisende binnenstad binnen handbereik.

Ligging & Bereikbaarheid

De Da Costastraat ligt in de populaire en levendige wijk Oud-West, op steenworp afstand van de Hallen en de Ten Katemarkt. Hier vindt u een grote variatie aan hippe horecagelegenheden en gezellige cafés, zoals Bar Centraal, Café Panache en Foodhallen, waar u kunt genieten van culinaire hoogstandjes of een borrel met vrienden. Ook zijn er diverse speciaalzaken en boetiekjes in de directe omgeving. Voor ontspanning en groen kunt u terecht in het nabijgelegen Vondelpark, op slechts enkele minuten fietsen. Daarnaast is het gezellige Bilderdijkpark vlakbij voor een wandeling of een momentje in het groen. Qua bereikbaarheid woont u hier uitstekend: tramlijnen en busverbindingen brengen u snel naar het centrum, station Amsterdam Centraal en andere stadsdelen. Met de fiets bent u in enkele minuten in de Jordaan of op de grachten. Met de auto bent u via de Nassaukade en Jan van Galenstraat zo op de Ring A10. Parkeren is mogelijk via betaald parkeren op straat of met een parkeervergunning. Zowel in de Da Costastraat zelf als in de directe omgeving is op ieder moment van de dag ruim voldoende parkeergelegenheid beschikbaar.

Indeling

Net gemeenschappelijk trappenhuis, entree van het appartement op de tweede verdieping

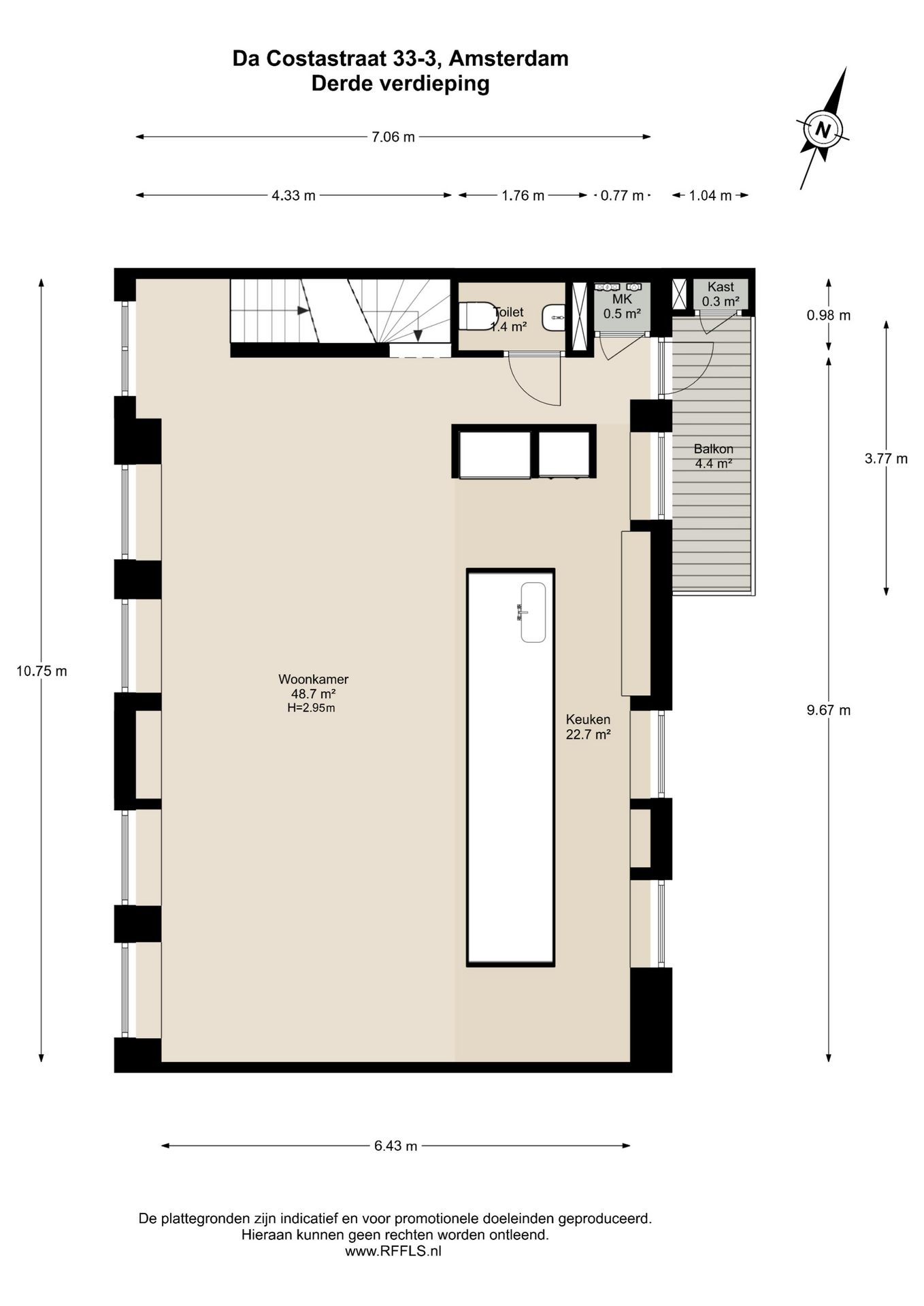
Derde verdieping

Via de trap bereikt u direct de royale, open woonkamer op de derde verdieping. De ruimte is extra breed en beschikt over maar liefst vier ramen – het dubbele van wat gebruikelijk is in Amsterdam – waardoor er een overvloed aan daglicht binnenvalt. De moderne open keuken is uitgerust met een imposant kookeiland met eetgedeelte en hoogwaardige inbouwapparatuur van onder andere Boretti, waaronder een oven, koel-vriescombinatie, 8-pits gasfornuis met afzuigkap, vaatwasser en wijnklimaatkast. Bovendien is er volop bergruimte aanwezig. Vanuit de keuken heeft u toegang tot het brede, gezellige balkon (circa 4 m²), gelegen op het oosten. Daarnaast bevindt zich op deze verdieping een separaat toilet met fonteintje en een handige berging. Een elegante trap met deels transparante brick-wall leidt u naar de vierde verdieping.

Vierde verdieping

Op de bovenste verdieping vindt u de royale master bedroom, voorzien van een stijlvol bedmeubel met geïntegreerde verlichting, een vrijstaand bad, een airco-installatie en een karakteristieke balkenconstructie. En-suite ligt de moderne badkamer met industriële details, uitgerust met een dubbele wastafel met meubel, inloopdouche en toilet. Via de ruime hal bereikt u de tweede, goed bemeten slaapkamer, eveneens met een eigen badkamer voorzien van een wastafelmeubel en inloopdouche. Tegenover deze slaapkamer bevindt zich een separate wasruimte.

Dakterras

Het absolute hoogtepunt van deze woning is het riante dakterras, dat een prachtig uitzicht over de stad biedt. Hier kunt u tot in de late uurtjes genieten van de zon. Het terras is bovendien uitgerust met een luxe buitenkeuken met grill, spoelbak, ijsmachine en wijnklimaatkast – een perfecte plek voor ontspannen avonden en sfeervolle diners.

Bijzonderheden:

- Appartementsrecht van ca. 148 m² (gemeten conform NEN2580 meetinstructie)
- Extra brede voorgevel, voorzien van vier grote raampartijen
- Loft-achtig karakteristiek appartement
- Twee goed bemeten slaapkamers
- Twee badkamers
- Balkon van ca. 4 m², gelegen op het oosten
- Riant dakterras (ca. 34 m²)
- Buitenkeuken voorzien van een BBQ grill, spoelbak, ijsmachine en wijnklimaatkast
- Airconditioning aanwezig
- Gezonde, kleinschalige VvE
- Recht van erfpacht. Overstap eeuwigdurende erfpacht (AB 2016) vastgelegd bij notaris op 11-08-2021. Jaarcanon bedraagt € 2.369,60 met een jaarlijkse indexering
- Oplevering in overleg

Deze informatie is door ons met de nodige zorgvuldigheid samengesteld. Onzerzijds wordt echter geen enkele aansprakelijkheid aanvaard voor enige onvolledigheid, onjuistheid of anderszins, dan wel de gevolgen daarvan. Alle opgegeven maten en oppervlakten zijn indicatief. Koper heeft zijn eigen onderzoek plicht naar alle zaken die voor hem of haar van belang zijn. Met betrekking tot deze woning is de makelaar adviseur van verkoper. Wij adviseren u een deskundige (NVM-)makelaar in te schakelen die u begeleidt bij het aankoopproces. Indien u specifieke wensen heeft omtrent de woning, adviseren wij u deze tijdig kenbaar te maken aan uw aankopend makelaar en hiernaar zelfstandig onderzoek te (laten) doen. Indien u geen deskundige vertegenwoordiger inschakelt, acht u zich volgens de wet deskundige genoeg om alle zaken die van belang zijn te kunnen overzien. Van toepassing zijn de NVM voorwaarden.

Kenmerken

Air conditioning
Overdracht
Vraagprijs
€ 1.395.000 k.k.
Status
beschikbaar
Aanvaarding
in overleg
Bouw
Soort woonhuis
Bovenwoning
Soort bouw
appartement
Energieklasse
D
Slaapkamers
2
Badkamers
2
Oppervlakten en inhoud
Woonoppervlakte
148 m2
Overige inpandige ruimte
0 m2
Gebouwgebonden buitenruimte
38 m2
Inhoud
498 m3
faciliteiten
Mechanische ventilatie
Airconditioning
Baerz & Co Property Brochure

Brochure

Video’s

Plattegronden

Heeren Makelaars

Stadionweg 75
1077 SE Amsterdam

info@heerenmakelaars.nl
+31 204702255

www.heerenmakelaars.nl

Informatie / bezichtigingsaanvraag

Steijn Schothorst profile image
Steijn Schothorst
Real Estate Agent

Een luxe woning kopen in Amsterdam

Amsterdam biedt een kosmopolitische levensstijl, gekenmerkt door erfgoed, verbondenheid en discrete luxe. Bewoners profiteren van een sterke internationale gemeenschap, hoogwaardige dienstverlening en een bruisende cultuur. De blijvende aantrekkingskracht van de stad schuilt in de combinatie van geschiedenis, verfijning en een vooruitstrevende geest.