Benedenwoning te koop in AMSTERDAM

AMSTERDAM Albrecht Dürerstraat 7 - 1077 LS Nederland


Sander Bovenkerk profile image
Sander Bovenkerk
Real Estate Agent
+31 6 55 74 61 72
info@heerenmakelaars.nl

Heeren Makelaars
Stadionweg 75
1077 SE Amsterdam
NETHERLANDS
+31 0204702255
www.heerenmakelaars.nl
info@heerenmakelaars.nl

Woonoppervlakte
213m2
Perceeloppervlakte
N/A
Slaapkamers
3

Omschrijving

Albrecht Dürerstraat 7HS, 1077LS Amsterdam

Hoogwaardig gerenoveerd, state of the art, appartement ca. 213 m² (G.O. BG 175 m² en G.O. kelder 38 m²) met riante zonnige achtertuin van ca. 103 m² gelegen in het populaire Oud-Zuid. Bij de totale renovatie zijn uitsluitend de beste materialen en merken gebruikt. Nergens is op bespaard en alles is in één lijn met elkaar verbonden. Deze prachtige woning beschikt over twee riante slaapkamers, twee badkamers, een luxe uitgevoerde keuken en living en een ruim souterrain. De afwerking van dit appartement is van buitengewoon hoog niveau: kosten noch moeite zijn gespaard

Bereikbaarheid

Om de hoek in de Beethovenstraat bevinden zich vele leuke winkels, restaurants en koffietentjes en een grote AH. Vele musea, maar ook het Beatrixpark en het Vondelpark liggen in de nabijheid. Er is ook een grote keuze aan scholen: zowel goede lagere- als middelbare scholen. De British School en de Franse International School liggen beiden op enkele minuten lopen. Uitstekende bereikbaarheid per auto. Parkeren doet u zo voor de deur. U krijgt hier 2 parkeervergunningen en daarvoor is op dit moment geen wachttijd (conform opgave stadstoezicht)! Er zijn ook zeer goede aansluitingen op het openbaar vervoer (tram 5, bus 358 en 612) en ook NS station en het WTC is dichtbij. Vanaf hier bent u zo in de stad, op uw werk, op de Zuid-as en op Schiphol.

Indeling

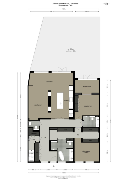
Begane grond

Riant entree met een prachtige marmeren vloer en ingebouwde kasten. Middels openslaande stalen taatsdeuren bereikt u de hal met toegang tot alle vertrekken en separaat toilet.

Aan de achterzijde van de woning, de ruime living met prachtige woonkeuken. Deze luxe uitgevoerde keuken is werkelijk van alle gemakken voorzien: een spoeleiland uitgerust met een Quooker kraan en een klimaatkast, een oven, combi stoomoven, warmhoudplaat, koelkast, vriezer, vaatwasser, inductiekookplaat en een ingebouwde afzuigunit. Alle inbouwapparatuur in deze keuken is van het merk Gaggenau. De ware eyecatcher is de speciale nis met uittrekbare unit voor de koffiemachine. Twee sfeervolle ethanol haarden dienen als scheiding tussen de keuken en het woonkamer gedeelte. De living is voorzien van meerdere inbouwkasten. Het eetkamergedeelte, gelegen in de uitbouw, grenst aan de keuken en het woonkamergedeelte en is voorzien van elektrische gordijnen. Lichtkoepels voorzien deze ruimte van bijzonder veel lichtinval. Middels de schuifpui heeft u toegang tot de riante achtertuin, gelegen op het zuid oosten.
Aan de achterzijde is tevens een slaapkamer gesitueerd, deels in de uitbouw, welke ook toegang biedt tot de achtertuin middels openslaande deuren. Deze ruime slaapkamer is voorzien van een ingebouwd bureau, ingebouwde kastenwand en schuifdeuren. De luxe badkamer is te bereiken vanuit de hal en is uitgerust met een dubbele wastafel van natuursteen met meubel, toilet en een ruime douche.
De master bedroom is aan de voorzijde van de woning gelegen. Deze riante kamer biedt een ruime walk-in closet aan weerszijde van de kamer, inclusief ingebouwde kaptafel. En-suite bevindt zich een luxe uitgevoerde badkamer voorzien van een losstaand ligbad, ruime regendouche, dubbele natuurstenen wasbak met meubel en douche-toilet.

Souterrain

Middels de trap in de hal bereikt u het souterrain. Hier treft u eindeloos veel opbergmogelijkheden, een wasbak en de benodigde aansluitingen voor een wasmachine en een droger. Tevens treft u hier een ruimte perfect te gebruiken bijvoorbeeld als home cinema.

De gehele woning is voorzien van vloerverwarming.

Kortom, een prachtig en hoogwaardig afgewerkt familiehuis in het populaire en rustige Oud Zuid!

Bijzonderheden
- Appartementsrecht 212,50 m² (G.O. BG 175 m² en G.O. kelder 38 m²)
- Riante Tuin 103 m² (ZO)
- Recht van erfpacht. AB 1994. De canon bedraagt € 2.999,11 per jaar met een vijfjaarlijkse indexering. Tijdvak: 01-09-2003 t/m 31-08-2053
- Overstap eeuwigdurende erfpacht (AB 2016) vastgelegd bij notaris op 06-04-2023. Jaarcanon per 01-09-2053: €3.576,94 exclusief inflatie
- Volledig gerenoveerd met high-end materialen
- Airconditioning aanwezig
- Vloerverwarming
- Waterontharder
- Hydrofoor
- Elektrische gordijnen in de living
- Buiten camera’s aanwezig
- Keukenapparatuur van Gaggenau
- Twee Ethanol haarden Primefire 700 special Planika
- Ontworpen dor Herman Peters Interiordesign
- C.V. Nefit HR 9001
- Oplevering in overleg

Deze informatie is door ons met de nodige zorgvuldigheid samengesteld. Onzerzijds wordt echter geen enkele aansprakelijkheid aanvaard voor enige onvolledigheid, onjuistheid of anderszins, dan wel de gevolgen daarvan. Alle opgegeven maten en oppervlakten zijn indicatief. Koper heeft zijn eigen onderzoeksplicht naar alle zaken die voor hem of haar van belang zijn. Met betrekking tot deze woning is de makelaar adviseur van verkoper. Wij adviseren u een deskundige (NVM-)makelaar in te schakelen die u begeleidt bij het aankoopproces. Indien u specifieke wensen heeft omtrent de woning, adviseren wij u deze tijdig kenbaar te maken aan uw aankopend makelaar en hiernaar zelfstandig onderzoek te (laten) doen. Indien u geen deskundige vertegenwoordiger in-schakelt, acht u zich volgens de wet deskundige genoeg om alle zaken die van belang zijn te kun-nen overzien. Van toepassing zijn de NVM voorwaarden.

Kenmerken

Overdracht
Vraagprijs
€ 2.495.000 k.k.
Status
verkocht onder voorbehoud
Aanvaarding
in overleg
Bouw
Soort woonhuis
Benedenwoning
Soort bouw
appartement
Bouwjaar
1930
Energieklasse
D
Slaapkamers
3
Badkamers
2
Oppervlakten en inhoud
Woonoppervlakte
213 m2
Overige inpandige ruimte
0 m2
Inhoud
728 m3
faciliteiten
Mechanische ventilatie
Alarminstallatie
Tv kabel
Airconditioning
Domotica
Baerz & Co Property Brochure

Brochure

Informatie / bezichtigingsaanvraag

Video's

Video Albrecht Dürerstraat 7

Foto's

Plattegronden