ALKMAAR
Oranjelaan 41 - 1815 JP
Nederland

Romy van de Leygraaf profile image
Romy van de Leygraaf
Real Estate Agent
€1.119.000 k.k.
Woonoppervlakte
190m2
Perceeloppervlakte
1001m2
Slaapkamers
5

Omschrijving

In het statige Oranjepark aan de rand van Alkmaar-Zuid, waar op een vorstelijk perceel van 1001 m2 deze charismatische royale VRIJSTAANDE VILLA pronkt in een oase van groen en privacy. Deze goed onderhouden villa biedt een comfortabel en sfeervol thuis MET DUBBELE GARAGE en riant OPRIJPAD voor meerdere auto’s.

Bij binnenkomst een royale woonkamer met aparte eetkamer, word je meteen omarmd door de lichtheid die de talrijke ramen brengen. De riante schuifpui in de woonkamer opent de deur naar een ruimtelijk panorama, waar een weelderige aangelegde tuin zich uitstrekt. Het zonovergoten terras, met tuinverlichting en een vijverpartij, biedt een serene uitnodiging tot ontspanning. De omringende groene oase waarborgt totale privacy. De tuin, met zijn bronbemaling en sproei-installatie, wordt liefdevol onderhouden.
De villa biedt nog meer schatten, waaronder een grote open keuken, praktische bijkeuken, 4 comfortabele slaapkamers en aan de voorzijde een veelzijdige ruimte die kan dienen als kantoor, werk- of speelkamer - zelfs geschikt voor thuiswerken. Met 2 badkamers en 2 solide bergingen is aan ruimte en comfort geen gebrek. Overal op de begane grond zorgen elektrisch bedienbare rolluiken voor optimale controle over licht en privacy.

Met een slaapkamer en badkamer op de begane grond is deze villa uitermate geschikt voor gelijkvloers en levensloopbestendig wonen. En voor gezinnen biedt het voldoende slaapkamers voor ieder familielid.

De riante oprit biedt plaats voor meerdere auto's, naast de vrijstaande dubbele garage en een weelderige voortuin. 
Deze villa is gelegen in een van de meest pittoreske en groene buurten van Alkmaar, op de hoek van de Oranjelaan en de Prinsessenlaan, met de nabijheid van prachtige bosrijke omgevingen en op korte afstand van de charmante 'Alkmaarder Hout'. De historische binnenstad, met zijn sfeervolle winkelstraten, restaurants en terrassen, wacht om ontdekt te worden. Het NS-station is binnen tien minuten fietsen bereikbaar. En de A-9 rotonde richting Amsterdam, Haarlem en Schiphol is slechts enkele autominuten verwijderd. Voor liefhebbers van het strand, bereikt u binnen een kwartiertje de prachtige kustlijn van Egmond aan Zee of Bergen aan Zee.

Ziet u uzelf al thuis in deze heerlijke omgeving? Aarzel niet om contact op te nemen met ons kantoor. We staan klaar om u hartelijk te verwelkomen en u rond te leiden in uw mogelijk toekomstige droomhuis. 

KENMERKEN
perceeloppervlakte         1.001 m2
woonoppervlakte netto      190 m2
bruto woonoppervlakte      235 m2
dubbele garage                 36 m2
fietsenberging                       4 m2
Inhoud bruto                    693 m3

VOORZIENINGEN:
Grotendeels voorzien van dakisolatie en rondom dubbele beglazing en elektrische bedienbare aluminium rolluiken.
Voorzien van CV-gas: Intergas ketel (2020).
Meterkast voorzien van 8 automaten en aardlekschakelaar.
Alarminstallatie.

INDELING

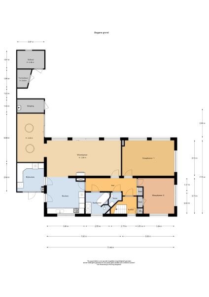
begane grond:
entree/hal, meterkast met 8 automaten en aardlekschakelaar.
Gang met een panga-panga parketvloer, het toilet is voorzien van een wandcloset, fonteintje en mechanische ventilatie.
De ruime en lichte werkkamer met vaste kast bevindt zich aan de voorzijde op de hoek van de villa direct aan rechterzijde van de gang.
De ruim bemeten master-bedroom bevindt zich aan de achterzijde van de villa met prachtig uitzicht op de achtertuin, voorzien van stucplafond met inbouwspots.
De badkamer is voorzien van een ligbad, dubbele wastafel met ombouw, een aparte douche-hoek en lichte betegeling tot het plafond.
De ruime open hoek-inbouwkeuken is voorzien van gasplaat, afzuigkap, koel-/vrieskast, vaatwasser en veel kastruimten.
Vanuit de keuken is mooi vrij uitzicht over de voortuin.
Aangrenzend is de flinke bijkeuken voorzien van betegeling, ruim voldoende kastruimten en een buitendeur naar de voorzijde.
De royale en lichte woonkamer is voorzien van een grote raampartij met prachtig vrij uitzicht over de grote achtertuin.
De living is voorzien van een fraaie panga-panga parketvloer, een openhaard en een schuifpui naar het grote zonneterras op het zuidwesten.
Aangrenzend is de eetkamer voorzien van panga-panga parketvloer en een schuifpui met toegang naar het voornoemde grote zonneterras.

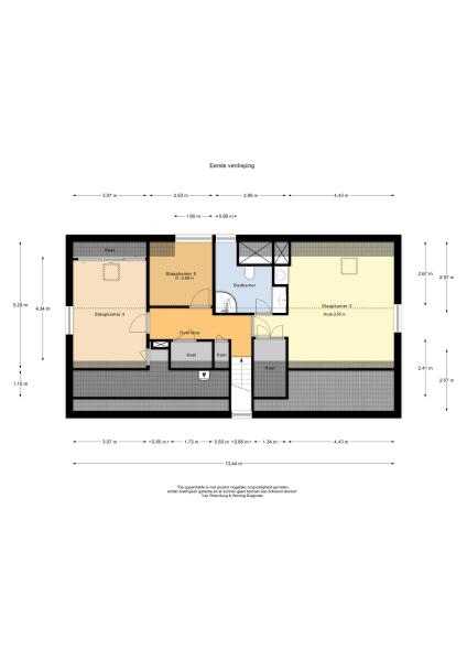
1e verdieping:
totaal 3 slaapkamers en 1 badkamer, te weten:
overloop/gang met 3 vaste kasten, 1 grote slaapkamer op de hoek aan de westzijde met het zadeldak in het zicht, veel kastruimten en een raam in de kopgevel alsmede een Velux-dakvenster.
De badkamer is voorzien van een douchecabine, wastafel met ombouw, 2e wc wandcloset, lichte betegeling en een kunststof dakkapel.
1 Kleinere slaapkamer in het midden aan de achterzijde voorzien van een kunststof dakkapel.
1 Grote slaapkamer op de hoek aan de oostzijde met het zadeldak in het zicht, bergruimten achter de knieschotten en een Velux-dakvenster.
Extra zolderberging.

De vrijstaande dubbele GARAGE is voorzien van spouwmuren, betonvloer en aansluiting elektriciteit.
Op de oprit is parkeergelegenheid voor meerdere auto's.

AANKOOPMAKELAAR:
Interesse in deze woning? Schakel direct je NVM aankoopmakelaar in. Je aankoopmakelaar bespaart je veel tijd, geld en zorgen. Adressen van NVM makelaars vindt je op www.Funda.nl of op www.NVM.nl

Kenmerken

Alarm system
Overdracht
Vraagprijs
€ 1.119.000 k.k.
Status
beschikbaar
Aanvaarding
in overleg
Bouw
Soort woonhuis
Villa
Soort bouw
vrijstaande woning
Bouwjaar
1964
Energieklasse
E
Soort dak
zadeldak
Slaapkamers
5
Badkamers
2
Oppervlakten en inhoud
Woonoppervlakte
190 m2
Overige inpandige ruimte
4 m2
Externe bergruimte
35 m2
Inhoud
693 m3
Perceeloppervlakte
1001 m2
faciliteiten
Mechanische ventilatie
Alarminstallatie
Rolluiken
Tv kabel
Buitenzonwering
Rookkanaal
Schuifpui
Dakraam
Aan rustige weg
In woonwijk
Beschutte ligging
Baerz & Co Property Brochure

Brochure

Video’s

Plattegronden

Leygraaf Makelaars

Kennemerstraatweg 67
1814 GC Alkmaar

romy@leygraafmakelaars.nl
+31 725114318

www.leygraafmakelaars.nl

Informatie / bezichtigingsaanvraag

Romy van de Leygraaf profile image
Romy van de Leygraaf
Real Estate Agent

Een luxe woning kopen in Alkmaar

Alkmaar combineert Nederlandse traditie, luxe leefstijl en een hoogwaardige huizenmarkt. Het trekt internationale kopers met een exclusieve gemeenschap, wereldwijde connectiviteit en voortreffelijke voorzieningen.