'S-GRAVENHAGE
Scheveningseweg 6 A - 2517 KT
Nederland

Sjoerd Bouma profile image
Sjoerd Bouma
Real estate agent
€1.375.000 k.k.
Woonoppervlakte
181m2
Perceeloppervlakte
N/A
Slaapkamers
3

Omschrijving

In het fantastische monumentale appartementencomplex ‘Blanckenhagen’, een verhoogd parterre appartement met souterrain en eigen stadstuin. Door de natuurstenen gevel met rijke ornamenten en andere versieringen, de vele raampartijen met fraaie markiezen op de woonverdieping en hoge plafonds met inbouwspots is dit appartement heel licht en straalt het hele gebouw allure uit.

Exceptionally spacious (ca. 181m2) 3-bedroom, 2-bathroom duplex apartment with garden, storeroom, and 2 off-street parking places just steps from the many fine dining and cultural venues in the lively city centre.
(Please find full )

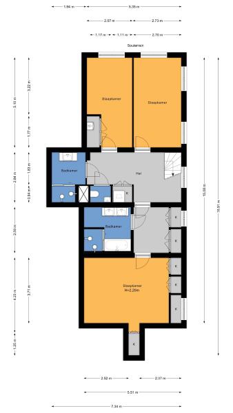
Het appartement is 181m2 groot. De woonverdieping is boven straatniveau wat meer privacy geeft. De slaapkamers zijn gelegen in het souterrain: 3 slaapkamers, een kledingkamer, 2 ruime badkamers en een berging voor een wasmachine en droger. Naast het gebouw zijn 2 privé parkeerplaatsen met een laadpaal. In de achtertuin is een eigen berging en een achteringang. Het huis is volledig voorzien van domotica waarmee verwarming en licht bediend kunnen worden. Daarnaast zijn er, met behulp van een design lichtplan, spots aangebracht die zorgen voor een aangename verlichting. Het appartement is luxe afgewerkt met diverse inbouwkasten.

Appartementencomplex ‘Blanckenhagen’ is in 2016/2017 gerenoveerd en opgeleverd. Van origine is dit statige pand in 1875 gebouwd in opdracht van Johannes Jacobus Blanckenhagen in eclectische stijl. In 2016/2017 is dit gebouw gerenoveerd tot luxueuze appartementen.

Het appartementencomplex is gelegen op loopafstand van het Vredespaleis, het centrum van Den Haag met onder andere fraaie winkels en een uitgebreid aanbod aan restaurants en galeries aan het Noordeinde, de Frederikstraat en de Denneweg. En natuurlijk een goede verbindingen met diverse uitvalswegen en openbaar vervoer.

Indeling:
Via een fraaie dubbele entreedeur komt u in de prachtige entree van het kleinschalige appartementencomplex. Deze entree ademt luxe en grandeur uit door de fraaie marmeren trap en lambrisering, de fraaie kroonluchter en het ornamentenplafond. Met een trap komt u op de 1e woonlaag waar de entree van het appartement is.

Bij binnenkomst in het appartement komt u in een hal met modern toilet en fonteintje, garderobe- en meterkast. Vanuit deze hal betreedt u de fraaie en ruim opgezette woon-/eetkamer met open woonkeuken. Wat direct opvalt zijn de vele hoge ramen en daardoor de lichtinval. Doordat de woonkamer hoger ligt dan straatniveau overziet u de straat. De woonverdieping is geheel voorzien van een fraaie eiken visgraat parketvloer met bies en vloerverwarming. De keuken is voorzien van diverse inbouwapparatuur: een koel-/vriescombinatie, een vaatwasser, een Quooker met close-in boiler, een inductie kookplaat met kookveldafzuiging en oven. Door de hoge plafonds van bijna 4 meter met inbouwspots voelt het appartement nog ruimer aan.

Aan de buitenzijde zijn markiezen aangebracht die vanuit het huis bedienbaar zijn. De elektrische motoren zijn voorzien van kleine zonnepanelen.

Aan de achterzijde van de woon-/eetkamer is de toegang tot het balkon en met een trap komt u in de stadstuin met berging en achteringang. De tuin is gelegen op het zuiden.

Via de woonkamer komt men via een trap in het centrale gedeelte van het souterrain. Daar zijn o.a. een ingebouwde kast met aansluiting voor wasmachine/droger en een separaat modern toilet met fonteintje. Het souterrain beschikt over 2 ruime slaapkamers aan de voorzijde die beide voorzien zijn door fraaie luiken en originele deuren. De tussengelegen badkamer is voorzien van een ruime inloopdouche met regendouche, wastafel met ladekast, design handdoekradiator en vloerverwarming. Aan de achterzijde is een kledingkamer met ingebouwde kasten en toegang tot 2e badkamer voorzien van een luxe vrijstaand ligbad, een ruime inloopdouche met regendouche, een dubbele wastafel met ladekasten en vloerverwarming. Via de kledingkamer komt men in de hoofdslaapkamer aan de achterzijde van het appartement die voorzien is van op maat gemaakte inbouwkasten. Het gehele souterrain is voorzien van een gietvloer met vloerverwarming.

Bijzonderheden:
- Woonoppervlak 181m2
- Eigen grond
- Zo te betrekken
- 2 privé parkeerplaatsen naast het gebouw met een laadpaal
- Domotica systeem aanwezig
- Actieve VvE, maandelijkse bijdrage € 506,--
- Concept meerjaren onderhouds planning VvE aanwezig, moet nog worden vastgesteld
- Opstalverzekering via de VvE
- Fraaie markiezen
- Rijksmonument
- Geen energielabel (monument)
- Oppervlakte tuin is indicatief
- Oplevering in overleg
- In de NVM koopovereenkomst zal een materialen- en ouderdomsclausule worden opgenomen

Kenmerken

Overdracht
Vraagprijs
€ 1.375.000 k.k.
Status
beschikbaar
Aanvaarding
in overleg
Bouw
Soort woonhuis
Benedenwoning
Soort bouw
appartement
Bouwjaar
1875
Slaapkamers
3
Badkamers
2
Oppervlakten en inhoud
Woonoppervlakte
181 m2
Overige inpandige ruimte
0 m2
Gebouwgebonden buitenruimte
2 m2
Externe bergruimte
5 m2
Inhoud
736 m3
faciliteiten
Mechanische ventilatie
Buitenzonwering
Domotica
In centrum
In woonwijk
Baerz & Co Property Brochure

Brochure

Video’s

Beeuwkes Makelaardij

Van Alkemadelaan 338
2597 AS Den Haag

info@beeuwkes.nl
+31 703143000

www.beeuwkes.nl

Informatie / bezichtigingsaanvraag

Sjoerd Bouma profile image
Sjoerd Bouma
Real estate agent

Een luxe woning kopen in Den Haag

Den Haag biedt een stijlvolle gemeenschap, internationale verbindingen en gerenommeerde culturele instellingen. Bewoners genieten van premium dienstverlening, elegante omgevingen en directe toegang tot internationale voorzieningen, alles in een discrete en veilige stedelijke context.