VEENENDAAL
Zandstraat 35 - 3901 CJ
Les Pays-Bas

Wistik Zonnenberg profile image
Wistik Zonnenberg
Register Makelaar Taxateur/ Eigenaar
€894,500 k.k.
Surface habitable
180m2
Superficie du terrain
340m2
Chambres
4

Description

Cette maison individuelle à Veenendaal vous accueille à une adresse où l’histoire rencontre la douceur de vivre, en retrait sur Zandstraat, à la lisière du centre-ville. Cette demeure classée, construite en 1908 et développant 180 m², distille immédiatement une impression de prestance et de chaleur. Chaque pièce s’anime sous le charme des détails d’époque – corniches ouvragées, menuiseries sur mesure, parquet à bâtons rompus en chêne massif, plafonds hauts et accueillants – harmonieusement complétés par des finitions contemporaines. Les six pièces, dont quatre chambres et deux salles de bains raffinées, ont été pensées pour préserver l’intimité tout en favorisant la convivialité.

Le rez-de-chaussée s’ouvre sur un élégant vestibule menant à un salon-salle à manger sublimé par des cheminées anciennes, une lumière naturelle généreuse traversant de hautes fenêtres à guillotine dotées de volets d’origine, ainsi que des équipements modernes, électroménager intégré et extension à la fois fluide et discrète. La cuisine, tournée vers le jardin, conjugue intemporalité et fonctionnalité, s’ouvrant sur un vaste jardin exposé plein sud, véritable havre de paix dissimulé entre tilleuls palissés et un noyer. Plusieurs espaces de détente invitent à de longs moments partagés ou à la quiétude, tandis qu’un double portail arrière et un stationnement sur la parcelle apportent une rare commodité en ville.

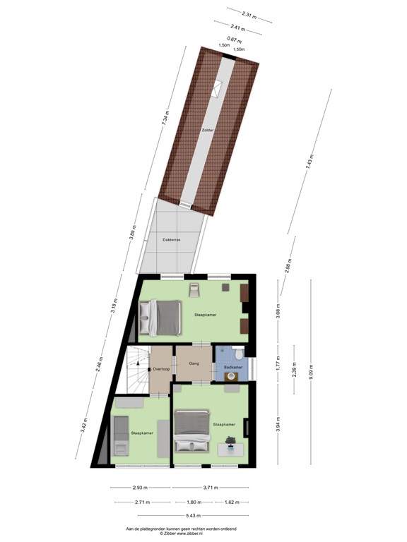
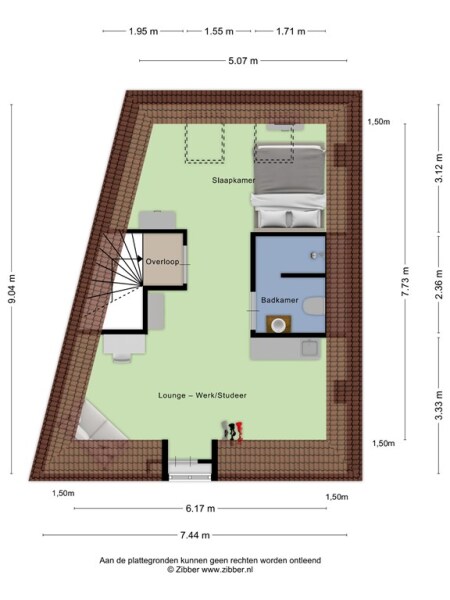
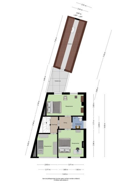
À l’étage, la lumière illumine des chambres disposées avec soin. Une terrasse sur le toit et le vaste dernier étage façon loft, équipé de son office et d’une salle d’eau, ajoutent à l’attrait. Chêne massif, carrelages naturels, poutres apparentes, dernier cri du chauffage central à haute performance et internet fibre optique s’unissent pour allier subtilement technologie et cachet ancien. La parcelle de 340 m² permet de stationner au moins deux véhicules, avec toutes les commodités, cafés, écoles et les paysages verts de l’Utrechtse Heuvelrug à proximité immédiate.

Pour ceux en quête d’une maison de ville de luxe à vendre à Veenendaal, cette adresse conjugue architecture intemporelle et confort contemporain au cœur des Pays-Bas.

Découvrez Veenendaal avec Baerz, votre conseiller et chasseur immobilier personnel de confiance

Les acheteurs avertis tirent profit d’un accompagnement sur mesure dans ce marché nuancé. Les experts locaux leur ouvrent l’accès à des biens confidentiels, maîtrisent les exigences réglementaires et identifient les pépites rares. Négociation avisée et connaissance du tissu régional assurent des transactions en adéquation avec des projets personnels ou patrimoniaux, dans la plus grande sérénité.

Évitez les pièges courants

Les acheteurs internationaux perdent souvent un temps précieux à naviguer entre des annonces en ligne dupliquées, obsolètes ou trompeuses, d’autant que près de 30% des propriétés de luxe ne sont jamais mises sur le marché.
Les agents du vendeur représentent les intérêts du vendeur, pas les vôtres, et une simple demande d’information peut entraîner votre inscription comme “client” auprès d’une agence sans votre consentement.
Avec Baerz Property Finders & Advisors, vous évitez totalement ces écueils.
Nous agissons exclusivement en votre nom, en vous offrant une représentation indépendante, des conseils transparents et un accès à toutes les propriétés disponibles, y compris les opportunités privées et off-market que les autres ne voient jamais.

Curieux de savoir comment obtenir votre propre Conseiller Immobilier Personnel ? Contactez-nous pour découvrir comment nous pouvons défendre vos intérêts et vous ouvrir l’accès à l’ensemble du marché.

Caractéristiques

Transfert de propriété
Prix demandé
€ 894.500 k.k.
Statut
Available
Acceptation
In Concert
Référence
08144
Construction
Type de maison
Mansion
Type de bâtiment
Detached House
Période de construction
1908
Type de toit
composite
Chambres
4
Salles de bains
2
Surfaces et volumes
Surface habitable
180 m2
Autre espace intérieur
5 m2
Espace extérieur attenant au bâtiment
10 m2
Espace de stockage externe
5 m2
Volume en mètres cubes
654 m3
Superficie du terrain
340 m2
Équipements
Cable Tv
Fluetube
Fibreopticcable
Not Furnished
Garden
Internetconnection
Phoneline
Skylight
Storageroom
Not Upholstered
Ventilation
Baerz & Co Property Brochure

Brochure

Vidéos

Zonnenberg Makelaardij

Kerkewijk 108
3904 JG Veenendaal

info@zonnenbergmakelaardij.nl
+31 318 559600

www.zonnenbergmakelaardij.nl

Demande d'information / de visite

Wistik Zonnenberg profile image
Wistik Zonnenberg
Register Makelaar Taxateur/ Eigenaar