NOORDWIJK
Koningin Astrid Boulevard 16 - 2202 BK
Les Pays-Bas

Frits Wilbrink profile image
Frits Wilbrink
Real estate agent
€3,250,000 k.k.
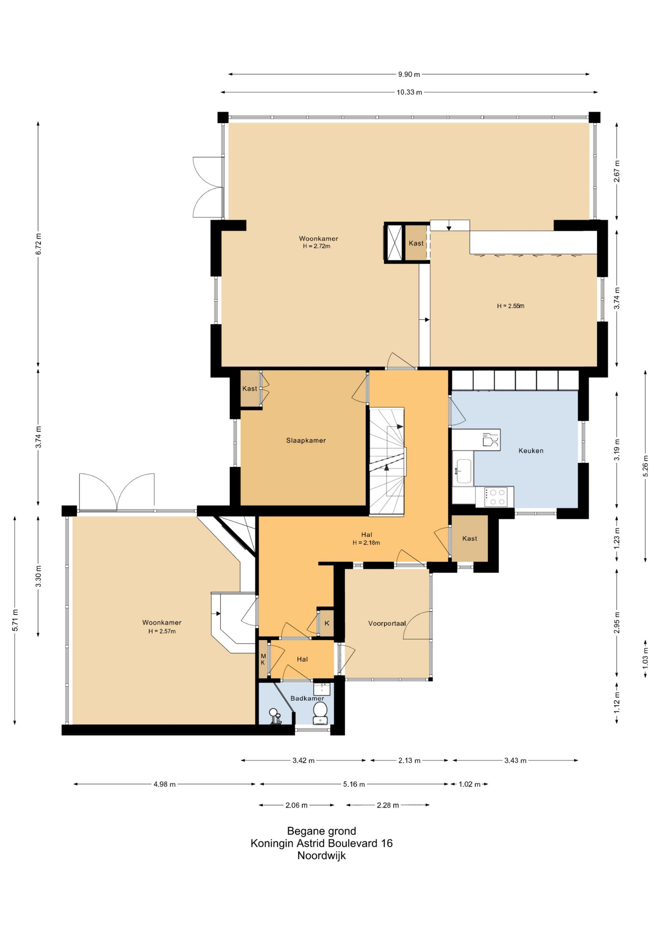
Surface habitable
220m2
Superficie du terrain
608m2
Chambres
5

Description

La Villa Noordwijk offre une proximité rare avec la mer et le sable, proposant un accès direct à la promenade et un panorama changeant sur la mer du Nord. Cette villa historique, construite à l'origine en 1888 avec une surface habitable de 220 m² sur un terrain de 608 m², allie élégamment cachet et potentiel. La configuration actuelle comprend cinq chambres, deux salles de bains, un garage double ainsi qu’un stationnement pour trois véhicules sur l’allée privée.

À l’intérieur, deux salons lumineux encadrent des vues panoramiques ; la pièce principale est agrémentée d’une cheminée et de larges baies qui laissent entrer la quiétude matinale et la lumière dorée du soir. La cuisine bien équipée avec électroménagers intégrés assure une parfaite fonctionnalité, tandis qu’une suite au rez-de-chaussée prolonge la polyvalence des espaces de vie ou de travail, complétée par une salle de bains idéalement placée. Un salon supplémentaire s’ouvre sur la terrasse exposée sud, un point de vue privé pour admirer les couchers de soleil sur la plage.

À l’étage, quatre chambres avec placards intégrés, dont deux offrant une vue imprenable sur la mer. Une grande lucarne à l’avant inonde l’espace de lumière naturelle et accentue la sensation de volume. En sous-sol, une salle de loisirs, une buanderie dédiée et une chaufferie offrent flexibilité et rangements.

La villa s’inscrit dans une histoire architecturale unique, ayant accueilli autrefois les invités du célèbre Huis ter Duin. L’itinéraire Max Liebermann, qui longe la propriété, ancre la demeure dans l’héritage artistique et maritime de Noordwijk. Proche des restaurants, commerces et du centre historique, la Villa Noordwijk à vendre conjugue une confidentialité privilégiée avec le dynamisme de la vie côtière néerlandaise. Classe énergétique G, offerte comme résidence secondaire autorisée et prête pour une modernisation dans le respect de son caractère.

Découvrez Noordwijk avec Baerz, votre conseiller et chasseur immobilier personnel de confiance

Un conseil avisé à Noordwijk donne accès à des opportunités confidentielles et assure une navigation experte des complexités réglementaires. Les conseillers défendent les intérêts de leur clientèle de la première recherche jusqu’à la négociation finale, grâce à un solide réseau d’architectes, de designers et de décideurs locaux. Discrétion, expertise marché et savoir-faire en négociation sont les piliers d’une expérience réussie dans cet environnement sélectif.

Évitez les pièges courants

Les acheteurs internationaux perdent souvent un temps précieux à naviguer entre des annonces en ligne dupliquées, obsolètes ou trompeuses, d’autant que près de 30% des propriétés de luxe ne sont jamais mises sur le marché.
Les agents du vendeur représentent les intérêts du vendeur, pas les vôtres, et une simple demande d’information peut entraîner votre inscription comme “client” auprès d’une agence sans votre consentement.
Avec Baerz Property Finders & Advisors, vous évitez totalement ces écueils.
Nous agissons exclusivement en votre nom, en vous offrant une représentation indépendante, des conseils transparents et un accès à toutes les propriétés disponibles, y compris les opportunités privées et off-market que les autres ne voient jamais.

Curieux de savoir comment obtenir votre propre Conseiller Immobilier Personnel ? Contactez-nous pour découvrir comment nous pouvons défendre vos intérêts et vous ouvrir l’accès à l’ensemble du marché.

Caractéristiques

Transfert de propriété
Prix demandé
€ 3.250.000 k.k.
Statut
beschikbaar
Acceptation
in overleg
Construction
Type de maison
Villa
Type de bâtiment
vrijstaande woning
Période de construction
1888
Classe énergétique
G
Type de toit
samengesteld dak
Chambres
5
Salles de bains
2
Surfaces et volumes
Surface habitable
220 m2
Autre espace intérieur
25 m2
Espace extérieur attenant au bâtiment
9 m2
Espace de stockage externe
34 m2
Volume en mètres cubes
891 m3
Superficie du terrain
608 m2
Équipements
Rookkanaal
Glasvezel kabel
Natuurlijke ventilatie
In woonwijk
Vrij uitzicht
Open ligging
Zeezicht
Baerz & Co Property Brochure

Brochure

Vidéos

Wilbrink & v.d. Vlugt Makelaars

Heereweg 231
2161 BG Lisse

info@wilbrinkvandervlugt.nl
+31 252 41 90 49

www.onsaanbod.nl

Demande d'information / de visite

Frits Wilbrink profile image
Frits Wilbrink
Real estate agent