METEREN
Blanckestyn 2 0 ong - 4194 CA
Les Pays-Bas

Arjan Veelers profile image
Arjan Veelers
Directeur
€1,690,000 k.k.
Surface habitable
350m2
Superficie du terrain
890m2
Chambres
6

Description

La Villa Geldermalsen, luxueuse propriété à Meteren, incarne l’élégance discrète et le mode de vie durable contemporain, en lisière sud de Geldermalsen au sein du havre de verdure de De Plantage. Cette villa neuve propose 350 m² d’espaces de vie sur un vaste terrain de 890 m², caractérisée par une architecture réfléchie, une excellente isolation et une connexion apaisante avec le paysage de la Betuwe.

Dès l’entrée, la lumière abondante et la clarté des volumes imprègnent l’ambiance. Le salon, ouvert naturellement sur une terrasse couverte exposée plein sud, rythme aussi bien les moments de convivialité que l’intimité de la réflexion. La cuisine dinatoire contemporaine, dotée d’un îlot central et d’équipements haut de gamme, devient le cœur social du lieu, tandis qu’une buanderie et un bureau dédié soutiennent le quotidien avec une efficacité discrète. Les sols, en PVC durable à la teinte chaleureuse, s’associent intentionnellement à des finitions et des marques de haute qualité.

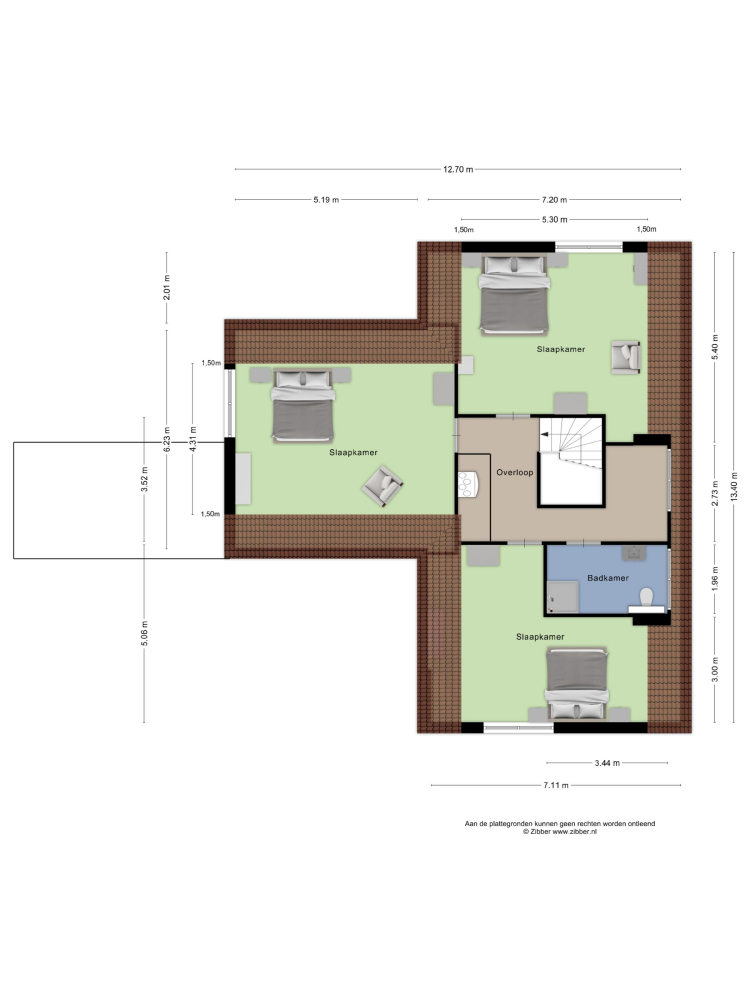
Six chambres et trois salles d’eau, dont une suite parentale avec dressing et salle de bains privative, offrent le confort sur plusieurs niveaux. Les étages supérieurs dévoilent de vastes chambres, des espaces flexibles pour l’accueil ou la créativité, et des solutions de rangement ingénieuses incluant une dépendance de 16 m² avec mezzanine. Deux places de stationnement privatives et une préparation pour borne de recharge électrique allient praticité et exclusivité.

Cette villa de luxe à vendre à Meteren est livrée sans gaz, équipée de panneaux solaires, d’une pompe à chaleur géothermique, et bénéficie du label énergétique A+++. Le chauffage et la climatisation par le sol associés à une isolation haut de gamme assurent un environnement paisible et économe. Le jardin, pensé pour l’intimité et la détente, enveloppe la maison et invite à un aménagement paysager personnalisé.

Située au cœur de De Plantage, la villa permet un accès rapide au centre multifonctionnel De Pluk, aux écoles, commerces, marché local et dessertes pour Utrecht et Bois-le-Duc. Le quartier, riche en espaces verts, accueillera bientôt un parc archéologique retraçant la profondeur historique des lieux. Pour les amateurs en quête d’un refuge moderne et pérenne aux Pays-Bas, la Villa Geldermalsen conjugue intimité, espace et véritable art de vivre.

Découvrez Meteren avec Baerz, votre conseiller et chasseur immobilier personnel de confiance

Le marché immobilier sélectif de Meteren réclame l’accompagnement de professionnels de confiance, sensibles aux subtilités locales et aux attentes d’une clientèle d’exception. Ils offrent un accès aux biens confidentiels, garantissent la discrétion lors des négociations, et apportent leur expertise en matière de valorisation, d’héritage ou de stratégie patrimoniale.

Caractéristiques spéciales

Panneaux solaires

Caractéristiques

Transfert de propriété
Prix demandé
€ 1.690.000 k.k.
Statut
beschikbaar
Acceptation
in overleg
Construction
Type de maison
Villa
Type de bâtiment
vrijstaande woning
Période de construction
2024
Classe énergétique
A+++
Type de toit
zadeldak
Chambres
6
Salles de bains
3
Surfaces et volumes
Surface habitable
350 m2
Autre espace intérieur
16 m2
Espace extérieur attenant au bâtiment
32 m2
Volume en mètres cubes
1310 m3
Superficie du terrain
890 m2
Équipements
Zonnepanelen
Balansventilatie
In woonwijk
Vrij uitzicht
Landelijk gelegen
Baerz & Co Property Brochure

Brochure

Vidéos

DWE Nieuwbouw Makelaars

Vanadiumweg 11
3812 PX Amersfoort

a.veelers@dwe-nieuwbouw.nl
+31 888089000

www.dwe-luxuryhomes.com

Demande d'information / de visite

Arjan Veelers profile image
Arjan Veelers
Directeur