Prachtig grachtenpand met bijzondere tuin en indien gewenst een eigen appartement!
Aan een rustige, autoluwe kade midden in de historische Leidse binnenstad staat dit karakteristieke grachtenpand een woning met uitstraling, geschiedenis en een uniek gevoel van ruimte. Niet alleen de Romeinen stonden hier al rond het begin van de jaartelling, maar op nog geen 100 meter afstand stond Rembrandt's geboortehuis.
Op de plek waar eeuwen geleden de stadsmuren de stad beschermden, kijk je nu uit over de haven met haar historische schepen en monumentale panden. Het huis draagt nog altijd de charme van de vroege 20e en de 17e eeuw, met royale plafondhoogtes en een overvloed aan natuurlijk licht dat door de ramen naar binnen stroomt.
Een buitenkans in de binnenstad is de uitzonderlijk brede, beschutte achtertuin op het zuiden: circa zeven meter diep en maar liefst veertien meter breed. Een ware oase midden in de stad. Perfect voor wie droomt van groen, privacy én ruimte. De tuin beschikt over een twee bergingen en achterom aan twee zijden, een combinatie die maar zelden te vinden is binnen de singels. Binnen zorgen strak gestuukte wanden, oude steentjes en eikenhouten vloerdelen voor een stijlvolle en warme afwerking die past bij de historische ambiance.
Daarnaast beschikt het pand over een zelfstandig appartement, wat dit grachtenpand extra bijzonder en veelzijdig maakt: ideaal voor gasten, werken aan huis of verhuur.
Leiden Centraal en de markt liggen op korte loopafstand. Fiets je liever? Dan bereik je in enkele minuten alle hoeken van de binnenstad én daarbuiten. En wie toch de auto pakt, kan voor de deur parkeren en rijdt binnen enkele minuten de A4 en A44 op, richting de rest van de Randstad.
INDELING
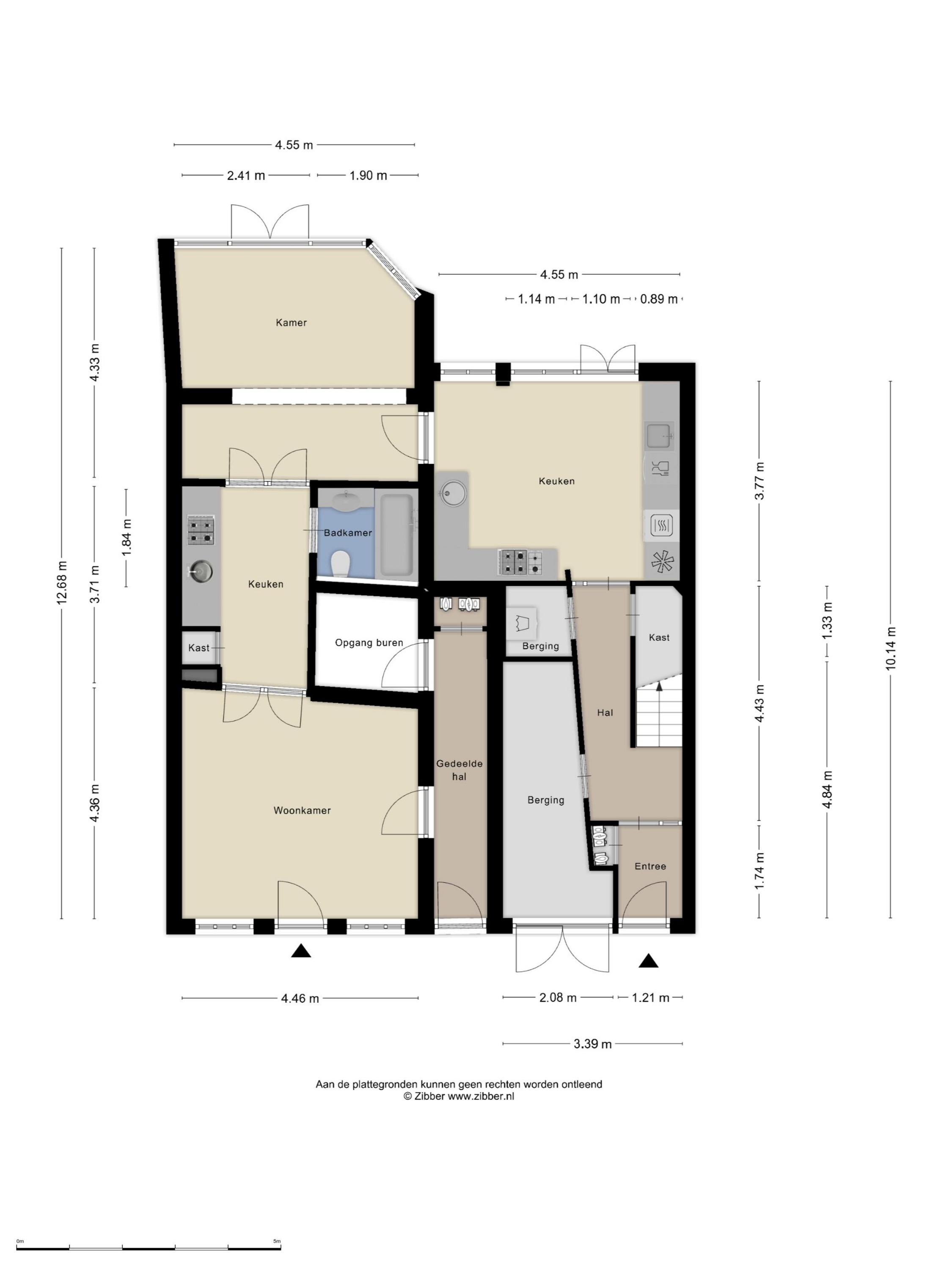
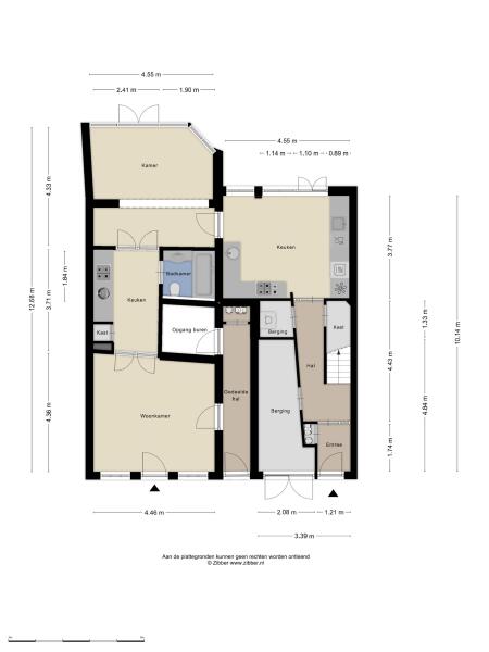
Begane grond (nr. 11)
Entree met meterkast. Hal met wasmachineopstelling, trap naar de 1e etage en binnendoor naar de berging en de keuken. Ruime woonkeuken met inbouwapparatuur en openslaande deuren naar de tuin. Doorgang binnendoor naar nr. 10.
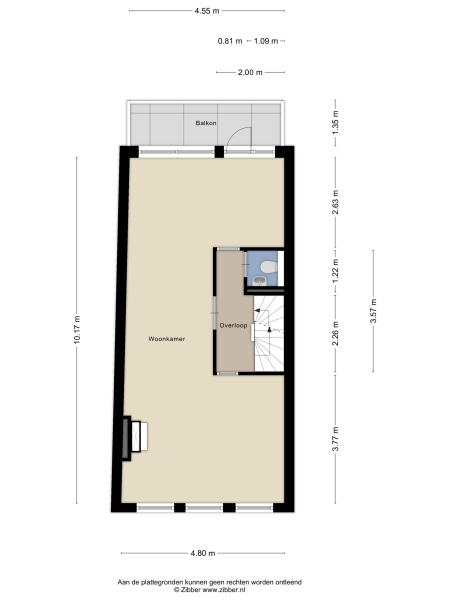
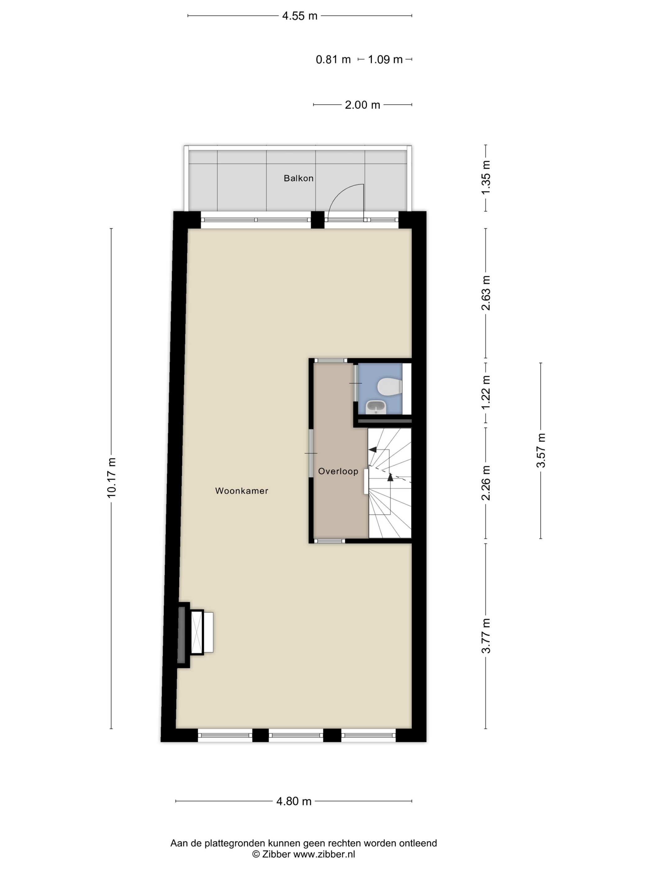
1e etage
Overloop met trap naar de 2e etage. Voorkamer met hoge balkenplafonds en prachtig uitzicht over het Galgewater. Achterkamer met openslaande deuren naar het dakterras.
2e etage
Overloop. Ruime slaapkamers met hoge balkenplafonds aan voor- en achterzijde. Moderne badkamer met douche, wc en wastafel.
Bergvliering
Tuin
Achtertuin met veel privacy, schuur, fietsenberging en achterom aan twee zijden.
Appartement (nr. 10)
Kamer voorzijde met authentieke details en tuinkamer met openslaande deuren en binnendoor naar nr. 11. Keuken met inbouwapparatuur en badkamer met ligbad. wastafel en wc.
BIJZONDERHEDEN
- Beschermd stadsgezicht
- Rijksmonument (nr. 10)
- In 2001 onder architectuur gerestaureerd incl. moderne technische installaties en warmte-isolatie waar mogelijk
- Recent (2025) geheel geschilderd aan buitenzijde in historische kleuren
- Niet-bewonersclausule van toepassing
- Ouderdomsclausule van toepassing
- Notaris voor het transport: TeekensKarstens te Leiden
Leiden offre un patrimoine d’exception, une vie culturelle dynamique et des services sur mesure, créant un environnement privilégié pour une clientèle internationale. Avec ses demeures raffinées, sa tradition académique et son luxe discret, la ville de canal promet un art de vivre sophistiqué et cosmopolite.