HARLINGEN
Franekereind 15 - 8861 AA
Les Pays-Bas

Ellen Schoneveld profile image
Ellen Schoneveld
Real Estate Agent
€775,000 k.k.
Surface habitable
469m2
Superficie du terrain
210m2
Chambres
5

Description

Cette maison de canal, classée Monument National à Harlingen, incarne l’histoire maritime et le patrimoine architectural exceptionnels de la ville. Située sur l’un des plus anciens canaux de Harlingen, la résidence connue sous le nom de « Het Tempelhuys » occupe une place centrale parmi les façades emblématiques du Franekereind, offrant environ 469 m² de surface habitable répartis sur plusieurs niveaux. Dotée de cinq chambres et d’une configuration flexible, elle peut aussi bien servir de résidence privée, atelier, galerie, cabinet ou chambre d’hôtes.

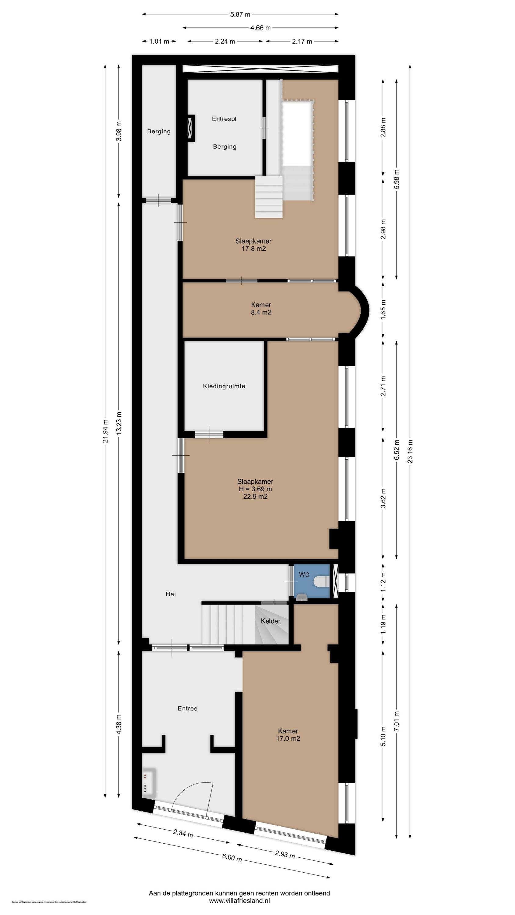
Dès l’entrée, un sol en marbre et un vestibule à la riche sonorité mènent à trois pièces principales : une galerie avec vue sur le canal, une chambre doucement éclairée avec dressing attenant, et à l’arrière, un espace professionnel avec mezzanine bénéficiant d’un accès direct à une chapelle historique. Le premier étage s’articule autour d’une vaste cuisine familiale surplombant l’eau, tandis que le hall voûté adjacent offre une hauteur généreuse et une belle luminosité — un cadre polyvalent pour réceptions ou expositions. Le deuxième étage abrite un studio, une pièce technique et un vaste espace de rangement, tous baignés de lumière grâce aux grandes fenêtres et à la ventilation naturelle. Au-dessus, un vaste grenier de 106 m² révèle la charpente d’origine, prêt à accueillir une transformation en loft, complété par un second grenier sous le faîte. Une cave de 20 m² complète l’offre fonctionnelle. Les aménagements comprennent une ventilation verticale, une fenêtre de toit, une cheminée et une isolation moderne. Le chauffage est assuré par un système central avec la possibilité d’un foyer ouvert.

Vivre sur le Franekereind, c’est être à la croisée de l’histoire et d’un quotidien animé, avec tous les services accessibles à pied et un stationnement devant la porte. Amsterdam n’est qu’à une heure, mais Harlingen conserve son charme préservé, fruit de plus de six siècles de tradition maritime, de chaleureuses adresses locales et d’un accès aisé à la mer du Nord et aux îles des Wadden. Pour ceux qui recherchent une demeure au passé riche et aux multiples possibles, cette demeure monumentale à Harlingen s’offre comme une opportunité rare, en parfaite harmonie avec le rythme de son environnement côtier.

Découvrez Harlingen avec Baerz, votre conseiller et chasseur immobilier personnel de confiance

Le marché de prestige à Harlingen est influencé par la discrétion, un cadre règlementaire complexe et une politique de préservation exigeante. Des conseillers expérimentés ouvrent l’accès à des opportunités off-market exclusives et accompagnent stratégiquement toute la négociation et la contractualisation. Leur expertise garantit la pleine valorisation du marché, en tenant compte de tous les enjeux patrimoniaux, culturels et juridiques propres au contexte néerlandais.

Caractéristiques

Transfert de propriété
Prix demandé
€ 775.000 k.k.
Statut
beschikbaar
Acceptation
in overleg
Construction
Type de maison
Grachtenpand
Type de bâtiment
halfvrijstaande woning
Période de construction
1651
Type de toit
schilddak
Chambres
5
Salles de bains
0
Surfaces et volumes
Surface habitable
469 m2
Autre espace intérieur
22 m2
Volume en mètres cubes
2041 m3
Superficie du terrain
210 m2
Équipements
Rookkanaal
Dakraam
Natuurlijke ventilatie
Aan water
Aan rustige weg
In centrum
Baerz & Co Property Brochure

Brochure

Vidéos

Villa Friesland Makelaardij

Lange Marktstraat 1
8911 AD Leeuwarden

info@villafriesland.nl
+31 (0)58 - 23 006 23

www.villafriesland.nl

Demande d'information / de visite

Ellen Schoneveld profile image
Ellen Schoneveld
Real Estate Agent