BARCELONA
Espagne

Chantal Cunningham profile image
Chantal Cunningham
Chief Property Advisory
€2,100,000
Surface habitable
201m2
Superficie du terrain
N/A
Chambres
3

Description

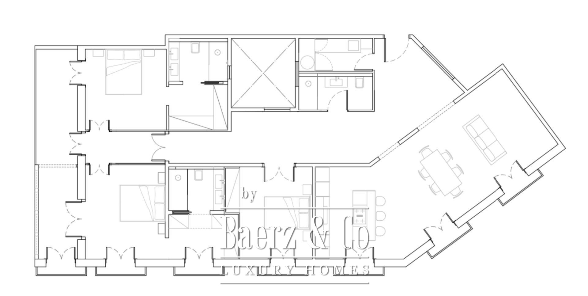
Le penthouse Barcelona Quadrat d'Or incarne un art de vivre raffiné à l’angle de la Calle Girona et de la Gran Via de les Corts Catalanes. Entièrement rénové, ce penthouse de 201 m² doté d’une terrasse de 20 m² se situe au cœur du prestigieux Quadrat d'Or de Barcelone, offrant un accès immédiat au Passeig de Gràcia et à la Plaça Catalunya. Cette résidence s’adresse à ceux qui apprécient le design, la provenance et le cachet intemporel des quartiers historiques.

La distribution offre trois chambres doubles, dont deux en suite, ainsi que trois salles de bains complètes. Une restauration minutieuse préserve les carreaux hydrauliques d’origine et les boiseries, tout en y apportant un confort moderne grâce à un système aérothermique. L’espace salon-salle à manger, généreux, s’ouvre parfaitement sur une cuisine ouverte sur mesure, équipée d’un îlot central, d’appareils haut de gamme Miele et Liebherr, de plans de travail Neolith et de mobilier laqué. Balcons, nombreux rangements et buanderie séparée optimisent le quotidien.

La lumière baigne l’intérieur depuis la terrasse et les balcons, créant une harmonie naturelle entre élégance intérieure et panorama barcelonais. L’immeuble dispose d’un ascenseur et d’un service de conciergerie professionnel. Ce penthouse d’exception à vendre à Barcelone se distingue par un équilibre rare entre animation cosmopolite et discrétion résidentielle, au cœur des restaurants, théâtres, boutiques et joyaux architecturaux. Il en résulte une sophistication paisible au centre-ville.

Découvrez Barcelone avec Baerz, votre conseiller et chasseur immobilier personnel de confiance

L’expertise d’un conseiller spécialisé dans l’immobilier haut de gamme à Barcelone est précieuse. La connaissance des subtilités du marché, l’accès à des biens confidentiels ou off-market et la faculté de négocier habilement sont essentiels. Un accompagnement sur mesure permet de profiter de la discrétion, d’un réseau établi et offre une protection à chaque étape, assurant la réalisation d’objectifs d’acquisition ou de vente en toute sérénité.

Caractéristiques

Transfert de propriété
Prix demandé
€ 2.100.000
LAS
Construction
Pièces
N/A
Chambres
3
Salles de bains
3
Surfaces et volumes
Surface habitable
201 m2
Superficie du terrain
0 m2
Équipements
Balcon
A/A
Telephone
Terrace
Elevator
Wardrobes cupboard
Appliances
Light
Town Gas
Laundry
Automatic Doors
Satellite
T. V.
Clearly
Baerz & Co Property Brochure

Brochure

Vidéos

Demande d'information / de visite

Chantal Cunningham profile image
Chantal Cunningham
Chief Property Advisory

Buying a Luxury Property in Barcelone

L’immobilier de luxe à Barcelone séduit les résidents internationaux en quête d’art de vivre, de culture et d’opportunités d’investissement sûres. Un mélange de patrimoine, de communauté et de services de qualité attend dans cette métropole méditerranéenne.