AMSTERDAM
Tweede Jan Van Der Heijdenstraat 82 1 - 1074 XX
Les Pays-Bas

Michiel Floberg profile image
Michiel Floberg
Real estate agent
€1,865,000 k.k.
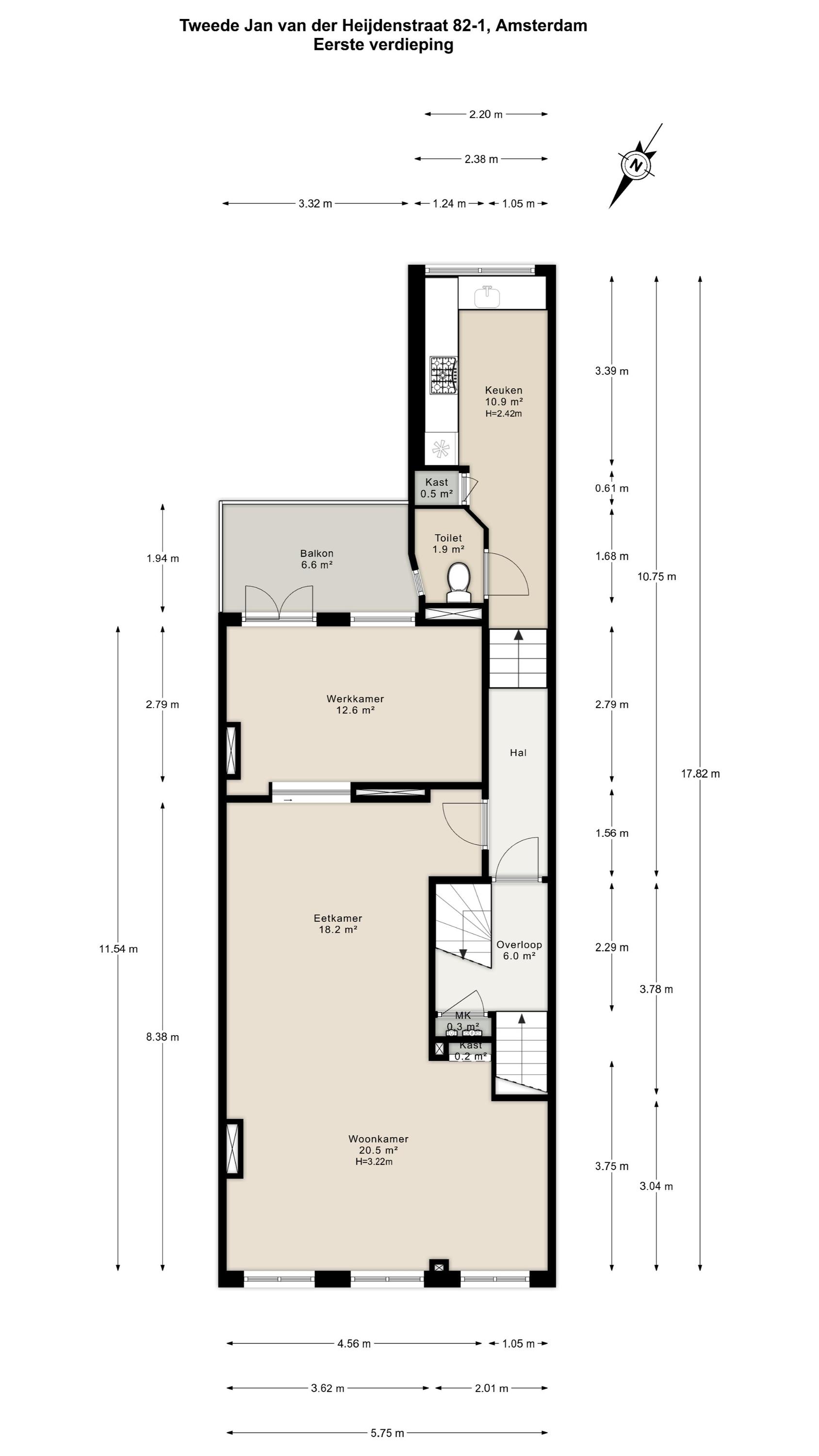
Surface habitable
223m2
Superficie du terrain
N/A
Chambres
4

Description

Situé sur la Tweede Jan van der Heijdenstraat, une adresse recherchée dans le quartier De Pijp, l'Apartment Amsterdam offre 223 m² d'espace de vie répartis sur trois étages harmonieusement agencés. Cette propriété en pleine propriété allie le volume classique au raffinement contemporain, avec quatre chambres, un bureau à domicile et un dressing dédié. Les hauteurs sous plafond et les larges baies vitrées instaurent une atmosphère lumineuse et spacieuse, tandis que certains balcons et une vaste terrasse de 23 m² sur le toit ouvrent sur des vues dégagées sur la ville et la rivière Amstel, profitant du soleil jusque tard le soir.

La cuisine spacieuse, équipée d'appareils électroménagers haut de gamme intégrés, jouxte l'espace central de vie, adouci par le double vitrage, un confort climatique assuré par un chauffage partiel au sol et une climatisation. Deux salles de bains élégantes et de nombreuses solutions de rangement accompagnent la vie quotidienne comme les séjours prolongés. Volets roulants électriques et ventilation naturelle témoignent d'une réelle attention portée au confort et à la vie privée.

À quelques pas du Sarphatipark et du dynamique marché Albert Cuyp, cet Apartment Amsterdam bénéficie d'un équilibre entre charme local et accès à la métropole. Parfaitement desservi par le métro et le tramway, le rythme urbain est à portée de main, tandis que la maison reste un refuge valorisé par la lumière, l'espace et un luxe discret.

Découvrez Amsterdam avec Baerz, votre conseiller et chasseur immobilier personnel de confiance

Pour naviguer le marché de prestige d’Amsterdam, il faut s’appuyer sur une connaissance pointue de la ville, la discrétion et des compétences avérées en négociation. Les meilleurs conseillers accèdent à des biens confidentiels, expliquent les subtilités réglementaires et identifient la valeur où l’opportunité ne se montre que rarement. Les équipes conseil opèrent une sélection poussée et assurent la représentation, renforçant votre position, assurant le bon déroulé de la transaction et veillant au respect de votre vie privée à chaque étape.

Caractéristiques spéciales

Climatisation

Caractéristiques

Transfert de propriété
Prix demandé
€ 1.865.000 k.k.
Statut
onder bod
Acceptation
in overleg
Construction
Type de maison
Bovenwoning
Type de bâtiment
appartement
Période de construction
1880
Classe énergétique
C
Chambres
4
Salles de bains
2
Surfaces et volumes
Surface habitable
223 m2
Autre espace intérieur
0 m2
Espace extérieur attenant au bâtiment
36 m2
Volume en mètres cubes
772 m3
Équipements
Rolluiken
Buitenzonwering
Airconditioning
Natuurlijke ventilatie
Aan rustige weg
In woonwijk
Baerz & Co Property Brochure

Brochure

Vidéos

Heeren Makelaars

Stadionweg 75
1077 SE Amsterdam

info@heerenmakelaars.nl
+31 204702255

www.heerenmakelaars.nl

Demande d'information / de visite

Michiel Floberg profile image
Michiel Floberg
Real estate agent