'S-GRAVENHAGE
Hellingkade 82 - 2583 WC
Les Pays-Bas

Irma Postma profile image
Irma Postma
Real estate agent
€800,000 k.k.
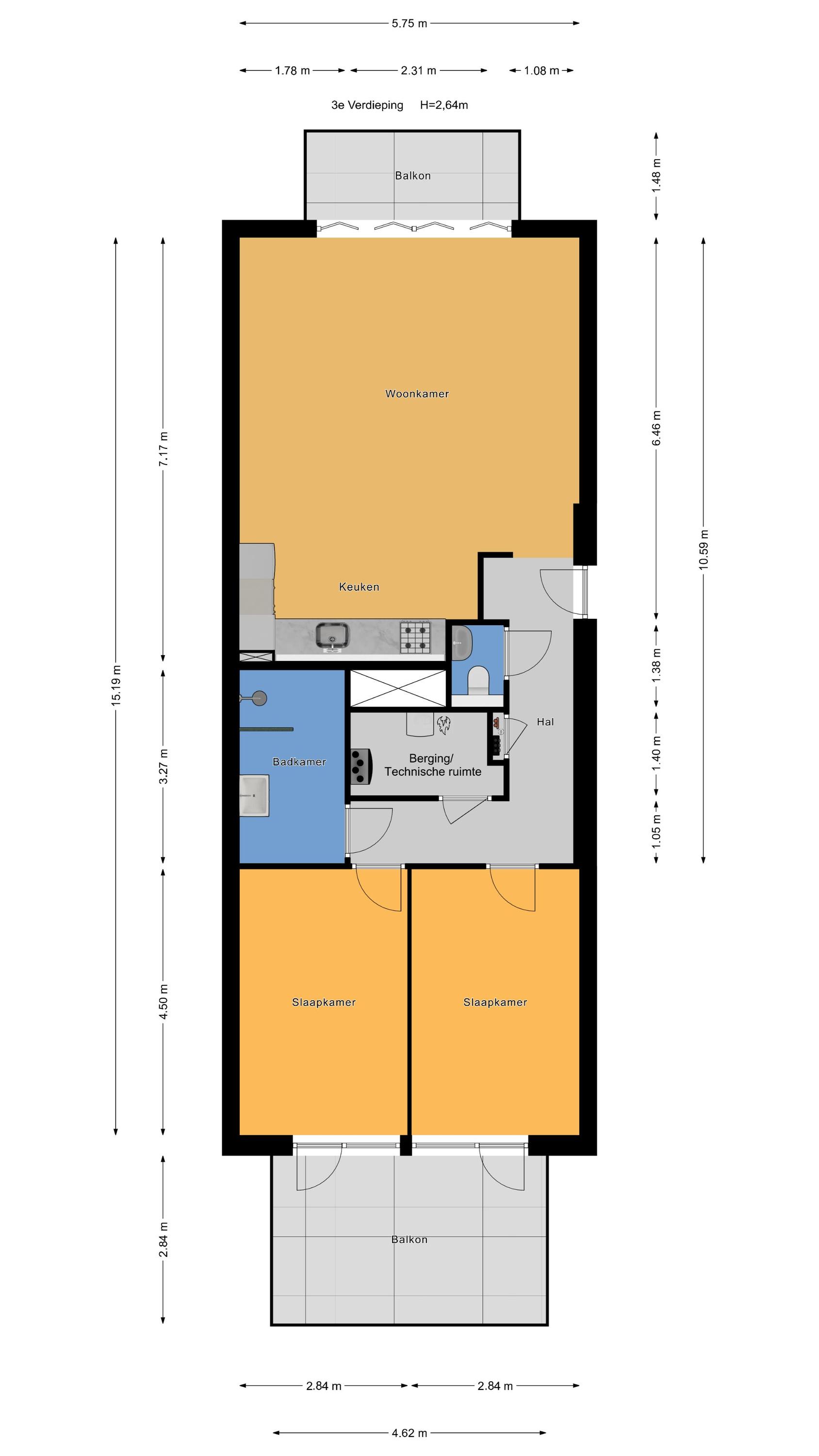
Surface habitable
86m2
Superficie du terrain
N/A
Chambres
2

Description

L’Apartment Scheveningen offre 86 m² de vie côtière raffinée, situé le long du port avec une vue panoramique sur la mer. Cette résidence neuve de deux chambres, au troisième étage, conjugue énergie et intimité, avec de larges baies et portes coulissantes qui laissent entrer la lumière et le rythme apaisant de l’eau en contrebas. Les panoramas du port et l’animation de la promenade de Scheveningen rapprochent le quotidien des humeurs toujours changeantes de la mer.

Le séjour ouvert s’articule autour d’une cuisine NEXT-125 avec plan de travail en composite et électroménager intégré, comprenant un robinet Quooker, une plaque à induction avec ventilation intégrée et un four combiné. Un système de chauffage et de rafraîchissement par le sol s’étend dans tout l’appartement, atteignant l’efficacité du label énergétique A+++. Toutes les pièces, à l’exception de l’espace technique, baignent dans le confort. À l’arrière, le balcon exposé plein sud offre des moments de calme avec vue sur une cour commune, accessible depuis les deux chambres.

Les résidents disposent d’un parking privé, avec la possibilité d’installer une borne de recharge individuelle pour voiture électrique, ainsi qu’un local à vélos commun avec bornes de recharge. Entièrement isolé, sans gaz et équipé d’une pompe à chaleur privée, cet appartement se positionne à l’avant-garde en matière de durabilité. À proximité, les boutiques de Frederik Hendriklaan, le centre historique de La Haye, ainsi que les restaurants et plages animés du port soulignent un style de vie que seul un appartement de luxe à vendre à Scheveningen peut offrir.

Caractéristiques

Transfert de propriété
Prix demandé
€ 800.000 k.k.
Statut
verkocht onder voorbehoud
Acceptation
in overleg
Construction
Type de maison
Portiekflat
Type de bâtiment
appartement
Période de construction
2024
Classe énergétique
A+++
Type de toit
plat dak
Chambres
2
Salles de bains
1
Surfaces et volumes
Surface habitable
86 m2
Autre espace intérieur
0 m2
Espace extérieur attenant au bâtiment
18 m2
Espace de stockage externe
6 m2
Volume en mètres cubes
289 m3
Équipements
Mechanische ventilatie
Lift
Glasvezel kabel
Balansventilatie
Vrij uitzicht
Open ligging
Zeezicht
Baerz & Co Property Brochure

Brochure

Vidéos

Plans

Nelisse Makelaarsgroep

Statenlaan 128
2582 GW Den Haag

info@nelisse.nl
+31 (70) 350 14 00

www.nelisse.nl

Demande d'information / de visite

Irma Postma profile image
Irma Postma
Real estate agent