VENLO
Monseigneur Boermansstraat 11 - 5911 BA
Países Bajos

Don Willems profile image
Don Willems
Makelaar
€898,750 k.k.
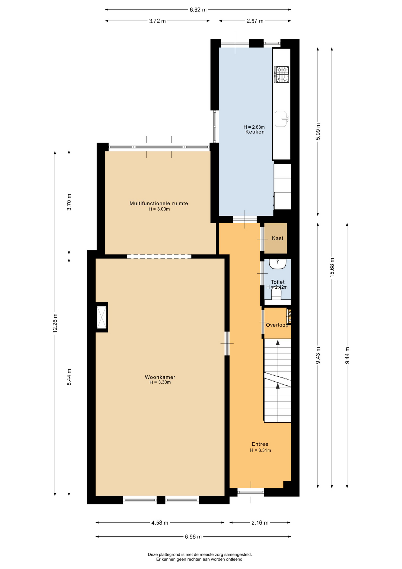
Superficie habitable
225m2
Tamaño del terreno
240m2
Dormitorios
5

Descripción

Townhouse Venlo es un ejemplo destacado de la arquitectura de los años veinte en pleno corazón de la ciudad, fusionando el carácter histórico con el confort contemporáneo y una privilegiada vista al Rosarium. Esta residencia se distribuye en 225 m² a lo largo de tres plantas, ofreciendo cinco dormitorios, dos baños y una abundante luz natural en todos los ambientes. Desde el amplio vestíbulo de entrada con suelos de mármol Bianco Carrara hasta el espacioso salón acabado en parqué de roble francés en espiga, cada espacio transmite refinamiento y autenticidad serena.

La planta principal disfruta de vistas despejadas al Rosarium, realzadas por techos altos con ornamentación original, chimenea a gas y tecnología perfectamente integrada que incluye aire acondicionado e iluminación regulable. Las puertas francesas en la parte trasera invitan a un jardín diseñado por arquitecto, un refugio privado que cuenta con varias terrazas, plataformas de madera Padauk, patio pavimentado y una piscina climatizada, todo rodeado de muros para total intimidad, a minutos del centro de Venlo.

En la planta superior, una amplia suite principal se abre a un balcón con vistas a los jardines urbanos, mientras que los espacios flexibles permiten disponer de dormitorios adicionales o despacho. Los baños, reformados con suelos radiantes y accesorios de alta gama, generan una atmósfera de lujo discreto. La eficiencia energética está asegurada por la etiqueta A++, 15 paneles solares que generan 6.000 kWh, bomba de calor y triple acristalamiento, características poco comunes en una propiedad de este linaje.

Con una combinación de funcionalidad y ambiente—a destacar el sótano de almacenamiento, la calefacción por suelo radiante en los baños, aire acondicionado y opción de alquiler de garaje—esta exclusiva townhouse en venta en Venlo ofrece una experiencia residencial discreta en el centro urbano, donde convergen diseño, privacidad y comodidad cotidiana.

Explora Venlo con Baerz, Tu Buscador y Asesor Personal de Propiedades de Confianza

En operaciones premium, es esencial conocer el inventario, la normativa urbanística y los futuros desarrollos. Los asesores aportan acceso exclusivo a inmuebles no publicados y negociaciones discretas, anticipando tendencias y asegurando las mejores viviendas o condiciones de inversión.

Evita los errores comunes

Los compradores internacionales a menudo pierden tiempo valioso en listados en línea duplicados, desactualizados o engañosos, especialmente porque casi el 30% de las casas de lujo nunca aparecen en el mercado público. Los agentes del vendedor representan los intereses del vendedor, no los del comprador. Incluso solicitar información sobre una propiedad puede resultar en que un agente del vendedor te registre como su “cliente” sin tu consentimiento.
Con Baerz Property Finders & Advisors, evitas por completo todos estos errores. Trabajamos únicamente en tu nombre, ofreciendo representación independiente, orientación clara y acceso a todas las propiedades disponibles, incluidas oportunidades fuera del mercado que otros nunca llegan a ver.

¿Interesado en un Asesor Personal de Propiedades?

Te mostramos todas las casas disponibles en un solo lugar. No dudes en contactarnos para saber cómo podemos satisfacer tus necesidades y proteger tus intereses exclusivamente.

Características

Piscina
Paneles solares
Aire acondicionado
Transferencia de propiedad
Precio de venta
€ 898.750 k.k.
Estado
beschikbaar
Aceptación
in overleg
Construcción
Tipo de casa
Herenhuis
Tipo de edificio
tussenwoning
Periodo de construcción
1926
Calificación energética
A++
Tipo de tejado
samengesteld dak
Dormitorios
5
Baños
2
Superficies y Volumen
Superficie habitable
225 m2
Otro espacio interior
36 m2
Espacio exterior adjunto al edificio
2 m2
Volumen en metros cúbicos
807 m3
Tamaño del terreno
240 m2
Instalaciones
Mechanische ventilatie
Zwembad
Airconditioning
Dakraam
Zonnepanelen
Aan rustige weg
In centrum
Baerz & Co Property Brochure

Folleto

Vídeos

VeTeBe

Grotestraat 84a
5931 CX Tegelen

info@vetebe.nl
+31 77 3262600

www.vetebe.nl

Solicitud de información / Visita

Don Willems profile image
Don Willems
Makelaar

Comprar una propiedad de lujo en Venlo

Venlo ofrece una armonía de tradición, modernidad y conectividad internacional. Su comunidad dinámica, vitalidad cultural y servicios inmobiliarios personalizados satisfacen las demandas de familias y compradores internacionales que buscan exclusividad.