VEENENDAAL
Bilzekruid 11 - 3903 GN
Países Bajos

€928,000
Superficie habitable
175m2
Tamaño del terreno
571m2
Dormitorios
3

Descripción

Esta casa independiente en Veenendaal se sitúa tranquilamente al final de una calle sin salida ajardinada, ofreciendo 175 m² de superficie habitable en una generosa parcela de 571 m². La propiedad aúna artesanía y comodidad funcional, con serenas vistas al sureste sobre jardines privados y zonas arboladas. Nada más llegar, el ritmo sosegado del paisajismo maduro y la presencia de un garaje de 57 m² marcan la pauta de una vida refinada, sin renunciar a la practicidad.

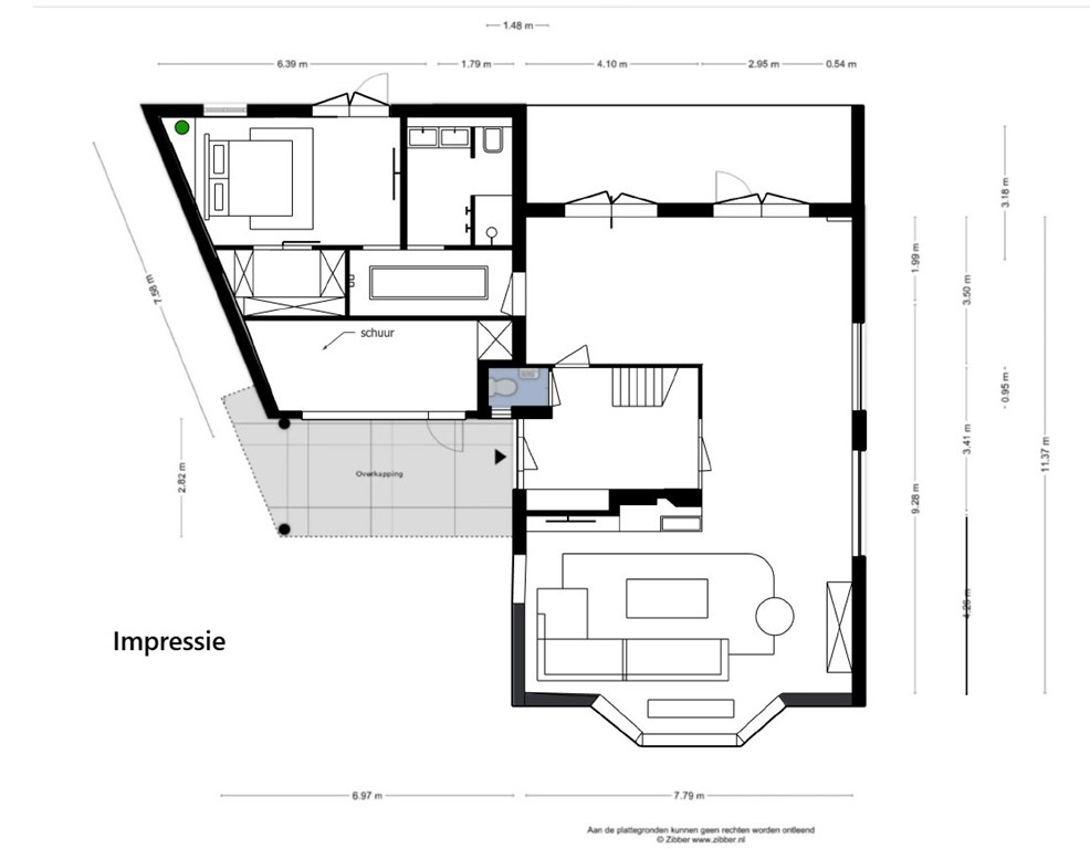
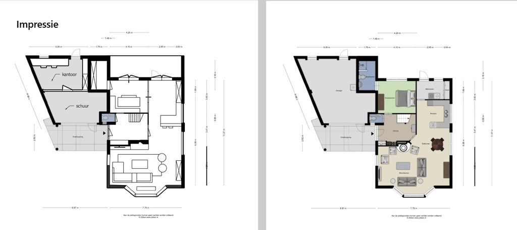
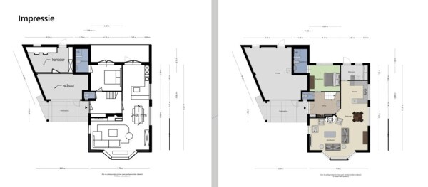
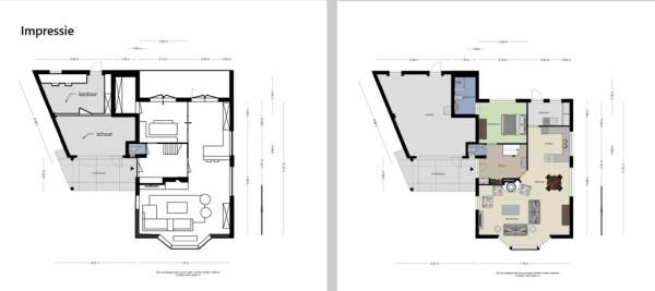
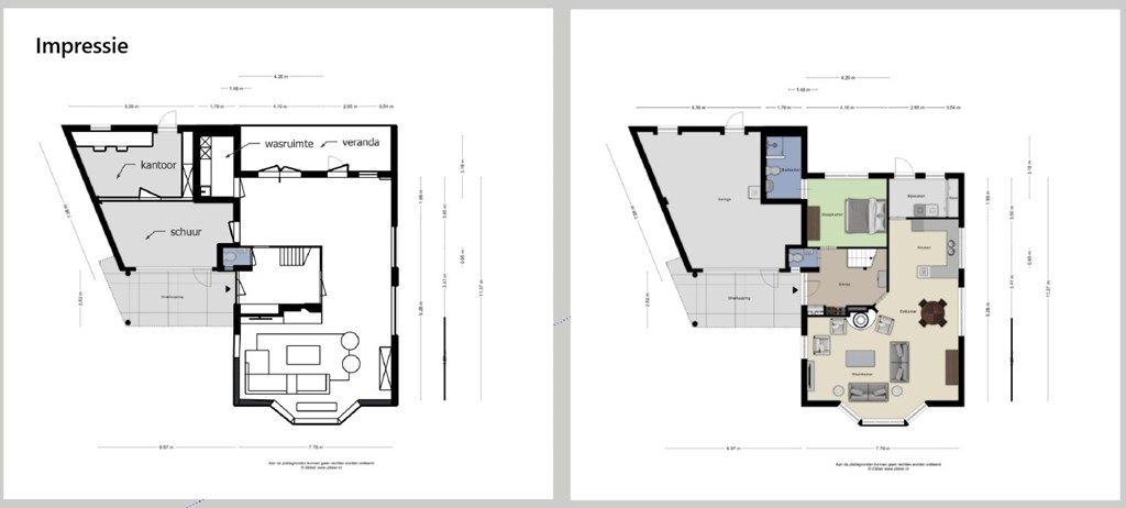
La planta baja se abre a un luminoso salón, bañado por una ventana mirador y protagonizado por una chimenea de gas. La cocina adyacente, en forma de U y equipada con electrodomésticos integrados, se conecta directamente con el comedor ideal para reuniones. El lavadero ofrece espacio de almacenamiento y acceso al exterior, mientras que un despacho adicional y un baño contiguo permiten vivir en una sola planta o acoger invitados con comodidad. La calefacción por suelo radiante y el doble acristalamiento garantizan confort durante todo el año.

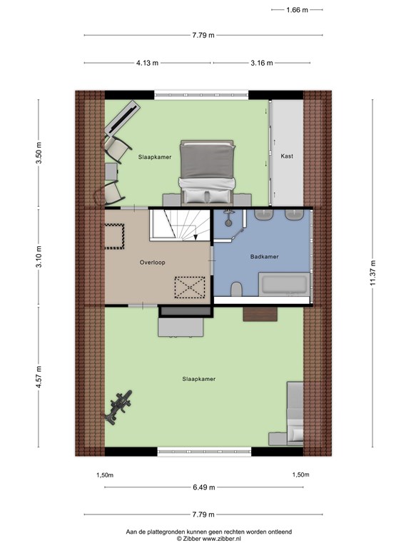
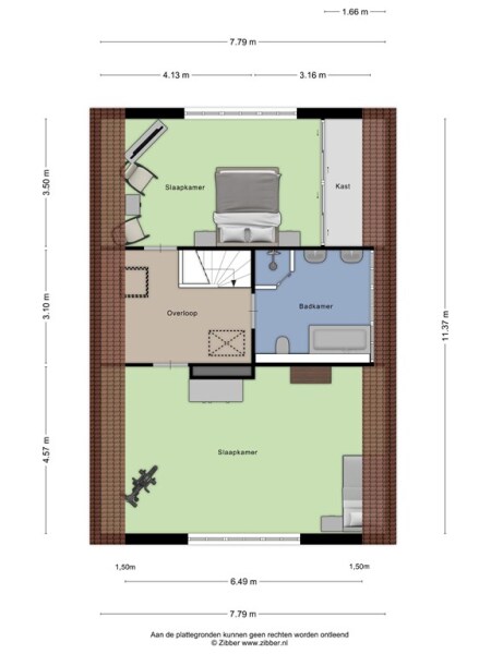
En la planta superior destacan dos dormitorios especialmente amplios, cada uno inundado de luz natural por sus generosas ventanas. El baño principal dispone de bañera, ducha a ras de suelo y doble lavabo, complementado con un ático independiente para almacenamiento. El exterior, en la parte trasera, está definido por césped cuidado, una terraza soleada, estanque y borduras consolidadas, ofreciendo privacidad y tranquilidad. Diversas zonas de estar invitan a desayunar al aire libre o disfrutar de las veladas veraniegas con amigos, mientras que el amplio garaje es ideal para hobbies o colecciones.

Ubicada en Petenbos, dentro de Veenendaal, esta vivienda garantiza acceso rápido a colegios, servicios, la reserva natural de Prattenburg y las principales vías hacia Utrecht, Arnhem y Amersfoort. Pensada para quienes buscan calidad duradera y calma, esta villa de lujo en venta en Veenendaal es una ocasión excepcional para adquirir espacio y tranquilidad sin concesiones.

Explora Veenendaal con Baerz, Tu Buscador y Asesor Personal de Propiedades de Confianza

Los compradores exigentes se benefician de una asesoría personalizada en el singular mercado de Veenendaal. Los agentes locales abren la puerta a oportunidades exclusivas y guían en detalles normativos, identificando residencias que rara vez llegan al público. La negociación sofisticada y el profundo conocimiento regional garantizan operaciones alineadas con sus objetivos, minimizando imprevistos.

Evita los errores comunes

Los compradores internacionales a menudo pierden tiempo valioso en listados en línea duplicados, desactualizados o engañosos, especialmente porque casi el 30%% de las casas de lujo nunca aparecen en el mercado público. Los agentes del vendedor representan los intereses del vendedor, no los del comprador. Incluso solicitar información sobre una propiedad puede resultar en que un agente del vendedor te registre como su “cliente” sin tu consentimiento.
Con Baerz Property Finders & Advisors, evitas por completo todos estos errores. Trabajamos únicamente en tu nombre, ofreciendo representación independiente, orientación clara y acceso a todas las propiedades disponibles, incluidas oportunidades fuera del mercado que otros nunca llegan a ver.

¿Interesado en un Asesor Personal de Propiedades?

Te mostramos todas las casas disponibles en un solo lugar. No dudes en contactarnos para saber cómo podemos satisfacer tus necesidades y proteger tus intereses exclusivamente.

Características

Garaje
Transferencia de propiedad
Precio solicitado
€ 928.000
Estado
Available
Aceptación
In Concert
Construcción
Tipo de casa
Single Family House
Tipo de edificio
Detached House
Periodo de construcción
1997
Calificación energética
B
Tipo de tejado
front gable
Dormitorios
3
Baños
2
Superficies y Volumen
Superficie habitable
175 m2
Otro espacio interior
57 m2
Espacio exterior adjunto al edificio
18 m2
Volumen en metros cúbicos
862 m3
Tamaño del terreno
571 m2
Instalaciones
Cable Tv
Fluetube
Fibreopticcable
Garage
Garden
Skylight
Baerz & Co Property Brochure

Folleto

Vídeos

Zonnenberg Makelaardij

Kerkewijk 108
3904 JG Veenendaal

info@zonnenbergmakelaardij.nl
+31 318 559600

www.zonnenbergmakelaardij.nl

Solicitud de información / Visita

Wistik Zonnenberg profile image
Wistik Zonnenberg
Register Makelaar Taxateur/ Eigenaar

Comprar una propiedad de lujo en Veenendaal

Veenendaal ofrece un equilibrio armonioso de tranquilidad, sofisticación urbana y servicios variados. La comunidad aprecia la privacidad, la vida ecológica y las conexiones internacionales, respaldadas por avanzados servicios inmobiliarios para una clientela global selecta.