ROTTERDAM
Berglustlaan 74 - 3054 BK
Países Bajos

€1,295,000
Superficie habitable
172m2
Tamaño del terreno
264m2
Dormitorios
5

Descripción

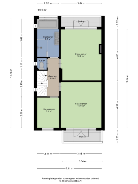
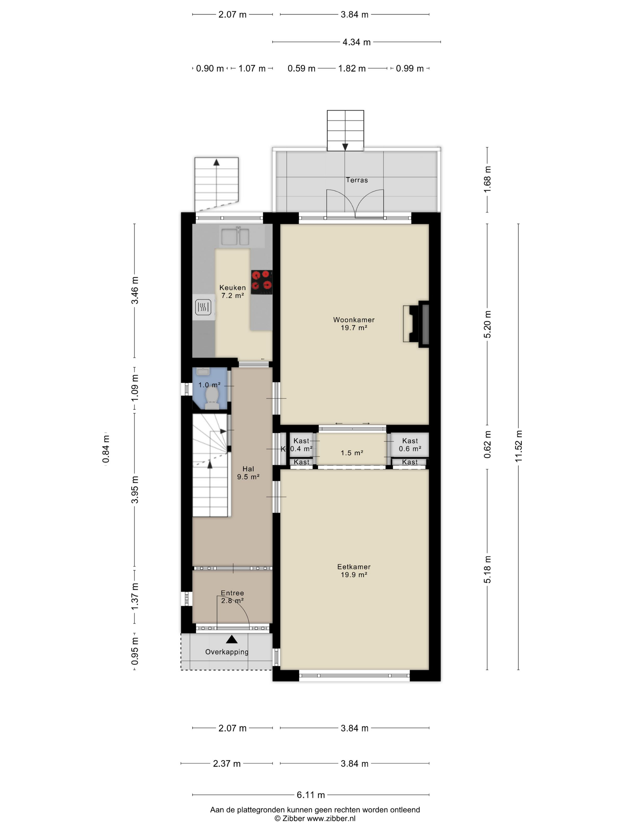
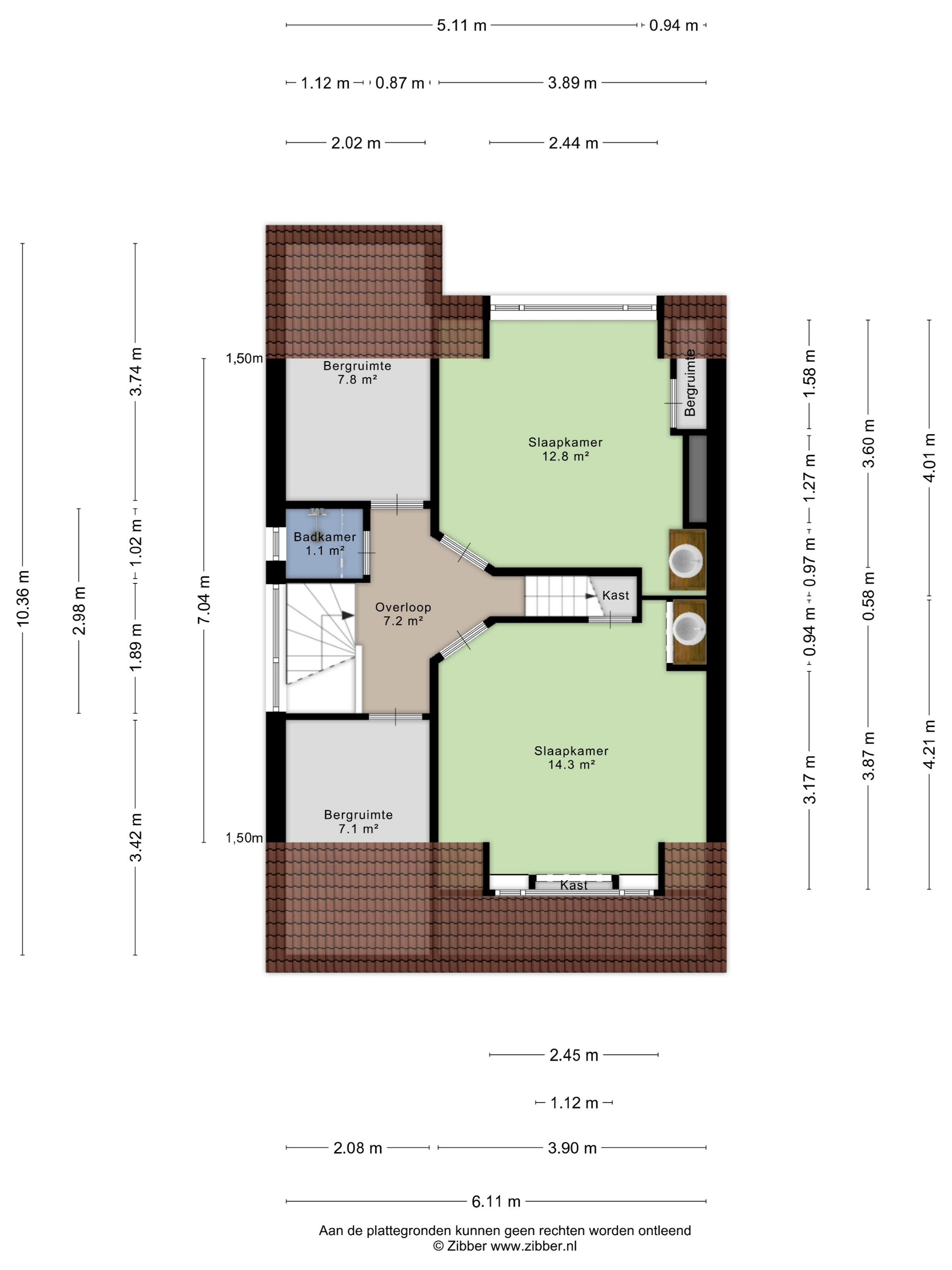
Townhouse Rotterdam es una vivienda adosada con carácter, situada en una de las avenidas arboladas más pintorescas de Hillegersberg. Construida en 1929, esta propiedad de cinco dormitorios dispone de 244 m² de superficie habitable sobre una parcela privada de 264 m², cuidadosamente conservada y con detalles originales que transmiten una sensación de historia y calidez desde el primer momento. Este domicilio destaca por su extraordinaria sostenibilidad. La transición a un estilo de vida sin gas está finalizada, una bomba de calor eléctrica proporciona calefacción y agua caliente, el acristalamiento doble HR++ está instalado donde es posible, y los paneles solares incrementan la eficiencia. La clase energética C evidencia el compromiso con el confort contemporáneo.

La vivienda cuenta con aparcamiento privado dotado de estación de carga eléctrica, un tranquilo jardín trasero orientado al noreste de generosas dimensiones y toldos exteriores para protección solar. Dos baños dan servicio a los cinco dormitorios, todos con luz natural y vistas al follaje. Los acabados interiores incluyen suelo de parquet en espiga, armarios empotrados de época y puertas francesas que conectan la vida interior y exterior. El sótano ofrece un uso flexible, ideal para oficina, estudio o espacio de ocio.

Todas las comodidades, como parques, marinas, escuelas y las boutiques de Bergse Dorpsstraat, se encuentran a poca distancia a pie, así como el transporte público y las principales autopistas. Esta casa en Róterdam es ideal para quienes buscan la arquitectura clásica holandesa, junto con una sostenibilidad innovadora perfectamente integrada en la vida cotidiana.

Explora Róterdam con Baerz, Tu Buscador y Asesor Personal de Propiedades de Confianza

Navegar el dinámico mercado inmobiliario de Róterdam requiere asesores experimentados que combinen inteligencia local con un servicio internacional. El acceso discreto a propiedades fuera de mercado, estrategias de negociación a medida y un profundo conocimiento normativo permiten a compradores y vendedores sofisticados tomar decisiones precisas. Esta experiencia optimiza la inversión y protege los intereses en cada etapa del proceso.

Evita los errores comunes

Los compradores internacionales a menudo pierden tiempo valioso en listados en línea duplicados, desactualizados o engañosos, especialmente porque casi el 30%% de las casas de lujo nunca aparecen en el mercado público. Los agentes del vendedor representan los intereses del vendedor, no los del comprador. Incluso solicitar información sobre una propiedad puede resultar en que un agente del vendedor te registre como su “cliente” sin tu consentimiento.
Con Baerz Property Finders & Advisors, evitas por completo todos estos errores. Trabajamos únicamente en tu nombre, ofreciendo representación independiente, orientación clara y acceso a todas las propiedades disponibles, incluidas oportunidades fuera del mercado que otros nunca llegan a ver.

¿Interesado en un Asesor Personal de Propiedades?

Te mostramos todas las casas disponibles en un solo lugar. No dudes en contactarnos para saber cómo podemos satisfacer tus necesidades y proteger tus intereses exclusivamente.

Características

Paneles solares
Transferencia de propiedad
Precio solicitado
€ 1.295.000
Estado
beschikbaar
Aceptación
in overleg
Construcción
Tipo de casa
Herenhuis
Tipo de edificio
twee onder een kapwoning
Periodo de construcción
1929
Calificación energética
C
Tipo de tejado
samengesteld dak
Dormitorios
5
Baños
2
Superficies y Volumen
Superficie habitable
172 m2
Otro espacio interior
72 m2
Espacio exterior adjunto al edificio
10 m2
Espacio de almacenamiento externo
5 m2
Volumen en metros cúbicos
864 m3
Tamaño del terreno
264 m2
Instalaciones
Mechanische ventilatie
Tv kabel
Buitenzonwering
Rookkanaal
Glasvezel kabel
Zonnepanelen
Natuurlijke ventilatie
In woonwijk
Baerz & Co Property Brochure

Folleto

Vídeos

J.J. Van Oosten Makelaardij BV

Straatweg 225
3054 AG Rotterdam

info@vanoostenmakelaardij.nl
+31 10 422 11 00

www.vanoostenmakelaardij.nl

Solicitud de información / Visita

Joris van Oosten profile image
Joris van Oosten
Real estate agent

Comprar una propiedad de lujo en Róterdam

Róterdam ofrece un estilo de vida sofisticado a una comunidad internacional exigente, con excelentes oportunidades culturales, empresariales y de ocio. Sus residentes disfrutan de servicios de primer nivel, viviendas distinas y un entorno urbano globalmente conectado.