OIRSCHOT
Heerenbeek 1 - 5688 MN
Países Bajos

€2,950,000
Superficie habitable
673m2
Tamaño del terreno
9758m2
Dormitorios
5

Descripción

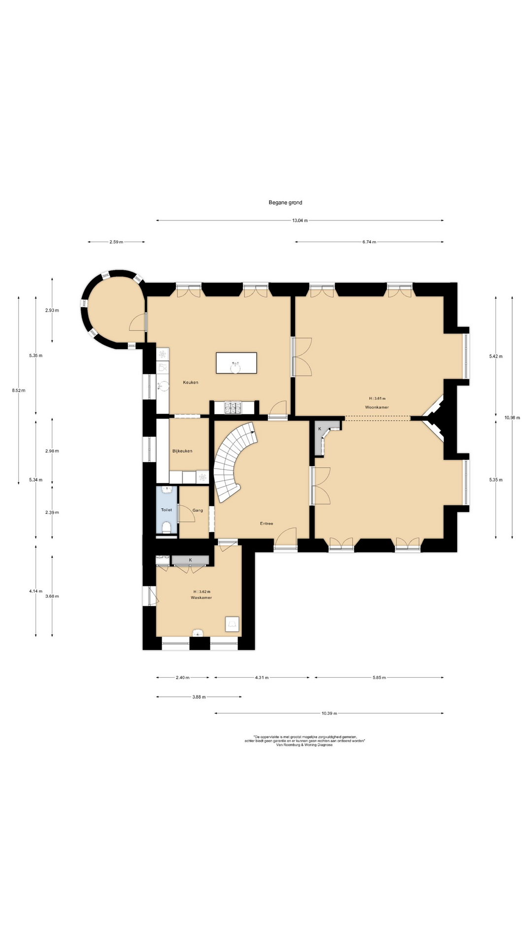
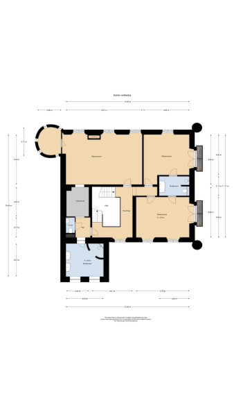
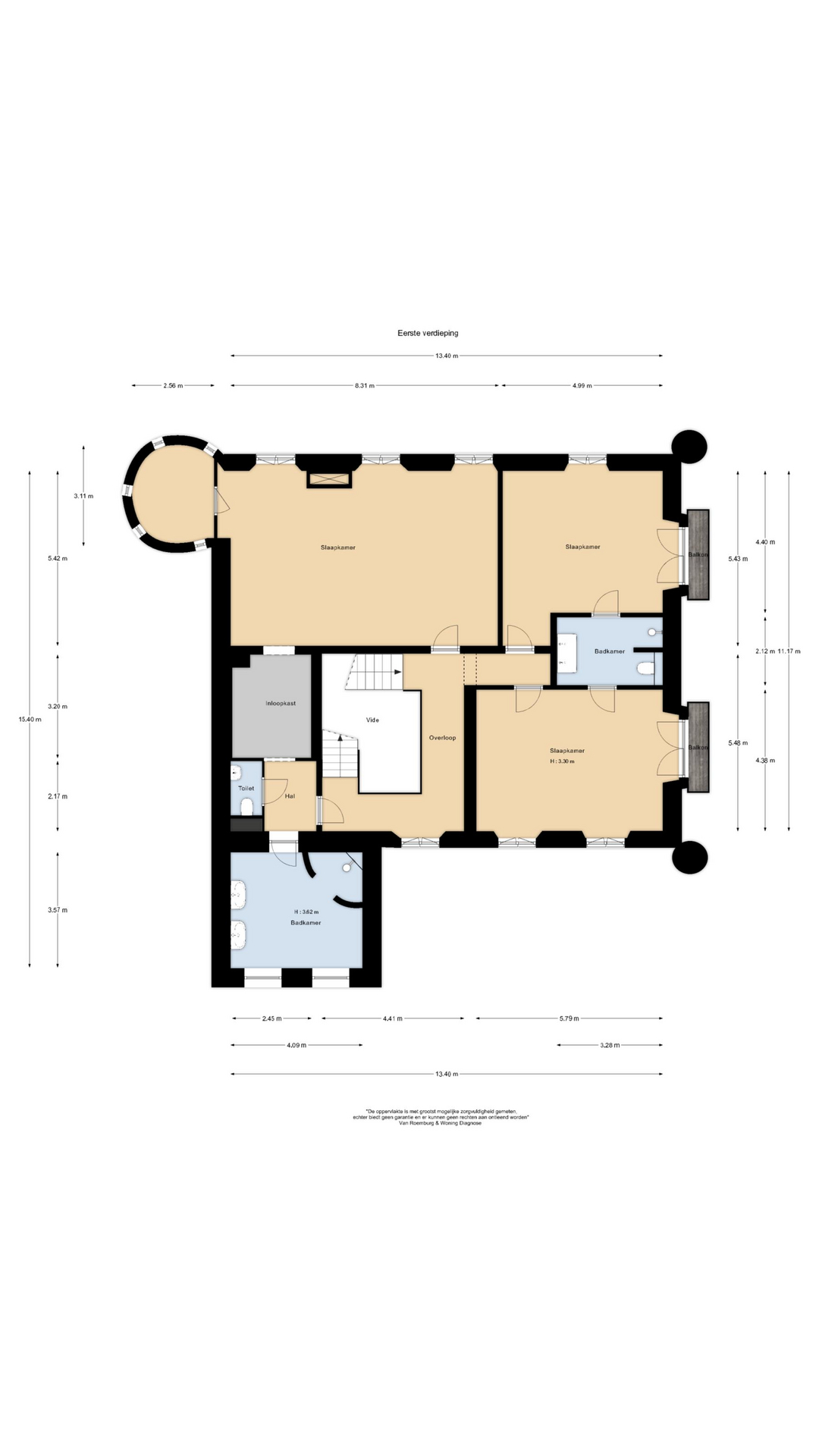
La finca Oirschot emerge en un entorno arbolado, donde la arquitectura monumental se funde con una conservación meticulosa. Esta propiedad ofrece 673 m² de superficie habitable, distribuidos en cinco dormitorios y cuatro baños, repartidos entre la casa principal y una casa de carruajes independiente. Destaca por sus orígenes, que datan aproximadamente de 1864, y por una reconstrucción integral en 1998. La mansión impresiona por sus techos altos, fachadas clásicas enlucidas, torretas angulares y una torre redonda con almenas. Los interiores se definen por elegantes estucos, suelos de parqué y abundante luz natural que se filtra a través de altas ventanas y puertas francesas, mientras que las chimeneas y la calefacción por suelo radiante aportan una cálida atmósfera en todo el conjunto.

Con más de 9.758 m² de terreno—ofrecidos bajo un contrato de arrendamiento de larga duración—la finca se despliega entre árboles maduros, jardines y zonas de césped, todo protegido bajo un régimen de conservación de la naturaleza. Prestaciones como un spa con sauna, ducha a ras de suelo y bañera, una cocina completamente equipada y una cochera para cinco vehículos aumentan el nivel de confort y utilidad. Oirschot cuenta con certificado energético A+ gracias al alto nivel de aislamiento, 40 paneles solares y dos bombas de calor, fusionando patrimonio y sostenibilidad. Ventajas fiscales conforme a la Ley de Conservación de la Naturaleza de los Países Bajos respaldan la preservación del carácter y el entorno de esta finca.

Próxima a conexiones internacionales, la propiedad invita a disfrutar de un estilo de vida marcado por la privacidad y la sofisticación en un entorno natural cuidadosamente gestionado.

Explora Oirschot con Baerz, Tu Buscador y Asesor Personal de Propiedades de Confianza

Orientación experta y acceso exclusivoAdquirir un inmueble histórico o villa a medida implica sortear normativas, protecciones legales y negociaciones sensibles. Los asesores especializados aportan conocimiento del mercado, acceso a propiedades privadas y experiencia para proteger los intereses del cliente, asegurando privacidad y éxito en la inversión.

Evita los errores comunes

Los compradores internacionales a menudo pierden tiempo valioso en listados en línea duplicados, desactualizados o engañosos, especialmente porque casi el 30% de las casas de lujo nunca aparecen en el mercado público. Los agentes del vendedor representan los intereses del vendedor, no los del comprador. Incluso solicitar información sobre una propiedad puede resultar en que un agente del vendedor te registre como su “cliente” sin tu consentimiento.
Con Baerz Property Finders & Advisors, evitas por completo todos estos errores. Trabajamos únicamente en tu nombre, ofreciendo representación independiente, orientación clara y acceso a todas las propiedades disponibles, incluidas oportunidades fuera del mercado que otros nunca llegan a ver.

¿Interesado en un Asesor Personal de Propiedades?

Te mostramos todas las casas disponibles en un solo lugar. No dudes en contactarnos para saber cómo podemos satisfacer tus necesidades y proteger tus intereses exclusivamente.

Características

Paneles solares
Sistema de alarma
Transferencia de propiedad
Precio solicitado
€ 2.950.000
Estado
beschikbaar
Aceptación
in overleg
Construcción
Tipo de casa
Landgoed
Tipo de edificio
vrijstaande woning
Periodo de construcción
1998
Calificación energética
A+
Tipo de tejado
samengesteld dak
Dormitorios
5
Baños
4
Superficies y Volumen
Superficie habitable
673 m2
Otro espacio interior
0 m2
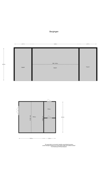
Espacio exterior adjunto al edificio
3 m2
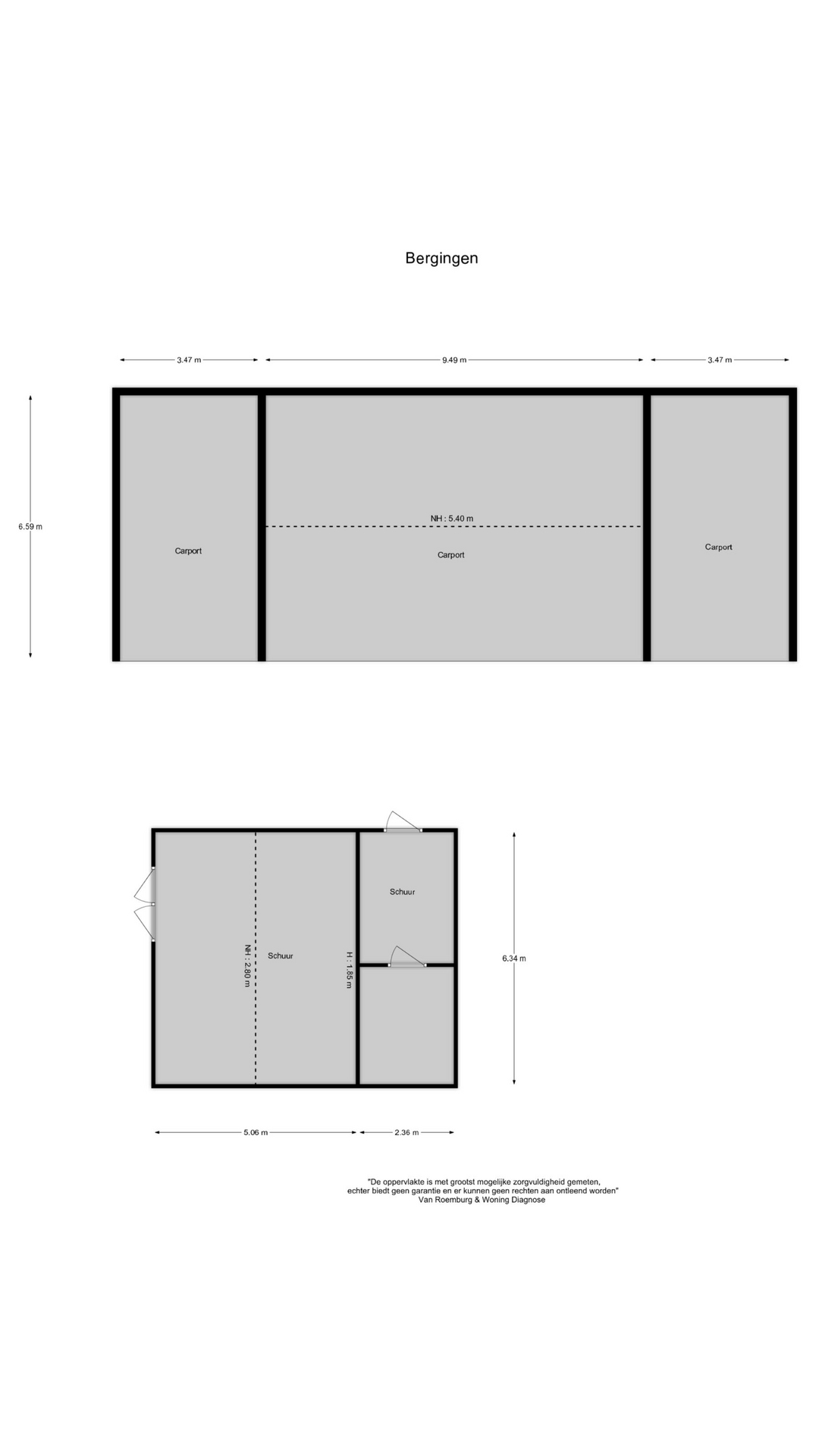
Espacio de almacenamiento externo
47 m2
Volumen en metros cúbicos
2155 m3
Tamaño del terreno
9758 m2
Instalaciones
Mechanische ventilatie
Alarminstallatie
Tv kabel
Rookkanaal
Frans balkon
Dakraam
Sauna
Glasvezel kabel
Zonnepanelen
In bosrijke omgeving
Baerz & Co Property Brochure

Folleto

Vídeos

Panorámicas 360

360°
360 Panorama - Heerenbeek 1
360°
360 Panorama - Heerenbeek 1
360°
360 Panorama - Heerenbeek 1
360°
360 Panorama - Heerenbeek 1
360°
360 Panorama - Heerenbeek 1
360°
360 Panorama - Heerenbeek 1
360°
360 Panorama - Heerenbeek 1
360°
360 Panorama - Heerenbeek 1

Bijzonder Wonen Makelaardij

Heilige Geeststraat, 11
5301CP Zaltbommel

info@bijzonderwonen.com
+31 41 868 00 50

www.bijzonderwonen.com

Solicitud de información / Visita

Jeanette van Haaften profile image
Jeanette van Haaften
Real Estate Agent

Comprar una propiedad de lujo en Oirschot

Oirschot ofrece un estilo de vida refinado entre historia y naturaleza. Los residentes disfrutan de privacidad, cultura y servicios locales destacados, en una comunidad tranquila y bien conectada que atrae a una clientela internacional.