LEIDEN
Rapenburg 45 - 2311 GG
Países Bajos

Michiel de Jong RM profile image
Michiel de Jong RM
NVM Register Makelaar - Partner
€2,750,000 k.k.
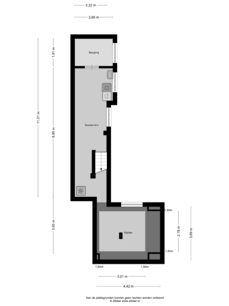
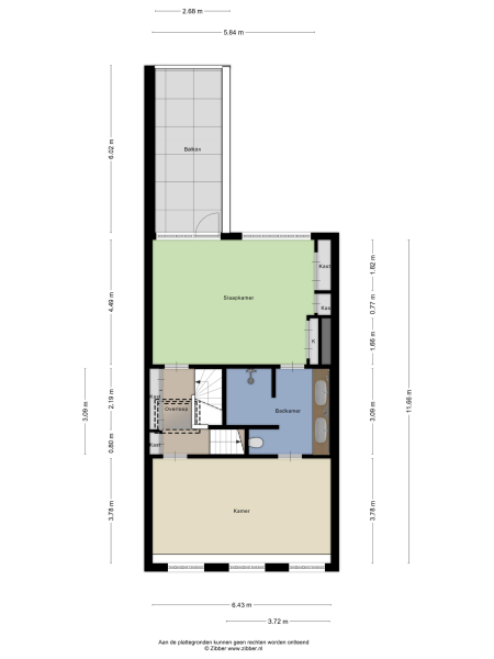
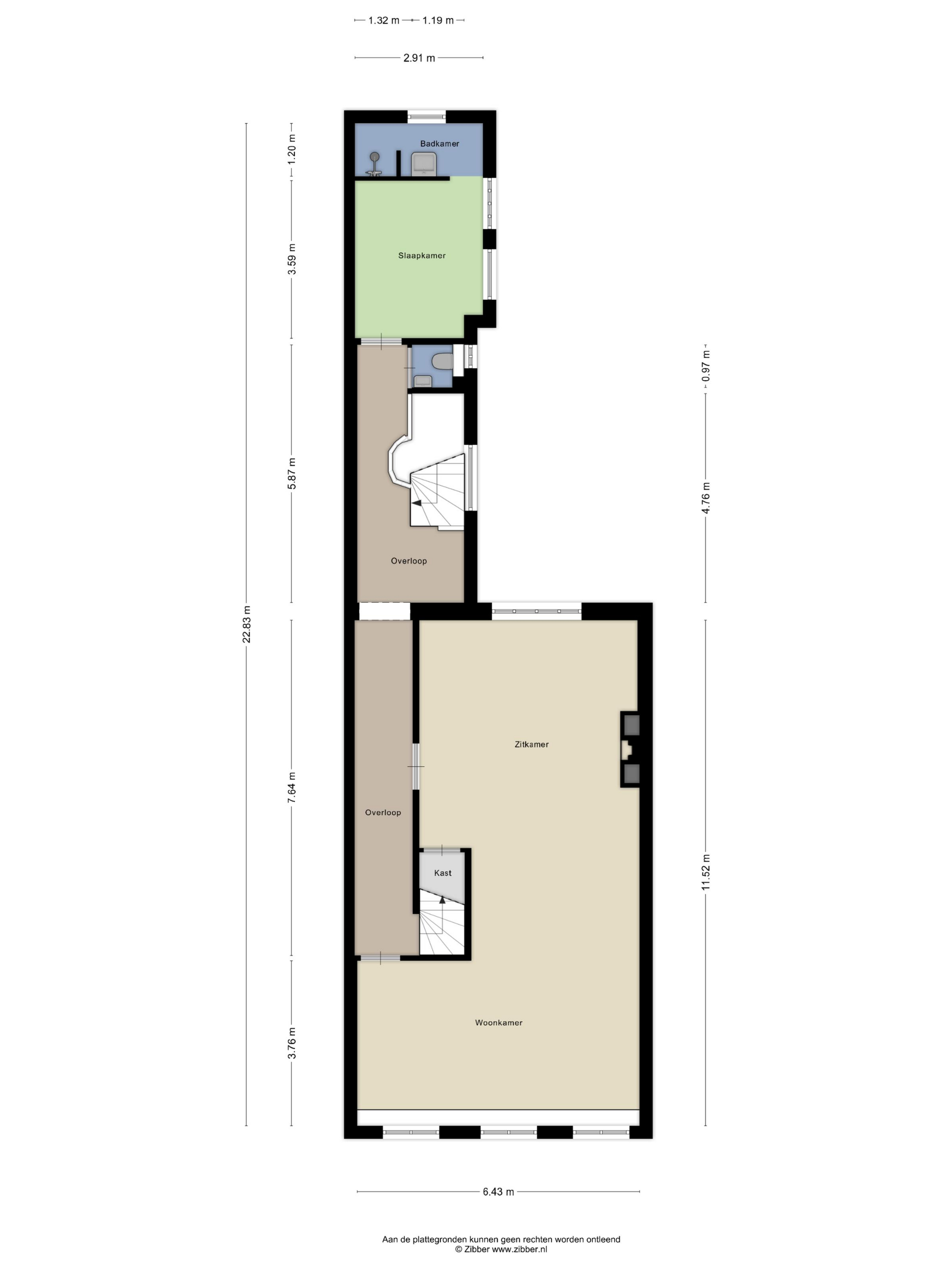
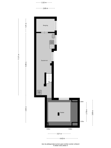
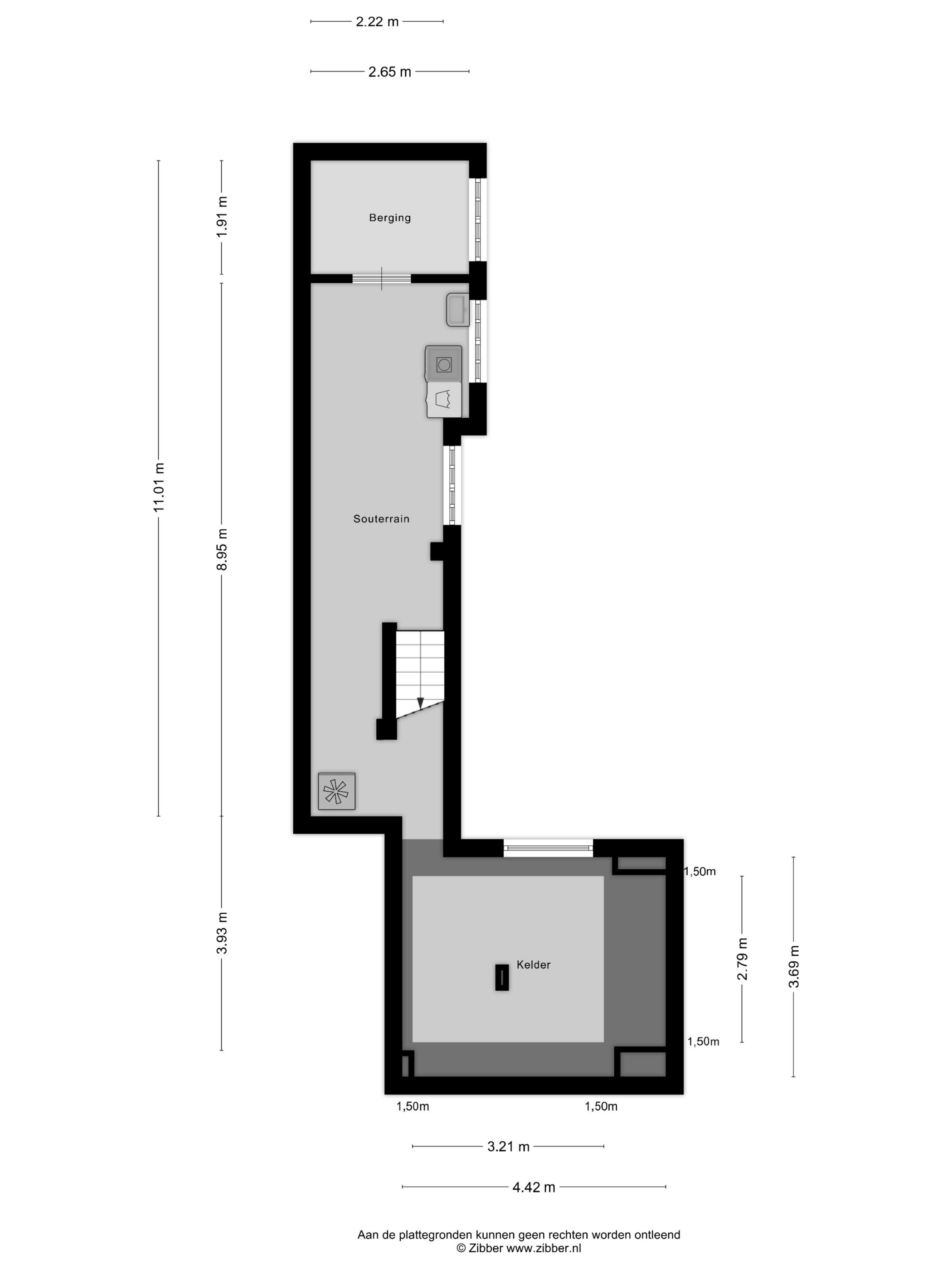
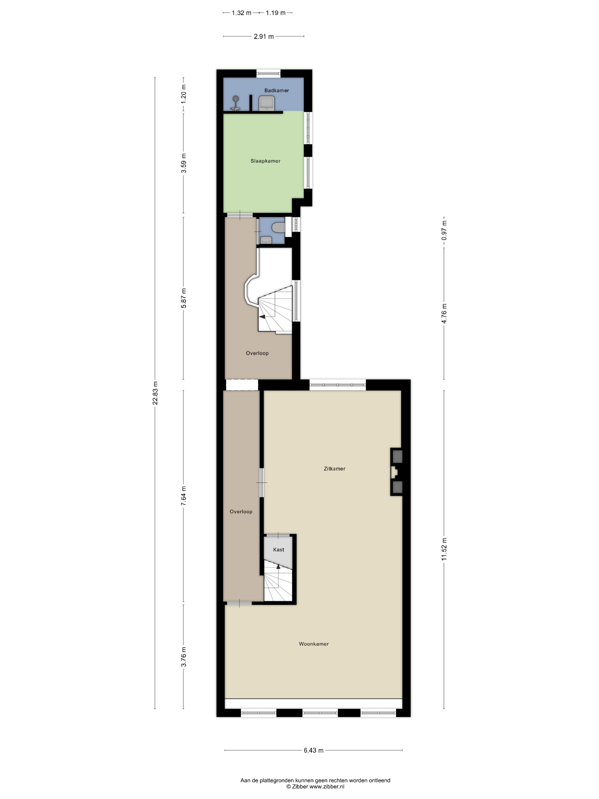
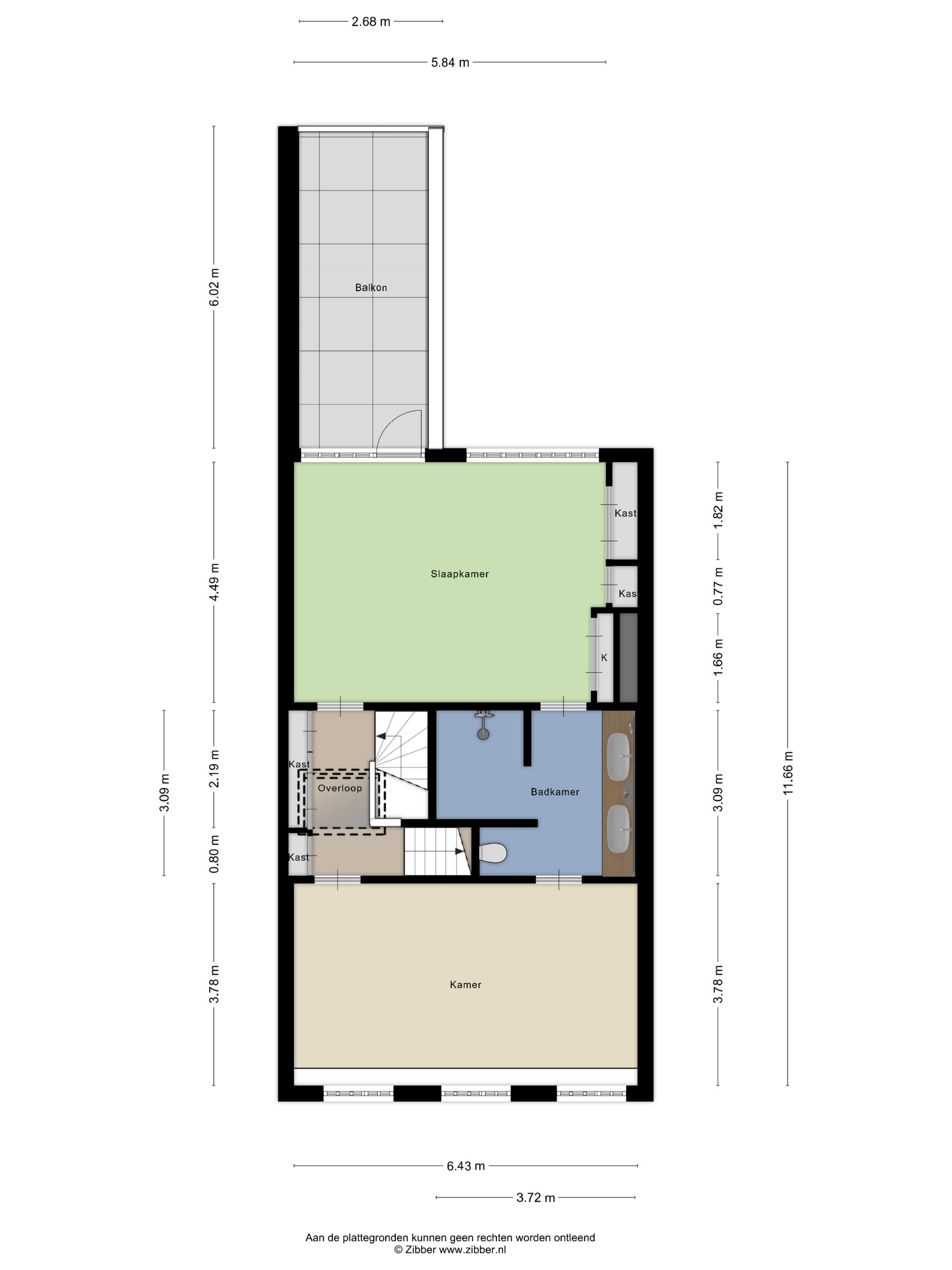
Superficie habitable
345m2
Tamaño del terreno
218m2
Dormitorios
6

Descripción

The Canal House Leiden es una propiedad monumental del siglo XVII completamente renovada, situada junto el canal más admirado de la ciudad. Con una superficie habitable de 345 m² y cinco dormitorios, esta casa de canal destaca por su ubicación inigualable, a pocos pasos del Rijksmuseum van Oudheden y cerca del célebre Hortus Botanicus. La propiedad fusiona su presencia histórica con una profunda privacidad, tras una fachada que se mantiene intacta desde hace siglos, pero renovada en su interior con maestría contemporánea y mejoras sostenibles, como el vidrio al vacío de última generación y los más avanzados estándares de aislamiento.

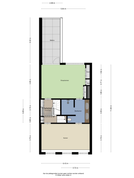
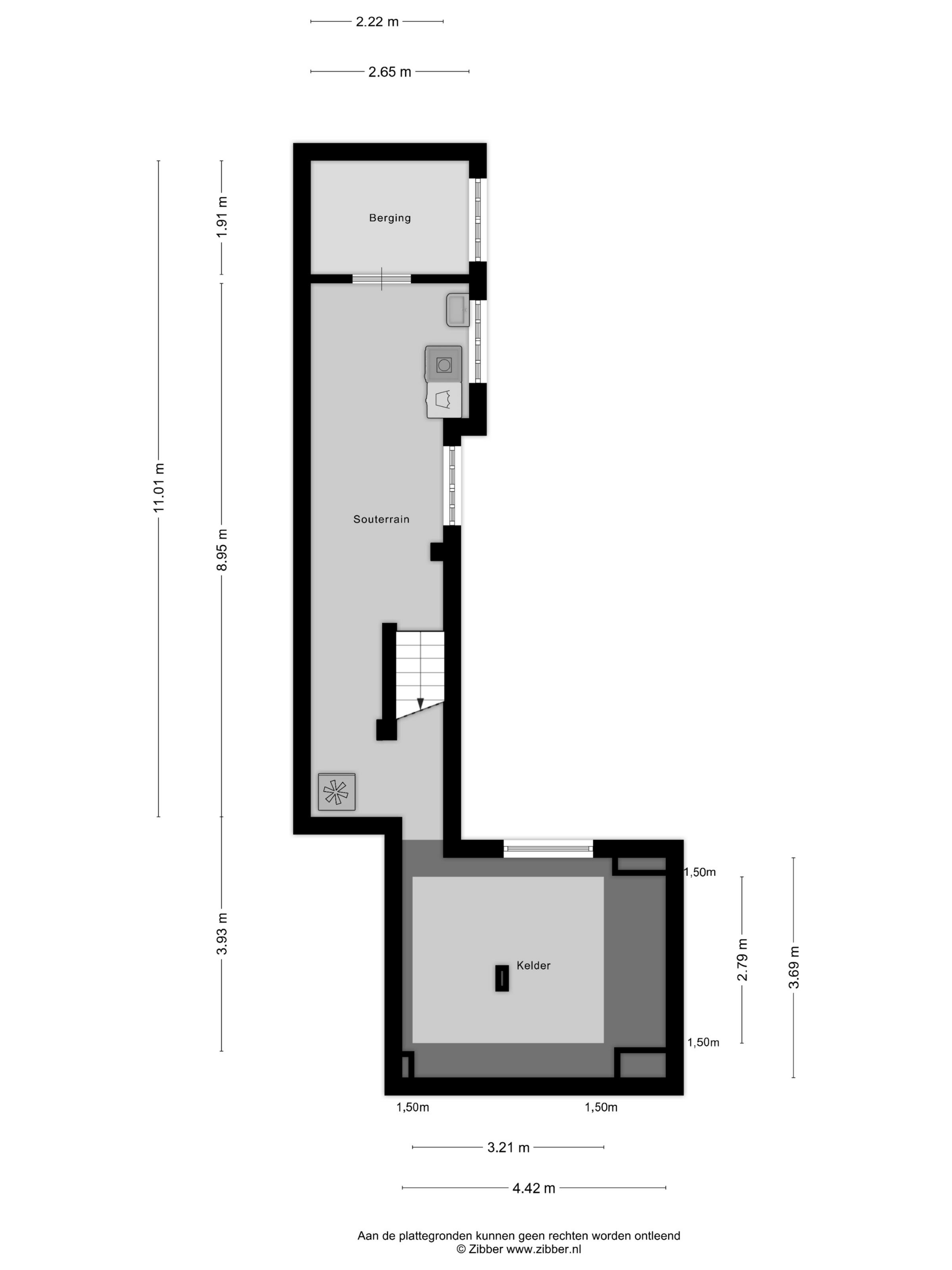
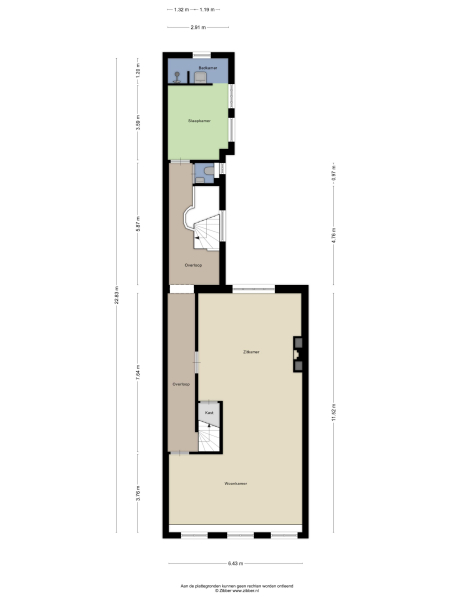
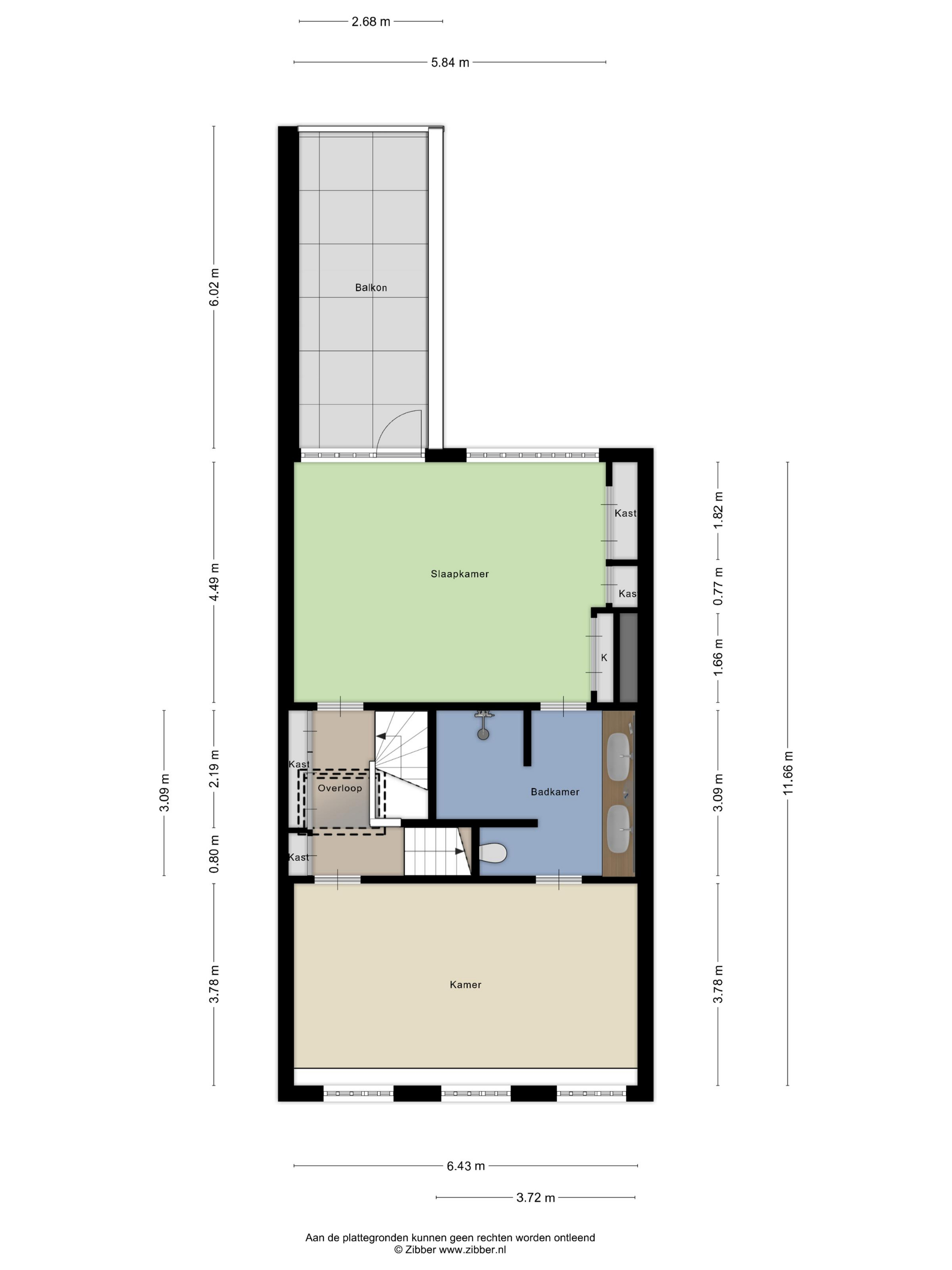
Al entrar, los espacios amplios y luminosos invitan a la calma; techos con vigas, azulejos Delft Blue y una escalera excepcional aportan autenticidad y carácter. La cocina Bulthaup se conecta directamente con el jardín urbano orientado al oeste, maduro y resguardado. Las plantas primera y superiores disponen de seis estancias aptas para la vida familiar, el trabajo o el descanso, más tres cuartos de baño distribuidos en toda la vivienda. En la parte trasera, una terraza privada une la suite principal con el cielo, mientras las zonas de estar reciben vistas al canal y a la vibrante vida urbana.

Vivir en Rapenburg garantiza comodidad absoluta, acceso a cultura y total discreción, con teatros, museos y restaurantes a muy poca distancia. El estacionamiento privado subterráneo, disponible por separado, refuerza el atractivo urbano del inmueble. Esta casa de canal en Leiden representa una composición excepcional de patrimonio, confort y vida urbana.

Explora Leiden con Baerz, Tu Buscador y Asesor Personal de Propiedades de Confianza

Orientarse en el mercado de Leiden requiere conocimiento de las tradiciones locales, normativas y ofertas discretas fuera de mercado. Los asesores expertos aportan acceso a carteras exclusivas, negocian con destreza y brindan acompañamiento integral en las transacciones. Su capacidad para anticipar tendencias, identificar oportunidades únicas y proteger los intereses del cliente garantiza ventajas estratégicas y tranquilidad durante todo el proceso de adquisición.

Evita los errores comunes

Los compradores internacionales a menudo pierden tiempo valioso en listados en línea duplicados, desactualizados o engañosos, especialmente porque casi el 30% de las casas de lujo nunca aparecen en el mercado público. Los agentes del vendedor representan los intereses del vendedor, no los del comprador. Incluso solicitar información sobre una propiedad puede resultar en que un agente del vendedor te registre como su “cliente” sin tu consentimiento.
Con Baerz Property Finders & Advisors, evitas por completo todos estos errores. Trabajamos únicamente en tu nombre, ofreciendo representación independiente, orientación clara y acceso a todas las propiedades disponibles, incluidas oportunidades fuera del mercado que otros nunca llegan a ver.

¿Interesado en un Asesor Personal de Propiedades?

Te mostramos todas las casas disponibles en un solo lugar. No dudes en contactarnos para saber cómo podemos satisfacer tus necesidades y proteger tus intereses exclusivamente.

Características

Sistema de alarma
Transferencia de propiedad
Precio solicitado
€ 2.750.000 k.k.
Estado
beschikbaar
Aceptación
in overleg
Construcción
Tipo de casa
Grachtenpand
Tipo de edificio
tussenwoning
Periodo de construcción
1660
Tipo de tejado
samengesteld dak
Dormitorios
6
Baños
3
Superficies y Volumen
Superficie habitable
345 m2
Otro espacio interior
28 m2
Espacio exterior adjunto al edificio
16 m2
Volumen en metros cúbicos
1322 m3
Tamaño del terreno
218 m2
Instalaciones
Mechanische ventilatie
Alarminstallatie
Tv kabel
Rookkanaal
Aan water
Aan rustige weg
In centrum
Vrij uitzicht
Aan vaarwater
Baerz & Co Property Brochure

Folleto

Vídeos

Graal Makelaardij

Rapenburg 4
2311 EV Leiden

info@graalmakelaardij.nl
+31 (0)71 51 61 000

www.graalmakelaardij.nl

Solicitud de información / Visita

Michiel de Jong RM profile image
Michiel de Jong RM
NVM Register Makelaar - Partner

Comprar una propiedad de lujo en Leiden

Leiden ofrece un patrimonio inigualable, cultura dinámica y servicios exclusivos, creando un entorno atractivo para residentes internacionales. Con hogares refinados, academia vibrante y lujo discreto, esta ciudad a orillas del canal brinda un estilo de vida sofisticado y global.