LANDSMEER
Langhuislaan 19 - 1121 RL
Países Bajos

€1,498,011
Superficie habitable
233m2
Tamaño del terreno
395m2
Dormitorios
5

Descripción

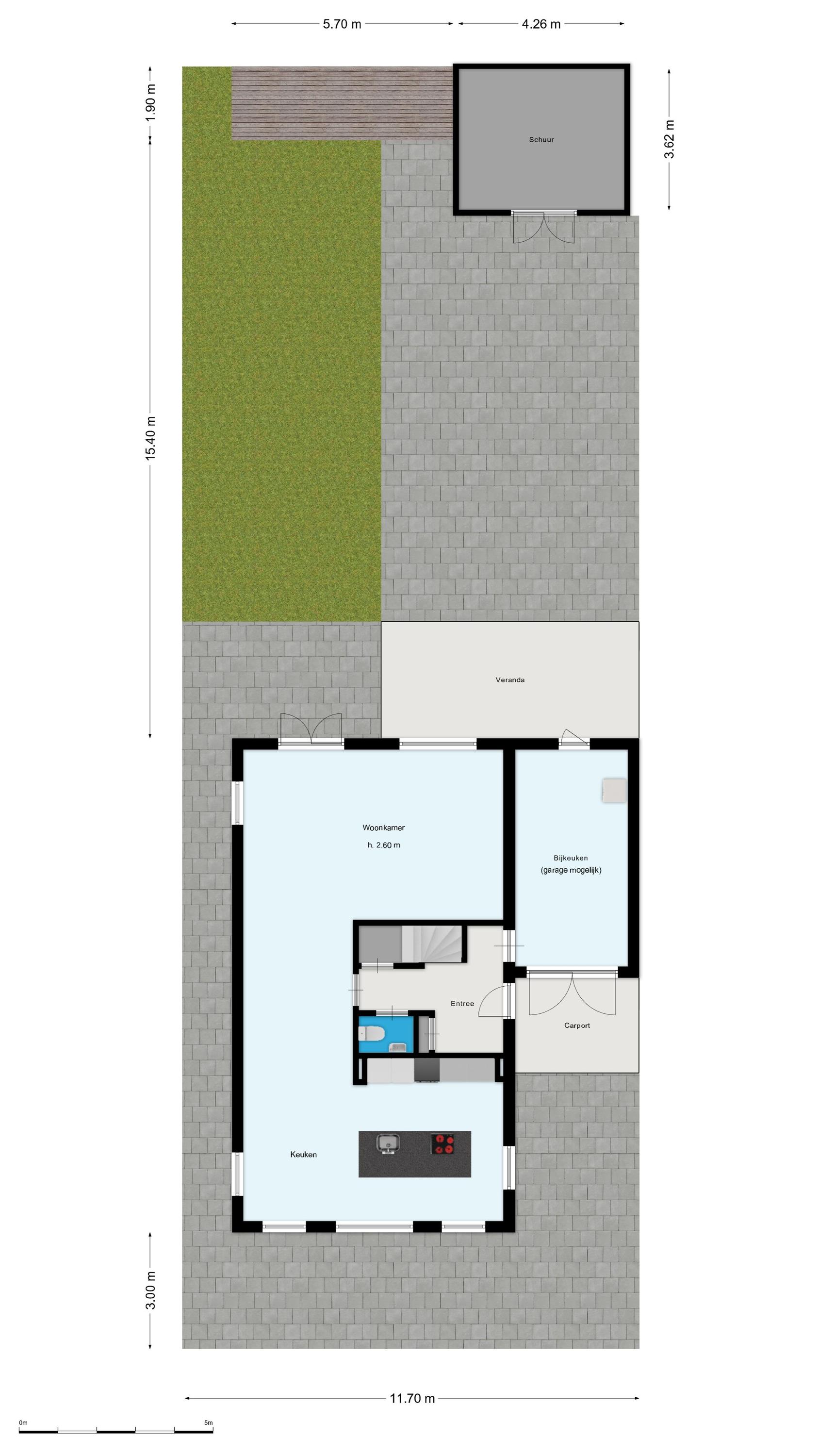
Esta casa adosada de lujo en Landsmeer representa la esencia de la vida moderna neerlandesa con una combinación cuidada de confort, detalles arquitectónicos y conexión tanto con la ciudad como con la naturaleza. Ubicada en Luijendijk-Zuid, sobre un terreno de propiedad de 395 m², la vivienda ofrece 233 m² de espacio habitable y acceso directo a aguas navegables, lo que permite amarrar su barco privado en el propio jardín.

El diseño integra canalones elevados, pilastras de mampostería, balcón francés y un elegante tejado a la holandesa truncado. Al ingresar, la cocina comedor se distingue por una isla de cocción con electrodomésticos integrados. El salón, orientado al jardín privado, cuenta con puertas francesas, chimenea de pared cinewall y una fluida transición hacia una amplia veranda. El jardín incluye un cobertizo de madera y equipamiento ideal para familias.

La vivienda dispone de cinco dormitorios y dos baños distribuidos en tres niveles; aire acondicionado, calefacción por suelo radiante y aislamiento de alta calidad garantizan el confort durante todo el año. Entre las comodidades se incluyen un garaje actualmente usado como lavandería o cuarto de servicio, carport, ventilación mecánica, sistemas de seguridad y cámaras CCTV. A solo minutos de Ámsterdam y del entorno natural Het Twiske, este elegante adosado en Landsmeer es un refugio distinguido con excelente acceso a paisajes urbanos y naturales.

Explora Landsmeer con Baerz, Tu Buscador y Asesor Personal de Propiedades de Confianza

Colaborar con un asesor inmobiliario local aporta ventajas decisivas. Muchas propiedades excepcionales se comercializan de forma privada y requieren acceso a redes consolidadas. Los asesores experimentados guían las negociaciones, gestionan el marco regulatorio y facilitan contactos con arquitectos y proveedores acreditados. Su experiencia es clave para asegurar adquisiciones sobresalientes, beneficiando tanto a compradores como a vendedores.

Evita los errores comunes

Los compradores internacionales a menudo pierden tiempo valioso en listados en línea duplicados, desactualizados o engañosos, especialmente porque casi el 30% de las casas de lujo nunca aparecen en el mercado público. Los agentes del vendedor representan los intereses del vendedor, no los del comprador. Incluso solicitar información sobre una propiedad puede resultar en que un agente del vendedor te registre como su “cliente” sin tu consentimiento.
Con Baerz Property Finders & Advisors, evitas por completo todos estos errores. Trabajamos únicamente en tu nombre, ofreciendo representación independiente, orientación clara y acceso a todas las propiedades disponibles, incluidas oportunidades fuera del mercado que otros nunca llegan a ver.

¿Interesado en un Asesor Personal de Propiedades?

Te mostramos todas las casas disponibles en un solo lugar. No dudes en contactarnos para saber cómo podemos satisfacer tus necesidades y proteger tus intereses exclusivamente.

Características

Paneles solares
Sistema de alarma
Aire acondicionado
Transferencia de propiedad
Precio solicitado
€ 1.498.011
Estado
onder bod
Aceptación
in overleg
Construcción
Tipo de casa
Herenhuis
Tipo de edificio
vrijstaande woning
Periodo de construcción
2016
Tipo de tejado
schilddak
Dormitorios
5
Baños
2
Superficies y Volumen
Superficie habitable
233 m2
Otro espacio interior
0 m2
Espacio exterior adjunto al edificio
28 m2
Espacio de almacenamiento externo
15 m2
Volumen en metros cúbicos
843 m3
Tamaño del terreno
395 m2
Instalaciones
Mechanische ventilatie
Alarminstallatie
Tv kabel
Airconditioning
Frans balkon
Dakraam
Cctv
Zonnepanelen
Aan water
Aan rustige weg
In woonwijk
Aan vaarwater
Baerz & Co Property Brochure

Folleto

Vídeos

11 Makelaars - Amsterdam-Waterland

Nieuwe Gouw 10-12
1121 GX Landsmeer

info@11makelaars.nl
+31 20 20 50 208

www.11makelaars.nl

Solicitud de información / Visita

Niels Eering profile image
Niels Eering
Real Estate Agent

Comprar una propiedad de lujo en Landsmeer

Landsmeer representa una vida armoniosa con servicios de primera, entornos naturales y una comunidad sofisticada. Su equilibrio de privacidad y conexión urbana atrae a un público exigente y global.