KATWIJK
Mallebrugge 1 - 2223 BV
Países Bajos

Frits Wilbrink profile image
Frits Wilbrink
Real estate agent
€1,795,000 k.k.
Superficie habitable
275m2
Tamaño del terreno
710m2
Dormitorios
6

Descripción

La Villa Katwijk, situada frente al agua y con embarcadero privado, ofrece un equilibrio excepcional de espacio, luz y lujo discreto. Esta villa de seis dormitorios y 275 m² de superficie habitable ocupa una ubicación tranquila en un entorno residencial acogedor, garantizando privacidad a solo unos pasos de la orilla. Remodelada meticulosamente en 2017, la vivienda combina a la perfección el diseño moderno con el confort genuino, incorporando calefacción y refrigeración por suelo radiante mediante bomba de calor geotérmica y aislamiento integral, alcanzando la etiqueta energética A.

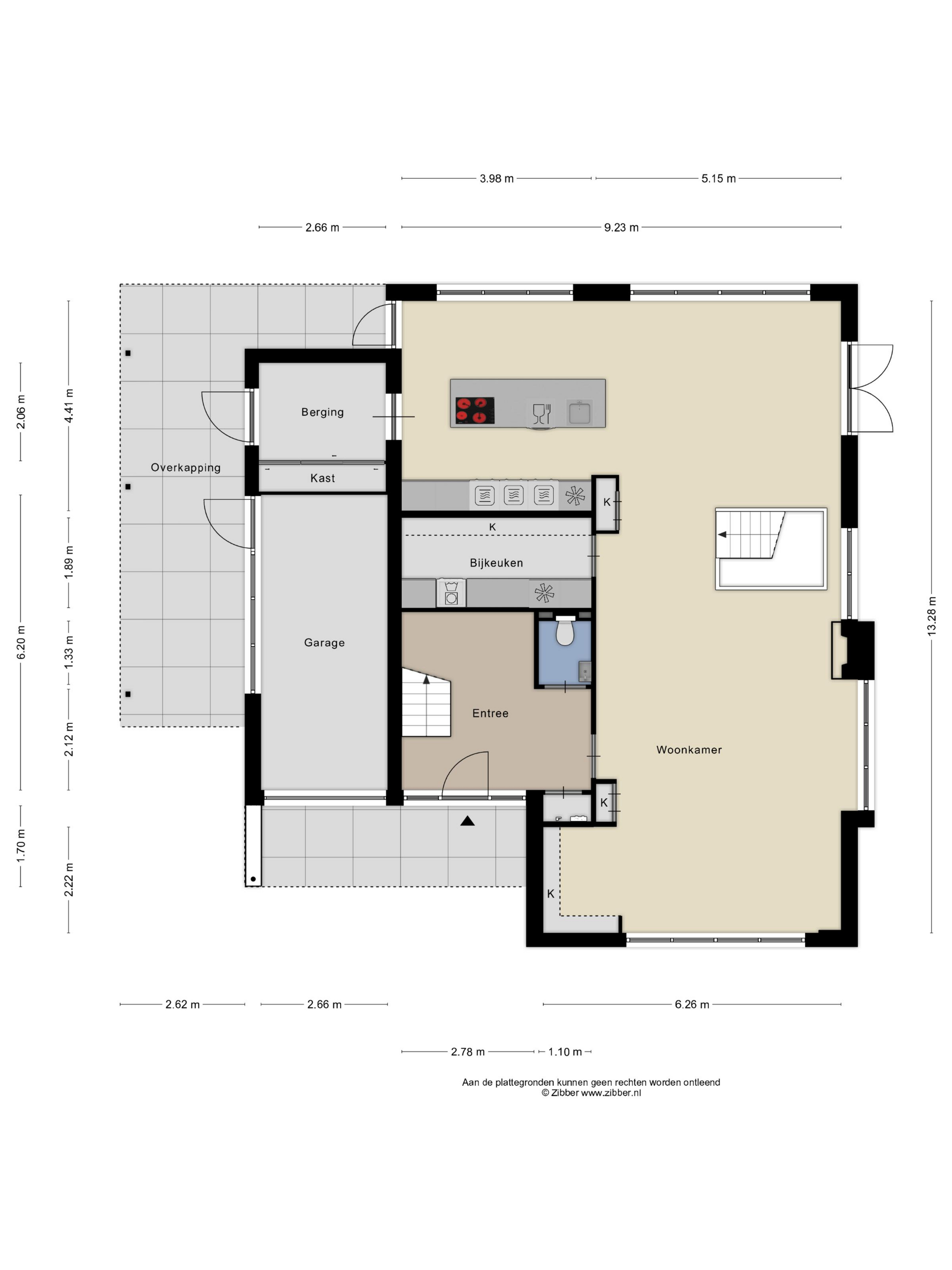
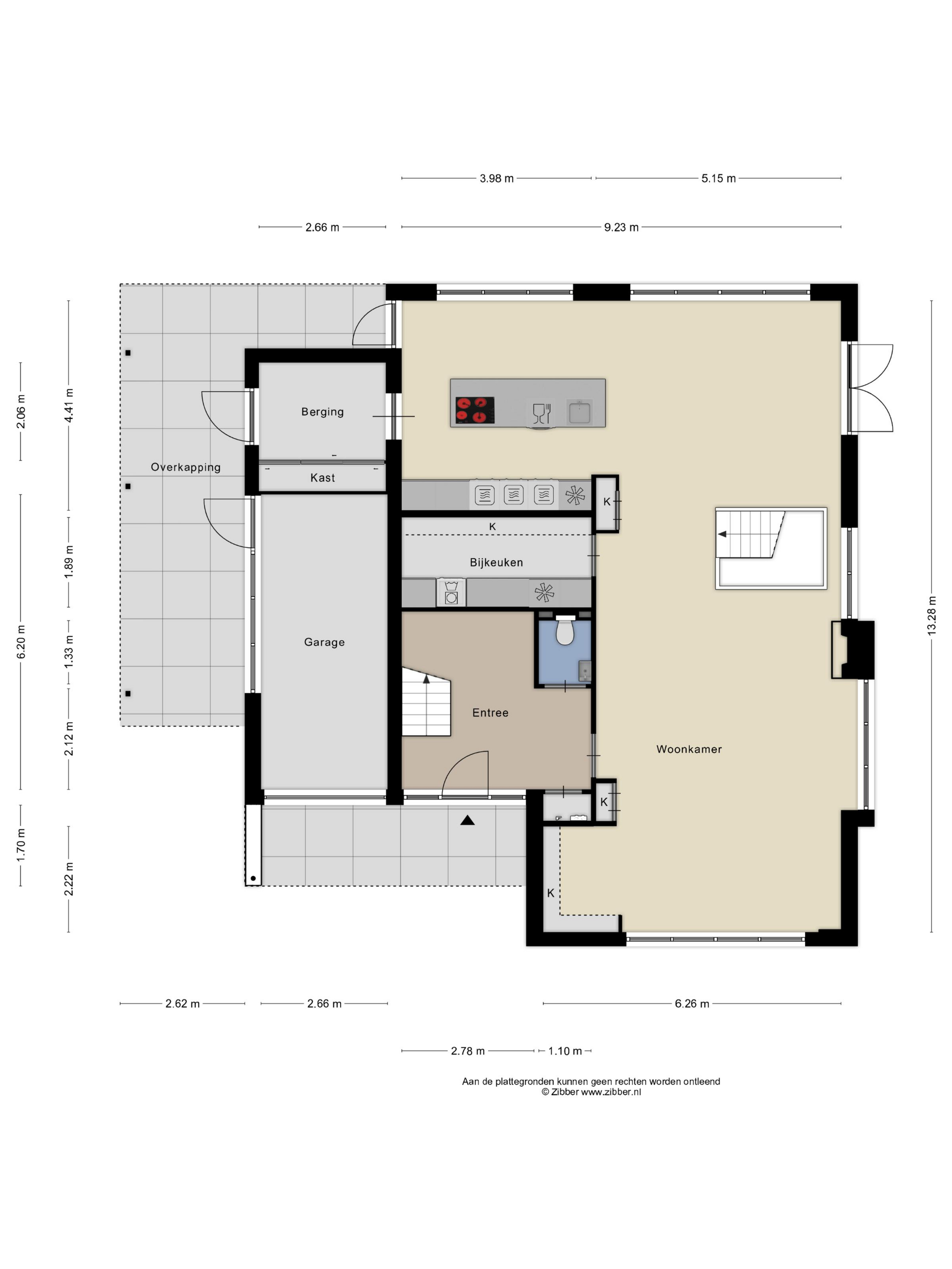
El acceso principal revela un vestíbulo luminoso con una impresionante escalera que conduce a un amplio salón, definido por ventanas panorámicas, suelos de roble y salida a una terraza orientada al sur. La cocina, adyacente, presenta acabados contemporáneos, isla de cocción, abundante espacio para reuniones y acceso directo a la zona de servicios. Una planta sótano polivalente, seis dormitorios repartidos entre las plantas superiores, dos elegantes baños y un desván destinado a almacenamiento marcan el ritmo práctico de la casa.

La vida exterior se disfruta en un jardín cuidadosamente ajardinado, con varias terrazas, setos maduros y una ducha exterior. El embarcadero privado facilita la conexión con el canal, perfecto para salidas en barco por el canal de Oegstgeest y más allá. Garaje, cochera y aparcamiento seguro aportan comodidad y tranquilidad. Todos los servicios y la animada playa de Katwijk están muy cerca, confirmando el exclusivo estilo de vida que ofrece esta villa de lujo en venta en Katwijk.

Explora Katwijk con Baerz, Tu Buscador y Asesor Personal de Propiedades de Confianza

Manejar el sofisticado mercado local requiere discreción, conocimiento experto y sólidas habilidades de negociación. Los asesores abren la puerta a propiedades privadas poco publicitadas, supervisan transacciones complejas y defienden los intereses del cliente. Su experiencia abarca desde detalles normativos hasta conectar compradores con arquitectos y servicios de confianza, garantizando adquisiciones fluidas y satisfacción a largo plazo.

Evita los errores comunes

Los compradores internacionales a menudo pierden tiempo valioso en listados en línea duplicados, desactualizados o engañosos, especialmente porque casi el 30% de las casas de lujo nunca aparecen en el mercado público. Los agentes del vendedor representan los intereses del vendedor, no los del comprador. Incluso solicitar información sobre una propiedad puede resultar en que un agente del vendedor te registre como su “cliente” sin tu consentimiento.
Con Baerz Property Finders & Advisors, evitas por completo todos estos errores. Trabajamos únicamente en tu nombre, ofreciendo representación independiente, orientación clara y acceso a todas las propiedades disponibles, incluidas oportunidades fuera del mercado que otros nunca llegan a ver.

¿Interesado en un Asesor Personal de Propiedades?

Te mostramos todas las casas disponibles en un solo lugar. No dudes en contactarnos para saber cómo podemos satisfacer tus necesidades y proteger tus intereses exclusivamente.

Características

Sistema de alarma
Aire acondicionado
Transferencia de propiedad
Precio solicitado
€ 1.795.000 k.k.
Estado
onder bod
Aceptación
in overleg
Construcción
Tipo de casa
Villa
Tipo de edificio
vrijstaande woning
Periodo de construcción
2005
Calificación energética
A+
Tipo de tejado
samengesteld dak
Dormitorios
6
Baños
2
Superficies y Volumen
Superficie habitable
275 m2
Otro espacio interior
17 m2
Espacio exterior adjunto al edificio
68 m2
Volumen en metros cúbicos
1082 m3
Tamaño del terreno
710 m2
Instalaciones
Mechanische ventilatie
Alarminstallatie
Tv kabel
Airconditioning
Rookkanaal
Dakraam
Glasvezel kabel
Natuurlijke ventilatie
Aan water
Aan rustige weg
In centrum
In woonwijk
Beschutte ligging
Aan vaarwater
Baerz & Co Property Brochure

Folleto

Vídeos

Wilbrink & v.d. Vlugt Makelaars

Heereweg 231
2161 BG Lisse

info@wilbrinkvandervlugt.nl
+31 252 41 90 49

www.onsaanbod.nl

Solicitud de información / Visita

Frits Wilbrink profile image
Frits Wilbrink
Real estate agent

Comprar una propiedad de lujo en Katwijk

Katwijk reúne una comunidad costera unida, servicios refinados y asesoría inmobiliaria de alto nivel, atrayendo a quienes valoran la privacidad y una vida marina vibrante en un entorno internacional.