HERTEN
Drususberg 15 - 6049 MA
Países Bajos

€1,740,000
Superficie habitable
266m2
Tamaño del terreno
1051m2
Dormitorios
5

Descripción

Villa Herten ofrece una combinación excepcional de agua, luz y arquitectura moderna. Esta villa en Herten cuenta con 266 m² de espacio habitable y está situada de manera única en la punta de una península, rodeada por los paisajes siempre cambiantes de Oolderplas. Desde la veranda cubierta, el panorama se convierte en un ritual cotidiano, con atardeceres marcados por el suave juego entre el agua y el cielo.

El interior combina privacidad y conexión. Un vestíbulo da la bienvenida antes de abrirse a una sala de estar bañada por la luz natural de amplios ventanales. La chimenea de gas, instalada como elegante separador, marca la transición al comedor, donde las vistas al agua acompañan cada reunión. El corazón del hogar, una cocina diseñada tanto para la ambición culinaria como para la convivencia, ofrece encimeras de mármol, electrodomésticos integrados de primeras marcas y una barra ideal para conversar o disfrutar de la calma matinal.

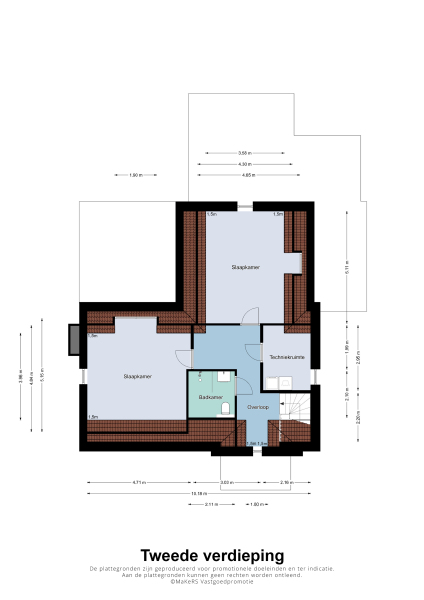
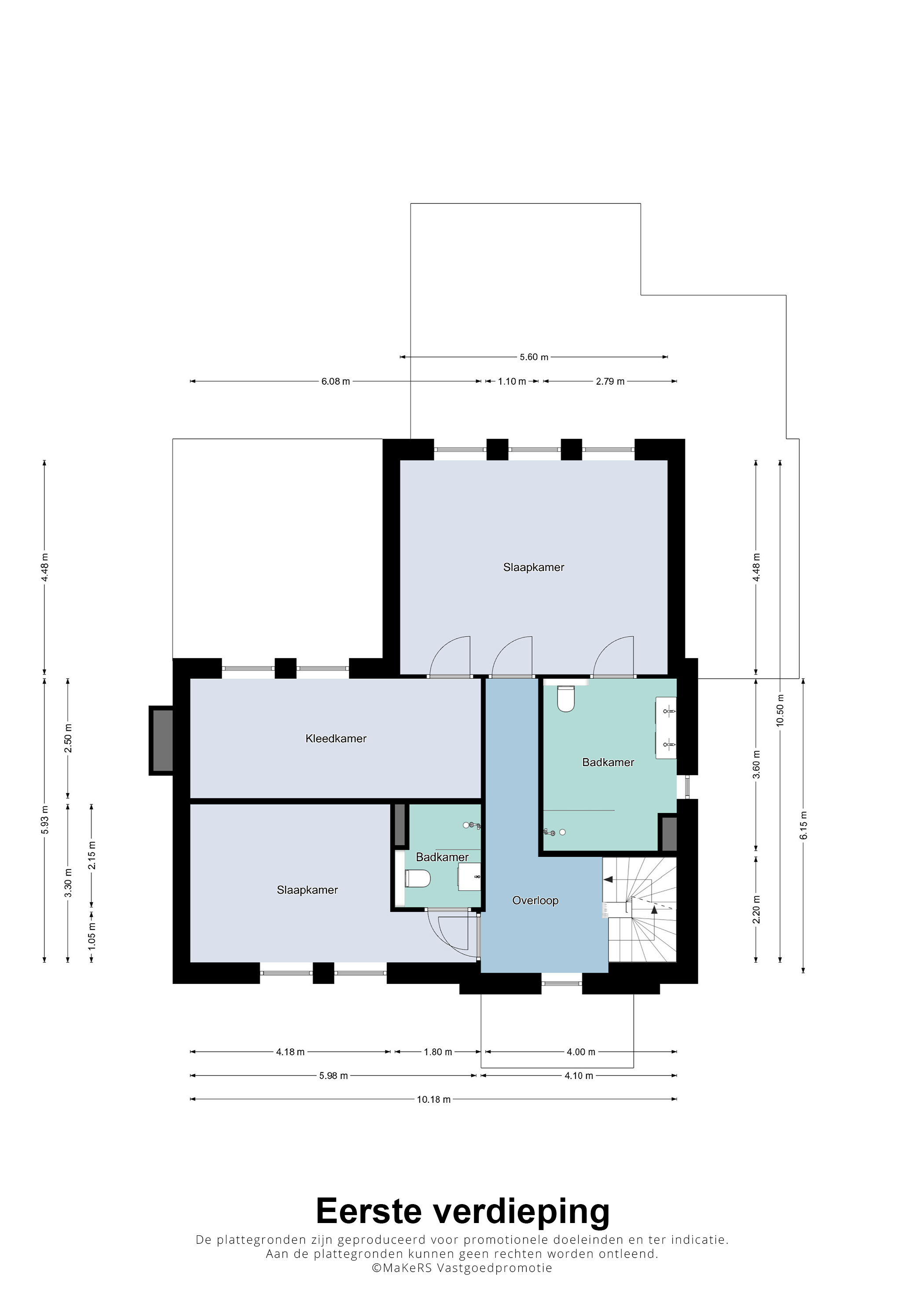
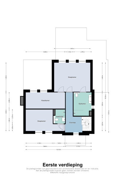
En la planta superior, dos suites disponen de baño privado, siendo la principal orientada al agua y equipada con vestidor. La segunda planta, caracterizada por techos altos y mucha luz natural, ofrece dos dormitorios adicionales y un baño más. En toda la vivienda, el aire acondicionado y la calefacción por suelo radiante garantizan el confort permanente, con el respaldo de avanzados sistemas energéticos y un sistema de sonido Sonos exclusivo en la planta baja.

La parcela de 1.051 m² incluye un garaje independiente y trastero exterior, realzando la sensación de amplitud. Completamente aislada y con clase energética A_PPP, esta villa de lujo en venta en Herten brinda la serenidad de vivir junto al agua, con un toque de innovación y estilo discreto.

Explora Herten con Baerz, Tu Buscador y Asesor Personal de Propiedades de Confianza

Contar con un equipo asesor especializado resulta esencial dadas las particularidades del mercado local. Los agentes expertos acceden a propiedades privadas fuera de mercado y ofrecen acuerdos discretos y negociaciones personalizadas. Su conocimiento local garantiza el ajuste correcto entre comprador y vendedor, manejo normativo y la máxima optimización de valor. Los asesores también ayudan a integrar la adquisición en estrategias patrimoniales y familiares más amplias.

Evita los errores comunes

Los compradores internacionales a menudo pierden tiempo valioso en listados en línea duplicados, desactualizados o engañosos, especialmente porque casi el 30%% de las casas de lujo nunca aparecen en el mercado público. Los agentes del vendedor representan los intereses del vendedor, no los del comprador. Incluso solicitar información sobre una propiedad puede resultar en que un agente del vendedor te registre como su “cliente” sin tu consentimiento.
Con Baerz Property Finders & Advisors, evitas por completo todos estos errores. Trabajamos únicamente en tu nombre, ofreciendo representación independiente, orientación clara y acceso a todas las propiedades disponibles, incluidas oportunidades fuera del mercado que otros nunca llegan a ver.

¿Interesado en un Asesor Personal de Propiedades?

Te mostramos todas las casas disponibles en un solo lugar. No dudes en contactarnos para saber cómo podemos satisfacer tus necesidades y proteger tus intereses exclusivamente.

Características

Paneles solares
Aire acondicionado
Transferencia de propiedad
Precio solicitado
€ 1.740.000
Estado
beschikbaar
Aceptación
in overleg
Construcción
Tipo de casa
Villa
Tipo de edificio
vrijstaande woning
Periodo de construcción
2024
Calificación energética
A+++
Tipo de tejado
samengesteld dak
Dormitorios
5
Baños
3
Superficies y Volumen
Superficie habitable
266 m2
Otro espacio interior
0 m2
Espacio exterior adjunto al edificio
38 m2
Espacio de almacenamiento externo
24 m2
Volumen en metros cúbicos
1138 m3
Tamaño del terreno
1051 m2
Instalaciones
Tv kabel
Airconditioning
Schuifpui
Glasvezel kabel
Zonnepanelen
Balansventilatie
Aan water
In woonwijk
Vrij uitzicht
Aan vaarwater
Landelijk gelegen
Baerz & Co Property Brochure

Folleto

Vídeos

Planos

Jack Frenken Makelaars & adviseurs

Graaf Reinaldstraat 1
6041 XB Roermond

p.donkers@jackfrenken.nl
+31 475335225

www.jackfrenken.nl/

Solicitud de información / Visita

Peet Donkers profile image
Peet Donkers
Directeur

Comprar una propiedad de lujo en Herten

Herten brinda un estilo de vida refinado en entornos serenos, con una comunidad acogedora y servicios inmobiliarios expertos. Gracias a su accesibilidad, oferta cultural y lujo discreto atrae a inversores y residentes internacionales exigentes.