GOUDA
Van Bergen Ijzendoornpark 19 - 2801 AB
Países Bajos

Xandra Bek profile image
Xandra Bek
Register makelaar - taxateur
€1,495,000 k.k.
Superficie habitable
186m2
Tamaño del terreno
1882m2
Dormitorios
3

Descripción

VRIJSTAANDE VILLA OP 1882M2 EIGEN GROND AAN HET WATER MET UITZICHT OP HET PARK

Aan het prachtige Van Bergen IJzendoornpark staat deze onder architectuur gebouwde vrijstaande villa uit 1957, gesitueerd op een perceel van maar liefst 1.882 m² eigen grond en water. Hier woon je volledig vrij, met uitzicht over het park en de vijver, terwijl de historische binnenstad van Gouda en het centraal station zich op loopafstand bevinden.

De villa werd ontworpen door architect L. Roggeveen in opdracht van de familie Verheul. Het huis is op een sokkel gebouwd, waarbij het slaapgedeelte circa één meter hoger ligt dan het woongedeelte. Hierdoor zijn de garage en technische ruimte subtiel onder het slaapniveau geplaatst. Doordat de twee bouwdelen niet volledig haaks op elkaar staan, ontstaat een speelse en karaktervolle vormgeving – een ontwerp dat ook vandaag nog onderscheidend is.

Het perceel is afgesloten met een elektrisch bedienbaar hek en biedt optimale privacy. De combinatie van water, volwassen groen en architectuur geeft deze villa een unieke woonbeleving.

VERKOPER AAN HET WOORD

“Vader was zeer gelukkig toen hij 36 jaar geleden deze villa kon kopen. Onze ouders woonden al twintig jaar in het buurhuis op nummer 21. Toen nummer 19 eerder te koop kwam, was het nog niet het juiste moment. Maar enkele jaren later, toen de buurman aangaf te gaan verhuizen, was de koop snel rond. Vooral onze moeder genoot hier intens en wilde nooit meer weg. De rustige, groene omgeving van het park én toch alles op loopafstand van de voorzieningen – dat maakte deze plek voor haar ideaal. Ze hield van het licht in huis en genoot dagelijks van het uitzicht vanuit het grote raam in de woonkamer.”

SPEELSE INDELING EN BIJZONDERE DETAILS

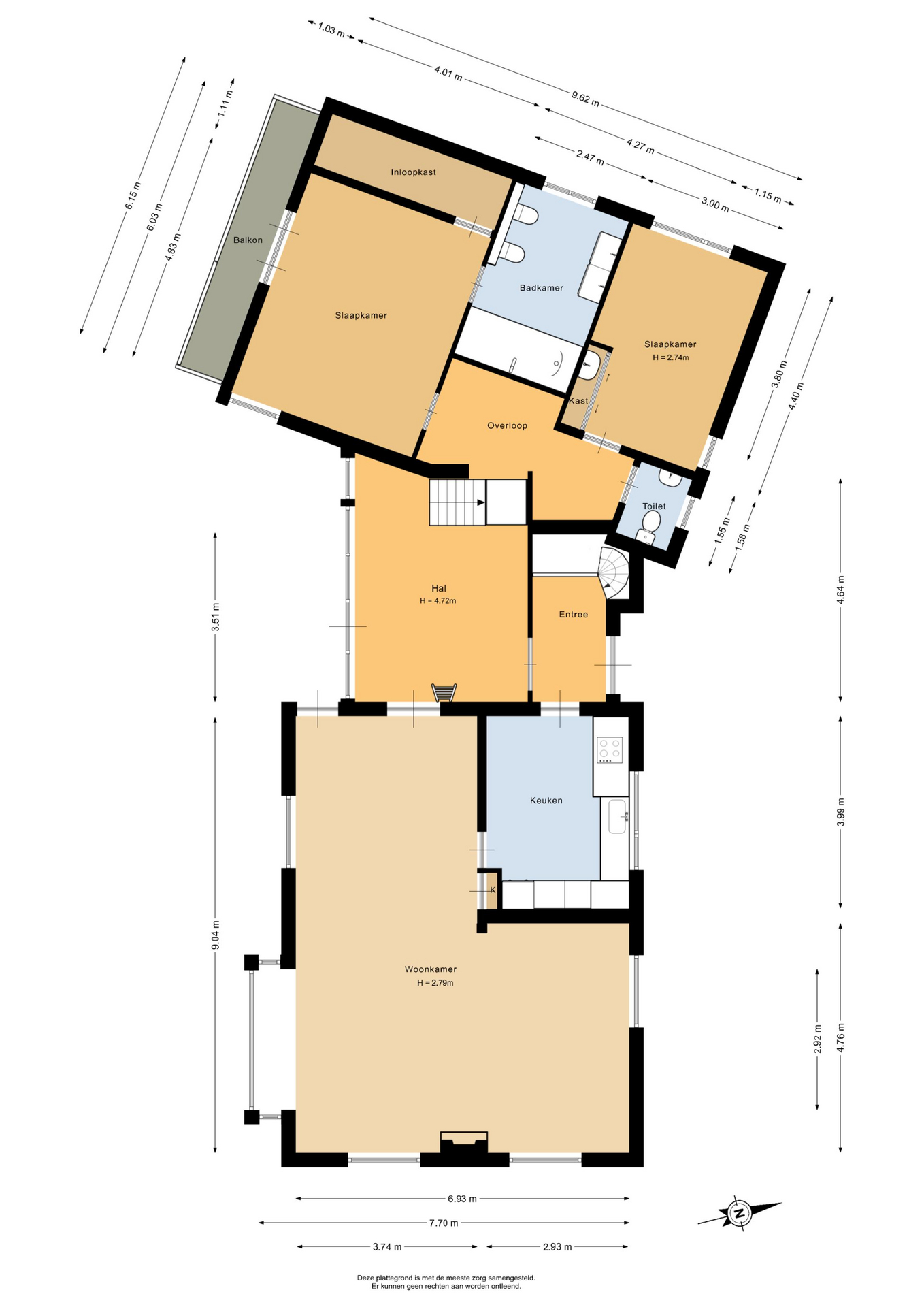
De entree is indrukwekkend. De hoge hal met grote glazen pui op het zuiden vormt het verbindende element tussen wonen en slapen en geeft toegang tot het aangrenzende terras, waarbij de marmeren mozaïekvloer vanuit de hal naadloos doorloopt naar buiten. Binnen en buiten lopen hier letterlijk in elkaar over.

De woonkamer is royaal en statig, voorzien van een haard en een erker met groot raam. Door de verhoogde ligging van de woning kijk je aan twee kanten uit over het park. Het licht valt rijkelijk naar binnen dankzij de grote raampartijen aan de zonzijde. Aansluitend bevindt zich de eetkamer met deur naar terras en naar de keuken. De dichte keuken is uitgevoerd in hoekopstelling en beschikt over inbouwapparatuur en vaste kastruimte.

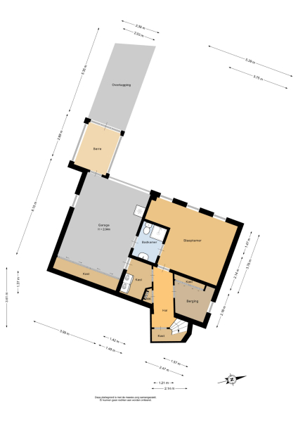
Via een klein niveauverschil bereik je het slaapgedeelte. De hoofdslaapkamer beschikt over airconditioning, een inloopkast en openslaande deuren naar het balkon. De aangrenzende badkamer is compleet uitgevoerd met ligbad, dubbel wastafelmeubel, toilet en bidet. De tweede slaapkamer op deze verdieping beschikt over een vaste kastenwand en een eigen wastafel.

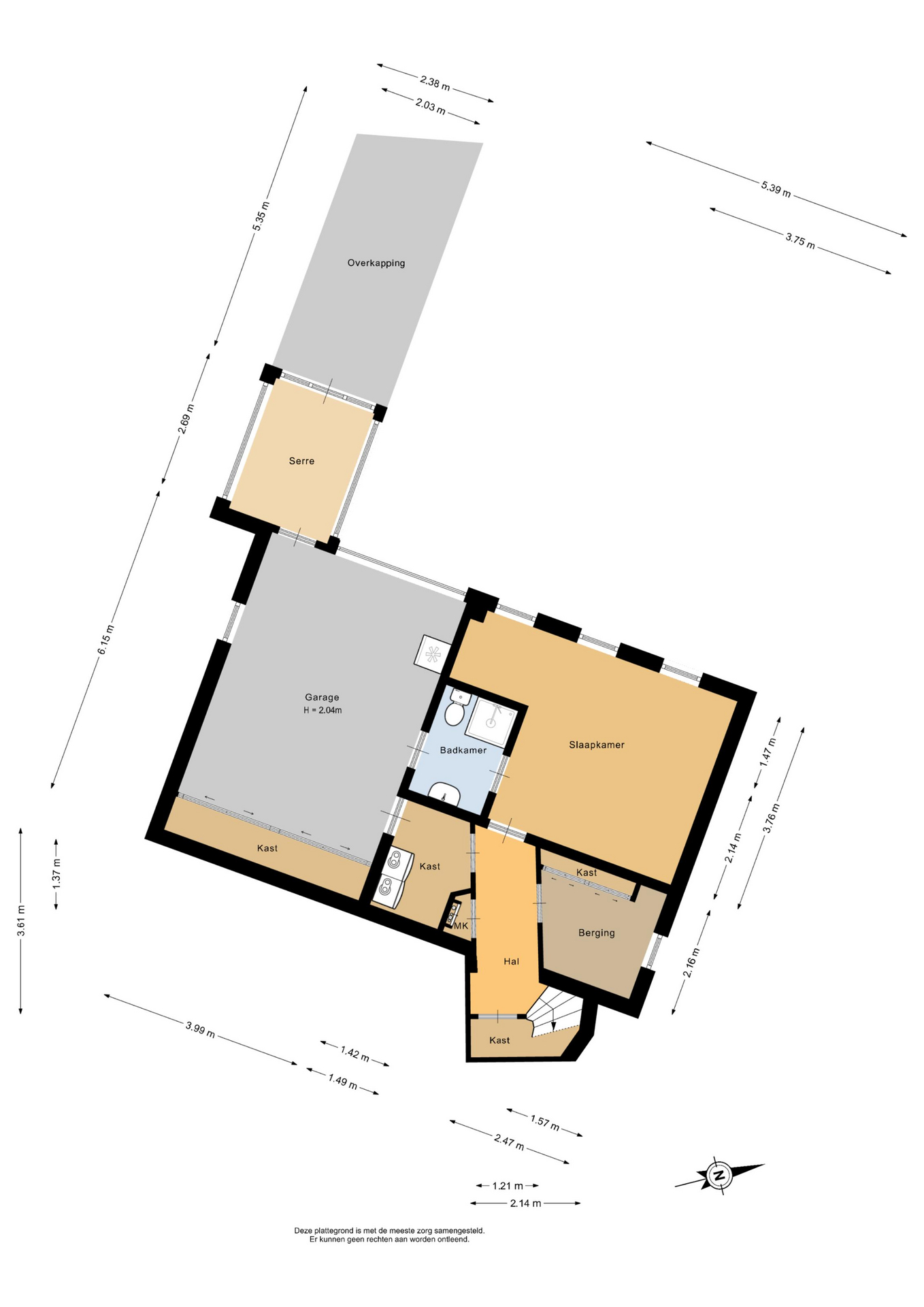
Een niveau lager bevindt zich de derde slaapkamer met tweede badkamer (douche, toilet en wastafel). Daarnaast vind je hier de bijkeuken, technische ruimte met HR-combiketel uit 2016 en de inpandige garage met kastenwand en aparte loopdeur.

De bergzolder op stahoogte biedt mogelijkheden voor het realiseren van een extra slaapkamer, werkruimte of studio.

Veel oorspronkelijke details zijn bewaard gebleven. Dit huis biedt een sterke architectonische basis en tegelijkertijd alle ruimte om het naar eigen inzicht te moderniseren en aan te passen aan hedendaagse woonwensen.

EXCLUSIEF WONEN IN HET VAN BERGEN IJZENDOORNPARK

Het Van Bergen IJzendoornpark behoort tot de meest gewilde woonlocaties van Gouda. Brede lanen, volwassen bomen, waterpartijen en vrijstaande villa’s bepalen hier het straatbeeld. De sfeer is rustig en ruim, met een duidelijk onderscheidend karakter.

Binnen enkele minuten wandel je naar de historische binnenstad met haar monumentale panden, restaurants en speciaalzaken. Ook het centraal station ligt op korte afstand, waardoor steden als Rotterdam, Den Haag en Utrecht uitstekend bereikbaar zijn. Voor ondernemers en forenzen is dit een ideale combinatie van representatief wonen en praktische bereikbaarheid.

Hier woon je vrij, groen en met blijvend uitzicht – op een locatie die zelden beschikbaar komt.

BELANGRIJKSTE KENMERKEN
Bouwjaar: 1957
Perceeloppervlakte: 1.882 m² eigen grond (inclusief water)
Tuinoriëntatie: zuid
Woonoppervlakte: 186 m²
Inhoud: 865 m³
Overige inpandige ruimte: 36 m²
Terrassen: 24 m²
Aantal verdiepingen: 3 niveaus + bergzolder
Aantal kamers: 4
Aantal slaapkamers: 3
Aantal badkamers: 2
Verwarming: HR-combiketel (2016)

OPLEVERING IN OVERLEG

Características

Transferencia de propiedad
Precio solicitado
€ 1.495.000 k.k.
Estado
beschikbaar
Aceptación
in overleg
Construcción
Tipo de casa
Villa
Tipo de edificio
vrijstaande woning
Periodo de construcción
1957
Calificación energética
F
Tipo de tejado
zadeldak
Dormitorios
3
Baños
2
Superficies y Volumen
Superficie habitable
186 m2
Otro espacio interior
36 m2
Espacio exterior adjunto al edificio
24 m2
Espacio de almacenamiento externo
7 m2
Volumen en metros cúbicos
865 m3
Tamaño del terreno
1882 m2
Instalaciones
Rolluiken
Buitenzonwering
Aan park
Vrij uitzicht
Baerz & Co Property Brochure

Folleto

Vídeos

Van Herk Makelaars Excellent

Oudehoofdplein 4
3011 TM Rotterdam

xbek@vanherk.nl
+31 102581855

www.vanherk.nl/excellent/

Solicitud de información / Visita

Xandra Bek profile image
Xandra Bek
Register makelaar - taxateur

Comprar una propiedad de lujo en Gouda

Gouda destaca por su estilo de vida comunitario, riqueza cultural y viviendas elegantes. Combina patrimonio y servicios modernos; ofrece privacidad y asesoría local a compradores internacionales en un contexto sofisticado.