GALDER
Galderseweg 85 - 4855 AG
Países Bajos

Lennart van Oosterhout profile image
Lennart van Oosterhout
Real Estate Agent
€1,950,000 k.k.
Superficie habitable
310m2
Tamaño del terreno
25110m2
Dormitorios
5

Descripción

Esta villa independiente en Galder se alza sobre una extraordinaria finca de 25.110 m² lindando con la reserva natural Markdal. Rodeada de vegetación intacta y prados, la propiedad garantiza total privacidad en un entorno natural poco común al sur de Breda. La vivienda principal se despliega sobre 224 m², ofreciendo tres dormitorios completos y una sucesión fluida de espacios de estar. Los suelos de roble aportan calidez al salón con forma de L, donde chimeneas modernas y puertas francesas conducen a una veranda con amplias vistas al paisaje. La cocina-comedor se convierte en el corazón del hogar, realzada por una isla de encimera de hormigón, una cocina Lacanche a gas y puertas dobles al jardín que se abren a céspedes cuidados y a la reserva natural más allá.

Un anexo multifuncional, finalizado en 2022, suma 200 m² adicionales de potencial flexible. Dos estudios independientes, de 43 m² cada uno, funcionan como casas de huéspedes B&B con licencia y cuentan con triple acristalamiento, carpintería de aluminio y suelo radiante. Un garaje amplio, un muro de cristal orientado al jardín y un altillo de almacenamiento amplían las opciones para actividades creativas, oficina en casa o mayor uso residencial. Toda la finca está rodeada por jardines diseñados meticulosamente, extensos céspedes, setos maduros y perales Conference, asegurando una sensación de recogimiento y tranquilidad esencial.

La eficiencia energética está garantizada gracias al aislamiento integral, sistemas avanzados de calefacción y las etiquetas energéticas B para la residencia principal y A+ para el anexo. Esta villa de lujo en venta en Galder invita a un estilo de vida refinado, anclado en el espacio, la luz y la conexión continua con la naturaleza, gracias a su entorno privado, arquitectura reflexiva y la autonomía que brindan el anexo y los estudios B&B.

Explora Galder con Baerz, Tu Buscador y Asesor Personal de Propiedades de Confianza

Las operaciones en Galder exigen visión experta y negociación rigurosa. Un buen asesor ofrece acceso a oportunidades discretas y estrategias adaptadas a cada necesidad. Gestionar la protección patrimonial, las restricciones de uso y las demandas internacionales requiere visión global y red local. Los mejores profesionales logran resultados que combinan discreción, valor y flexibilidad futura.

Evita los errores comunes

Los compradores internacionales a menudo pierden tiempo valioso en listados en línea duplicados, desactualizados o engañosos, especialmente porque casi el 30% de las casas de lujo nunca aparecen en el mercado público. Los agentes del vendedor representan los intereses del vendedor, no los del comprador. Incluso solicitar información sobre una propiedad puede resultar en que un agente del vendedor te registre como su “cliente” sin tu consentimiento.
Con Baerz Property Finders & Advisors, evitas por completo todos estos errores. Trabajamos únicamente en tu nombre, ofreciendo representación independiente, orientación clara y acceso a todas las propiedades disponibles, incluidas oportunidades fuera del mercado que otros nunca llegan a ver.

¿Interesado en un Asesor Personal de Propiedades?

Te mostramos todas las casas disponibles en un solo lugar. No dudes en contactarnos para saber cómo podemos satisfacer tus necesidades y proteger tus intereses exclusivamente.

Características

Aire acondicionado
Transferencia de propiedad
Precio de venta
€ 1.950.000 k.k.
Estado
beschikbaar
Aceptación
in overleg
Construcción
Tipo de casa
Villa
Tipo de edificio
vrijstaande woning
Periodo de construcción
1936
Calificación energética
B
Tipo de tejado
zadeldak
Dormitorios
5
Baños
3
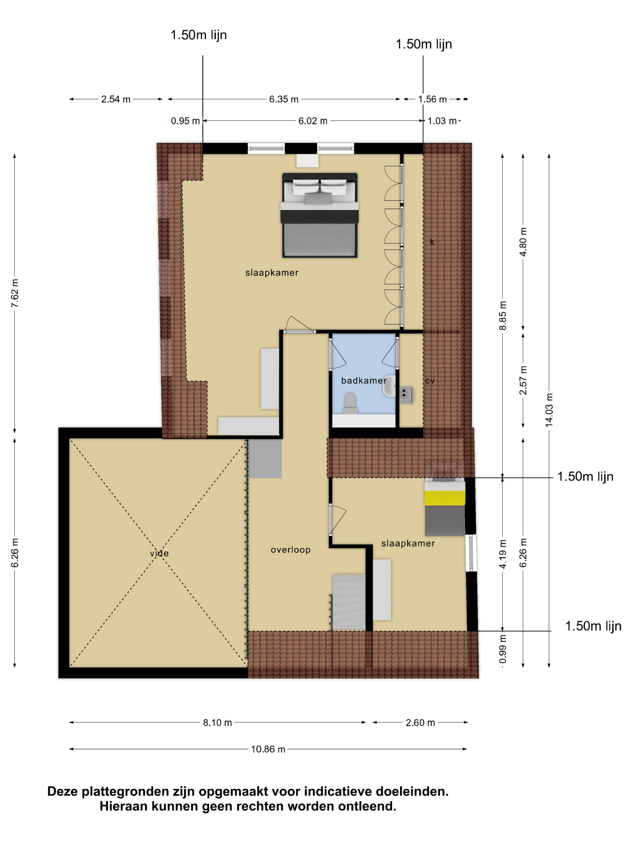
Superficies y Volumen
Superficie habitable
310 m2
Otro espacio interior
0 m2
Espacio exterior adjunto al edificio
53 m2
Espacio de almacenamiento externo
100 m2
Volumen en metros cúbicos
931 m3
Tamaño del terreno
25110 m2
Instalaciones
Tv kabel
Airconditioning
Aan rustige weg
Vrij uitzicht
Buiten bebouwde kom
Landelijk gelegen
Baerz & Co Property Brochure

Folleto

Vídeos

Storimans en Partners

Ginnekenweg 161
4818 JD Breda

lvanoosterhout@storimansenpartners.nl
+31 76 522 60 90

www.storimansenpartners.nl

Solicitud de información / Visita

Lennart van Oosterhout profile image
Lennart van Oosterhout
Real Estate Agent

Comprar una propiedad de lujo en Galder

Galder ofrece privacidad, diseño cuidado y un estilo de vida armonioso en uno de los entornos rurales más distinguidos de los Países Bajos. Su comunidad y servicios profesionales atraen a residentes internacionales que buscan exclusividad y valor duradero.