DORDRECHT
Buiten Walevest 124 - 3311 AD
Países Bajos

Johan Oosterlee profile image
Johan Oosterlee
Director/owner
€895,000 k.k.
Superficie habitable
202m2
Tamaño del terreno
N/A
Dormitorios
3

Descripción

El apartamento Dordrecht evoca una vida sofisticada, ofreciendo 202 m² distribuidos en dos amplios niveles en una de las ubicaciones ribereñas más destacadas de la ciudad. Este apartamento se sitúa en la entrada al Nieuwe Haven, personificando la armonía entre la arquitectura histórica y la elegancia contemporánea. La vivienda dispone de entrada privada a nivel de calle y una terraza en la azotea de 68 m², y está catalogada como monumento municipal protegido dentro de un distrito histórico.

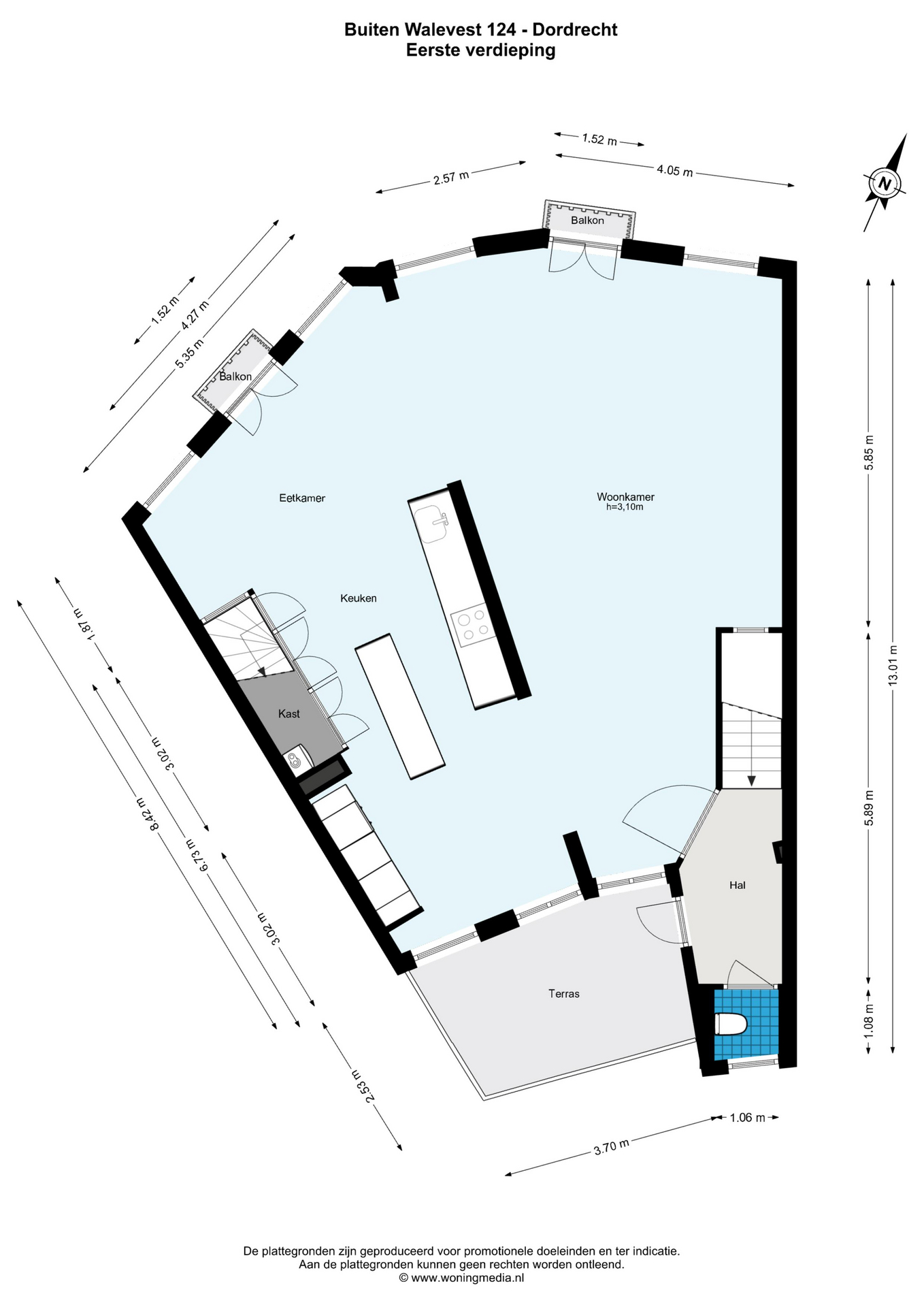
La primera planta presenta una majestuosa sala de recepción y estar de aproximadamente 90 m², donde la luz y las vistas sobre el río Oude Maas crean una atmósfera de calma y sofisticación. La cocina de concepto abierto está equipada con electrodomésticos de alta gama y un grifo Quooker de agua caliente, conectando a una tranquila terraza de 9 m² orientada al este, perfecta para disfrutar de la luz de la mañana y vistas urbanas. Las puertas francesas se abren a dos balcones con perspectivas panorámicas sin obstáculos al río.

En la planta superior, el sentido de amplitud continúa con tres dormitorios, dos vestidores y un baño bañado en luz natural, equipado con bañera y ducha independiente. El dormitorio principal tiene vistas al río y aire acondicionado para el máximo confort durante todo el año. También hay un aseo independiente y una generosa zona de servicios en este nivel.

La joya de la vivienda es una terraza en la azotea de 68 m², desde la que se pueden contemplar las históricas siluetas de la ciudad y el bullicio del río en todas direcciones. La propiedad cuenta con tejado aislante renovado, etiqueta energética A, doble acristalamiento y detalles refinados en todo el hogar. Este apartamento representa una fusión única entre patrimonio, luminosidad y comodidad contemporánea con vistas al paseo fluvial de Dordrecht.

Explora Dordrecht con Baerz, Tu Buscador y Asesor Personal de Propiedades de Confianza

El mercado inmobiliario de Dordrecht se caracteriza por únicos activos patrimoniales y una oferta premium muy limitada. Un asesor local experimentado ofrece valor esencial: acceso a propiedades fuera de mercado, negociación fluida y gestión de cualquier desafío legal o de restauración. Consultores expertos protegen sus intereses en cada fase, facilitando adquisiciones discretas y eficientes.

Evita los errores comunes

Los compradores internacionales a menudo pierden tiempo valioso en listados en línea duplicados, desactualizados o engañosos, especialmente porque casi el 30% de las casas de lujo nunca aparecen en el mercado público. Los agentes del vendedor representan los intereses del vendedor, no los del comprador. Incluso solicitar información sobre una propiedad puede resultar en que un agente del vendedor te registre como su “cliente” sin tu consentimiento.
Con Baerz Property Finders & Advisors, evitas por completo todos estos errores. Trabajamos únicamente en tu nombre, ofreciendo representación independiente, orientación clara y acceso a todas las propiedades disponibles, incluidas oportunidades fuera del mercado que otros nunca llegan a ver.

¿Interesado en un Asesor Personal de Propiedades?

Te mostramos todas las casas disponibles en un solo lugar. No dudes en contactarnos para saber cómo podemos satisfacer tus necesidades y proteger tus intereses exclusivamente.

Características

Aire acondicionado
Transferencia de propiedad
Precio de venta
€ 895.000 k.k.
Estado
beschikbaar
Aceptación
in overleg
Construcción
Tipo de casa
Bovenwoning
Tipo de edificio
appartement
Periodo de construcción
1901
Calificación energética
A
Tipo de tejado
plat dak
Dormitorios
3
Baños
1
Superficies y Volumen
Superficie habitable
202 m2
Otro espacio interior
0 m2
Espacio exterior adjunto al edificio
80 m2
Volumen en metros cúbicos
684 m3
Instalaciones
Airconditioning
Aan water
In centrum
Vrij uitzicht
Aan vaarwater
Baerz & Co Property Brochure

Folleto

Vídeos

Planos

OZP Makelaars

Vissersdijk Beneden 25
3319 GW Dordrecht

oosterlee@ozp-makelaars.nl
+31 786351753

www.ozp-makelaars.nl

Solicitud de información / Visita

Johan Oosterlee profile image
Johan Oosterlee
Director/owner

Comprar una propiedad de lujo en Dordrecht

Dordrecht combina legado cultural, exclusividad residencial y servicios personalizados. Su comunidad discreta, viviendas restauradas y perspectiva internacional hacen de la ciudad un destino excepcional para quienes buscan privacidad y sofisticación.