BERGSCHENHOEK
Oltmansstraat 17 - 2662 AA
Países Bajos

Dominique Blom profile image
Dominique Blom
Register Makelaar Taxateur
€998,000 k.k.
Superficie habitable
174m2
Tamaño del terreno
635m2
Dormitorios
4

Descripción

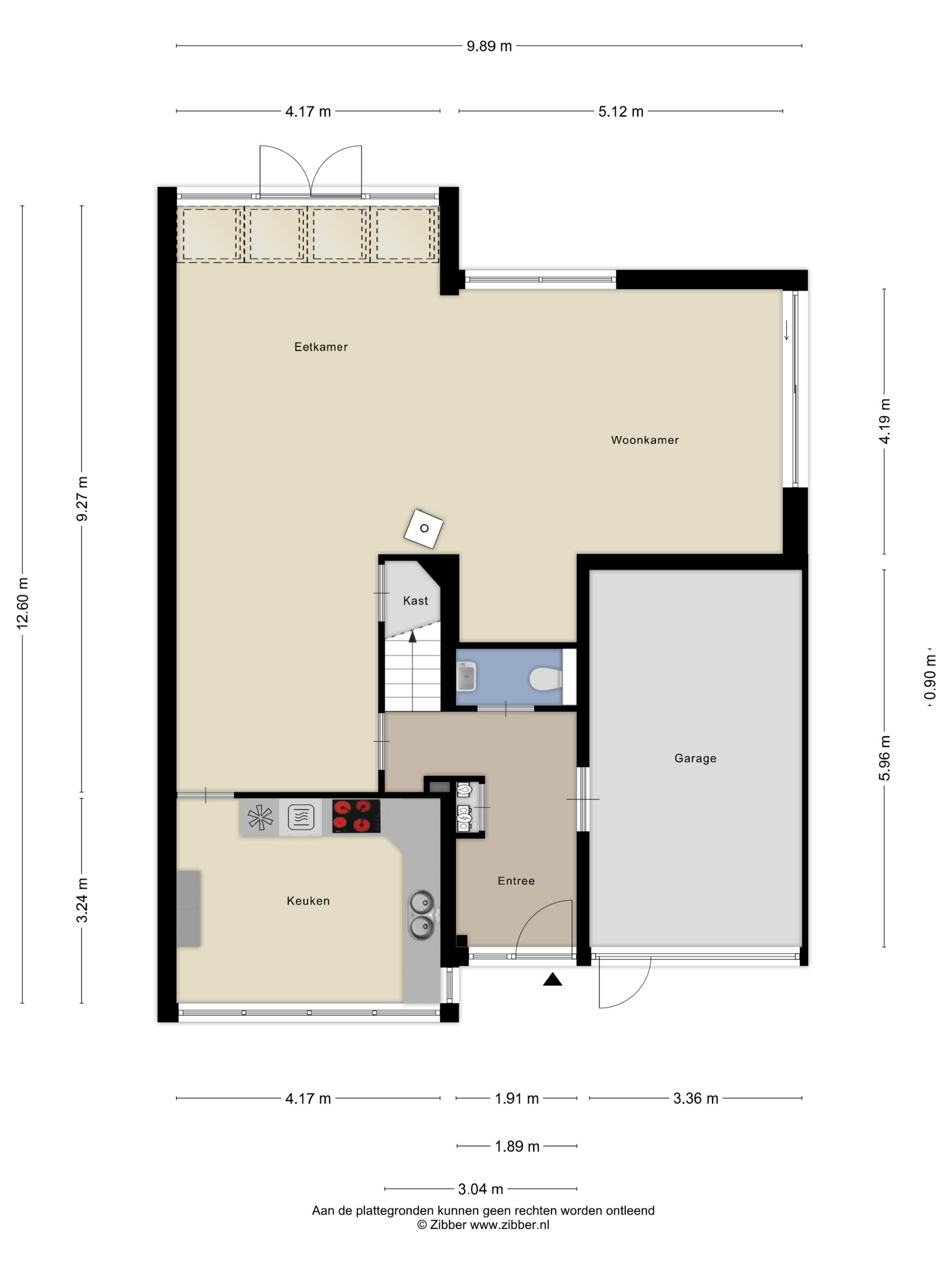
Esta casa adosada en Bergschenhoek ofrece un equilibrio cuidadosamente concebido entre espacio y luz, con 174 m² de superficie habitable distribuidos con atención al detalle. El soleado jardín orientado al oeste, acompañado por un canal, aporta a la vivienda un ritmo apacible y una sensación de privacidad poco habitual en un entorno familiar. La casa goza de una ubicación tranquila en una calle sin salida apta para familias, lo que garantiza serenidad sin renunciar a la proximidad con el vibrante centro de Bergschenhoek.

Tras la entrada, un recibidor de baldosas conduce a un amplio salón donde la calefacción por suelo radiante y las puertas francesas crean un refugio tranquilo y luminoso. La cocina en forma de L, renovada recientemente, está equipada con electrodomésticos empotrados y doble fregadero, diseñada para maximizar la funcionalidad y la comodidad. El acceso directo a la terraza permite transiciones fluidas entre el interior y el jardín privado.

Cuatro dormitorios, cada uno con balcón francés, ofrecen espacios versátiles ideales para familia o invitados. El baño moderno cuenta con bañera, ducha a ras de suelo, calefacción por suelo radiante y acabados cuidadosamente seleccionados. El almacenamiento y la lavandería se organizan en la segunda planta, mientras que detalles como persianas automáticas y protección solar exterior refuerzan la calidad de vida. La parcela de 635 m² incluye entrada privada para tres coches y garaje adjunto. Escuelas, parques y transporte público están al alcance, lo que facilita un día a día cómodo y conectado. Para quienes buscan una casa adosada en venta en Bergschenhoek, esta residencia representa un hogar discreto y acogedor.

Explora Bergschenhoek con Baerz, Tu Buscador y Asesor Personal de Propiedades de Confianza



Evita los errores comunes

Los compradores internacionales a menudo pierden tiempo valioso en listados en línea duplicados, desactualizados o engañosos, especialmente porque casi el 30% de las casas de lujo nunca aparecen en el mercado público. Los agentes del vendedor representan los intereses del vendedor, no los del comprador. Incluso solicitar información sobre una propiedad puede resultar en que un agente del vendedor te registre como su “cliente” sin tu consentimiento.
Con Baerz Property Finders & Advisors, evitas por completo todos estos errores. Trabajamos únicamente en tu nombre, ofreciendo representación independiente, orientación clara y acceso a todas las propiedades disponibles, incluidas oportunidades fuera del mercado que otros nunca llegan a ver.

¿Interesado en un Asesor Personal de Propiedades?

Te mostramos todas las casas disponibles en un solo lugar. No dudes en contactarnos para saber cómo podemos satisfacer tus necesidades y proteger tus intereses exclusivamente.

Características

Transferencia de propiedad
Precio de venta
€ 998.000 k.k.
Estado
beschikbaar
Aceptación
in overleg
Construcción
Tipo de casa
Eengezinswoning
Tipo de edificio
geschakelde woning
Periodo de construcción
2001
Calificación energética
A
Tipo de tejado
lessenaardak
Dormitorios
4
Baños
1
Superficies y Volumen
Superficie habitable
174 m2
Otro espacio interior
20 m2
Espacio de almacenamiento externo
2 m2
Volumen en metros cúbicos
685 m3
Tamaño del terreno
635 m2
Instalaciones
Mechanische ventilatie
Rolluiken
Buitenzonwering
Frans balkon
Glasvezel kabel
Aan water
In woonwijk
Beschutte ligging
Baerz & Co Property Brochure

Folleto

Vídeos

DB Makelaars

Dorpsstraat 79
2661 CE Bergschenhoek

dominique@dbmakelaars.nl
+31 107850833

www.dbmakelaars.nl

Solicitud de información / Visita

Dominique Blom profile image
Dominique Blom
Register Makelaar Taxateur

Comprar una propiedad de lujo en Bergschenhoek

Bergschenhoek ofrece una comunidad selecta con servicios a medida, zonas verdes y una visión internacional, convirtiéndose en el destino ideal para quienes buscan un estilo de vida sofisticado y valor permanente.