BARCHEM
Hardermaat 12 - 7244 PZ
Países Bajos

Marcel Schippers profile image
Marcel Schippers
Real Estate Agent
€1,595,000 k.k.
Superficie habitable
256m2
Tamaño del terreno
20110m2
Dormitorios
3

Descripción

Farmhouse Barchem representa una rara síntesis de visión contemporánea y autenticidad rural, ofreciendo una vida energéticamente independiente en más de 20.110 m² de terrenos privados. Esta finca, completamente reinventada en 2016, incorpora lo último en sostenibilidad: triple acristalamiento, aislamiento reforzado, bomba de calor geotérmica agua-agua y un extraordinario conjunto de 110 paneles solares. El resultado es una clase energética A++++, EPC negativa y una propiedad que genera más energía de la que consume, reflejando un compromiso a largo plazo con la responsabilidad ecológica y el confort moderno.

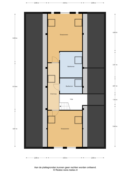
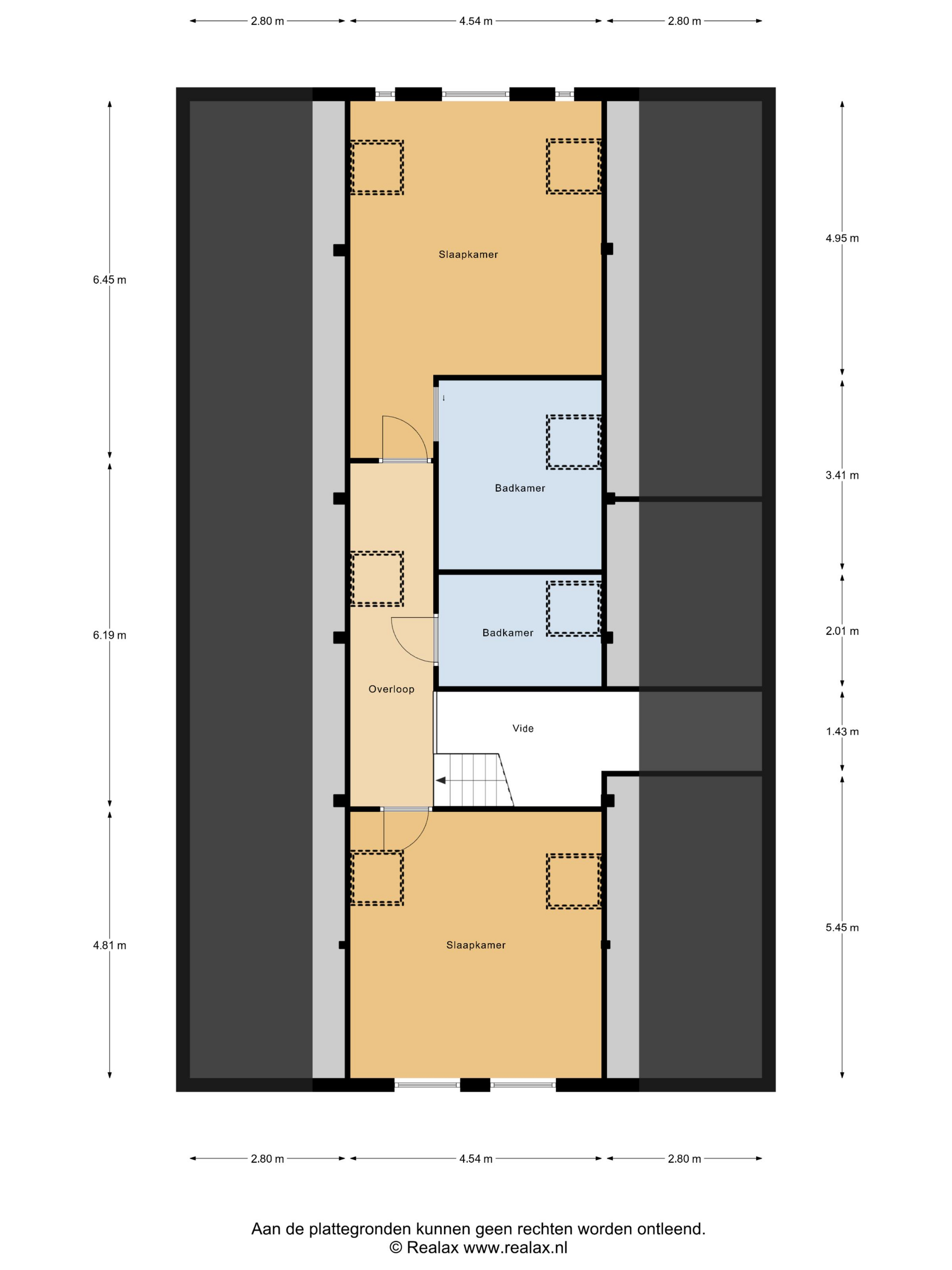
La superficie habitable de 256 m² se despliega en estancias acogedoras: la carpintería en tonos pizarra se combina con fachadas encaladas en una paleta tan eficaz como elegante. Materiales naturales—roble, metal, cerámica y hormigón Ciré—definen los interiores, donde la sensibilidad del diseño neerlandés enriquece la arquitectura agrícola centenaria. Además de un ritmo visual y lumínico placenteros, destacan elementos a medida como la cocina de Scheffer Keukens Zelhem, con gruesas encimeras de material compuesto y electrodomésticos de altas prestaciones, y un salón que conserva guiños al antiguo granero, ahora transformado por grandes cristaleras y una estufa de leña FreeFlow.

Dispone de tres dormitorios y dos baños, todos ellos cuidadosamente equipados. Los acabados incluyen calefacción por suelo radiante, duchas walk-in, grifería Grohe Sphinx y espacios de almacenaje en toda la vivienda. El anexo, con 288 m² para oficina, almacenaje o actividades, incorpora conectividad por fibra óptica, garaje doble y cochera. Se pueden estacionar hasta seis vehículos en la zona pavimentada, con estación de carga de 22 kW.

El terreno celebra principios bio-ecológicos: un huerto de 1,2 hectáreas con 55 variedades de nueces, árboles con injertos de trufa y árboles frutales maduros. Cuenta con un estanque de 300 m², rica fauna, huerta y espacios para animales, realzando el entorno. Las vistas se extienden sobre la reserva natural de Hagenbeek y el paisaje de Achterhoek, con Lochem, Vorden y Ruurlo a pocos minutos, y los servicios de Barchem—tiendas, escuelas, espacios culturales—muy cerca.

Esta propiedad ofrece una pausa del ritmo urbano, conjugando altas especificaciones técnicas con vida agraria, privacidad y una sensación de tranquilidad arraigada.

Explora Barchem con Baerz, Tu Buscador y Asesor Personal de Propiedades de Confianza

Manejar el exclusivo mercado inmobiliario de Barchem requiere profundo conocimiento local y relaciones sólidas con propietarios y notarios. Los asesores profesionales permiten acceso a listados confidenciales, anticipan complejidades legales y negocian condiciones ideales para clientes exigentes. Su experiencia garantiza decisiones informadas y procesos personalizados, imprescindibles en un mercado guiado por la discreción y el valor sostenible.

Evita los errores comunes

Los compradores internacionales a menudo pierden tiempo valioso en listados en línea duplicados, desactualizados o engañosos, especialmente porque casi el 30% de las casas de lujo nunca aparecen en el mercado público. Los agentes del vendedor representan los intereses del vendedor, no los del comprador. Incluso solicitar información sobre una propiedad puede resultar en que un agente del vendedor te registre como su “cliente” sin tu consentimiento.
Con Baerz Property Finders & Advisors, evitas por completo todos estos errores. Trabajamos únicamente en tu nombre, ofreciendo representación independiente, orientación clara y acceso a todas las propiedades disponibles, incluidas oportunidades fuera del mercado que otros nunca llegan a ver.

¿Interesado en un Asesor Personal de Propiedades?

Te mostramos todas las casas disponibles en un solo lugar. No dudes en contactarnos para saber cómo podemos satisfacer tus necesidades y proteger tus intereses exclusivamente.

Características

Paneles solares
Transferencia de propiedad
Precio solicitado
€ 1.595.000 k.k.
Estado
beschikbaar
Aceptación
in overleg
Construcción
Tipo de casa
Woonboerderij
Tipo de edificio
vrijstaande woning
Periodo de construcción
1924
Calificación energética
A++++
Tipo de tejado
zadeldak
Dormitorios
3
Baños
2
Superficies y Volumen
Superficie habitable
256 m2
Otro espacio interior
162 m2
Espacio exterior adjunto al edificio
60 m2
Espacio de almacenamiento externo
288 m2
Volumen en metros cúbicos
1008 m3
Tamaño del terreno
20110 m2
Instalaciones
Mechanische ventilatie
Dakraam
Zonnepanelen
Natuurlijke ventilatie
Aan rustige weg
Open ligging
Buiten bebouwde kom
Landelijk gelegen
Baerz & Co Property Brochure

Folleto

Vídeos

de Haan Schippers Makelaars

Larenseweg 53
7241 CM Lochem

schippers@dehaanschippers.nl
+31 573 25 82 58

www.dehaanschippers.nl

Solicitud de información / Visita

Marcel Schippers profile image
Marcel Schippers
Real Estate Agent

Comprar una propiedad de lujo en Barchem

Barchem ofrece un estilo de vida exclusivo, en plena naturaleza, sustentado por propiedades refinadas, servicios premium y una comunidad selecta de espíritu internacional. Privacidad, tradición neerlandesa y fácil acceso a cultura y servicios locales definen la experiencia residencial.