AMSTERDAM
Weteringschans 203 - 1017 XG
Países Bajos

Sander Bovenkerk profile image
Sander Bovenkerk
Real estate agent
€5,000 p.m.
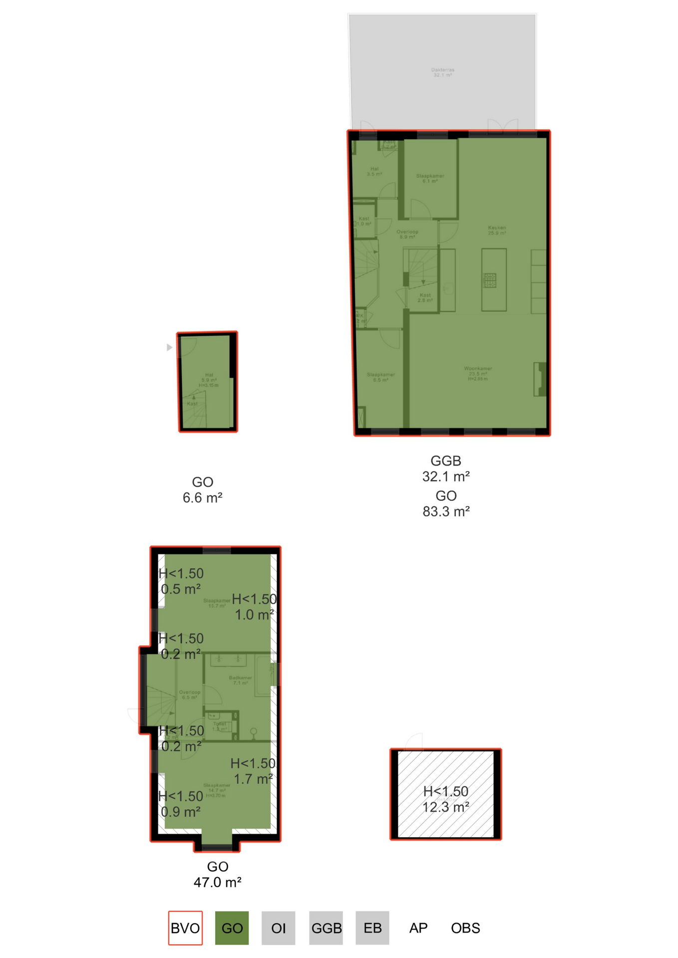
Superficie habitable
137m2
Tamaño del terreno
N/A
Dormitorios
4

Descripción

Dúplex superior en Ámsterdam situado en un entorno tranquilo en Weteringschans, que ofrece aproximadamente 137 m² de espacio renovado con esmero en el corazón de la ciudad. Esta vivienda en la azotea ocupa los dos últimos pisos de un edificio clásico con gablete escalonado y se distingue por su certificado energético A, una generosa terraza en la azotea de 32 m² con vistas despejadas al Lijnbaansgracht y unos interiores diseñados para ofrecer comodidad y autenticidad.

La residencia se distribuye en dos niveles. En la segunda planta, un recibidor privado da acceso a un luminoso salón, enmarcado por grandes ventanales y una chimenea original. La cocina de concepto abierto combina acabados refinados con funcionalidad, cuenta con isla de cocina, electrodomésticos integrados y abundante espacio de almacenaje. Las puertas francesas conectan directamente con la terraza, ofreciendo un atractivo refugio exterior sobre el canal.

Cuatro dormitorios se distribuyen inteligentemente entre ambos niveles, con vigas de madera a la vista y una impresionante altura de techo de 3,7 metros en la planta superior. Todas las habitaciones disponen de armarios empotrados y aire acondicionado instalado en el nivel más alto. El baño, ubicado en el centro, está equipado con doble lavabo, ducha a ras de suelo y bañera. Además, un altillo de 12 m² ofrece espacio de almacenamiento adicional.

Weteringschans se encuentra entre el centro y el distrito sur, a pocos pasos de tranvía y metro, Utrechtsestraat, el Mercado de Albert Cuyp y lugares culturales como el Teatro Real Carré. La calefacción por suelo radiante, el aislamiento de techo, paredes y acristalamiento doble, junto con comodidades como lavadora, secadora y cable de televisión, refuerzan una experiencia urbana cuidada que conecta la privacidad con la vida dinámica de la ciudad. Este lujoso dúplex superior está disponible de inmediato para alquilar en Ámsterdam.

Explora Ámsterdam con Baerz, Tu Buscador y Asesor Personal de Propiedades de Confianza

Navegar en el mercado de lujo de Ámsterdam exige un profundo conocimiento local, discreción y habilidad negociadora. Los mejores asesores ofrecen acceso a listados privados, aclaran las complejidades legales y detectan oportunidades en un contexto donde rara vez afloran al público. Los equipos consultores realizan auditorías exhaustivas y representación personalizada, fortaleciendo su posición en negociaciones, garantizando transacciones impecables y protegiendo su privacidad en cada etapa.

Evita los errores comunes

Los compradores internacionales a menudo pierden tiempo valioso en listados en línea duplicados, desactualizados o engañosos, especialmente porque casi el 30% de las casas de lujo nunca aparecen en el mercado público. Los agentes del vendedor representan los intereses del vendedor, no los del comprador. Incluso solicitar información sobre una propiedad puede resultar en que un agente del vendedor te registre como su “cliente” sin tu consentimiento.
Con Baerz Property Finders & Advisors, evitas por completo todos estos errores. Trabajamos únicamente en tu nombre, ofreciendo representación independiente, orientación clara y acceso a todas las propiedades disponibles, incluidas oportunidades fuera del mercado que otros nunca llegan a ver.

¿Interesado en un Asesor Personal de Propiedades?

Te mostramos todas las casas disponibles en un solo lugar. No dudes en contactarnos para saber cómo podemos satisfacer tus necesidades y proteger tus intereses exclusivamente.

Características

Aire acondicionado
Transferencia de propiedad
Precio de alquiler
€ 5.000 p.m.
Estado
beschikbaar
Aceptación
in overleg
Construcción
Tipo de casa
Tussenverdieping
Tipo de edificio
appartement
Periodo de construcción
1881
Calificación energética
A
Dormitorios
4
Baños
1
Superficies y Volumen
Superficie habitable
137 m2
Otro espacio interior
12 m2
Espacio exterior adjunto al edificio
32 m2
Volumen en metros cúbicos
523 m3
Instalaciones
Mechanische ventilatie
Tv kabel
Airconditioning
In centrum
Vrij uitzicht
Baerz & Co Property Brochure

Folleto

Vídeos

Heeren Makelaars

Stadionweg 75
1077 SE Amsterdam

info@heerenmakelaars.nl
+31 204702255

www.heerenmakelaars.nl

Solicitud de información / Visita

Sander Bovenkerk profile image
Sander Bovenkerk
Real estate agent

Comprar una propiedad de lujo en Ámsterdam

Ámsterdam ofrece un estilo de vida cosmopolita, definido por su legado histórico, su conectividad y un lujo discreto. Sus residentes disfrutan de una comunidad internacional vibrante, servicios a medida y una rica vida cultural. La fuerza de la ciudad reside en su fusión de historia, sofisticación y espíritu progresista.