AMSTERDAM
Korte Ouderkerkerdijk 1 P 3 - 1096 AC
Países Bajos

Eran Hausel profile image
Eran Hausel
Real estate agent
€1,850,000 k.k.
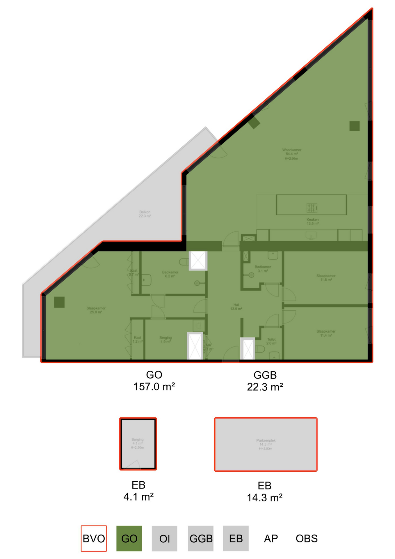
Superficie habitable
157m2
Tamaño del terreno
2974m2
Dormitorios
3

Descripción

El apartamento Amsterdam está magistralmente ubicado en la decimotercera planta de HAUT, el edificio híbrido de madera más alto de los Países Bajos, reconocido como el Mejor Edificio de los Países Bajos en 2023. Esta residencia moderna ofrece aproximadamente 157 m² de espacios luminosos, con tres dormitorios bien proporcionados, dos baños completos y una sensación de amplitud realzada por grandes ventanales de suelo a techo que enmarcan amplias vistas sobre la ciudad y el río Amstel.

El salón, con su distintivo diseño triangular y acristalamiento total, conecta sin esfuerzo con un amplio balcón cubierto de 22 m² orientado al oeste, proporcionando una extensión exterior serena sobre la ciudad. La cocina de concepto abierto constituye el corazón del apartamento y está equipada con electrodomésticos empotrados de alta gama, incluidos hornos Gaggenau, placa de inducción con extracción integrada y una vinoteca climatizada, todo pensado tanto para la tranquilidad como para el entretenimiento. El dormitorio principal dispone de baño en suite con detalles cuidadosamente seleccionados, mientras que un segundo baño contemporáneo y un aseo separado aportan mayor privacidad y comodidad.

La sostenibilidad es esencial, con etiqueta energética A++, aislamiento avanzado, calefacción urbana y suelo radiante en toda la vivienda. Los residentes disponen de un trastero exterior de 4 m², aparcamiento cubierto para bicicletas y una plaza de garaje privada con estación de carga en un parking seguro. La propiedad está sujeta a canon anual tanto para el apartamento como para la plaza de aparcamiento, con gastos de comunidad gestionados por una asociación profesional de propietarios.

La ubicación junto al río de HAUT conecta de forma natural con parques verdes, paseos fluviales y una cuidada selección de restaurantes y cafés. Áreas importantes como Amsterdam Zuid, la estación de Amstel y las principales vías de la ciudad están a pocos minutos, ofreciendo a partes iguales dinamismo urbano y tranquilidad. Este apartamento de lujo en venta en Ámsterdam encarna la arquitectura holandesa contemporánea y una forma de vida urbana reflexiva.

Explora Ámsterdam con Baerz, Tu Buscador y Asesor Personal de Propiedades de Confianza

Navegar en el mercado de lujo de Ámsterdam exige un profundo conocimiento local, discreción y habilidad negociadora. Los mejores asesores ofrecen acceso a listados privados, aclaran las complejidades legales y detectan oportunidades en un contexto donde rara vez afloran al público. Los equipos consultores realizan auditorías exhaustivas y representación personalizada, fortaleciendo su posición en negociaciones, garantizando transacciones impecables y protegiendo su privacidad en cada etapa.

Evita los errores comunes

Los compradores internacionales a menudo pierden tiempo valioso en listados en línea duplicados, desactualizados o engañosos, especialmente porque casi el 30% de las casas de lujo nunca aparecen en el mercado público. Los agentes del vendedor representan los intereses del vendedor, no los del comprador. Incluso solicitar información sobre una propiedad puede resultar en que un agente del vendedor te registre como su “cliente” sin tu consentimiento.
Con Baerz Property Finders & Advisors, evitas por completo todos estos errores. Trabajamos únicamente en tu nombre, ofreciendo representación independiente, orientación clara y acceso a todas las propiedades disponibles, incluidas oportunidades fuera del mercado que otros nunca llegan a ver.

¿Interesado en un Asesor Personal de Propiedades?

Te mostramos todas las casas disponibles en un solo lugar. No dudes en contactarnos para saber cómo podemos satisfacer tus necesidades y proteger tus intereses exclusivamente.

Características

Transferencia de propiedad
Precio de venta
€ 1.850.000 k.k.
Estado
beschikbaar
Aceptación
in overleg
Construcción
Tipo de casa
Bovenwoning
Tipo de edificio
appartement
Periodo de construcción
2021
Calificación energética
A++
Tipo de tejado
plat dak
Dormitorios
3
Baños
2
Superficies y Volumen
Superficie habitable
157 m2
Otro espacio interior
0 m2
Espacio exterior adjunto al edificio
22 m2
Espacio de almacenamiento externo
18 m2
Volumen en metros cúbicos
623 m3
Tamaño del terreno
2974 m2
Instalaciones
Tv kabel
Balansventilatie
Aan water
Vrij uitzicht
Baerz & Co Property Brochure

Folleto

Vídeos

Heeren Makelaars

Stadionweg 75
1077 SE Amsterdam

info@heerenmakelaars.nl
+31 204702255

www.heerenmakelaars.nl

Solicitud de información / Visita

Eran Hausel profile image
Eran Hausel
Real estate agent

Comprar una propiedad de lujo en Ámsterdam

Ámsterdam ofrece un estilo de vida cosmopolita, definido por su legado histórico, su conectividad y un lujo discreto. Sus residentes disfrutan de una comunidad internacional vibrante, servicios a medida y una rica vida cultural. La fuerza de la ciudad reside en su fusión de historia, sofisticación y espíritu progresista.