Tussenverdieping en venta in AMSTERDAM

AMSTERDAM Sausalitolaan 106 - 1031 KE Los paises bajos


Floor Neomagus profile image
Floor Neomagus
Real Estate Agent
+312 4702255
info@heerenmakelaars.nl

Heeren Makelaars
Stadionweg 75
1077 SE Amsterdam
NETHERLANDS
+31 0204702255
www.heerenmakelaars.nl
info@heerenmakelaars.nl

Superficie útil
132m2
Superficie de la parcela
N/A
Dormitorios
3

Descripción

Sausalitolaan 106, 1031 KE Amsterdam

On Sausalitolaan, within the modern residential complex The Cube, lies this bright and beautifully finished four-room apartment of approximately 132 m² with a spacious balcony. This energy-efficient corner apartment is situated on the third floor and features a herringbone floor and large windows. The property includes three generous bedrooms, a modern bathroom, several practical storage spaces, and an inviting living room with an open-plan kitchen.

Location & Accessibility
Along the IJ river, on the former Shell site in Amsterdam-Noord, a new urban district has emerged with a distinct character. Where industry once dominated, you now find a lively and green residential area with contemporary architecture, wide walkways, and plenty of water. Here, living, working, and leisure come together naturally.

The neighbourhood has been designed with a thoughtful urban vision, where modern buildings and generous green spaces complement one another. Car-free streets, courtyards, and squares create a sense of calm and openness, while the city centre of Amsterdam is just a short ferry ride away. In the immediate vicinity, you will find several supermarkets, the Van der Pekstraat market, and numerous restaurants and cafés such as The Coffee Virus, The Butcher Social Club, the EYE Film Museum, and the Tolhuistuin. There is always something to do here, yet it remains easy to retreat to the tranquillity of the green surroundings.

The area along the IJ is also highly suitable for couples and families with children. Nearby are several childcare facilities, a wide choice of primary schools, and various playgrounds within walking distance.

Aan het IJ has become the modern face of Amsterdam-Noord: spacious, green, and full of life — a place where urban energy and peace blend effortlessly. Living here means enjoying space, tranquillity, and a direct connection to the city. Within minutes, you can reach ferry 907, which provides free, 24-hour transport to Amsterdam Central Station. The North/South metro line is also nearby, giving you quick access to the city centre, the Zuidas business district, or Station Zuid. By car, the A10 ring road is easily reached via Noorderpark or Buikslotermeer, while the IJ Tunnel takes you directly into the city centre within minutes.

Layout
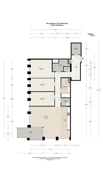
Upon entering the spacious hallway, the refined finish immediately stands out: a light herringbone floor, soft tones, and subtle wall lighting create a calm and modern atmosphere. The hallway provides access to all rooms and includes a large storage room, a separate laundry area with connections for a washing machine and dryer, and a separate toilet with wash basin.

The three adjacent bedrooms are bright and inviting thanks to the high windows and warm colour scheme. Each room is well-proportioned and features impressive window fronts that enhance the sense of space and light.

The bathroom is modern and comfortable, equipped with a walk-in shower, bathtub, double washbasin unit, and a large mirror with integrated lighting and heating. At the end of the hallway is the bright living room, surrounded by large windows — a welcoming space with lovely views of the surrounding area and greenery. The living room and open kitchen flow seamlessly together, creating a pleasant and open layout.

The kitchen is finished in a matte black design and fitted with all modern built-in appliances, including an induction hob, combi oven, dishwasher, and Quooker. There is ample storage space throughout. From the living room, you have access to the spacious southwest-facing balcony, where you can enjoy the afternoon and evening sun and a beautiful view over the green square below.

In short: energy-efficient living in a fantastic Amsterdam location, with every convenience close at hand!

The Apartment Complex – The Cube

The Cube is a high-quality and sustainable residential complex on the quiet Sausalitolaan, designed by the renowned architecture firm De Zwarte Hond (nominated for Architect of the Year 2024). The building combines modern architecture with comfortable living and is situated directly on the green community square at the heart of the neighbourhood.

What makes The Cube unique is its hotel-suite concept: the entrance and impressive atrium have been designed as a warm, light-filled meeting space with abundant greenery, natural materials, and seating areas. Here, the outdoors and indoors blend seamlessly. The façades are clad in Portuguese travertine, and the roofs are fitted with solar panels and green vegetation.

Sustainability is key. The apartments are excellently insulated, connected to a thermal energy storage (WKO) system providing both heating and cooling, and equipped with balanced ventilation. The result is an energy-efficient home with energy label A++ and a pleasant indoor climate all year round.

Particulars
- Apartment right of approx. 132 m² (measured in accordance with NEN 2580)
- Comfortable and energy-efficient corner apartment
- Private parking space in the underground garage (asking price €50,000, buyer’s costs)
- External storage room of approx. 5 m² in the basement
- Entire apartment equipped with underfloor heating
- Three spacious bedrooms
- Large balcony adjacent to the living room
- WKO installation and heat recovery (WTW) unit
- High-quality new-build complex from 2019 (completed March 2022), featuring luxury architecture and a stylish hotel-lobby aesthetic
- Energy label A++
- Active and professionally managed Homeowners’ Association (VvE) under Sturm en De Neeve B.V., Amsterdam
- Monthly contribution: €286.87 for the apartment and €62.95 for the parking garage
- Leasehold property: current period prepaid until 2069 (General Provisions 2000)
- Application for conversion to perpetual leasehold under favourable conditions submitted in time
- Completion in consultation

Disclaimer
This information has been compiled with the utmost care. However, no liability is accepted for any inaccuracy, incompleteness, or consequences thereof. All measurements and surface areas are indicative. The buyer has their own duty to investigate all matters that may be of importance to them. Regarding this property, the estate agent acts as the seller’s representative. We recommend engaging a qualified (NVM) estate agent to assist you with the purchase process. If you have specific requirements regarding the property, please make these known to your purchasing agent in good time and have them independently verified. If you choose not to appoint a professional representative, you are deemed sufficiently knowledgeable by law to assess all relevant matters yourself. The NVM terms and conditions apply.

Características

Transferencia
Precio de venta
€ 1.100.000 k.k.
Estado
beschikbaar
Aceptación
in overleg
Construcción
Tipo de vivienda
Tussenverdieping
Tipo de construcción
appartement
Año de construcción
2019
Clase de energía
A_PP
Tipo de tejado
plat dak
Dormitorios
3
Baños
1
Superficies y contenido
Superficie útil
132 m2
Otro espacio interior
0 m2
Espacio exterior relacionado con el edificio
12 m2
Espacio de almacenamiento externo
2 m2
Contenido
421 m3
instalaciones
Tv kabel
Lift
Balansventilatie
Natuurlijke ventilatie
In woonwijk
Vrij uitzicht
Baerz & Co Property Brochure

Brochure

Información / solicitud de visita

Videos

Video Sausalitolaan 106

Las fotos

Planos de planta