Bovenwoning en venta in AMSTERDAM

AMSTERDAM Keizersgracht 699 D - 1017 DW Los paises bajos


Floor Neomagus profile image
Floor Neomagus
Real Estate Agent
+312 4702255
info@heerenmakelaars.nl

Heeren Makelaars
Stadionweg 75
1077 SE Amsterdam
NETHERLANDS
+31 0204702255
www.heerenmakelaars.nl
info@heerenmakelaars.nl

Superficie útil
81m2
Superficie de la parcela
N/A
Dormitorios
3

Descripción

The Perfect Combination of Luxury and Location: Keizersgracht 699
Another impressive development by ROCK Vastgoed!
Three impeccably finished apartments overlooking the Keizersgracht canal. No expense has been spared in the renovation of this beautiful listed building. A rare opportunity to live on one of Amsterdam’s most iconic canals.

Keizersgracht 699-D, 1017 DW Amsterdam

Location & Accessibility
This magnificent historic canal house is located on the Keizersgracht, between Utrechtsestraat and Reguliersgracht. Surrounded by galleries, world-class museums, charming restaurants, artisan coffee bars, and the stylish Utrechtsestraat – everything that makes Amsterdam so beloved is just a short stroll away. Highlights include the Stopera, Royal Theatre Carré, and the Hermitage Museum.

Accessibility is also ideal: tram and bus stops as well as the North/South metro line are within easy walking distance. Parking is available in nearby garages or – with a permit – right on the canal. Both Amsterdam Central Station and Amstel Station are close by.

Layout
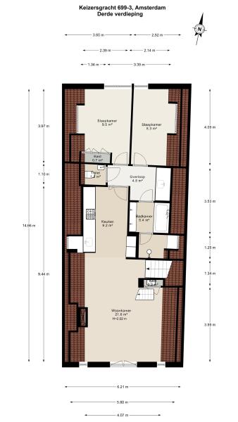
Second Floor
Private entrance on the second floor with a convenient under-stairs storage cupboard.

Third Floor
Entry into the spacious living area with views over the canal. A gas fireplace and exposed ceiling beams give the space exceptional charm. French windows open out to offer stunning views over the water.
The luxury open-plan kitchen is fully equipped with high-spec built-in appliances including a Quooker tap, dishwasher, Bora induction hob with integrated extractor, two Siemens Studioline (combi) ovens, and ample cupboard space.

A stylish steel-framed glass door leads to the hallway with separate WC and a practical utility room. Adjacent is a generous bathroom with double vanity, freestanding bath, and walk-in rain shower – all finished in elegant marble.
The two generously sized bedrooms are located at the rear of the apartment and overlook lush green courtyard gardens.

Fourth Floor
The top floor houses a spacious third bedroom, accessed via a fixed staircase. The mezzanine layout adds a touch of grandeur and architectural interest to the home.

In Summary
A tastefully renovated canal apartment that leaves nothing to be desired – top-tier living in the very heart of Amsterdam.

Key Features
- Apartment right of 81 m² (measured in accordance with NEN2580 guidelines)
- High-quality development by ROCK Vastgoed
- Beautiful national listed monument (Rijksmonument)
- Oak flooring in Hungarian herringbone pattern with underfloor heating
- Freehold property (no ground lease)
- Homeowners’ Association (VvE) currently being established
- Non-owner-occupancy clause applies
- Delivery in consultation
- Project notary: Buma Algera Notariaat

This information has been compiled with the utmost care. However, no liability is accepted for any incompleteness, inaccuracies, or otherwise, nor for the consequences thereof. All stated dimensions and surfaces are indicative.
The buyer is responsible for conducting their own due diligence regarding all matters of interest. The estate agent acts on behalf of the seller.
We recommend appointing a certified (NVM) estate agent to assist you during the purchasing process. If you have specific wishes regarding the property, we advise communicating these clearly to your purchasing agent in good time and carrying out your own investigation. If you choose not to engage professional representation, the law considers you sufficiently knowledgeable to assess all relevant matters independently.

Características

Transferencia
Precio de venta
€ 1.100.000 k.k.
Estado
beschikbaar
Aceptación
in overleg
Construcción
Tipo de vivienda
Bovenwoning
Tipo de construcción
appartement
Año de construcción
1690
Clase de energía
C
Dormitorios
3
Baños
1
Superficies y contenido
Superficie útil
81 m2
Otro espacio interior
0 m2
Contenido
242 m3
instalaciones
Mechanische ventilatie
Tv kabel
Aan water
In centrum
Vrij uitzicht
Aan vaarwater
Baerz & Co Property Brochure

Brochure

Información / solicitud de visita

Videos

Video Keizersgracht 699 D

Visitas virtuales

VIRTUAL TOUR
Virtual Tour Keizersgracht 699 D

Las fotos

Planos de planta