AMSTERDAM
Prinsengracht 570 1 - 1017 KR
Países Bajos

Sander Bovenkerk profile image
Sander Bovenkerk
Real estate agent
€1,750,000 k.k.
Superficie habitable
206m2
Tamaño del terreno
N/A
Dormitorios
5

Descripción

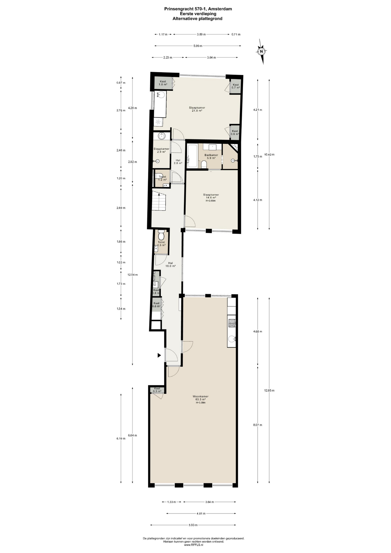
El apartamento Amsterdam Prinsengracht se sitúa en la confluencia entre el pulso histórico de la ciudad y el confort contemporáneo. Esta exclusiva propiedad abarca aproximadamente 206 m² en dos luminosos niveles, rematada por una terraza privada en la azotea de 50 m²—una superficie poco habitual en el anillo de canales de Ámsterdam.

El acceso al apartamento se realiza directamente desde Prinsengracht, a través de una clásica puerta de madera junto a Brooklyn Antiques. En el interior, los espacios se abren para revelar salones con techos altos y grandes ventanales que enmarcan apacibles vistas al canal y permiten que la luz natural lo inunde todo. La planta principal conecta tres dormitorios, incluido un dormitorio principal con baño en suite, y un despacho o sala de estar adaptable. Dos baños adicionales y aseos para invitados garantizan que la funcionalidad esté a la altura de la elegancia del entorno.

Las cocinas abiertas—una en cada planta—permiten tanto animadas reuniones como discretos retiros, contando con electrodomésticos integrados y soluciones de almacenamiento pensadas al detalle. En la planta superior, un amplio salón responde a necesidades versátiles, desde vivienda independiente hasta atelier u oficina. Cada estancia se caracteriza por su luminosidad natural, generosas proporciones y detalles integrados que simplifican la vida diaria.

La terraza orientada al sur, acabada con esmero en madera y vegetación, ofrece un refugio privado sobre el vibrante corazón de Ámsterdam. Aquí, comer y relajarse se disfruta durante todo el año, con panorámicas de los tejados que subrayan la excepcional posición de la vivienda.

A pocos pasos se encuentran joyas culturales de la ciudad—el Rijksmuseum, las Nueve Calles, Amstelveld—además de una amplia variedad de boutiques, restaurantes y conexiones de transporte. El apartamento Amsterdam Prinsengracht está diseñado para quienes buscan serenidad en medio de lo mejor de la capital. Ideal para quienes desean comprar un apartamento de lujo en el codiciado cinturón de canales de Ámsterdam.

Explora Ámsterdam con Baerz, Tu Buscador y Asesor Personal de Propiedades de Confianza

Navegar en el mercado de lujo de Ámsterdam exige un profundo conocimiento local, discreción y habilidad negociadora. Los mejores asesores ofrecen acceso a listados privados, aclaran las complejidades legales y detectan oportunidades en un contexto donde rara vez afloran al público. Los equipos consultores realizan auditorías exhaustivas y representación personalizada, fortaleciendo su posición en negociaciones, garantizando transacciones impecables y protegiendo su privacidad en cada etapa.

Evita los errores comunes

Los compradores internacionales a menudo pierden tiempo valioso en listados en línea duplicados, desactualizados o engañosos, especialmente porque casi el 30% de las casas de lujo nunca aparecen en el mercado público. Los agentes del vendedor representan los intereses del vendedor, no los del comprador. Incluso solicitar información sobre una propiedad puede resultar en que un agente del vendedor te registre como su “cliente” sin tu consentimiento.
Con Baerz Property Finders & Advisors, evitas por completo todos estos errores. Trabajamos únicamente en tu nombre, ofreciendo representación independiente, orientación clara y acceso a todas las propiedades disponibles, incluidas oportunidades fuera del mercado que otros nunca llegan a ver.

¿Interesado en un Asesor Personal de Propiedades?

Te mostramos todas las casas disponibles en un solo lugar. No dudes en contactarnos para saber cómo podemos satisfacer tus necesidades y proteger tus intereses exclusivamente.

Características

Aire acondicionado
Transferencia de propiedad
Precio solicitado
€ 1.750.000 k.k.
Estado
beschikbaar
Aceptación
in overleg
Construcción
Tipo de casa
Bovenwoning
Tipo de edificio
appartement
Periodo de construcción
1915
Calificación energética
E
Dormitorios
5
Baños
4
Superficies y Volumen
Superficie habitable
206 m2
Otro espacio interior
0 m2
Espacio exterior adjunto al edificio
56 m2
Volumen en metros cúbicos
857 m3
Instalaciones
Tv kabel
Airconditioning
Natuurlijke ventilatie
Aan water
In centrum
Vrij uitzicht
Aan vaarwater
Baerz & Co Property Brochure

Folleto

Vídeos

Heeren Makelaars

Stadionweg 75
1077 SE Amsterdam

info@heerenmakelaars.nl
+31 204702255

www.heerenmakelaars.nl

Solicitud de información / Visita

Sander Bovenkerk profile image
Sander Bovenkerk
Real estate agent

Comprar una propiedad de lujo en Ámsterdam

Ámsterdam ofrece un estilo de vida cosmopolita, definido por su legado histórico, su conectividad y un lujo discreto. Sus residentes disfrutan de una comunidad internacional vibrante, servicios a medida y una rica vida cultural. La fuerza de la ciudad reside en su fusión de historia, sofisticación y espíritu progresista.