AMSTERDAM, NH
Peter Martensstraat 121 - 1087 NA
Países Bajos

Niels Eering profile image
Niels Eering
Real Estate Agent
€1,495,011 k.k.
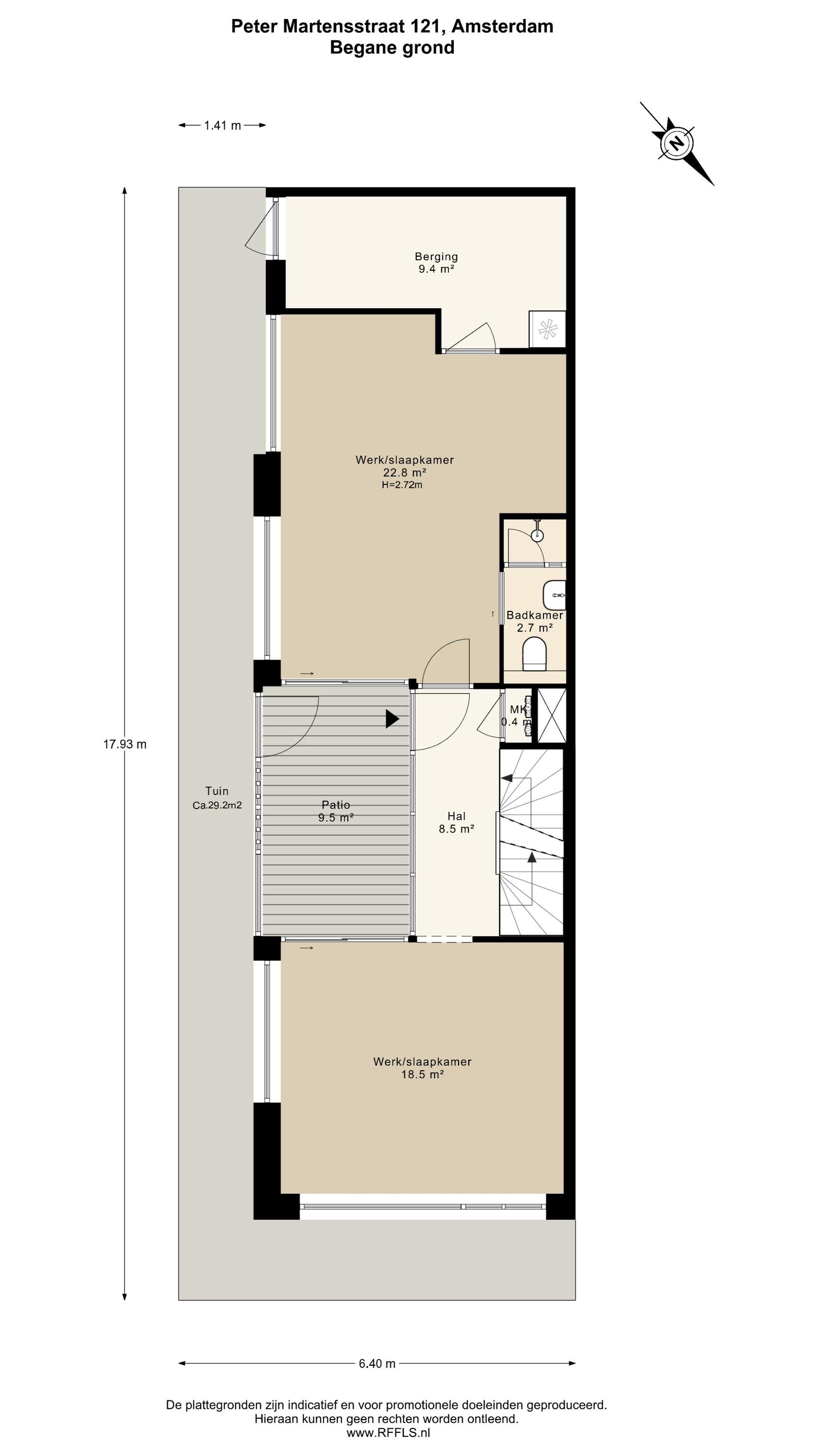
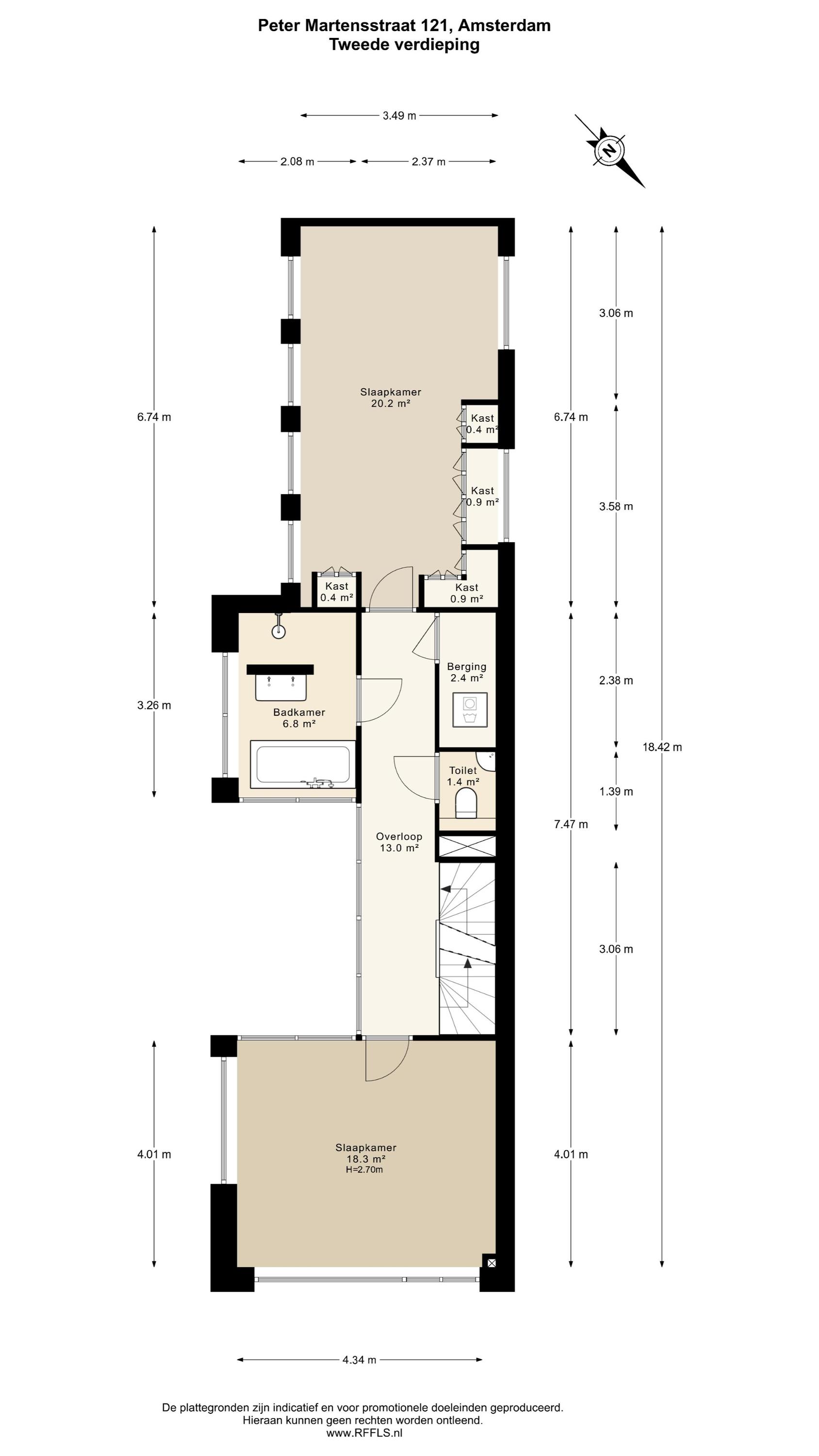
Superficie habitable
206m2
Tamaño del terreno
115m2
Dormitorios
4

Descripción

Townhouse Amsterdam le da la bienvenida a una fusión única de vivienda y espacio de trabajo. Esta propiedad esquinera ofrece 229 m² de interiores luminosos con vistas panorámicas al IJmeer y a la reserva natural Diemer Vijfhoek. La distribución está diseñada de forma intuitiva para la vida moderna: un amplio salón, generosa cocina-comedor y cuatro dormitorios u oficinas de grandes dimensiones, adaptándose perfectamente tanto a necesidades privadas como profesionales. Con dos baños y tres espacios exteriores diferenciados—un patio, un espacioso balcón y una terraza en la azotea—las rutinas diarias se disfrutan en un entorno de agua y cielo.

El acceso directo desde tres plazas de aparcamiento privadas, incluida una doble cochera segura y un espacio para invitados, es un privilegio poco frecuente en Ámsterdam. El canon de arrendamiento está pagado hasta 2058, proporcionando tranquilidad con una transición a régimen perpetuo.

Construida para la sostenibilidad y el confort, la vivienda dispone de calefacción por suelo radiante, ventilación avanzada, acristalamiento HR++, 14 paneles solares y aire acondicionado integral. Sistemas de seguridad y un jardín urbano privado garantizan discreción y serenidad.

Rodeada por las aguas y parques de IJburg-Zuid, con tiendas, colegios, puerto deportivo y el centro de la ciudad al alcance, esta propiedad reúne tranquilidad, accesibilidad y diseño atemporal. Casa adosada de lujo en venta en Ámsterdam, ubicada en un edificio sostenible de clase energética A.

Explora Ámsterdam con Baerz, Tu Buscador y Asesor Personal de Propiedades de Confianza

Navegar en el mercado de lujo de Ámsterdam exige un profundo conocimiento local, discreción y habilidad negociadora. Los mejores asesores ofrecen acceso a listados privados, aclaran las complejidades legales y detectan oportunidades en un contexto donde rara vez afloran al público. Los equipos consultores realizan auditorías exhaustivas y representación personalizada, fortaleciendo su posición en negociaciones, garantizando transacciones impecables y protegiendo su privacidad en cada etapa.

Evita los errores comunes

Los compradores internacionales a menudo pierden tiempo valioso en listados en línea duplicados, desactualizados o engañosos, especialmente porque casi el 30% de las casas de lujo nunca aparecen en el mercado público. Los agentes del vendedor representan los intereses del vendedor, no los del comprador. Incluso solicitar información sobre una propiedad puede resultar en que un agente del vendedor te registre como su “cliente” sin tu consentimiento.
Con Baerz Property Finders & Advisors, evitas por completo todos estos errores. Trabajamos únicamente en tu nombre, ofreciendo representación independiente, orientación clara y acceso a todas las propiedades disponibles, incluidas oportunidades fuera del mercado que otros nunca llegan a ver.

¿Interesado en un Asesor Personal de Propiedades?

Te mostramos todas las casas disponibles en un solo lugar. No dudes en contactarnos para saber cómo podemos satisfacer tus necesidades y proteger tus intereses exclusivamente.

Características

Paneles solares
Sistema de alarma
Aire acondicionado
Transferencia de propiedad
Precio solicitado
€ 1.495.011 k.k.
Estado
beschikbaar
Aceptación
in overleg
Construcción
Tipo de casa
Herenhuis
Tipo de edificio
hoekwoning
Periodo de construcción
2010
Calificación energética
A
Dormitorios
4
Baños
2
Superficies y Volumen
Superficie habitable
206 m2
Otro espacio interior
23 m2
Espacio exterior adjunto al edificio
42 m2
Espacio de almacenamiento externo
43 m2
Volumen en metros cúbicos
883 m3
Tamaño del terreno
115 m2
Instalaciones
Alarminstallatie
Tv kabel
Buitenzonwering
Airconditioning
Schuifpui
Glasvezel kabel
Zonnepanelen
Balansventilatie
Aan water
In woonwijk
Vrij uitzicht
Aan vaarwater
Baerz & Co Property Brochure

Folleto

Vídeos

11 Makelaars - Amsterdam Noord

Mt. Lincolnweg 36 - 617
1033SN Amsterdam

info@11makelaars.nl
+31 20 20 50 208

www.11makelaars.nl

Solicitud de información / Visita

Niels Eering profile image
Niels Eering
Real Estate Agent

Comprar una propiedad de lujo en Ámsterdam

Ámsterdam ofrece un estilo de vida cosmopolita, definido por su legado histórico, su conectividad y un lujo discreto. Sus residentes disfrutan de una comunidad internacional vibrante, servicios a medida y una rica vida cultural. La fuerza de la ciudad reside en su fusión de historia, sofisticación y espíritu progresista.