AMSTERDAM
Alexander Boersstraat 37 H - 1071 KW
Países Bajos

€2,500,000
Superficie habitable
216m2
Tamaño del terreno
N/A
Dormitorios
4

Descripción

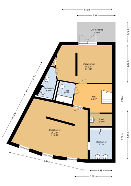
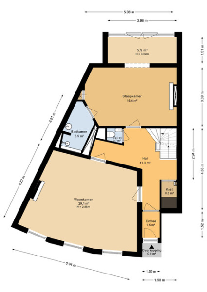
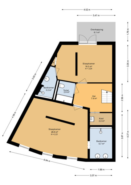
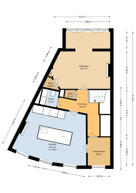
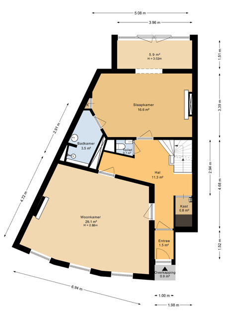
La residencia en planta baja de Ámsterdam representa una oportunidad excepcional de adquirir una propiedad de tres niveles y amplias dimensiones en Alexander Boersstraat 37-H, situada en el codiciado Barrio de los Museos. Esta vivienda de 216 m² despliega casi 9 metros de fachada y cuenta con cuatro dormitorios, tres baños y una serie de detalles originales de época. El jardín trasero orientado al oeste, de aproximadamente 18 m², ofrece un refugio privado, complementado por dos balcones interiores, uno de ellos con fachada de cristal plegable que conecta los espacios interiores y exteriores.

El interior combina el encanto histórico restaurado con una renovación refinada, destacando una impactante cocina-comedor acabada en roble oscuro, encimera de material compuesto, electrodomésticos Siemens StudioLine, placa Bora y grifo Quooker. La luz natural inunda las generosas zonas de estar y el comedor clásico, realzadas por altos ventanales con vistas a las elegantes calles de Ámsterdam. La planta sótano constituye una tranquila zona de descanso, con baños privados en suite y acceso al jardín.

Ubicada entre Van Eeghenstraat y Alexander Boersstraat, la vivienda se sitúa cerca de instituciones artísticas, boutiques exclusivas y zonas verdes. Dispone de ventilación mecánica y natural, televisión por cable y sistema de calefacción central. Cuenta con certificación energética clase A, propiedad en pleno dominio y forma parte de una pequeña asociación de propietarios autogestionada.

Explora Ámsterdam con Baerz, Tu Buscador y Asesor Personal de Propiedades de Confianza

Navegar en el mercado de lujo de Ámsterdam exige un profundo conocimiento local, discreción y habilidad negociadora. Los mejores asesores ofrecen acceso a listados privados, aclaran las complejidades legales y detectan oportunidades en un contexto donde rara vez afloran al público. Los equipos consultores realizan auditorías exhaustivas y representación personalizada, fortaleciendo su posición en negociaciones, garantizando transacciones impecables y protegiendo su privacidad en cada etapa.

Evita los errores comunes

Los compradores internacionales a menudo pierden tiempo valioso en listados en línea duplicados, desactualizados o engañosos, especialmente porque casi el 30% de las casas de lujo nunca aparecen en el mercado público. Los agentes del vendedor representan los intereses del vendedor, no los del comprador. Incluso solicitar información sobre una propiedad puede resultar en que un agente del vendedor te registre como su “cliente” sin tu consentimiento.
Con Baerz Property Finders & Advisors, evitas por completo todos estos errores. Trabajamos únicamente en tu nombre, ofreciendo representación independiente, orientación clara y acceso a todas las propiedades disponibles, incluidas oportunidades fuera del mercado que otros nunca llegan a ver.

¿Interesado en un Asesor Personal de Propiedades?

Te mostramos todas las casas disponibles en un solo lugar. No dudes en contactarnos para saber cómo podemos satisfacer tus necesidades y proteger tus intereses exclusivamente.

Características

Transferencia de propiedad
Precio solicitado
€ 2.500.000
Estado
beschikbaar
Aceptación
in overleg
Construcción
Tipo de casa
Dubbel benedenhuis
Tipo de edificio
appartement
Periodo de construcción
1894
Calificación energética
A
Dormitorios
4
Baños
3
Superficies y Volumen
Superficie habitable
216 m2
Otro espacio interior
0 m2
Espacio exterior adjunto al edificio
7 m2
Volumen en metros cúbicos
761 m3
Instalaciones
Mechanische ventilatie
Tv kabel
Natuurlijke ventilatie
Aan rustige weg
In woonwijk
Vrij uitzicht
Baerz & Co Property Brochure

Folleto

Vídeos

Heeren Makelaars

Stadionweg 75
1077 SE Amsterdam

info@heerenmakelaars.nl
+31 204702255

www.heerenmakelaars.nl

Solicitud de información / Visita

Igor Veendrick profile image
Igor Veendrick
Real estate agent

Comprar una propiedad de lujo en Ámsterdam

Ámsterdam ofrece un estilo de vida cosmopolita, definido por su legado histórico, su conectividad y un lujo discreto. Sus residentes disfrutan de una comunidad internacional vibrante, servicios a medida y una rica vida cultural. La fuerza de la ciudad reside en su fusión de historia, sofisticación y espíritu progresista.